Светлая двухкомнатная квартира 66 м2 для молодой семьи с котом в Москве: фотографии, видео и смета готового интерьера

Светлая двухкомнатная квартира 66 м<sup>2</sup> для молодой семьи с котом: фотографии, видео и смета готового интерьера

Интерьер этой акварельной квартиры мы сделали для молодой пары, которые планируют ребенка. Заказчики попросили нас оформить квартиру в светлых природных оттенках, подготовить детскую комнату и запланировать места для их кота.

Мы сделали дизайн-проект и реализовали этот интерьер. Мы составили смету и зафиксировали стоимость реализации еще на этапе проектирования, и в процессе ремонта сумма не изменилась. Корпусную мебель мы спроектировали и изготовили специально для этой квартиры.

Площадь 66 м2
Тип Двухкомнатная квартира
Годы 2023–2024
Особенности Небольшая кухня-гостиная, объемный вентиляционный короб в прихожей
Было
Стало
Длинный коридор, ведущий в спальню
Небольшая вытянутая кухня-гостиная
Объемный вентиляционный короб
Перенесли спальню родителей в левую часть квартиры, присоединили к ней душевую
Шкафы в прихожей, комплекс для кота и кухонные пеналы сделали единым изделием
Сократили стену, чтобы обеспечить комфортный проход в кухню-гостиную и избавиться от коридора
В спальне запланировали место для детской кроватки
Дизайн небольшой кухни-гостиной

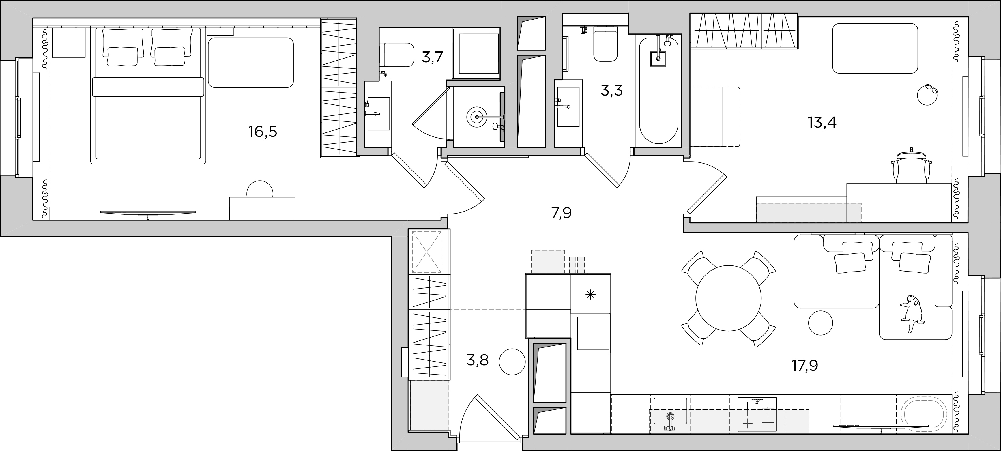
Мы немного переработали планировку от застройщика: он разместил мастер-спальню в смежной с кухней-гостиной комнате, и у него получился длинный коридор, а небольшая кухня-гостиная была зажата стенами. Мы перенесли спальню заказчиков в другую комнату, а рядом с кухней-гостиной сделали детскую. Стену, разделяющую кухню-гостиную и детскую, мы сделали короче.

Мебель для кухни на заказ

Благодаря сокращению стены кухни-гостиной мы смогли скомпоновать кухонные пеналы и комплекс для кота в одном блоке, сохранив комфортный проход. 

Комплекс для кота в квартире
Дизайн кухни-гостиной 18 квадратных метров
Мебель для гостиной на заказ

Для небольшой кухни-гостиной мы нашли необычное решение: нижние модули кухни продолжаются до окна и приобретают новую функцию — теперь это ТВ-тумба с домиком для кота. Мы сделали круглые отверстия в фасаде, так любимец сможет отдыхать в комфортном месте рядом с хозяевами. 

На видео мы показали, что в этом интерьере мы подготовили для кота и как он к этому относится.

Кухонный гарнитур из МДФ на заказ

Мы не стали делать верхние модули по всему периметру кухни, чтобы добавить легкости интерьеру. Кухня достаточно узкая, и верхние модули сильно перегрузили бы пространство. 

Дизайн и ремонт небольшой гостиной

Несмотря на небольшую площадь кухни-гостиной, мы смогли разместить здесь обеденный стол на четыре персоны и глубокий диван. Стену за диваном оформили панелями с текстурой дуба и подсветкой. 

На видео мы показали, как устроена эта небольшая кухня-гостиная.

Мебель для детской комнаты на заказ
Дизайн интерьера детской комнаты

Для детской комнаты мы спроектировали и изготовили большой шкаф до потолка, для него подобрали разноцветные ручки-шарики, у рабочего стола повесили шкаф для книг и поставили тумбу для игрушек. 

Шкаф и кровать в детской комнаты
Оформление стен в детской комнате

Стену за детской кроваткой оформили бесшовными обоями, изготовленными по нашему заказу, а вместо люстры повесили три воздушных шара-светильника. Когда первенец подрастет, такую кроватку можно легко заменить на взрослую — от шкафа до окна остается больше двух метров.

Мебель для ванной комнаты на заказ
Дизайн интерьера небольшой ванной

В гостевой ванной комнате использовали два вида плитки: яркую с восточным орнаментом и бежевую с текстурой песчаника, дополнили интерьер ванной аксессуарами в латунной отделке.

Мягкое изголовье для кровати
Мебель для спальни на заказ
Косметический столик и зеркало в спальне

Спальню родителей организовали так, чтобы в ней свободно стояла детская кроватка, которую в первые месяцы жизни малыша можно держать у кровати родителей. Из-за этого со стороны хозяйки у кровати нет прикроватной тумбы, только небольшая полочка. 

Платяной шкаф в спальне
Дизайн интерьера ванной комнаты

Изголовье оформили мягкими панелями, розетки спрятали сверху, там же смонтировали подсветку. Напротив кровати установили косметический столик с ящиком и большое зеркало.

Мебель для ванной комнаты из ЛДСП
Дизайн и ремонт ванной комнаты с душем

К спальне родителей мы присоединили душевую. Ее оформили глянцевой изумрудной плиткой, которая очень понравилась заказчикам. На ее фоне расположили светлую мебель и аксессуары. Левее душевой поставили пенал для стиральной и сушильной машин.

Оформление душа

На этом видео мы детальнее показали устройство этой ванной и хозяйственного шкафа.

Мебель для прихожей на заказ
Дизайн интерьера прихожей

На полу в прихожей мы использовали ту же плитку, что и в ванной. Панель для входной двери заменили: теперь она такая же, как стена вокруг. Спроектировали и изготовили подвесную тумбу с ящиком для обуви, а напротив смонтировали большое зеркало. На двери разместили крючки для сумок. В шкафах есть штанги и полки для одежды и аксессуаров, а в крайнем правом модуле — место для лотка мейн-куна. 

Столовая зона в квартире

Такой светлый летний интерьер мы спроектировали и реализовали для наших заказчиков, уверены, что в нем им будет уютно даже в серые московские зимы.

?autoplay=1" title="YouTube video player" frameborder="0" allow="accelerometer; autoplay; clipboard-write; encrypted-media; gyroscope; picture-in-picture" allowfullscreen>

Вы можете вместе с нами заглянуть в этот интерьер и увидеть его таким, каким мы его представили заказчикам. Мы сняли подробный обзор, где рассказали про все типичные и нетипичные для нас решения, а также показали, пришелся ли по душе мейн-куну его новый интерьер. Это видео мы опубликовали и на YouTube.

Дизайн-проект интерьера двухкомнатной квартиры
Дизайн-проект кухни-гостиной 18 квадратных метров
Мебель для кухни-гостиной, проект
Дизайн-проект ванной комнаты
Дизайн-проект детской комнаты
Мебель для детской комнаты
Дизайн-проект мастер-спальни
Современная мебель для спальни на заказ
Дизайн-проект душевой в современном стиле
Дизайн-проект небольшой ванной комнаты

Таким мы презентовали интерьер на этапе проектирования: все предметы и материалы были выбраны. Тщательная проработка деталей позволила нам реализовать интерьер, полностью соответствующий эскизам.

Смета
Смета актуальна на сентябрь 2023 года. Не является публичной офертой.
Дизайн
842 460 ₽
Дизайн-проект интерьера
7 995 ₽
x
66 м2
=
527 670 ₽
Дизайн-проект мебели
7 495 ₽
x
42 п. м.
=
314 790 ₽
Отделочные материалы
3 501 470 ₽
Инженерная доска Lab Arte
5 331 ₽
x
62 м2
=
330 522 ₽
Керамогранит в прихожей и ванной Harmony
7 250 ₽
x
12 м2
=
87 000 ₽
Керамическая плитка в ванной Porcelanosa
8 783 ₽
x
24 м2
=
210 792 ₽
Керамогранит в душевой Porcelanosa
8 046 ₽
x
5 м2
=
40 230 ₽
Керамическая плитка в душевой Dual Gres
4 554 ₽
x
31 м2
=
141 174 ₽
Керамогранит на фартуке Peronda
8 457 ₽
x
17 м2
=
143 769 ₽
Краска светло-бежевая San Marco
18 900 ₽
x
3 шт.
=
56 700 ₽
Краска белая San Marco
17 800 ₽
x
2 шт.
=
35 600 ₽
Обои Креативилль
3 100 ₽
x
10 м2
=
31 000 ₽
Черновые материалы
2 424 683 ₽
x
1 к-т.
=
2 424 683 ₽
Двери
540 288 ₽
Межкомнатные двери Union
78 855 ₽
x
4 шт.
=
315 420 ₽
Дверная ручка Colombo
16 485 ₽
x
4 шт.
=
65 940 ₽
Стопор для межкомнатной двери Verum
3 450 ₽
x
4 шт.
=
13 800 ₽
Стопор для входной двери Colombo
1 495 ₽
x
1 шт.
=
1 495 ₽
Стеклянная дверь в душевой Alexander Tischler
143 633 ₽
x
1 шт.
=
143 633 ₽
Мебель
6 089 546 ₽
Стеновые панели в прихожей с обувницей и шкафом для одежды Alexander Tischler
526 414 ₽
x
1 к-т.
=
526 414 ₽
Зеркало и хозяйственный шкаф в прихожей Alexander Tischler
238 489 ₽
x
1 к-т.
=
238 489 ₽
Комплекс для кота Alexander Tischler
124 500 ₽
x
1 к-т.
=
124 500 ₽
Кухня Alexander Tischler
1 571 122 ₽
x
1 к-т.
=
1 571 122 ₽
Стеновые панели за диваном Alexander Tischler
99 157 ₽
x
1 к-т.
=
99 157 ₽
Стеновые панели в коридоре Alexander Tischler
60 708 ₽
x
1 к-т.
=
60 708 ₽
Мягкое изголовье с тумбой и полкой в спальне Alexander Tischler
278 247 ₽
x
1 к-т.
=
278 247 ₽
Основание кровати Alexander Tischler
52 650 ₽
x
1 шт.
=
52 650 ₽
Шкаф для одежды в спальне Alexander Tischler
322 988 ₽
x
1 шт.
=
322 988 ₽
Макияжный столик с консолью и круглым зеркалом в спальне Alexander Tischler
335 762 ₽
x
1 к-т.
=
335 762 ₽
Шкаф для одежды в детской Alexander Tischler
409 568 ₽
x
1 шт.
=
409 568 ₽
Подвесной рабочий стол, шкаф, тумба, полки детской Alexander Tischler
529 294 ₽
x
1 к-т.
=
529 294 ₽
Тумба и зеркало в ванной Alexander Tischler
154 953 ₽
x
1 к-т.
=
154 953 ₽
Раковина-столешница в ванной Alexander Tischler
88 790 ₽
x
1 к-т.
=
88 790 ₽
Шкаф над инсталляцией в ванной Alexander Tischler
95 286 ₽
x
1 шт.
=
95 286 ₽
Шкаф для стиральной и сушильной машин в душевой Alexander Tischler
177 193 ₽
x
1 шт.
=
177 193 ₽
Шкаф над инсталляцией и панели в душевой Alexander Tischler
148 521 ₽
x
1 к-т.
=
148 521 ₽
Тумба и зеркало в душевой Alexander Tischler
273 988 ₽
x
1 к-т.
=
273 988 ₽
Раковина-столешница в душевой Alexander Tischler
81 640 ₽
x
1 шт.
=
81 640 ₽
Крючок в прихожей Shoenbuch
7 680 ₽
x
1 шт.
=
7 680 ₽
Крючок в прихожей большой Shoenbuch
8 014 ₽
x
2 шт.
=
16 028 ₽
Пуф Mononova
19 900 ₽
x
1 шт.
=
19 900 ₽
Стул Оримэк
13 800 ₽
x
4 шт.
=
55 200 ₽
Обеденный стол Anni Haus
67 590 ₽
x
1 шт.
=
67 590 ₽
Диван Mononova
220 448 ₽
x
1 шт.
=
220 448 ₽
Приставной столик La Forma
20 200 ₽
x
1 шт.
=
20 200 ₽
Кроватка Ellipse
38 900 ₽
x
1 шт.
=
38 900 ₽
Матрас и наматрасник для кроватки Ellipse
9 350 ₽
x
1 к-т.
=
9 350 ₽
Комод Ellipse
44 900 ₽
x
1 шт.
=
44 900 ₽
Пеленальная доска и матрас Ellipse
8 200 ₽
x
1 к-т.
=
8 200 ₽
Детский стульчик Berkano
5 290 ₽
x
1 шт.
=
5 290 ₽
Пуф в спальне Anni Haus
6 590 ₽
x
1 шт.
=
6 590 ₽
Электротовары
526 453 ₽
Спот Maytoni
4 270 ₽
x
3 шт.
=
12 810 ₽
Встроенный точечный светильник Arlight
3 443 ₽
x
43 шт.
=
148 049 ₽
Подвес над обеденным столом Maytoni
9 355 ₽
x
5 шт.
=
46 775 ₽
Бра Aromas del Campo
33 279 ₽
x
2 шт.
=
66 558 ₽
Подвесной светильник в спальне белый Maytoni
9 575 ₽
x
2 шт.
=
19 150 ₽
Подвесной светильник в спальне Maytoni
9 675 ₽
x
1 шт.
=
9 675 ₽
Светильник шарик зеленый в детской Brokis
45 856 ₽
x
1 шт.
=
45 856 ₽
Светильник шарик белый в детской Brokis
42 294 ₽
x
1 шт.
=
42 294 ₽
Светильник шарик бежевый в детской Brokis
44 854 ₽
x
1 шт.
=
44 854 ₽
Бра в детской Leds С4
14 516 ₽
x
1 шт.
=
14 516 ₽
Бра в ванной и душевой Arlight
6 752 ₽
x
2 шт.
=
13 504 ₽
Профиль для подсветки ниш угловой
384 ₽
x
7 шт.
=
2 688 ₽
Профиль для подсветки ниш врезной
520 ₽
x
2 шт.
=
1 040 ₽
Рассеиватель для профиля
413 ₽
x
18 шт.
=
7 434 ₽
Светодиодная лента Arlight
670 ₽
x
20 шт.
=
13 400 ₽
Терморегулятор Xiaomi
3 840 ₽
x
4 шт.
=
15 360 ₽
Розетки и выключатели Schneider Electric
22 490 ₽
x
1 к-т.
=
22 490 ₽
Кондиционирование
471 641 ₽
Система кондиционирования Hisense
471 641 ₽
x
1 к-т.
=
471 641 ₽
Сантехника
722 982 ₽
Мойка Omoikiri
31 888 ₽
x
1 шт.
=
31 888 ₽
Смеситель на кухне Swedbe
30 140 ₽
x
1 шт.
=
30 140 ₽
Дозатор моющего средства на кухне Swedbe
3 817 ₽
x
1 шт.
=
3 817 ₽
Кнопка измельчителя Omoikiri
5 188 ₽
x
1 шт.
=
5 188 ₽
Фильтр для воды Аквафор
8 850 ₽
x
1 шт.
=
8 850 ₽
Ванна Roca
38 980 ₽
x
1 шт.
=
38 980 ₽
Душевой гарнитур для ванны с изливом в ванной Timo
59 962 ₽
x
1 шт.
=
59 962 ₽
Смеситель для раковины в ванной Timo
26 900 ₽
x
1 шт.
=
26 900 ₽
Гигиенический душ в ванной Timo
22 688 ₽
x
1 шт.
=
22 688 ₽
Полотенцедержатель в ванной Timo
13 946 ₽
x
2 шт.
=
27 892 ₽
Полотенцедержатель малый в ванной Timo
8 893 ₽
x
1 шт.
=
8 893 ₽
Ершик в ванной Timo
28 297 ₽
x
1 шт.
=
28 297 ₽
Дозатор жидкого мыла в ванной Timo
15 765 ₽
x
1 шт.
=
15 765 ₽
Держатель бумаги в ванной Timo
13 946 ₽
x
1 шт.
=
13 946 ₽
Полка в душевой MyOry
4 600 ₽
x
2 шт.
=
9 200 ₽
Унитаз Isvea
34 500 ₽
x
2 шт.
=
69 000 ₽
Инсталляция для унитаза Tece
50 860 ₽
x
2 шт.
=
101 720 ₽
Душевая система в душевой Timo
52 672 ₽
x
1 шт.
=
52 672 ₽
Гигиенический душ в душевой Timo
21 416 ₽
x
1 шт.
=
21 416 ₽
Смеситель для раковины в душевой Timo
16 978 ₽
x
1 шт.
=
16 978 ₽
Сифон для раковины Santi Line
3 950 ₽
x
2 шт.
=
7 900 ₽
Донный клапан для раковины Allen Brau
3 010 ₽
x
2 шт.
=
6 020 ₽
Держатель для ершика в душевой MyOry
7 000 ₽
x
1 шт.
=
7 000 ₽
Полка для мыла и стаканчика в душевой MyOry
8 500 ₽
x
1 шт.
=
8 500 ₽
Держатель для бумаги MyOry
5 000 ₽
x
1 шт.
=
5 000 ₽
Крючок в душевой MyOry
3 300 ₽
x
4 шт.
=
13 200 ₽
Душевой трап Tece
81 170 ₽
x
1 шт.
=
81 170 ₽
Работы
4 132 560 ₽
Управление строительно-монтажным работами
4 995 ₽
x
66 м2
=
329 670 ₽
Подготовительно-черновая отделка
376 900 ₽
x
1 к-т.
=
376 900 ₽
Устройство водоснабжения, канализации, отопления, электроснабжения
417 000 ₽
x
1 к-т.
=
417 000 ₽
Предчистовая отделка
966 430 ₽
x
1 к-т.
=
966 430 ₽
Чистовая отделка
712 260 ₽
x
1 к-т.
=
712 260 ₽
Чистовой монтаж водоснабжения, канализации, отопления, электроснабжения
262 400 ₽
x
1 к-т.
=
262 400 ₽
Логистические расходы
220 000 ₽
x
1 к-т.
=
220 000 ₽
Монтаж мебели
847 900 ₽
x
1 к-т.
=
847 900 ₽
Итого
16 827 400 ₽
Команда
Карен Карапетян
Главный дизайнер
Юлия Убоженко
Дизайнер
Константин Прохоров
Инженер
Олег Мокрушников
Инженер
Любовь Венерцева
Инженер
Екатерина Демкина
Руководитель по закупкам
Карен Никоян
Руководитель по отделке
Евгений Бридня
Шеф-монтажник
Ольга Карапетян
Фотограф
Кира Прохорова
Стилист
Вера Минченкова
Автор текста
Возьмем ваш интерьер на себя
Заказчики этого интерьера всего пару раз были в квартире во время реализации — мы сами контролировали все работы, а клиентам регулярно отправляли фото и видео прогресса. Если тоже хотите реализовать интерьер мечты легко, давайте работать! Мы разработаем дизайн интерьера вашей квартиры или дома, а потом сделаем ремонт со своей проверенной командой. Ремонт с нами не оторвёт вас от семьи, дел и отдыха, мы обо всем позаботимся. Оставьте заявку, мы рассчитаем предварительную стоимость производства вашего интерьера.

Производство интерьера от договора до въезда
занимает от 12 месяцев

Разработка дизайн-проекта интерьера
1-й квартал
Разработка дизайн-проекта мебели
Фиксация сметы
2-й квартал
Монтаж перегородок
Монтаж инженерных систем
3-й квартал
Монтаж потолков
Отделочные работы
Монтаж дверей
4-й квартал
Монтаж мебели
и техники
Клининг
Производство интерьера от договора до въезда
занимает от 12 месяцев
Проектные работы
1-й квартал
2-й квартал
3-й квартал
4-й квартал
Обмеры квартиры
Разработка планировочного решения
Разработка эскизного проекта интерьера
Разработка рабочего проекта интерьера
Разработка эскизного проекта мебели
Разработка рабочего проекта мебели
Проектирование вентиляции
Проектирование отопления
Проектирование водоснабжения
Проектирование канализации
Проектирование электроснабжения
Составление сметы
Авторский надзор
Отделочные работы
Демонтаж перегородок
Монтаж перегородок
Грунтование стен
Штукатурка стен
Звукоизоляция стен
Шпаклевание стен
Приклеивание стеклохолста на стены
Покраска стен
Приклеивание керамогранита на стены
Монтаж звуко-гидроизоляции на пол
Выравнивание полов стяжкой
Монтаж тёплых полов
Укладка керамогранита на пол
Грунтование пола
Укладка фанеры на пол
Укладка паркетной доски на пол
Монтаж пробкового компенсатора
Звукоизоляция потолка
Монтаж потолка из гипсокартона
Грунтование потолка
Шпаклевание потолка
Приклеивание стеклохолста на потолок
Покраска потолка
Клининг
Инженерные системы
Монтаж водоснабжения и канализации
Монтаж отопления
Монтаж электроснабжения
Монтаж приточной вентиляции
Монтаж кондиционеров
Окна и двери
Монтаж окон
Установка дверей
Мебель и техника
Производство мебели
Монтаж мебели
Установка техники
Состоим в профессиональных сообществах США и России
Лёгкий ремонт
Вы покупаете интерьер как готовый продукт. Ремонт не оторвёт вас от семьи, дел и отдыха. Товары, логистику и работы контролируем мы.
Один ответственный
Мы отвечаем за весь интерьер материально и решение возможных проблем берём на себя.
Неизменная цена
В конце дизайн-проекта фиксируем смету всего интерьера. В процессе реализации цена не поднимется.

Другие интерьеры

Все интерьеры