Теплый минимализм в квартире 72 м2 с окном в ванной и гардеробной в Москве: фотографии, видео и смета готового интерьера

Теплый минимализм в квартире 72 м<sup>2</sup> с окном в ванной и гардеробной: фотографии, видео и смета готового интерьера

Заказчики этого интерьера — молодая пара — попросили нас сделать свою квартиру теплой и умиротворяющей, чтобы в ней они могли восстанавливать силы. Мы сделали светлый интерьер с мебелью кофейного оттенка, а после перепланировки кухня-гостиная и мастер-спальня стали больше и комфортнее.

Мы сделали дизайн-проект и ремонт этого интерьера. Мы подготовили смету и зафиксировали стоимость реализации еще на этапе проектирования, и в процессе ремонта сумма не изменилась.

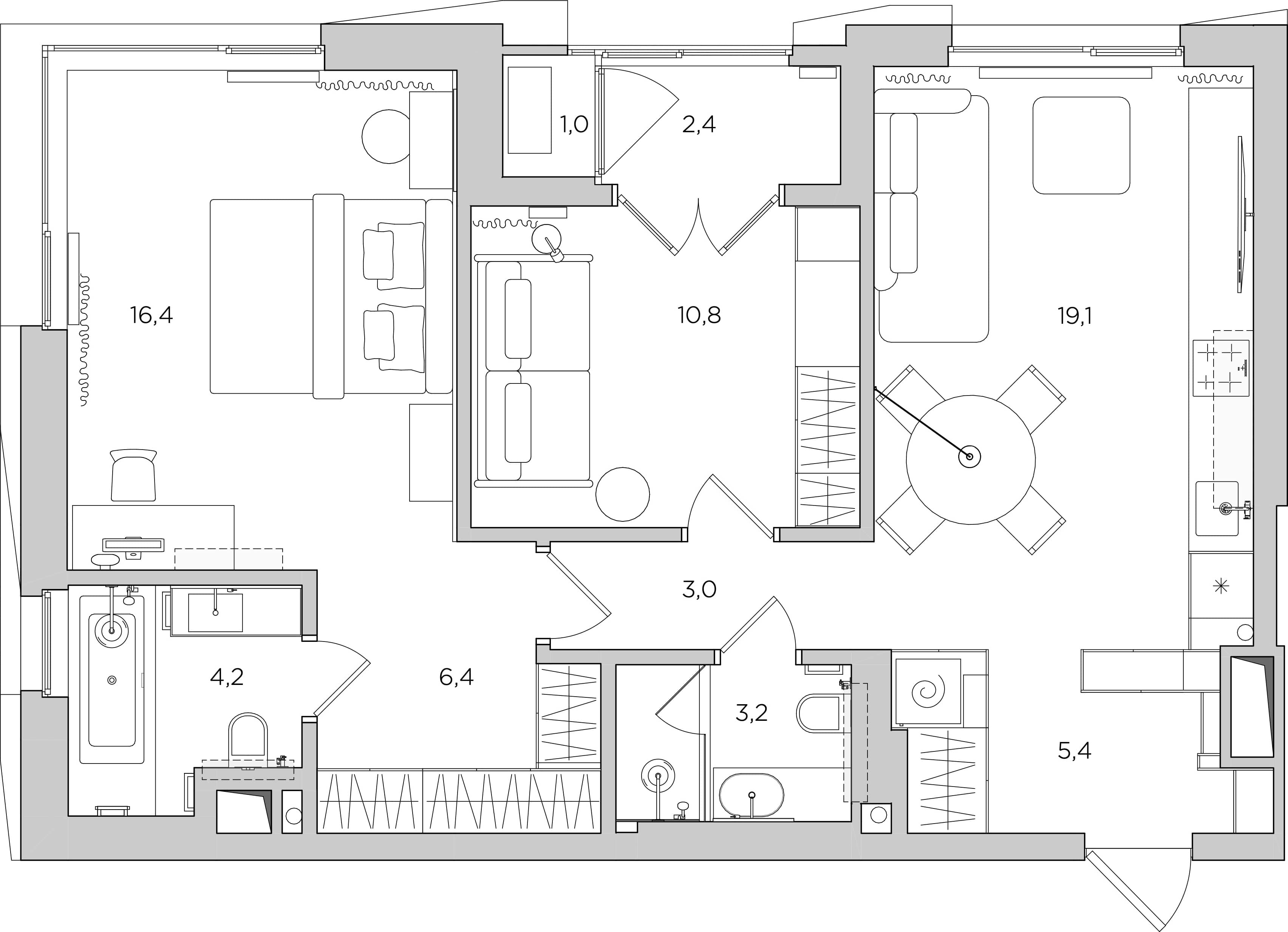
Площадь 72 м2
Тип Двухкомнатная квартира
Годы 2024–2025
Особенности Нет несущих стен, небольшая гардеробная при главной спальне, нет корзины для внешнего блока кондиционера, окно в ванной комнате
Было
Стало
Небольшая кухня-гостиная
Крошечная гардеробная
Стандартный выход на лоджию с подоконным блоком
Место для внешнего блока кондиционера запланировано только на лоджии
Узкая гостевая ванная комната
Увеличили гардеробную за счет гостевой ванной
Расширили гостевую ванную комнату, сдвинув коридор
Убрали подоконный блок и поставили распашное окно в пол
Выделили технический блок для вентоборудования
Убрали перегородку между кухней-гостиной и прихожей
Дизайн бежевой кухни-гостиной
Дизайн интерьера бежевой кухни-гостиной
Кухонный гарнитур из МДФ на заказ

Мы убрали перегородку между прихожей и кухней-гостиной, разделили их только неглубоким шкафом. Так кухня-гостиная стала больше, а в прихожую теперь попадает свет от окна. 

Дизайн бежевой кухни в шпоне дуба

Кухонные пеналы и верхние модули мы сделали в шпоне дуба, тонировку которого подобрали специально для этого интерьера. Нижние модули кухни мы довели до окна, благодаря чему столешницу сделали длиной более четырех метров.

Интерьер гостиной в стиле минимализм
Дизайн гостиной в стиле минимализм

Для отдыха мы выбрали диван с приставной оттоманкой, в ней же можно хранить важные мелочи и книги. Контрастный обеденный стол одновременно поддерживает черные элементы в интерьере и добавляет уюта благодаря мягкому подстолью. Между столом и диваном мы повесили подвижный светильник.

Оформление кухни-гостиной в стиле минимализм
Дизайн квартиры в стиле минимализм с кухней-гостиной

Большой шкаф в прихожей мы сделали в цвет стен, а один из фасадов — зеркальным. За ним расположены стиральная и сушильная машины. Левее — неглубокая ниша для гладильной доски. 

Карен Карапетян
Кстати,

Если вы хотите сделать красивый дизайн и качественный ремонт, не погружаясь в процессы, оставляйте заявку

Мебель для прихожей из МДФ

Пространство прихожей мы визуально увеличили с помощью второго зеркала, его мы заглубили между панелей, так создается ощущение портала. У бежевого шкафа мы не довели фасады до пола — там будет база для робота-пылесоса, который сможет без преград выезжать на работу. 

Дизайн бежевой гостевой спальни
Мебель для детской комнаты на заказ

Гостевую спальню, которая в будущем легко станет детской, мы немного уменьшили из-за расширения гостевой ванной комнаты. Здесь на лоджии расположено единственное место для внешнего блока кондиционера, которое запланировал застройщик. 

Дизайн детской комнаты в современном стиле
Французское окно на лоджии

Если бы мы расположили внешний блок кондиционера, как запланировал застройщик, то в летнее время лоджией было бы невозможно пользоваться: было бы шумно и жарко. Поэтому мы нашли решение: не меняя фасад здания, мы выделили на лоджии небольшое пространство для внешнего блока кондиционера и приточной вентиляции, оградив их дверью с шумоизоляцией. Также мы убрали подоконный блок и поставили распашное окно в пол: так в комнате стало больше света. 

Дизайн ванной комнаты в современном стиле

Мы уменьшили детскую комнату, чтобы гостевую ванную сделать шире: на планировке от застройщика она была слишком узкой, приблизив ее форму к квадрату, мы комфортно расположили сантехнику. Слева над унитазом шкаф, который выступает из плоскости стены, таким образом полки в нем получились более глубокими. Прямо перед входом — подвесная тумба с интегрированной раковиной, а правее — душевая.

Дизайн интерьера главной спальни с гардеробной

Благодаря большому угловому окну главная спальня наполнена светом и воздухом, мы поддержали это ощущение «парящей» кроватью — ее ножки прозрачные и заглублены, а также стеновой панелью за изголовьем — она формирует низкую горизонталь, подчеркивая большое свободное пространство сверху. 

Косметический столик в спальне на заказ

Слева от кровати мы сделали консольный косметический столик в той же отделке, что и панели за кроватью. Над ним — круглое зеркало с подсветкой. 

Дизайн рабочего стола в спальне

По просьбе заказчика мы поставили в спальне рабочий стол в минималистичной темной отделке с едва-заметной текстурой. Над столом повесили большую книжную полку и круглое бра.

Дизайн спальни с рабочим местом и гардеробной
Дизайн спальни с гардеробной в современном стиле
Дизайн гардеробной в шпоне дуба

Мы убрали перегородку между гардеробной и спальней, и немного увеличили гардеробную за счет гостевой ванной. Здесь мы разместили шкафы с полками, ящиками и штангами для развески одежды. Зеркала мы расположили на двух распашных фасадах от пола до потолка.

Дизайн ванной с окном в стиле минимализм

Главное украшение ванной комнаты — окно, открывающее вид на современный квартал. Для него мы выбрали светлые жалюзи из бамбука, он отлично переносит влажность. 

Дизайн ванной комнаты в стиле минимализм
Мебель для ванной комнаты на заказ
Дизайн и ремонт ванной с окном
Оформление ванны керамогранитом фото

Чтобы сделать стык подоконника и ванны аккуратным, мы оформили ванну рамкой из такого же керамогранита с текстурой травертина, что и на стенах. На всей этой рамке сделали разуклонку, чтобы вода легко стекала в ванну.

Дизайн-проект бежевой кухни-гостиной
Дизайн-проект бежевой кухни
Дизайн-проект кухни-гостиной в стиле минимализм
Дизайн-проект прихожей в современном стиле
Дизайн-проект детской комнаты с французским окном
Дизайн-проект ванной комнаты с душем
Дизайн проект спальни в стиле минимализм
Дизайн-проект спальни с гардеробной
Дизайн-проект спальни с гардеробной
Дизайн-проект и ремонт ванной комнаты с окном
Дизайн-проект ванной с окном

Таким мы презентовали интерьер на этапе проектирования: все предметы и материалы были выбраны. Тщательная проработка деталей позволила нам реализовать интерьер, полностью соответствующий эскизам.

?autoplay=" title="YouTube video player" frameborder="0" allow="accelerometer; autoplay; clipboard-write; encrypted-media; gyroscope; picture-in-picture" allowfullscreen>

Вы можете вместе с нами заглянуть в гости в этот интерьер и посмотреть на него глазами заказчиков: они не были погружены в процессы, не контролировали стройку и увидели квартиру только в финале именно такой, какой мы ее сняли. В видео мы подробно рассказали про все наши планировочные и интерьерные решения. Это видео мы опубликовали и на YouTube.

Смета
Смета актуальна на октябрь 2024 года. Не является публичной офертой.
Дизайн
755 520 ₽
Дизайн-проект интерьера
7 995 ₽
x
72 м2
=
575 640 ₽
Дизайн-проект мебели
7 495 ₽
x
24 п. м
=
179 880 ₽
Отделочные материалы
2 961 840 ₽
Керамогранит в прихожей и ванной Ariana Ceramica
6 989 ₽
x
56 м2
=
391 384 ₽
Инженерная доска Esta
8 981 ₽
x
51 м2
=
458 031 ₽
Керамогранит в детской и на лоджии Italon
5 320 ₽
x
18 м2
=
95 760 ₽
Керамогранит на полу в гостевой ванной Peronda
7 613 ₽
x
10 м2
=
76 130 ₽
Керамогранит на стенах в гостевой ванной Peronda
6 825 ₽
x
28 м2
=
191 100 ₽
Керамогранит на стене в душевой Peronda
7 140 ₽
x
5 м2
=
35 700 ₽
Краска бежевая для стен Derufa
17 970 ₽
x
4 шт
=
71 880 ₽
Краска бежевая для потолка Derufa
9 800 ₽
x
2 шт
=
19 600 ₽
Краска белая Derufa
3 685 ₽
x
2 шт
=
7 370 ₽
Черновые материалы
1 614 885 ₽
x
1 к-т
=
1 614 885 ₽
Двери и окна
1 108 321 ₽
Окно и перегородка на лоджии
261 229 ₽
x
1 шт
=
261 229 ₽
Распашное окно на лоджию
229 030 ₽
x
1 шт
=
229 030 ₽
Межкомнатная дверь в гостевой ванной Profildors
105 803 ₽
x
1 шт
=
105 803 ₽
Межкомнатная дверь в гостевой спальне Profildors
106 211 ₽
x
1 шт
=
106 211 ₽
Межкомнатная дверь в спальне Profildors
103 128 ₽
x
1 шт
=
103 128 ₽
Межкомнатная дверь в ванной Profildors
101 074 ₽
x
1 шт
=
101 074 ₽
Ручка дверная Profildors
5 532 ₽
x
4 шт
=
22 128 ₽
Стопор Profildors
2 026 ₽
x
2 шт
=
4 052 ₽
Стопор магнитный Profildors
3 667 ₽
x
2 шт
=
7 334 ₽
Покраска окон
130 000 ₽
x
1 к-т
=
130 000 ₽
Панель на входную дверь
32 033 ₽
x
1 шт
=
32 033 ₽
Ручка для входной двери Esta
6 299 ₽
x
1 шт
=
6 299 ₽
Мебель
6 400 382 ₽
Кухня со столешницей из кварцевого камня Alexander Tischler
1 565 874 ₽
x
1 к-т
=
1 565 874 ₽
Модуль для обуви и панель с зеркалом в прихожей Alexander Tischler
453 024 ₽
x
1 к-т
=
453 024 ₽
Шкаф для одежды в прихожей Alexander Tischler
446 818 ₽
x
1 к-т
=
446 818 ₽
Шкаф над инсталляцией в гостевой ванной Alexander Tischler
42 665 ₽
x
1 к-т
=
42 665 ₽
Тумба под раковину и зеркало в гостевой ванной Alexander Tischler
123 143 ₽
x
1 к-т
=
123 143 ₽
Столешница из акрилового камня под раковину в гостевой ванной Alexander Tischler
78 750 ₽
x
1 к-т
=
78 750 ₽
Стеклянная дверь в гостевой ванной Alexander Tischler
178 500 ₽
x
1 к-т
=
178 500 ₽
Шкаф в гостевой спальне Alexander Tischler
389 885 ₽
x
1 к-т
=
389 885 ₽
Стеновая панель, туалетный столик и зеркало в спальне Alexander Tischler
374 456 ₽
x
1 к-т
=
374 456 ₽
Гардеробная Alexander Tischler
966 834 ₽
x
1 к-т
=
966 834 ₽
Шкаф над инсталляцией в ванной Alexander Tischler
56 892 ₽
x
1 к-т
=
56 892 ₽
Тумба под раковину с зеркалом в ванной Alexander Tischler
242 936 ₽
x
1 к-т
=
242 936 ₽
Столешница из акрилового камня под раковину в ванной Alexander Tischler
201 750 ₽
x
1 к-т
=
201 750 ₽
Диван в гостиной Unika
255 400 ₽
x
1 шт
=
255 400 ₽
Пуф в гостиной Unika
110 000 ₽
x
1 шт
=
110 000 ₽
Обеденный стол Unika
167 345 ₽
x
1 шт
=
167 345 ₽
Стул в кухне-гостиной Lulu Store
41 800 ₽
x
4 шт
=
167 200 ₽
Диван в детской Мастерфабрик
91 000 ₽
x
1 шт
=
91 000 ₽
Кровать в спальне Boca
337 400 ₽
x
1 шт
=
337 400 ₽
Рабочий стол в спальне Lulu Store
112 000 ₽
x
1 шт
=
112 000 ₽
Пуф в спальне Divan.ru
11 540 ₽
x
1 шт
=
11 540 ₽
Полка в спальне MyOry
26 970 ₽
x
1 шт
=
26 970 ₽
Электротовары
931 856 ₽
Светильник настенный в гостиной Vibia
144 913 ₽
x
1 шт
=
144 913 ₽
Светильник настенный в спальне LedsC4
25 922 ₽
x
1 шт
=
25 922 ₽
Светильник настольный в спальне Maytoni
8 990 ₽
x
1 шт
=
8 990 ₽
Потолочный светильник Maytoni
9 490 ₽
x
2 шт
=
18 980 ₽
Потолочный светильник в детской Maytoni
17 990 ₽
x
1 шт
=
17 990 ₽
Встраиваемый светильник Maytoni
1 100 ₽
x
57 шт
=
62 700 ₽
Лампочка светодиодная Maytoni
480 ₽
x
57 шт
=
27 360 ₽
Розетки и выключатели Schneider Electric
53 196 ₽
x
1 к-т
=
53 196 ₽
Светодиодная лента Arlight
676 ₽
x
20 шт
=
13 520 ₽
Терморегулятор теплого пола с датчиком Schneider Electric
8 400 ₽
x
2 шт
=
16 800 ₽
Терморегулятор теплого пола Devi
8 000 ₽
x
5 шт
=
40 000 ₽
Черновые материалы
501 485 ₽
x
1 к-т
=
501 485 ₽
Отопление, вентиляция и кондиционирование
1 170 699 ₽
Система кондиционирования Hisense
341 640 ₽
x
1 к-т
=
341 640 ₽
Приточная установка Colibri
405 979 ₽
x
1 к-т
=
405 979 ₽
Радиатор в кухне-гостиной Quadrum
54 989 ₽
x
1 шт
=
54 989 ₽
Радиатор в детской Quadrum
38 693 ₽
x
1 шт
=
38 693 ₽
Радиатор в спальне Quadrum
32 579 ₽
x
2 шт
=
65 158 ₽
Радиатор на лоджии Caldo
29 080 ₽
x
1 шт
=
29 080 ₽
Комплект подключения для радиаторов
8 620 ₽
x
4 шт
=
34 480 ₽
Радиатор в ванной Secado
39 640 ₽
x
1 шт
=
39 640 ₽
Черновые материалы
161 040 ₽
x
1 к-т
=
161 040 ₽
Сантехника и аксессуары
884 716 ₽
Кнопка измельчителя Omoikiri
5 088 ₽
x
1 шт
=
5 088 ₽
Кухонная мойка Omoikiri
25 088 ₽
x
1 шт
=
25 088 ₽
Смеситель со сменным шлангом на кухню Omoikiri
49 176 ₽
x
1 шт
=
49 176 ₽
Дозатор для моющего средства Omoikiri
6 188 ₽
x
1 шт
=
6 188 ₽
Полка в ванной MyOry
4 988 ₽
x
2 шт
=
9 976 ₽
Душевой поддон Allen Brau
22 700 ₽
x
1 шт
=
22 700 ₽
Полотенцедержатель в душевой MyOry
8 250 ₽
x
4 шт
=
33 000 ₽
Сифон Iddis
6 100 ₽
x
2 шт
=
12 200 ₽
Встраиваемая раковина в гостевой ванной Ceramicanova
9 430 ₽
x
1 шт
=
9 430 ₽
Донный клапан для раковины Ceramicanova
2 650 ₽
x
2 шт
=
5 300 ₽
Душевая система Allen Brau
25 680 ₽
x
2 шт
=
51 360 ₽
Полотенцедержатель в ванной Bemeta
4 069 ₽
x
1 шт
=
4 069 ₽
Смеситель для раковины Allen Brau
16 690 ₽
x
2 шт
=
33 380 ₽
Смеситель для ванны Allen Brau
24 947 ₽
x
1 шт
=
24 947 ₽
Ванна Excellent
48 825 ₽
x
1 шт
=
48 825 ₽
Комплектующие для ванны
23 436 ₽
x
1 к-т
=
23 436 ₽
Ерш для унитаза Bemeta
6 558 ₽
x
2 шт
=
13 116 ₽
Гигиенический душ Allen Brau
14 126 ₽
x
2 шт
=
28 252 ₽
Инсталляция для унитаза Tece
44 175 ₽
x
2 шт
=
88 350 ₽
Унитаз Allen Brau
27 860 ₽
x
2 шт
=
55 720 ₽
Черновые материалы
335 115 ₽
x
1 к-т
=
335 115 ₽
Работы
5 860 866 ₽
Управление строительно-монтажным работами
4 995 ₽
x
72 м2
=
359 640 ₽
Подготовительно-черновая отделка
1 588 433 ₽
x
1 к-т
=
1 588 433 ₽
Устройство водоснабжения, канализации, отопления, электроснабжения
253 308 ₽
x
1 к-т
=
253 308 ₽
Предчистовая отделка
1 577 802 ₽
x
1 к-т
=
1 577 802 ₽
Чистовая отделка
843 369 ₽
x
1 к-т
=
843 369 ₽
Чистовой монтаж водоснабжения, канализации, отопления, электроснабжения
303 160 ₽
x
1 к-т
=
303 160 ₽
Логистические расходы
250 000 ₽
x
1 к-т
=
250 000 ₽
Монтаж мебели
685 154 ₽
x
1 к-т
=
685 154 ₽
Итого
20 074 200 ₽
Команда
Карен Карапетян
Главный дизайнер
Анна Прохорова
Дизайнер
Константин Прохоров
Инженер
Олег Мокрушников
Инженер
Любовь Венерцева
Инженер
Екатерина Демкина
Руководитель по закупкам
Павел Прохоров
Руководитель по отделке
Евгений Бридня
Шеф-монтажник
Ольга Карапетян
Фотограф
Настасья Корбут
Стилист
Вера Минченкова
Автор текста
Готовый интерьер без забот
Заказчики не погружались в процесс ремонта, мы его полностью сделали сами, точно реализовав разработанный дизайн-проект. Если вы тоже хотите создать интерьер мечты легко, давайте работать! Оставьте заявку, мы рассчитаем предварительную стоимость производства вашего интерьера.

Производство интерьера от договора до въезда
занимает от 12 месяцев

Разработка дизайн-проекта интерьера
1-й квартал
Разработка дизайн-проекта мебели
Фиксация сметы
2-й квартал
Монтаж перегородок
Монтаж инженерных систем
3-й квартал
Монтаж потолков
Отделочные работы
Монтаж дверей
4-й квартал
Монтаж мебели
и техники
Клининг
Производство интерьера от договора до въезда
занимает от 12 месяцев
Проектные работы
1-й квартал
2-й квартал
3-й квартал
4-й квартал
Обмеры квартиры
Разработка планировочного решения
Разработка эскизного проекта интерьера
Разработка рабочего проекта интерьера
Разработка эскизного проекта мебели
Разработка рабочего проекта мебели
Проектирование вентиляции
Проектирование отопления
Проектирование водоснабжения
Проектирование канализации
Проектирование электроснабжения
Составление сметы
Авторский надзор
Отделочные работы
Демонтаж перегородок
Монтаж перегородок
Грунтование стен
Штукатурка стен
Звукоизоляция стен
Шпаклевание стен
Приклеивание стеклохолста на стены
Покраска стен
Приклеивание керамогранита на стены
Монтаж звуко-гидроизоляции на пол
Выравнивание полов стяжкой
Монтаж тёплых полов
Укладка керамогранита на пол
Грунтование пола
Укладка фанеры на пол
Укладка паркетной доски на пол
Монтаж пробкового компенсатора
Звукоизоляция потолка
Монтаж потолка из гипсокартона
Грунтование потолка
Шпаклевание потолка
Приклеивание стеклохолста на потолок
Покраска потолка
Клининг
Инженерные системы
Монтаж водоснабжения и канализации
Монтаж отопления
Монтаж электроснабжения
Монтаж приточной вентиляции
Монтаж кондиционеров
Окна и двери
Монтаж окон
Установка дверей
Мебель и техника
Производство мебели
Монтаж мебели
Установка техники
Состоим в профессиональных сообществах США и России
Лёгкий ремонт
Вы покупаете интерьер как готовый продукт. Ремонт не оторвёт вас от семьи, дел и отдыха. Товары, логистику и работы контролируем мы.
Один ответственный
Мы отвечаем за весь интерьер материально и решение возможных проблем берём на себя.
Неизменная цена
В конце дизайн-проекта фиксируем смету всего интерьера. В процессе реализации цена не поднимется.

Другие интерьеры

Все интерьеры