Квартира 119 м2 с двумя гардеробными и большой прачечной в Екатеринбурге: фотографии, видео и смета готового интерьера

Квартира 119 м<sup>2</sup> с двумя гардеробными и большой прачечной: фотографии, видео и смета готового интерьера

Этот интерьер мы сделали для семьи с девочкой-подростком. Хозяева этой квартиры хотели сделать просторную кухню-гостиную для совместных вечеров и спальню с гардеробной и санузлом.

Мы сделали дизайн-проект, зафиксировали бюджет и реализовали интерьер. Корпусную мебель спроектировали и изготовили специально для этой квартиры.

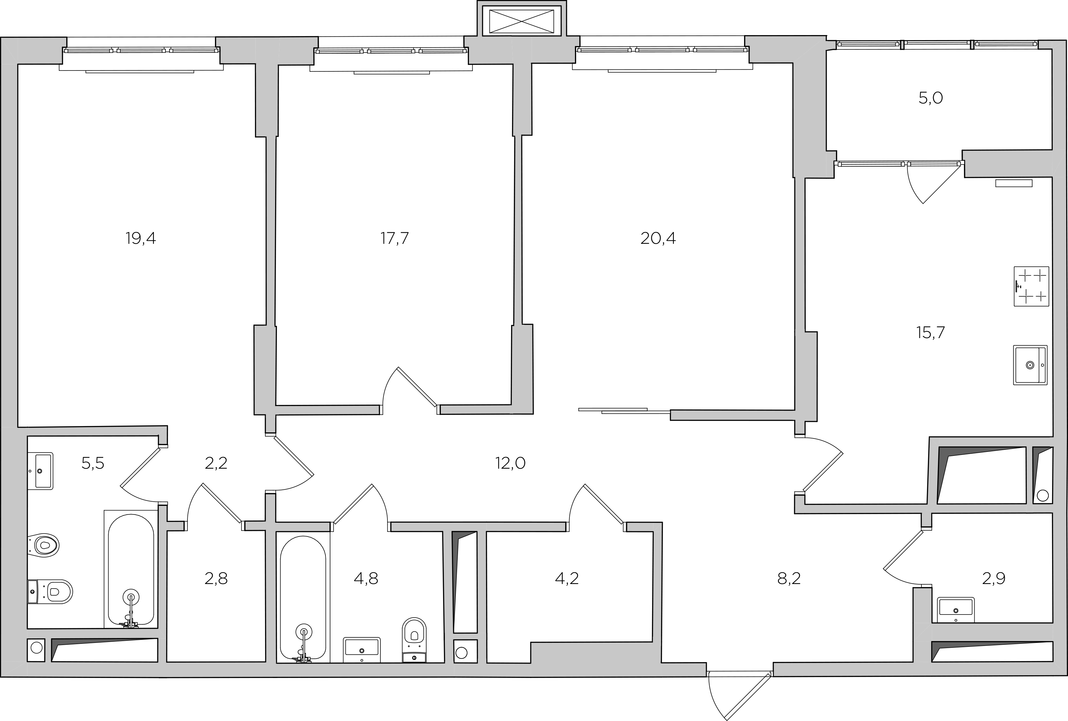
Площадь 119 м2
Тип Трехкомнатная квартира
Годы 2020–2021
Особенности Несущие пилоны между комнатами, большой вентиляционный короб на кухне, маленькая гардеробная при спальне
Было
Стало
Маленькая гардеробная при спальне
Несущий пилон между кухней и гостиной
Небольшая прачечная
Добавили проходную гардеробную при спальне родителей
Убрали перегородки между гостиной, кухней и коридором, получилось большое светлое пространство
Разместили рабочую поверхность за пилоном, из гостиной эту часть кухни не видно
Увеличили прачечную за счет прихожей
Светлая просторная кухня-гостиная

Мы демонтировали перегородки между прихожей, кухней и гостиной, получилась общая зона сложной формы. Из гостиной видно лаконичные кухонные пеналы, люстру и обеденный стол. Рабочая поверхность спрятана за несущим пилоном, который мы декорировали керамогранитом Rex под белый оникс. Чтобы придать динамики просторной гостиной, мы поставили изогнутый диван.

Объединенная кухня-гостиная с большим диваном

Телевизор, диван и стол расположены на одной оси. Смотреть фильмы по телевизору и общаться с домашними будет удобно из любой точки кухни-гостиной: сидя на диване, на его спинке или за столом.

Большая светлая кухня-гостиная
Кухня-гостиная с двумя окнами
Кухня в древесной отделке

Кухню мы разбавили предметами белого цвета: обеденный стол, духовой шкаф, верхние модули гарнитура, столешница и смеситель.

Кухонные пеналы от пола до потолка

Фасады всех пеналов мы сделали от пола до потолка, и из-за этого они выглядят монолитно.

О том, как мы устанавливаем встроенные холодильники без цоколя, рассказали на видео.

Угловая кухня с белой столешницей

Верхние модули мы спроектировали не до потолка, потому что над ними расположена решетка канального кондиционера. В самих модулях спрятана кухонная вытяжка. 

Угловая кухня со шпоном дуба
Светлая современная кухня

На этой кухне мы не использовали накладные ручки, чтобы гарнитур выглядел минималистично. Фасады можно открыть с помощью встроенных в корпус профиль-ручек.

Объединенная светлая кухня-гостиная

Благодаря объединению кухни и гостиной получилось общее большое пространство площадью почти 41 квадратный метр, в котором всей семье и гостям найдется место.

О решении объединить кухню и гостиную мы рассказали на видео.

Балкон с панорамным окном
Тумба с мягким сиденьем

Балкон мы оставили холодным, изготовили для него тумбу с мягким сиденьем и добавили небольшие светильники для чтения теплыми вечерами.

Большая прачечная с пеналом для стиральной машины
Большая прачечная с мойкой

Прачечную получилось увеличить за счет прихожей и кухни, теперь вентиляционный короб расположен внутри прачечной. Сделали открытые шкафы для хранения хозяйственных вещей и приборов, поставили пенал для стиральной и сушильной машин, за фасадом над ними — водонагреватель. Прачечная увеличилась с 2,9 до 6,9 квадратных метров, сейчас в ней удобно поставить гладильную доску.

Прихожая с большим шкафом для одежды

В прихожей мы четко отделили грязную зону, благодаря тому, что при расширении прачечной мы перенесли дверь, изначально она была у входа. Прихожую от прачечной отделяет большой шкаф для верхней одежды.

Гардеробная с полками для обуви

С другой стороны от прихожей — небольшая гардеробная для несезонных вещей и чемоданов. В корпусе одного из шкафов предусмотрели электрический и слаботочный щиты.

Зеркало с подсветкой в прихожей

В прихожей повесили зеркало от пола до потолка с мягкой подсветкой по всей длине.

Светлый коридор без плинтусов

Коридор мы сделали в два раза меньше за счет объединения с гостиной, изначально его площадь была 12 квадратных метров. Коридор ведет в спальни и ванные комнаты.

Гардеробная с зеркальными фасадами
Большая проходная гардеробная

В конце коридора расположена спальня родителей. При входе мы расположили проходную гардеробную с открытым и закрытым хранением. Зеркальные фасады шкафа сделали от пола до потолка.

Столешница со встроенной раковиной

Слева от гардеробной — большая душевая. Перед входом — зеркало до потолка с подсветкой и столешница со встроенной раковиной из искусственного камня.

Душевая со стеклянной перегородкой

Шкаф над инсталляцией немного выступает из плоскости стены, благодаря этому внутри больше места для хранения.

Спальня с большой кроватью и декоративной перегородкой

Спальня разделена на две части: рабочая и зона отдыха. Первая часть расположена ближе ко входу, здесь будут рабочий стол и кресло. Между столом и кроватью мы поставили декоративную перегородку, отделанную шпоном дуба, она состоит из двух деталей разной ширины, которые расположены под небольшим углом.

Подвесная прикроватная тумба

Мы спроектировали и сделали подвесные прикроватные тумбы и над каждой повесили лаконичный светильник.

Подвесной комод в спальне

Стена напротив кровати расположена между двумя выступающими пилонами. Мы сделали декоративную рамку с подсветкой, чтобы скрыть это. 

Декоративная рама с подсветкой и подвесной комод

Хозяевам был не нужен телевизор перед кроватью, и мы расположили там большой подвесной комод и зеркало.

Стеллаж в детской комнате

В детской рабочий стол стоит у входа в комнату. Его от кровати отделяет двусторонний стеллаж с открытым и закрытым хранением.

Большая кровать в детской комнате
Подвесной рабочий стол в детской
Тумба для отдыха под окном

У окна мы сделали дополнительную зону для отдыха и занятий — на уровне подоконника поставили широкую консоль. Одно из пожеланий хозяев было добавить в эту комнату радиатор с акварельным рисунком, мы нашли подходящий вариант и разместили его справа от окна.

Ванная комната со светящимся потолком
Подвесная тумба под раковиной в ванной

В ванной комнате сделали необычный светильник: светится здесь целый потолок. Его интенсивность можно контролировать с помощью кнопки-выключателя.

Мы показали на видео, как работает светящийся потолок.

?autoplay=1" title="YouTube video player" frameborder="0" allow="accelerometer; autoplay; clipboard-write; encrypted-media; gyroscope; picture-in-picture" allowfullscreen>

Мы записали видеообзор этого интерьера, где подробно рассказали о наших решениях. Это видео мы опубликовали и на YouTube.

Светлая кухня-гостиная
Объединенная кухня-гостиная
Кухня со шпоном дуба
Объединенная кухня-гостиная
Большая кухня-гостиная
Гостиная с диваном и телевизором
Гостиная с большим диваном
Тумба с мягким сиденьем на балконе
Балкон с креслом и светильником
Большая прачечная с мойкой
Большая прачечная со стиральной машиной
Гардеробная с полками для обуви
Ванная со светящимся потолком
Ванная со шкафом над инсталляцией
Детская с рабочим столом
Детская комната с большой кроватью
Детская со шкафом и стеллажом
Проходная гардеробная с зеркальными фасадами
Спальня с рабочим местом
Большая спальня с рабочим столом
Подвесной комод в спальне
Душевая с зеркалом с подсветкой
Душевая со стеклянной перегородкой

Таким мы презентовали интерьер хозяевам в финале дизайн-проекта. На этапе проектирования все предметы и материалы были выбраны. Тщательная проработка деталей позволила нам реализовать интерьер таким, каким мы его представили заказчикам.

Смета
Смета актуальна на август 2020 года. Не является публичной офертой.
Дизайн
1 371 125 ₽
Дизайн-проект интерьера
7 995 ₽
x
119 м2
=
951 405 ₽
Дизайн-проект мебели
7 495 ₽
x
56 п. м
=
419 720 ₽
Отделочные материалы
1 884 077 ₽
Паркетная доска ПМЦ
4 345 ₽
x
88 м2
=
382 360 ₽
Керамогранит на полу Italon
2 373 ₽
x
39 м2
=
92 547 ₽
Керамогранит на стенах Rex
5 625 ₽
x
32 м2
=
180 000 ₽
Керамогранит в душевой Italon
2 338 ₽
x
52 м2
=
121 576 ₽
Керамогранит в ванной Italon
2 344 ₽
x
26 м2
=
60 944 ₽
Тканевый натяжной потолок в ванной Clipso
19 950 ₽
x
1 шт.
=
19 950 ₽
Краска для стен белая Derufa
8 500 ₽
x
6 шт.
=
51 000 ₽
Краска для стен бежевая Derufa
3 500 ₽
x
1 шт.
=
3 500 ₽
Краска для потолка белая Derufa
7 500 ₽
x
3 шт.
=
22 500 ₽
Пробковый компенсатор
200 ₽
x
103 шт.
=
20 600 ₽
Масло для пробки
4 900 ₽
x
1 шт.
=
4 900 ₽
Черновые материалы
924 200 ₽
x
1 к-т.
=
924 200 ₽
Двери
420 891 ₽
Накладка на входную дверь Alexander Tischler
17 158 ₽
x
1 шт.
=
17 158 ₽
Дверь скрытого монтажа
50 440 ₽
x
7 шт.
=
353 080 ₽
Ручка Linea Cali
3 417 ₽
x
7 шт.
=
23 919 ₽
Завертка Linea Cali
2 019 ₽
x
5 шт.
=
10 095 ₽
Магнитный стопор Fantom
2 377 ₽
x
7 шт.
=
16 639 ₽
Мебель
4 191 112 ₽
Подвесная полка в прихожей Alexander Tischler
17 474 ₽
x
1 шт.
=
17 474 ₽
Зеркало с подсветкой в прихожей Alexander Tischler
23 253 ₽
x
1 шт.
=
23 253 ₽
Банкетка в прихожей Sancal
66 843 ₽
x
1 шт.
=
66 843 ₽
Шкаф для одежды в прихожей Alexander Tischler
126 597 ₽
x
1 шт.
=
126 597 ₽
Диван One Mebel
351 346 ₽
x
1 шт.
=
351 346 ₽
ТВ-тумба в гостиной Alexander Tischler
80 065 ₽
x
1 шт.
=
80 065 ₽
Обеденный стол Alexander Tischler
58 695 ₽
x
1 шт.
=
58 695 ₽
Стул La Redoute
24 180 ₽
x
4 шт.
=
96 720 ₽
198 969 ₽
x
1 шт.
=
198 969 ₽
Тумба под раковину в ванной Alexander Tischler
86 199 ₽
x
1 шт.
=
86 199 ₽
Зеркало с подсветкой в ванной Alexander Tischler
51 104 ₽
x
1 шт.
=
51 104 ₽
Шкаф над инсталляцией в ванной Alexander Tischler
63 551 ₽
x
1 шт.
=
63 551 ₽
Столешница со встроенной раковиной в душевой Alexander Tischler
75 353 ₽
x
1 шт.
=
75 353 ₽
Тумба под раковину в душевой Alexander Tischler
117 395 ₽
x
1 шт.
=
117 395 ₽
Зеркало с подсветкой в душевой Alexander Tischler
51 174 ₽
x
1 шт.
=
51 174 ₽
Шкаф над инсталляцией в душевой Alexander Tischler
21 851 ₽
x
1 шт.
=
21 851 ₽
Стеклянная дверь в душевой Alexander Tischler
64 279 ₽
x
1 шт.
=
64 279 ₽
Подвесная тумба с обрамлением ниши в спальне Alexander Tischler
149 134 ₽
x
1 шт.
=
149 134 ₽
Круглое зеркало в спальне Alexander Tischler
16 921 ₽
x
1 шт.
=
16 921 ₽
Декоративная перегородка в спальне Alexander Tischler
46 640 ₽
x
1 шт.
=
46 640 ₽
Рабочий стол в спальне Alexander Tischler
28 600 ₽
x
1 шт.
=
28 600 ₽
Кровать в спальне One Mebel
148 643 ₽
x
1 шт.
=
148 643 ₽
Прикроватная тумба в спальне Alexander Tischler
18 927 ₽
x
2 шт.
=
37 854 ₽
Рабочий стол с тумбой в детской Alexander Tischler
100 123 ₽
x
1 шт.
=
100 123 ₽
126 301 ₽
x
1 шт.
=
126 301 ₽
Кровать в детской One Mebel
132 965 ₽
x
1 шт.
=
132 965 ₽
Консоль вдоль окна в детской Alexander Tischler
95 177 ₽
x
1 шт.
=
95 177 ₽
Шкаф для одежды в детской Alexander Tischler
221 191 ₽
x
1 шт.
=
221 191 ₽
Кресло в детской Сalligaris
162 054 ₽
x
1 шт.
=
162 054 ₽
Рабочее кресло в спальне и детской La Forma
12 990 ₽
x
2 шт.
=
25 980 ₽
Тумба на балконе Alexander Tischler
82 980 ₽
x
1 шт.
=
82 980 ₽
Кресло на балконе La Forma
33 990 ₽
x
1 шт.
=
33 990 ₽
Столик на балконе La Forma
17 990 ₽
x
1 шт.
=
17 990 ₽
Электротовары
826 707 ₽
Электрический мат FinnMat
12 321 ₽
x
5 шт.
=
61 605 ₽
Бра на балконе Grok
17 544 ₽
x
2 шт.
=
35 088 ₽
Подвесной светильник в спальне Grok
19 991 ₽
x
2 шт.
=
39 982 ₽
Подвесной светильник над столом в спальне Leds C4
41 268 ₽
x
1 шт.
=
41 268 ₽
Подвесной светильник в детской Leds C4
17 930 ₽
x
2 шт.
=
35 860 ₽
Встраиваемый магнитный шинопровод в детской Faldi
4 875 ₽
x
2 шт.
=
9 750 ₽
Линейный трековый светильник в детской Faldi
4 680 ₽
x
2 шт.
=
9 360 ₽
Светильник цилиндрический в детской Faldi
3 850 ₽
x
4 шт.
=
15 400 ₽
Торшер в детской Grok
36 404 ₽
x
1 шт.
=
36 404 ₽
Магнитный шинопровод встраиваемый в кухне-гостиной Faldi
8 335 ₽
x
8 шт.
=
66 680 ₽
Магнитный трековый светильник в кухне-гостиной Faldi
4 680 ₽
x
12 шт.
=
56 160 ₽
Трековый светильник цилиндрический в кухне-гостиной Faldi
3 850 ₽
x
17 шт.
=
65 450 ₽
Точечный гипсовый светильник в ванной и спальне Stellanova
1 800 ₽
x
9 шт.
=
16 200 ₽
Точечный гипсовый светильник в кухне-гостиной и спальне Stellanova
3 300 ₽
x
8 шт.
=
26 400 ₽
Подвесной светильник в кухне-гостиной Leds C4
35 018 ₽
x
1 шт.
=
35 018 ₽
Накладной светильник Faldi
5 760 ₽
x
9 шт.
=
51 840 ₽
Встраиваемый профиль на балконе Arlight
9 409 ₽
x
3 шт.
=
28 227 ₽
Накладной светильник Arlight
1 102 ₽
x
18 шт.
=
19 836 ₽
Профиль для подсветки натяжного потолка в ванной
1 210 ₽
x
24 шт.
=
29 040 ₽
Влагозащищенный профиль в душевой
2 360 ₽
x
1 шт.
=
2 360 ₽
Профиль для подсветки ниш
1 490 ₽
x
10 шт.
=
14 900 ₽
Профиль для подсветки мебели
695 ₽
x
12 шт.
=
8 340 ₽
Профиль для подсветки зеркала в ванной
500 ₽
x
3 шт.
=
1 500 ₽
Светодиодная лента Тип 1
605 ₽
x
60 шт.
=
36 300 ₽
Светодиодная лента Тип 2
1 010 ₽
x
45 шт.
=
45 450 ₽
Розетки и выключатели Schneider Electric
38 289 ₽
x
1 к-т.
=
38 289 ₽
Вентиляция и кондиционирование
394 047 ₽
Внутренний блок кондиционера Hisense
23 220 ₽
x
2 шт.
=
46 440 ₽
Внутренний канальный блок кондиционера Hisense
24 400 ₽
x
1 шт.
=
24 400 ₽
Наружный блок кондиционера Hisense
105 493 ₽
x
1 шт.
=
105 493 ₽
Крепежные и расходные материалы
217 714 ₽
x
1 к-т.
=
217 714 ₽
Сантехника
963 763 ₽
Мойка на кухне Blanco
21 900 ₽
x
1 шт.
=
21 900 ₽
Смеситель на кухне Blanco
22 300 ₽
x
1 шт.
=
22 300 ₽
Ванна Villeroy & Boch
71 315 ₽
x
1 шт.
=
71 315 ₽
Полотенцесушитель в ванной Terma
35 975 ₽
x
1 шт.
=
35 975 ₽
Раковина в ванной Villeroy & Boch
31 077 ₽
x
1 шт.
=
31 077 ₽
Смеситель в ванной Noken
29 192 ₽
x
1 шт.
=
29 192 ₽
Душевая система в ванной Noken
136 776 ₽
x
1 шт.
=
136 776 ₽
Унитаз с инсталляцией в ванной Grohe
55 680 ₽
x
1 шт.
=
55 680 ₽
Зеркало косметическое в ванной Hansgrohe
13 081 ₽
x
1 шт.
=
13 081 ₽
Душевая система в душевой Noken
113 980 ₽
x
1 шт.
=
113 980 ₽
Унитаз с инсталляцией в душевой Grohe
184 600 ₽
x
1 шт.
=
184 600 ₽
Полотенцесушитель в душевой Terma
30 155 ₽
x
1 шт.
=
30 155 ₽
Смеситель для раковины в душевой Noken
41 820 ₽
x
1 шт.
=
41 820 ₽
Трап в душевой Тесе
37 193 ₽
x
1 шт.
=
37 193 ₽
Раковина в прачечной Ideal Standart
18 621 ₽
x
1 шт.
=
18 621 ₽
Смеситель в прачечной Hansgrohe
19 438 ₽
x
1 шт.
=
19 438 ₽
Гигиенический душ в прачечной Noken
13 612 ₽
x
1 шт.
=
13 612 ₽
Датчик протечки Neptun
24 767 ₽
x
1 к-т.
=
24 767 ₽
Радиатор в детской Varmann
62 281 ₽
x
1 шт.
=
62 281 ₽
Работы
3 507 757 ₽
Управление строительно-монтажным работами
4 995 ₽
x
119 м2
=
594 405 ₽
Строительно-монтажные работы
2 581 098 ₽
x
1 шт.
=
2 581 098 ₽
Логистические расходы
38 600 ₽
x
1 шт.
=
38 600 ₽
Монтаж мебели
293 654 ₽
x
1 шт.
=
293 654 ₽
Итого
13 559 479 ₽
Команда
Карен Карапетян
Главный дизайнер
Юлия Убоженко
Дизайнер
Олег Мокрушников
Инженер
Константин Прохоров
Инженер
Екатерина Демкина
Руководитель по закупкам
Павел Прохоров
Руководитель по отделке
Евгений Бридня
Шеф-монтажник
AtelierDECO
Студия декорирования
Аскар Кабжан
Фотограф
Вера Минченкова
Автор текста
Дизайн интерьера и ремонт легко
Обращаясь к нам, вы покупаете готовый интерьер: мы отвечаем за все от дизайн-проекта до развески штор, вам не придется ни о чем беспокоиться. Если вы хотите воплотить интерьер мечты легко, давайте работать! Оставьте заявку, мы рассчитаем предварительную стоимость производства вашего интерьера.

Производство интерьера от договора до въезда
занимает от 12 месяцев

Разработка дизайн-проекта интерьера
1-й квартал
Разработка дизайн-проекта мебели
Фиксация сметы
2-й квартал
Монтаж перегородок
Монтаж инженерных систем
3-й квартал
Монтаж потолков
Отделочные работы
Монтаж дверей
4-й квартал
Монтаж мебели
и техники
Клининг
Производство интерьера от договора до въезда
занимает от 12 месяцев
Проектные работы
1-й квартал
2-й квартал
3-й квартал
4-й квартал
Обмеры квартиры
Разработка планировочного решения
Разработка эскизного проекта интерьера
Разработка рабочего проекта интерьера
Разработка эскизного проекта мебели
Разработка рабочего проекта мебели
Проектирование вентиляции
Проектирование отопления
Проектирование водоснабжения
Проектирование канализации
Проектирование электроснабжения
Составление сметы
Авторский надзор
Отделочные работы
Демонтаж перегородок
Монтаж перегородок
Грунтование стен
Штукатурка стен
Звукоизоляция стен
Шпаклевание стен
Приклеивание стеклохолста на стены
Покраска стен
Приклеивание керамогранита на стены
Монтаж звуко-гидроизоляции на пол
Выравнивание полов стяжкой
Монтаж тёплых полов
Укладка керамогранита на пол
Грунтование пола
Укладка фанеры на пол
Укладка паркетной доски на пол
Монтаж пробкового компенсатора
Звукоизоляция потолка
Монтаж потолка из гипсокартона
Грунтование потолка
Шпаклевание потолка
Приклеивание стеклохолста на потолок
Покраска потолка
Клининг
Инженерные системы
Монтаж водоснабжения и канализации
Монтаж отопления
Монтаж электроснабжения
Монтаж приточной вентиляции
Монтаж кондиционеров
Окна и двери
Монтаж окон
Установка дверей
Мебель и техника
Производство мебели
Монтаж мебели
Установка техники
Состоим в профессиональных сообществах США и России
Лёгкий ремонт
Вы покупаете интерьер как готовый продукт. Ремонт не оторвёт вас от семьи, дел и отдыха. Товары, логистику и работы контролируем мы.
Один ответственный
Мы отвечаем за весь интерьер материально и решение возможных проблем берём на себя.
Неизменная цена
В конце дизайн-проекта фиксируем смету всего интерьера. В процессе реализации цена не поднимется.

Другие интерьеры

Все интерьеры