Глянцевая квартира 59 м2 с видом на Москву: фотографии, видео и смета готового интерьера

Глянцевая квартира 59 м<sup>2</sup> с видом на Москву: фотографии, видео и смета готового интерьера

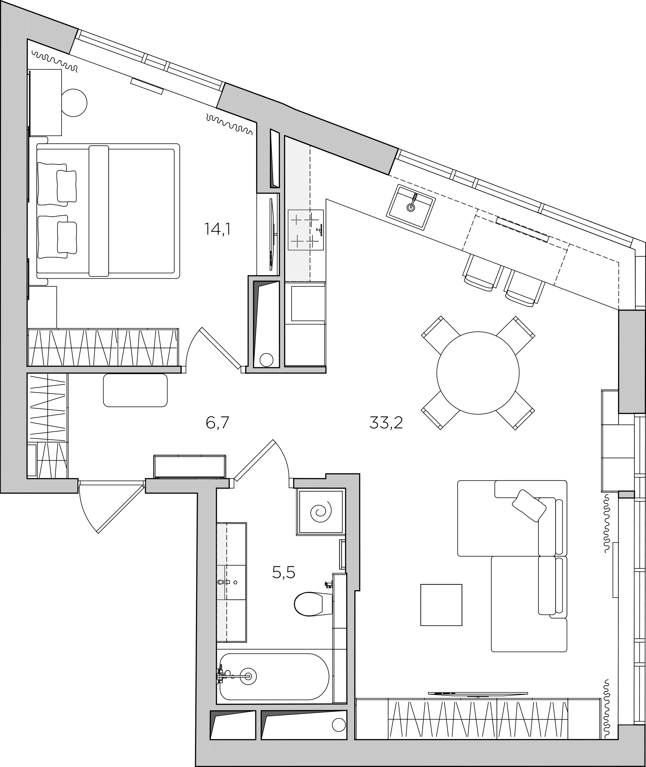
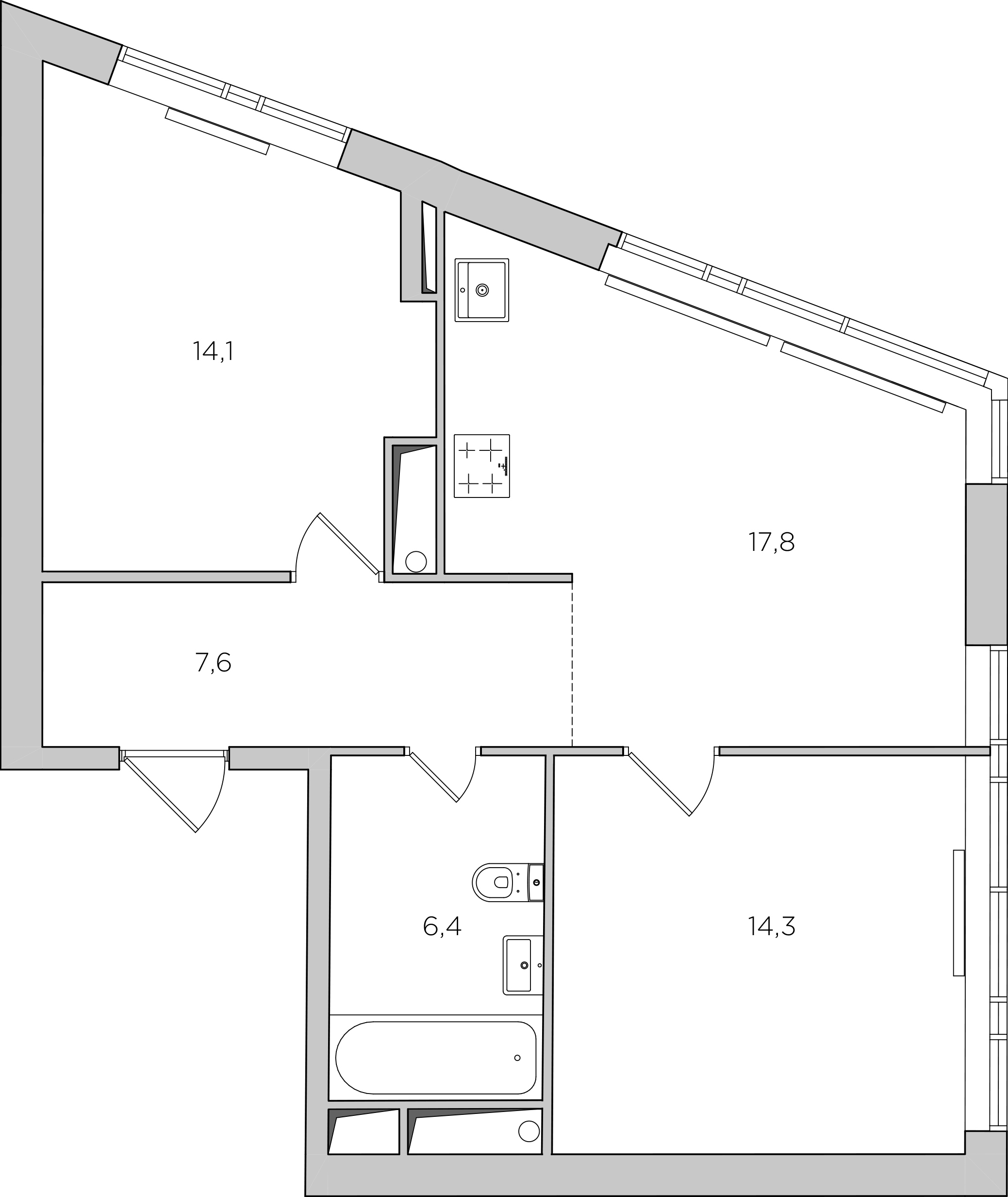
Это необычная квартира с острыми углами и большими окнами на высоком этаже, основной задачей для нас было сделать место для наблюдения за городом. Планировка с углами в 70 градусов с точки зрения компоновки неудачная, но у нас получилось максимально использовать пространство: есть и хранение, и место для отдыха, и рабочий стол.

Еще в квартире не открываются окна, застройщик сделал только небольшие проветриватели под потолком. Чтобы в квартире был свежий воздух, мы разработали проект вентиляции и кондиционирования.

Мы сделали дизайн-проект, зафиксировали бюджет и реализовали интерьер. Корпусную мебель спроектировали и изготовили специально для этой квартиры. Также рассказали про этот интерьер в журнале MyDecor.

Площадь 59 м2
Тип Двухкомнатная квартира
Годы 2020–2022
Особенности Непрямоугольная планировка, в квартире не открываются окна, застройщик предполагал только небольшие проветриватели под потолком
Было
Стало
Непрямоугольная планировка забирает полезную площадь, в непрямых углах сложно что-либо разместить
Из больших окон открывается вид на город
Перегородка дробит пространство на небольшие кухню и гостиную
В нише между коробом и пилоном поставили телевизор и тумбу
Сделали столешницу вдоль окна, добавили место для работы и завтраков
Стиральную и сушильную машины убрали в пенал, чтобы дизайн ванной был цельным
Поставили диван так, чтобы сидящим было удобно и смотреть телевизор, и общаться с теми, кто на кухне
Телевизор повесили прямо на фальшь-фасад шкафа, чтобы не терять места для хранения одежды
Слэб кварцита Патагония с подсветкой
Слэб кварцита Патагония в кухне-гостиной

Центр кухни-гостинной — слэб кварцита Патагония с полупрозрачными слоями кварца, за ним светодиодная подсветка, вечером камень превращается в эффектный светильник. В цветах кварцита выполнена и вся комната: бронзовые фасады шкафов, керамогранит с текстурой мрамора Atlas Concorde и белый глянцевый кухонный гарнитур.


В прихожей потолок опустили на 40 см, за ним спрятана система вентиляции и кондиционирования, воздух поступает с технического балкона. В прихожей в шкафу с зеркальными фасадами будет храниться верхняя одежда, на его задней стенке расположены люки доступа к электрическому и слаботочному щитам.

Белая кухня с глянцевыми фасадами

Идеальной глянцевости на фасадах мы добились за счет осветленного глянцевого стекла. Большинство фасадов открываются от нажатия, холодильник можно открыть с помощью минималистичной профиль-ручки.

Белая кухня со стеклянными фасадами

Над формой кухни мы работали, отталкиваясь от желания хозяйки сделать у окна место для наблюдения за городом. Мойку расположили напротив окна, а столешница переходит в рабочий стол и место для завтраков.

Мы подробно показали устройство этой кухни на видео.

Глянцевая белая кухня
Шкаф с телевизором в гостиной
Шкаф со стеклянными фасадами в гостиной

Одна из планировочных задач кухни-гостиной — повесить телевизор так, чтобы его было видно с любого ракурса. Вместе с этим мы понимали, что надо организовать как можно больше мест для хранения. В итоге телевизор мы повесили на фальшь-фасад шкафа. За телевизором — место для развески несезонной одежды.

Шкаф с телевизором и со стеклянными фасадами в гостиной

О том, как все устроено внутри шкафа, мы рассказали на видео.

Шкаф для посуды со стеклянными фасадами
Шкаф для посуды и декора с подсветкой

Застройщик предполагал раздельные кухню и гостиную, мы их объединили и не стали никак отделять от прихожей, уже у входной двери открывается вид на кухню-гостиную: былые стол и кресла, шкаф для посуды с фасадами из матового бронзового стекла.

Шкаф в этом месте стоит не случайно, за ним застройщик оставил глухую часть остекления. Мы закрыли ее шкафом, тем самым добавили места для хранения посуды и декора.

Про этот шкаф, который скрывает глухую часть остекления, мы рассказали на видео.

Тумба с зеркалом в прихожей
Тумба в прихожей с рифлеными фасадами
Тумба и зеркало в прихожей
Шкаф для одежды в прихожей

Мы отошли от классического дизайна интерьера, с которым к нам пришла заказчица: отказались от строгой симметрии и декора стен. Несмотря на асимметричность и даже «случайную» разбивку зеркальных фасадов дизайн получился цельным по цветам и текстурам: каждая деталь интерьера повторяется.

Подробнее про организацию прихожей мы рассказали на видео.

Косметический столик и бронзовые зеркала

Спальня в этой квартире не прямоугольная, как и кухня-гостиная. Углы спальни повторяются в навесном потолке, за которым спрятаны вентиляционные решетки и подсветка.

Косметический столик с ящиками в спальне
Прикроватная тумба бежевого цвета

Асимметричность комнаты поддерживается крупными зеркалами над изголовьем. Рядом с ними — подвесной косметический столик, а с другой стороны кровати над тумбой — светильники из латуни.

Шкаф для одежды со стеклянными фасадами
Тумба под телевизор

В этом интерьере мы сочетали белый цвет с бронзовыми и латунными элементами. Эти цвета соединяются в мозаике в ванной комнате из мрамора и алюминия под латунь.

Тумба под раковину в ванной
Пенал для стиральной машины в ванной

В ванной мы поставили пенал со стиральной и сушильной машинами, закрыли их фасадами, выполненными так же, как и кухня: основа из МДФ в белой эмали, а сверху — осветленное глянцевое стекло.

Ванная комната с раковиной из искусственного камня
Зеркальный шкаф в ванной

Дополнительные места для хранения есть в тумбе под раковиной, за зеркалом и над инсталляцией. Ребристые фасады повторяют фасады тумбы в прихожей, на обоих — ручки из текстильных петель. Для этой ванной мы решили использовать шторку из уличной водоотталкивающей ткани.

Подробно показали ванную и рассказали обо всех решениях в ней на видео.

?autoplay=1" title="YouTube video player" frameborder="0" allow="accelerometer; autoplay; clipboard-write; encrypted-media; gyroscope; picture-in-picture" allowfullscreen>

Мы сняли видеообзор этого интерьера, где подробно рассказали про все наши планировочные и интерьерные решения. Это видео мы опубликовали и на YouTube.

Кухня-гостиная с диваном и шкафом для посуды
Кухня-гостиная с большими окнами
Кухня-гостиная с белой кухней и диваном
Современная белая кухня-гостиная
Современная кухня-гостиная
Белая кухня со стеклянными фасадами
Белая кухня с белой столешницей
Тумба и шкаф для одежды в прихожей
Тумба и зеркало в прихожей
Современная светлая спальня
Прикроватная тумба в спальне
Белый шкаф для одежды в спальне
Тумба под раковину со столешницей
Пенал для стиральной машины в ванной
Ванная комната с мебелью

Таким мы презентовали интерьер на этапе проектирования: все предметы и материалы были выбраны. Тщательная проработка деталей позволила нам реализовать интерьер таким, каким мы его представили хозяйке.

Смета
Смета актуальна на декабрь 2020 года. Не является публичной офертой.
Дизайн
741 525 ₽
Дизайн-проект интерьера
7 995 ₽
x
59 м2
=
471 705 ₽
Дизайн-проект мебели
7 495 ₽
x
36 п. м
=
269 820 ₽
Отделочные материалы
2 485 369 ₽
Керамогранит Atlas Concorde
5 950 ₽
x
117 м2
=
696 150 ₽
Мозаика Dune
27 623 ₽
x
8 м2
=
220 984 ₽
Слэб кварцита Патагония
578 904 ₽
x
1 шт.
=
578 904 ₽
Краска для стен белая Derufa
8 500 ₽
x
2 шт.
=
17 000 ₽
Краска для потолка белая Derufa
7 500 ₽
x
2 шт.
=
15 000 ₽
Черновые материалы
957 331 ₽
x
1 шт.
=
957 331 ₽
Двери
397 444 ₽
Входная дверь Ягуар
283 400 ₽
x
1 шт.
=
283 400 ₽
Межкомнатные двери Union
54 487 ₽
x
2 шт.
=
108 974 ₽
Магнитный стопор Fantom
2 535 ₽
x
2 шт.
=
5 070 ₽
Мебель
5 339 190 ₽
Шкаф в прихожей Alexander Tischler
227 399 ₽
x
1 шт.
=
227 399 ₽
Подвесная тумба в прихожей Alexander Tischler
83 067 ₽
x
1 шт.
=
83 067 ₽
Зеркало в прихожей Alexander Tischler
34 003 ₽
x
1 шт.
=
34 003 ₽
Кухня со столешницей Alexander Tischler
1 735 750 ₽
x
1 шт.
=
1 735 750 ₽
Обеденный стол Rimadesio
180 256 ₽
x
1 шт.
=
180 256 ₽
Cтул Premier Group
18 490 ₽
x
4 шт.
=
73 960 ₽
Стул полубарный Premiere Group
19 740 ₽
x
2 шт.
=
39 480 ₽
Шкаф для посуды в кухне-гостиной Alexander Tischler
282 447 ₽
x
1 шт.
=
282 447 ₽
Диван One Mebel
227 468 ₽
x
1 шт.
=
227 468 ₽
Шкаф в кухне-гостиной Alexander Tischler
580 224 ₽
x
1 шт.
=
580 224 ₽
Подоконники из стекла Alexander Tischler
43 111 ₽
x
2 к-т
=
86 222 ₽
Шкаф в спальне Alexander Tischler
390 650 ₽
x
1 шт.
=
390 650 ₽
Подвесная тумба в спальне Alexander Tischler
62 905 ₽
x
1 шт.
=
62 905 ₽
Кровать One Mebel
171 258 ₽
x
1 шт.
=
171 258 ₽
Пуф в спальне One Mebel
17 615 ₽
x
1 шт.
=
17 615 ₽
Туалетный столик в спальне Alexander Tischler
82 447 ₽
x
1 шт.
=
82 447 ₽
Зеркалo в спальне Alexander Tischler
42 048 ₽
x
3 шт.
=
126 144 ₽
ТВ-тумба в спальне Alexander Tischler
171 990 ₽
x
1 шт.
=
171 990 ₽
Хозяйственный шкаф в ванной Alexander Tischler
160 651 ₽
x
1 шт.
=
160 651 ₽
Шкаф над инсталляцией Alexander Tischler
147 312 ₽
x
1 шт.
=
147 312 ₽
Тумба с раковиной из искусственного камня Alexander Tischler
296 322 ₽
x
1 шт.
=
296 322 ₽
Зеркальный шкаф в ванной Alexander Tischler
161 620 ₽
x
1 шт.
=
161 620 ₽
Электротовары
479 225 ₽
Нагревательный мат FinnMat
13 105 ₽
x
6 шт.
=
78 630 ₽
Магнитный шинопровод встраиваемый Faldi
4 600 ₽
x
5 шт.
=
23 000 ₽
Линейный трековый светильник Faldi
4 680 ₽
x
6 шт.
=
28 080 ₽
Цилиндрический трековый светильник Faldi
3 850 ₽
x
7 шт.
=
26 950 ₽
Подвесной светильник в кухне-гостиной Grok
68 888 ₽
x
1 шт.
=
68 888 ₽
Гипсовый светильник Stellanova
1 800 ₽
x
16 шт.
=
28 800 ₽
Подвесной светильник в спальне Grok
18 184 ₽
x
2 шт.
=
36 368 ₽
Профиль для подсветки зеркал Bend
1 210 ₽
x
8 шт.
=
9 680 ₽
Профиль для подсветки слэба
930 ₽
x
35 шт.
=
32 550 ₽
Светодиодная лента Arlight
605 ₽
x
30 шт.
=
18 150 ₽
Светодиодная лента для подсветки слэба Arlight
1 010 ₽
x
65 шт.
=
65 650 ₽
Светодиодная лента для подсветки мебели Arlight
320 ₽
x
30 шт.
=
9 600 ₽
Розетки и выключатели Schneider Electric
52 879 ₽
x
1 к-т.
=
52 879 ₽
Вентиляция и кондиционирование
579 313 ₽
Приточная установка Salda
56 468 ₽
x
1 шт.
=
56 468 ₽
Внутренний блок LG Тип 1
55 549 ₽
x
1 шт.
=
55 549 ₽
Внутренний блок LG Тип 2
46 850 ₽
x
1 шт.
=
46 850 ₽
Наружный блок LG
144 008 ₽
x
1 шт.
=
144 008 ₽
Крепежные и расходные материалы
276 438 ₽
x
1 к-т.
=
276 438 ₽
Сантехника
377 040 ₽
Мойка на кухне Omoikiri
36 188 ₽
x
1 шт.
=
36 188 ₽
Смеситель на кухне Omoikiri
31 388 ₽
x
1 шт.
=
31 388 ₽
Унитаз Villeroy & Boch
34 520 ₽
x
1 шт.
=
34 520 ₽
Инсталляция Tece
36 148 ₽
x
1 шт.
=
36 148 ₽
Ванна Duravit
70 291 ₽
x
1 шт.
=
70 291 ₽
Cмеситель для ванны Metris
15 531 ₽
x
1 шт.
=
15 531 ₽
Смеситель для раковины Metris
8 160 ₽
x
1 шт.
=
8 160 ₽
Полотенцесушитель Terma
31 432 ₽
x
1 шт.
=
31 432 ₽
Душевая стойка Crometta
28 018 ₽
x
1 шт.
=
28 018 ₽
Гигиенический душ Bossini
35 821 ₽
x
1 шт.
=
35 821 ₽
Радиатор в спальне Royal Thermo
6 660 ₽
x
1 шт.
=
6 660 ₽
Радиатор в кухне-гостиной Royal Thermo
11 100 ₽
x
2 шт.
=
22 200 ₽
Система контроля протечки Neptun
20 683 ₽
x
1 к-т.
=
20 683 ₽
Работы
3 393 612 ₽
Управление строительно-монтажными работами
4 995 ₽
x
59 м2
=
294 705 ₽
Строительно-монтажные работы
1 935 961 ₽
x
1 шт.
=
1 935 961 ₽
Логистические расходы
145 000 ₽
x
1 шт.
=
145 000 ₽
Монтаж мебели
682 951 ₽
x
1 шт.
=
682 951 ₽
Изготовление и монтаж кварцита Патагония
334 995 ₽
x
1 шт.
=
334 995 ₽
Итого
13 792 718 ₽
Команда
Карен Карапетян
Главный дизайнер
Юлия Убоженко
Дизайнер
Олег Мокрушников
Инженер
Константин Прохоров
Инженер
Екатерина Демкина
Руководитель по закупкам
Павел Прохоров
Руководитель по отделке
Алексей Степанов
Шеф-монтажник
Настасья Корбут
Стилист
Ярослав Лукьянченко
Фотограф
Вера Минченкова
Автор текста
Готовый интерьер, не отвлекаясь от работы и семьи
Мы готовим дизайн-проект удаленно, а наш ремонт не требует постоянного контроля клиентов, что было особенно важно при работе над этим интерьером. Мы отправляли заказчице фотографии и видео прогресса каждые две недели, и она не отвлекалась от работы и семьи. Если вы тоже хотите воплотить интерьер мечты легко, давайте работать! Оставьте заявку, мы рассчитаем предварительную стоимость производства вашего интерьера.

Производство интерьера от договора до въезда
занимает от 12 месяцев

Разработка дизайн-проекта интерьера
1-й квартал
Разработка дизайн-проекта мебели
Фиксация сметы
2-й квартал
Монтаж перегородок
Монтаж инженерных систем
3-й квартал
Монтаж потолков
Отделочные работы
Монтаж дверей
4-й квартал
Монтаж мебели
и техники
Клининг
Производство интерьера от договора до въезда
занимает от 12 месяцев
Проектные работы
1-й квартал
2-й квартал
3-й квартал
4-й квартал
Обмеры квартиры
Разработка планировочного решения
Разработка эскизного проекта интерьера
Разработка рабочего проекта интерьера
Разработка эскизного проекта мебели
Разработка рабочего проекта мебели
Проектирование вентиляции
Проектирование отопления
Проектирование водоснабжения
Проектирование канализации
Проектирование электроснабжения
Составление сметы
Авторский надзор
Отделочные работы
Демонтаж перегородок
Монтаж перегородок
Грунтование стен
Штукатурка стен
Звукоизоляция стен
Шпаклевание стен
Приклеивание стеклохолста на стены
Покраска стен
Приклеивание керамогранита на стены
Монтаж звуко-гидроизоляции на пол
Выравнивание полов стяжкой
Монтаж тёплых полов
Укладка керамогранита на пол
Грунтование пола
Укладка фанеры на пол
Укладка паркетной доски на пол
Монтаж пробкового компенсатора
Звукоизоляция потолка
Монтаж потолка из гипсокартона
Грунтование потолка
Шпаклевание потолка
Приклеивание стеклохолста на потолок
Покраска потолка
Клининг
Инженерные системы
Монтаж водоснабжения и канализации
Монтаж отопления
Монтаж электроснабжения
Монтаж приточной вентиляции
Монтаж кондиционеров
Окна и двери
Монтаж окон
Установка дверей
Мебель и техника
Производство мебели
Монтаж мебели
Установка техники
Состоим в профессиональных сообществах США и России
Лёгкий ремонт
Вы покупаете интерьер как готовый продукт. Ремонт не оторвёт вас от семьи, дел и отдыха. Товары, логистику и работы контролируем мы.
Один ответственный
Мы отвечаем за весь интерьер материально и решение возможных проблем берём на себя.
Неизменная цена
В конце дизайн-проекта фиксируем смету всего интерьера. В процессе реализации цена не поднимется.

Другие интерьеры

Все интерьеры