Нежная квартира с кабинетом для девушки в Екатеринбурге: фотографии, видео и смета готового интерьера

Нежная квартира с кабинетом для девушки: фотографии, видео и смета готового интерьера

Заказчики этого интерьера — наши давние клиенты. В этот раз они попросили нас поработать с квартирой для их дочери. Мы подготовили нежный интерьер, который поможет будущей хозяйке не только с комфортом отдыхать, но и продуктивно работать. 

Мы сделали дизайн-проект и ремонт этого интерьера. Подготовили смету и зафиксировали стоимость реализации еще на этапе проектирования, и в процессе ремонта сумма не изменилась.

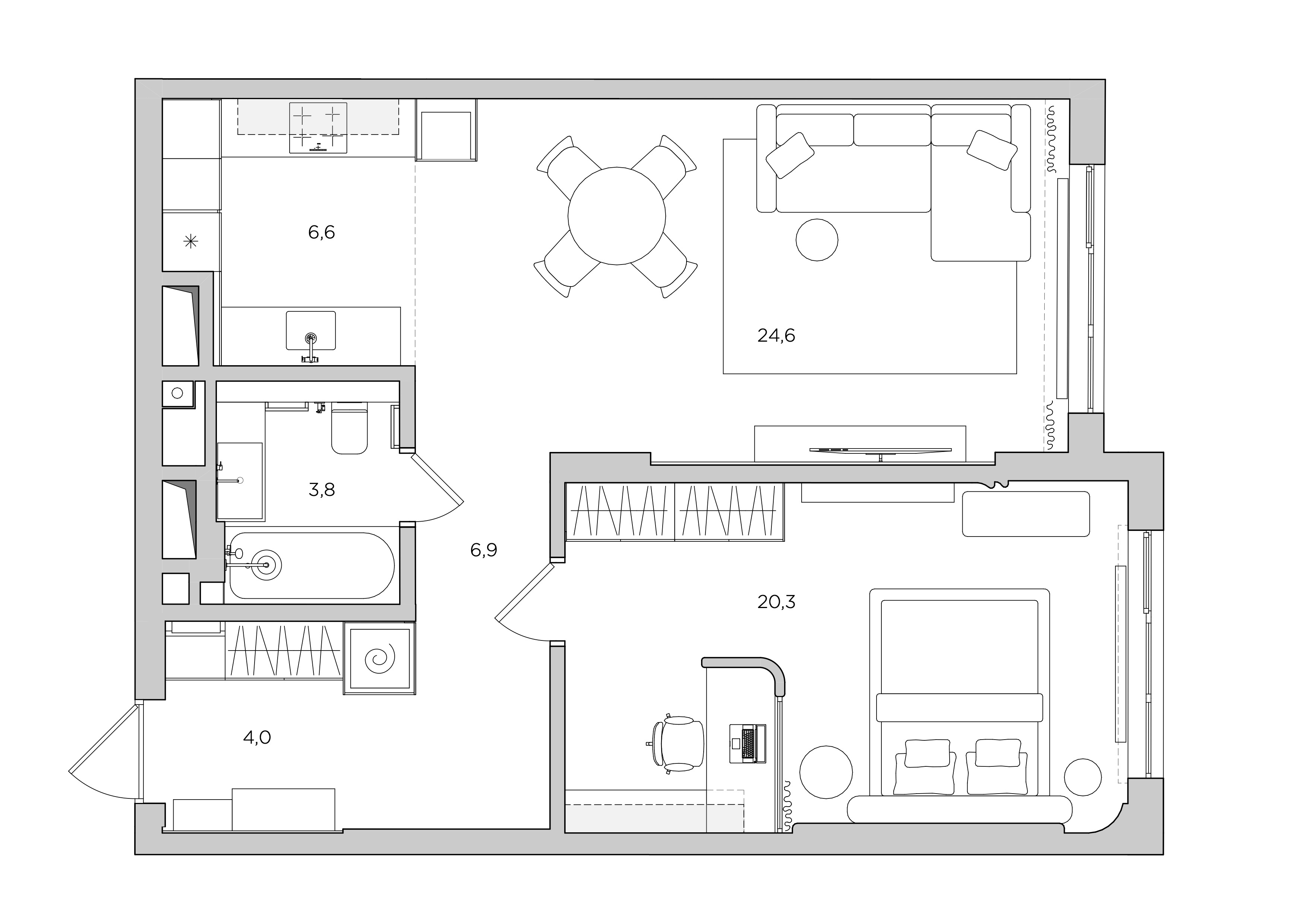
Площадь 66 м2
Тип Однокомнатная квартира
Годы 2024–2026
Особенности Несущая балка, просторная кухня-гостиная с узкой нишей, несущие пилоны
Было
Стало
Узкая кухня-ниша
Несущая балка под потолком коридора и ванной
Несущие пилоны в гостиной
Организовали кабинет в спальне
Убрали перегородки между коридором и кухней-гостиной
Расположили кухонный гарнитур по обеим сторонам ниши
Дизайн кухни-гостиной

Сейчас часто встречаются планировки, в которых зона для кухни заметно уже, чем остальная гостиная, такая конфигурация и в этой квартире. Исходя из особенности планировки, мы спроектировали кухню по всем трем сторонам ниши. К гостиной обращены лаконичные панели, которые скрывают вентиляционный короб, и фасады с холодильником и полками.

Дизайн кухни фото
Дизайн кухни в современном стиле

Нижние модули кухонного гарнитура мы сделали симметричными и минималистичными: столешницу и невысокий фартук подобрали под цвет фасадов. 

Дизайн кухни 2026
Дизайн кухни с холодильником

На этой кухне мы «оторвали» столешницу от корпуса с помощью того, что продлили профиль-ручку на торец модуля. Так столешница из кварцевого камня кажется еще тоньше и легче. 

Интерьер кухни фото

Сделать фартук не во всю стену, а высотой всего 25 сантиметров — наше намеренное решение, так кухня стала больше похожа на аккуратный комод, что как нельзя лучше подходит этому деликатному интерьеру.

Интерьер кухни-гостиной

Из-за вентиляционного короба, занимающего часть ниши, пенал с духовым шкафом мы расположили отдельно. По его границе мы состыковали керамогранит с нейтральной текстурой и медово-теплую инженерную доску из дуба.

Дизайн столовой
Интерьер гостиной фото

Обеденный стол мы выбрали лаконичной формы, на его столешнице — деликатная мраморная текстура. В пару к нему мы подобрали круглый светильник, источник направлен вверх — в белую пластину, от нее пространство заполняется мягким отраженным светом.

Интерьер гостиной в современном стиле
Бежевый интерьер

В гостиной мы поставили большой раскладной диван — на тот случай, если у хозяйки захотят остаться на ночь друзья. Напротив дивана — подвесная тумба с минималистичными фасадами.

ТВ зона в гостиной

Мы обратились к художнику, чтобы добавить разнообразия большой плоскости стены за телевизором. Вместе мы подобрали оттенок краски чуть темнее стены, и с помощью распылителя он создал градиент на панели. Получилось очень деликатно, едва заметно и нежно.

Проект вентиляции

Под потолком правее телевизора начинается несущая балка. Заказчиков она даже смутила при выборе квартиры, и они спросили нас, не помешает ли балка будущей перепланировке и системе вентиляции. Мы посмотрели на фотографии и планировку и убедились, что балка не помешает. Мы оформили ее нестандартным образом: нарастили небольшой короб, он зарифмовался с пилоном и выступом кухни-ниши и добавил ритмичность простому объему комнаты.

Дизайн квартиры фото

Эта балка также повлияла на расположения решеток вентиляции в кухне-гостиной. В другой ситуации решетка притока воздуха находилась бы над входом в гостиную. Но сейчас она перенесена ближе к телевизору в обход балки.

Дизайн ванной фото

В ванной комнате мы добавили фактуру и цвет. Для отделки стен использовали не только нейтральный керамогранит Italon, но и мозаику из той же серии, она придала пространству деликатной рельефности. А аксессуары выбрали ярко-оранжевые, они добавляют игривой легкости. Стиральную машину мы расположили в коридоре, так как считаем, что ванная комната должна всегда оставаться местом для отдыха, а не прачечной.

Современный дизайн ванной

Коллекторный узел мы сформировали в нише правее зеркала. Люк доступа оформили мозаикой, чтобы его замаскировать. Сейчас периметр люка мы заполнили герметиком, чтобы шов не бросался в глаза. Зеркало мы сделали с петлями с доводчиками: оно открывается налево, как фасад шкафа, а люк открывается вправо. 

Прихожая фото дизайн
Мебель для прихожей

Пенал для стиральной машины мы расположили в коридоре. Внутри также есть сушильная машина и полки для хранения бытовой химии.

Ремонт квартир под ключ

В прихожей вся мебель не касается пола: даже большой шкаф для одежды парит на высоте двадцати пяти сантиметров. Внутри шкафа будет база робота-пылесоса, а консольная мебель здесь и во многих других местах квартиры обеспечит легкую и тщательную уборку.

Дизайн интерьера фото

Планируя спальню, мы отдали предпочтение кабинету, а не гардеробной, так как у будущей хозяйки будет небольшая кладовая на этаже, в которой она сможет хранить несезонные вещи. Кабинет мягко интегрирован в интерьер спальни с помощью нескольких приемов.

Дизайн спальни фото

Во-первых, он не отделен от спальни дверью, так небольшое пространство площадью чуть более трех с половиной квадратных метров не кажется тесным. Во-вторых, между спальней и кабинетом — большая стеклянная перегородка без стыков, которую при необходимости можно закрыть шторой, чтобы скрыть отвлекающую зону. В-третьих, стена, к которой крепится перегородка, плавно закругляется, перекликаясь с другими плавными элементами спальни: изголовьем кровати, светильником, прикроватным столиком и тумбой, закруглениями на стенах.

Дизайн спальни в современном стиле фото
Интерьер спальни фото

Для этого кабинета мы сами спроектировали и изготовили консольный стол: его длина один метр семьдесят сантиметров, а ширина семьдесят сантиметров. Он выполнен в тон стен и, самое главное, изгибаясь, повторяет геометрию перегородки.

Дизайн спальни 2026
Кабинет в спальне

При проектировании мебели для кабинета, мы запланировали удобное место для принтера: он установлен за правым фасадом комода на выдвижной полке.

Спальня дизайн интерьера
Спальня дизайн интерьера
Дизайн интерьера Москва
Бежевая спальня

Для зоны отдыха в спальне мы подобрали только округлые аксессуары и мебель: столик рифмуется с обеденным столом из гостиной, а яркое изголовье кровати снова добавляет игривости.

Светлая спальня
Интерьер светлой спальни
Современная спальня фото

Для хранения одежды мы спроектировали и изготовили большой шкаф, он выполнен в цвет стен, но при этом мы сделали его фасады динамичными: из-за разности толщин появился ритм. Зеркало мы разместили прямо на дверном полотне, это удобное решение для небольших пространств.

Дизайн интерьера фото
Ремонт под ключ Москва
Дизайн-проект кухни
Дизайн-проект гостиной
Заказать дизайн-проект
Проект гостиной
Дизайн проект кухни
Дизайн проект квартиры
Дизайн проект интерьера
Дизайн-проект фото
Дизайн-проект Москва
Интерьер в бежевых цветах
Интерьер ванной
Проект ванной
Проект прихожей
Интерьер проект

Таким мы презентовали интерьер на этапе проектирования: все предметы и материалы были выбраны. Тщательная проработка деталей позволила нам реализовать интерьер, полностью соответствующий эскизам.

?autoplay=1" title="YouTube video player" frameborder="0" allow="accelerometer; autoplay; clipboard-write; encrypted-media; gyroscope; picture-in-picture" allowfullscreen>

Мы приглашаем вас посмотреть обзор этого интерьера, в котором мы показали еще много его нестандартных деталей. Это видео мы опубликовали и на YouTube.

Смета
Смета актуальна на апрель 2025 года. Не является публичной офертой.
Дизайн
722 540 ₽
Дизайн-проект интерьера
7 995 ₽
x
66 м2
=
527 670 ₽
Дизайн-проект мебели
7 495 ₽
x
26 п. м.
=
194 870 ₽
Отделочные материалы
2 589 445 ₽
Инженерная доска Finex
10 320 ₽
x
58 м2
=
598 560 ₽
Керамогранит Italon
4 035 ₽
x
38 м2
=
153 330 ₽
Керамогранит мозайка Italon
1 575 ₽
x
110 шт
=
173 250 ₽
Молдинг Orac
15 391 ₽
x
2 шт
=
30 782 ₽
Покраска в градиент панелей за ТВ
80 000 ₽
x
1 шт
=
80 000 ₽
Краска для стен Derufa
19 250 ₽
x
4 шт
=
77 000 ₽
Краска для потолка Derufa
8 580 ₽
x
2 шт
=
17 160 ₽
Черновые материалы
1 459 363 ₽
x
1 к-т.
=
1 459 363 ₽
Двери
361 346 ₽
Дверь в ванной Union
109 800 ₽
x
1 шт
=
109 800 ₽
Дверь в спальне Union
135 560 ₽
x
1 шт
=
135 560 ₽
Стеклянная перегородка Union
115 986 ₽
x
1 шт
=
115 986 ₽
Мебель
5 548 364 ₽
Накладка на входную дверь Alexander Tischler
80 480 ₽
x
1 шт
=
80 480 ₽
Зеркало с панелью, тумбой и консолью в прихожей Alexander Tischler
209 500 ₽
x
1 к-т.
=
209 500 ₽
Шкаф для одежды с пеналом для стиральной и сушильной машин в прихожей Alexander Tischler
442 021 ₽
x
1 к-т.
=
442 021 ₽
Кухня со столешницей из кварцевого камня Alexander Tischler
1 822 178 ₽
x
1 к-т.
=
1 822 178 ₽
Панель за ТВ в кухне-гостиной Alexander Tischler
154 141 ₽
x
1 шт
=
154 141 ₽
ТВ-тумба в кухне-гостиной Alexander Tischler
122 346 ₽
x
1 шт
=
122 346 ₽
Шкаф для одежды в спальне Alexander Tischler
376 301 ₽
x
1 шт
=
376 301 ₽
Консоль для декора в спальне Alexander Tischler
57 262 ₽
x
1 шт
=
57 262 ₽
Консольный рабочий стол в спальне Alexander Tischler
188 986 ₽
x
1 шт
=
188 986 ₽
Подвесная тумба и навесной шкаф в спальне Alexander Tischler
346 229 ₽
x
1 к-т.
=
346 229 ₽
Столешница с интегрированной раковиной в ванной Alexander Tischler
82 614 ₽
x
1 к-т.
=
82 614 ₽
Тумба под раковину Alexander Tischler
164 187 ₽
x
1 шт
=
164 187 ₽
Шкаф над инсталляцией Alexander Tischler
126 006 ₽
x
1 шт
=
126 006 ₽
Зеркало в ванной Alexander Tischler
41 740 ₽
x
1 шт
=
41 740 ₽
Обеденный стол Tok
158 400 ₽
x
1 шт
=
158 400 ₽
Стул Midj
112 560 ₽
x
3 шт
=
337 680 ₽
Диван раскладной в кухне-гостиной Mononova
449 348 ₽
x
1 шт
=
449 348 ₽
Банкетка в спальне Диван.ру
16 790 ₽
x
1 шт
=
16 790 ₽
Кровать ОГОГО обстановочка
175 835 ₽
x
1 шт
=
175 835 ₽
Прикроватная тумба Tamamm
60 000 ₽
x
1 шт
=
60 000 ₽
Прикроватный столик Ток
79 300 ₽
x
1 шт
=
79 300 ₽
Кресло Бюрократ
57 020 ₽
x
1 шт
=
57 020 ₽
Электротовары
1 053 509 ₽
Настенный светильник в прихожей Aromas del Campo
22 776 ₽
x
2 шт
=
45 552 ₽
Гипсовые точечные светильники двойные Stellanova
4 650 ₽
x
19 шт
=
88 350 ₽
Лампа светодиодная Osram
215 ₽
x
38 шт
=
8 170 ₽
Трек встраиваемый малый Arlight
12 454 ₽
x
3 шт
=
37 362 ₽
Трек встраиваемый большой Arlight
17 132 ₽
x
3 шт
=
51 396 ₽
Линейный светильник Arlight
7 441 ₽
x
7 шт
=
52 087 ₽
Спот Arlight
7 223 ₽
x
10 шт
=
72 230 ₽
Подвесной светильник в кухне-гостиной Maytoni
32 990 ₽
x
1 шт
=
32 990 ₽
Настенный светильник Maytoni
6 780 ₽
x
2 шт
=
13 560 ₽
УДАЛИТЬ Светодиодная лампа в кабинете Maytoni
290 ₽
x
2 шт
=
580 ₽
Подвесной светильник в спальне Aromas del Campo
77 597 ₽
x
1 шт
=
77 597 ₽
Настенный светильник в ванной Maytoni
6 490 ₽
x
1 шт
=
6 490 ₽
Светодиодная лампа в ванной Crystal
195 ₽
x
1 шт
=
195 ₽
Профиль для подсветки ниш угловой
384 ₽
x
5 шт
=
1 920 ₽
Профиль для подсветки накладной
576 ₽
x
4 шт
=
2 304 ₽
Рассеиватель для профиля
399 ₽
x
18 шт
=
7 182 ₽
Светодиодная лента Arlight
3 715 ₽
x
4 шт
=
14 860 ₽
Выключатели и розетки Donel
94 069 ₽
x
1 к-т.
=
94 069 ₽
Черновые материалы
446 615 ₽
x
1 к-т.
=
446 615 ₽
Отопление, вентиляция и кондиционирование
1 184 565 ₽
Радиатор КЗТО
132 739 ₽
x
1 шт
=
132 739 ₽
Радиатор КЗТО
111 848 ₽
x
1 шт
=
111 848 ₽
Наружный блок кондиционера Kentatsu
100 214 ₽
x
1 шт
=
100 214 ₽
Кондиционер канальный Kentatsu
49 555 ₽
x
1 шт
=
49 555 ₽
Кондиционер канальный Kentatsu
51 814 ₽
x
1 шт
=
51 814 ₽
Черновые материалы
738 395 ₽
x
1 к-т.
=
738 395 ₽
Сантехника и аксессуары
735 814 ₽
Кухонный смеситель Omoikiri
49 888 ₽
x
1 шт
=
49 888 ₽
Мойка кухонная Omoikiri
37 188 ₽
x
1 шт
=
37 188 ₽
Дозатор Omoikiri
5 488 ₽
x
1 шт
=
5 488 ₽
Смеситель для раковины встроенный Timo
43 258 ₽
x
1 шт
=
43 258 ₽
Встроенная душевая система Timo
50 936 ₽
x
1 к-т.
=
50 936 ₽
Акриловая ванна Riho
48 648 ₽
x
1 шт
=
48 648 ₽
Встроенный смеситель с гигиеническим душем Timo
25 255 ₽
x
1 к-т.
=
25 255 ₽
Унитаз Isvea
44 000 ₽
x
1 шт
=
44 000 ₽
Инсталляция Tece
57 446 ₽
x
1 шт
=
57 446 ₽
Держатель для ерша Timo
14 452 ₽
x
1 шт
=
14 452 ₽
Дозатор для мыла Timo
13 784 ₽
x
1 шт
=
13 784 ₽
Стакан для щеток Timo
10 227 ₽
x
1 шт
=
10 227 ₽
Держатель бумаги Timo
8 894 ₽
x
1 шт
=
8 894 ₽
Горизонтальная полка Swog
7 200 ₽
x
2 шт
=
14 400 ₽
Горизонтальная вешалка Swog
13 000 ₽
x
3 шт
=
39 000 ₽
Черновые материалы
272 950 ₽
x
1 к-т.
=
272 950 ₽
Работы
3 745 169 ₽
Управление строительно-монтажными работами
4 995 ₽
x
66 м2
=
329 670 ₽
Подготовительно-черновая отделка
235 498 ₽
x
1 к-т.
=
235 498 ₽
Устройство водоснабжения, канализации, отопления, электроснабжения
586 620 ₽
x
1 к-т.
=
586 620 ₽
Предчистовая отделка
1 145 901 ₽
x
1 к-т.
=
1 145 901 ₽
Чистовая отделка
506 560 ₽
x
1 к-т.
=
506 560 ₽
Чистовой монтаж водоснабжения, канализации, отопления, электроснабжения
193 720 ₽
x
1 к-т.
=
193 720 ₽
Монтаж мебели
577 200 ₽
x
1 к-т.
=
577 200 ₽
Логистические расходы
170 000 ₽
x
1 к-т.
=
170 000 ₽
Итого
15 940 752 ₽
Команда
Карен Карапетян
Творческий директор
Диана Беседина
Главный дизайнер
Юлия Убоженко
Дизайнер
Константин Прохоров
Инженер
Олег Мокрушников
Инженер
Любовь Венерцева
Инженер
Екатерина Демкина
Руководитель по закупкам
Павел Прохоров
Руководитель по отделке
Евгений Бридня
Шеф-монтажник
Юрий Бельмесов
Фотограф
Оксана Афанасьева
Стилист
Вера Минченкова
Автор текста
Готовый интерьер без забот
Мы подготовили проект и сделали ремонт интерьера, не отвлекая заказчиков от работы и жизни. Если вы тоже хотите создать интерьер мечты легко — мы сделаем это за вас! Оставьте заявку, мы рассчитаем предварительную стоимость производства вашего интерьера.

Производство интерьера от договора до въезда
занимает от 12 месяцев

Разработка дизайн-проекта интерьера
1-й квартал
Разработка дизайн-проекта мебели
Фиксация сметы
2-й квартал
Монтаж перегородок
Монтаж инженерных систем
3-й квартал
Монтаж потолков
Отделочные работы
Монтаж дверей
4-й квартал
Монтаж мебели
и техники
Клининг
Производство интерьера от договора до въезда
занимает от 12 месяцев
Проектные работы
1-й квартал
2-й квартал
3-й квартал
4-й квартал
Обмеры квартиры
Разработка планировочного решения
Разработка эскизного проекта интерьера
Разработка рабочего проекта интерьера
Разработка эскизного проекта мебели
Разработка рабочего проекта мебели
Проектирование вентиляции
Проектирование отопления
Проектирование водоснабжения
Проектирование канализации
Проектирование электроснабжения
Составление сметы
Авторский надзор
Отделочные работы
Демонтаж перегородок
Монтаж перегородок
Грунтование стен
Штукатурка стен
Звукоизоляция стен
Шпаклевание стен
Приклеивание стеклохолста на стены
Покраска стен
Приклеивание керамогранита на стены
Монтаж звуко-гидроизоляции на пол
Выравнивание полов стяжкой
Монтаж тёплых полов
Укладка керамогранита на пол
Грунтование пола
Укладка фанеры на пол
Укладка паркетной доски на пол
Монтаж пробкового компенсатора
Звукоизоляция потолка
Монтаж потолка из гипсокартона
Грунтование потолка
Шпаклевание потолка
Приклеивание стеклохолста на потолок
Покраска потолка
Клининг
Инженерные системы
Монтаж водоснабжения и канализации
Монтаж отопления
Монтаж электроснабжения
Монтаж приточной вентиляции
Монтаж кондиционеров
Окна и двери
Монтаж окон
Установка дверей
Мебель и техника
Производство мебели
Монтаж мебели
Установка техники
Состоим в профессиональных сообществах США и России
Лёгкий ремонт
Вы покупаете интерьер как готовый продукт. Ремонт не оторвёт вас от семьи, дел и отдыха. Товары, логистику и работы контролируем мы.
Один ответственный
Мы отвечаем за весь интерьер материально и решение возможных проблем берём на себя.
Неизменная цена
В конце дизайн-проекта фиксируем смету всего интерьера. В процессе реализации цена не поднимется.

Другие интерьеры

Все интерьеры