Квартира 68 м2 со стеклянным кабинетом для холостяка в Москве: фотографии, видео и смета готового интерьера

Квартира 68 м<sup>2</sup> со стеклянным кабинетом для холостяка: фотографии, видео и смета готового интерьера

Этот интерьер мы спроектировали для молодого человека, который увлекается современной культурой и музыкой. Для хозяина было важно сделать индивидуальный интерьер, в который легко впишутся предметы искусства, и найти место для кабинета, так как он планирует развивать свой канал на YouTube.

Мы сделали дизайн-проект и реализовали этот интерьер. Мы подготовили смету и зафиксировали стоимость реализации еще на этапе проектирования, и в процессе ремонта сумма не изменилась. Корпусную мебель спроектировали и изготовили специально для этой квартиры.

Площадь 68 м2
Тип Двухкомнатная квартира
Годы 2022-2023
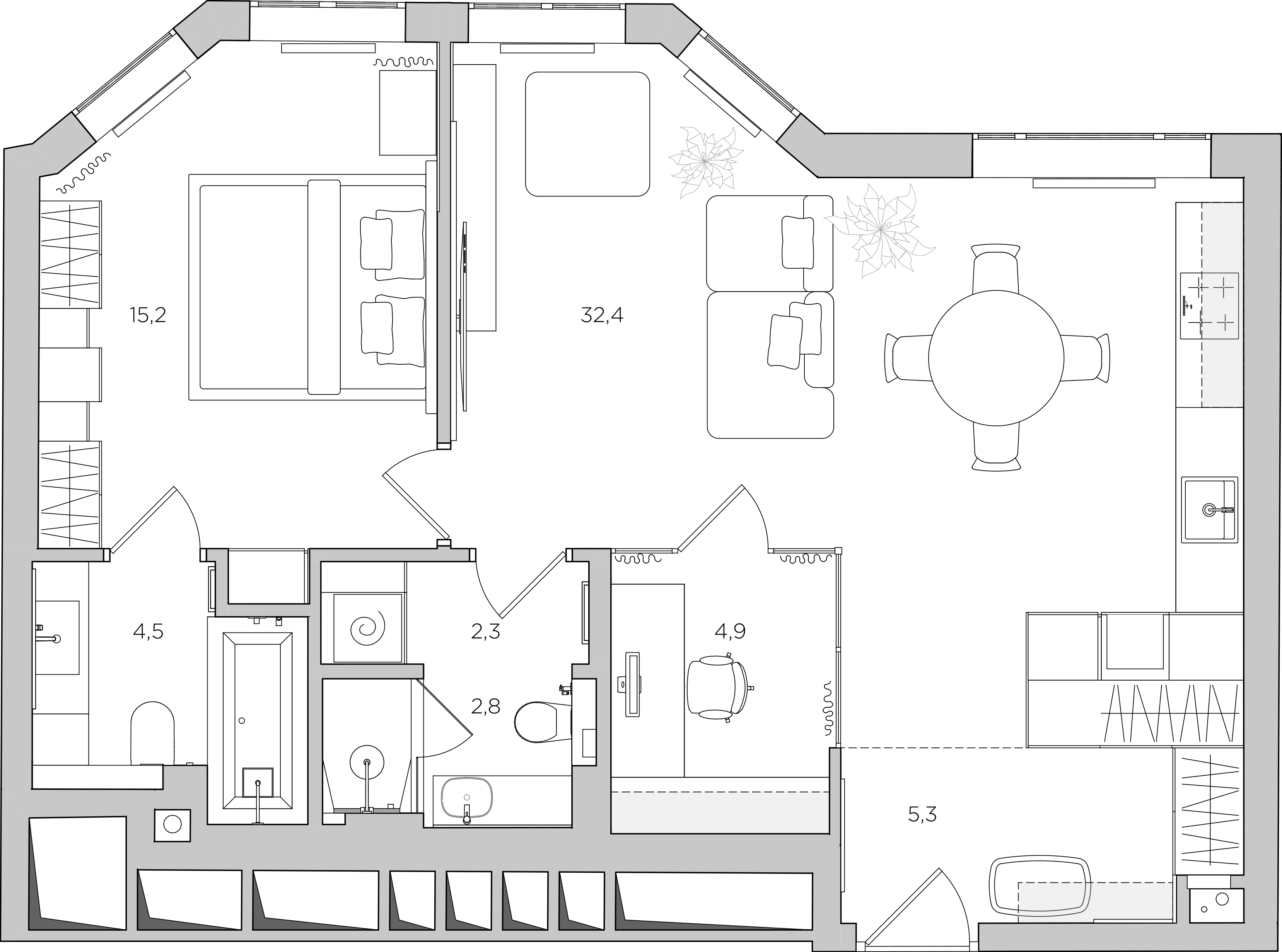
Особенности Квартира без несущих стен, с кухней-нишей и длинным коридором
Было
Стало
Просторная ванная
Длинный нефункциональный коридор
Гостевой санузел в «грязной зоне» прихожей
На месте коридора расположили кабинет и гостевой санузел
Кровать расположили так, чтобы из окна было видно парк и город
Для разделения кухни-гостиной и прихожей использовали не перегородки, а шкафы и пеналы
Убрали санузел и сделали просторную прихожую с вместительными шкафами
Кухня-гостиная с большими окнами

Мы начали работать с квартирой, в которой почти не было перегородок. Мы значительно преобразили пространство: выделили спальню, отказались от гостевого санузла в грязной зоне прихожей, организовали дополнительный санузел и кабинет на месте коридора. 

Прихожая с большими шкафами

Два основных цвета в интерьере — это бежевый и черный, с помощью мебели и краски квартира делится на «блоки». При входе светлый блок образуют стены прихожей, шкаф для одежды и кухонные пеналы. 

Темный керамогранит при входе «продолжается» в графитовых фасадах второго шкафа для одежды. В прихожей мы установили два больших зеркала и подвесную консоль с подсветкой снизу. Корпусы шкафов черные, а для того, чтобы можно было легко найти одежду, мы сделали подсветку, которая включается автоматически при открытии фасадов. Такую подсветку сделали не только над штангами, но и над глубокими полками для обуви.

Современная угловая кухня

Следующий «темный блок» — это кухня. Для отделки стены за ней мы выбрали крупноформатный керамогранит. Для отделки фасадов верхних модулей мы нашли неклассическое решение: фасады повторяют текстуру металла и отражают свет, как металл, но на самом деле сделаны из МДФ и покрыты специальной эмалью на основе металлического порошка. Для того, чтобы «блок» верхних модулей смотрелся монолитно, фасады и декоративные боковины мы состыковали под углом 45 градусов. 

Кухня со встроенным холодильником

Хозяин этой квартиры намерен поддерживать кухню в порядке, поэтому мы предусмотрели специальное место для хранения чайника. Мы продолжили столешницу за фасадом углового модуля. Сам фасад легко открыть и задвинуть за корпус. Далее можно без проблем достать чайник, набрать воду, и включить его. Розетки мы предусмотрели прямо внутри модуля.

Под духовкой, которая работает и как микроволновка, за фасадом спрятана угловая выдвижная система, она выдерживает до 17 килограммов нагрузки, легко открывается и закрывается. 

Мы показали устройтсво углового модуля на видео.

Кухня из МДФ

Мы решили поддержать брутальность интерьера обеденным столом, отделанным микробетоном. К нему подобрали яркие стулья из кожи MDF Italia.

Кухня-гостиная с большим диваном

Рядом с серым глубоким диваном мы поставили необычный журнальный столик — он состоит из лаконичных окружностей, а в верхней спрятана подсветка. Этот столик перекликается с круглыми светильниками Vibia, которые мы повесили над обеденным столом. 

Современная кухня-гостиная

Телевизор в кухне-гостиной мы расположили на стене, которую отделали панелями. Высокие эмалированные панели создают дополнительные вертикальные линии. Справа от панели мы расположили зеркало, чтобы в нем отражался дневной свет из окна.

Гостиная с кабинетом

Благодаря нашей работе с планировкой в этой квартире не осталось ни одного коридора.

Домашний кабинет

На месте коридора, который спроектировал застройщик, мы сделали кабинет и оградили его от остальной комнаты перегородкой из тонированного стекла. Для большего уединения мы повесили шторы. Чтобы в кабинете было комфортно работать даже с закрытыми дверьми, мы сделали дополнительную вентиляцию. В подшторной нише мы сделали RGB-подсветку: так как заказчик будет развивать свой YouTube-канал, трендовая подсветка ему наверняка пригодится.

Мебель в домашнем кабинете

Для кабинета мы спроектировали и сделали подвесной стол. Он большой и крепкий, но из-за того, что у него скошен край, он кажется невесомым, почти бумажным. Слева от стола есть модули для хранения важных документов и книг. Над столом есть подвижный мини-светильник, его луч можно направлять в необходимое место. Также подсветка есть под нижними модулями, она включается от взмаха. 

Подвесной рабочий стол в кабинете

Для росписи стен кабинета мы пригласили художника, он разработал эскиз, повторяющий цвета в интерьере, но добавил темно-красный оттенок. С граффити художника интерьер всей кухни-гостиной стал динамичнее и острее. 

Кухня-гостиная в современном интерьере

Мы показали этот кабинет на видео.

Санузел с душевой

Гостевой санузел мы сделали так же на месте бывшего коридора. Сам санузел не выходит за его границы, а часть с хозблоком — выходит, но такое решение законно, так как хозблок отделен от санузла перегородкой. Для согласования потребуется поставить раздвижную или распашную дверь, или оформить дверной проем.

Хозяйственный шкаф

В этом пенале стоит стиральная машина с функцией сушки, а также есть место для утюга и гладильной доски.

Тумба под раковину

Для этого санузла мы изготовили зеркало круглой формы. Весь санузел отделали керамогранитом с текстурой бетона, в сочетании с радиальным зеркалом создается ощущение лунного пейзажа.

Мастер-спальня в современном стиле

Кровать в спальне мы поставили таким образом, чтобы из окна было видно парк и город, и чтобы закатное солнце попадало на изголовье.

По пожеланию заказчика в спальне мы установили RGB-светильники и подсветку вдоль потолка, их цвет и интенсивность можно регулировать с помощью пульта и панели.

Спальня с большим шкафом для одежды
Вечерняя подсветка в спальне
Подсветка в мастер-спальне
Большой шкаф для одежды в спальне

В этой квартире нет отдельной гардеробной. Вместо нее в спальне мы установили акцентный шкаф для одежды и аксессуаров, на полках за стеклянными фасадами смонтирована RGB-подсветка. За прозрачными фасадами можно хранить обувь, аксессуары или декор. Внутри есть места для развески одежды, подсветка и зеркало на обратной стороне фасада. Этот шкаф стал полноценной заменой гардеробной.

Шкаф для одежды со стеклянными фасадами

Мы рассказали об устройстве этого шкафа на видео

Белый шкаф до потолка

В спальне был нужен еще один шкаф, мы установили его в нише, так он практически сливается со стеной. За встроенной профиль-ручкой мы смонтировали RGB-подсветку. В шкафу спрятаны корзины для белья.

Прикроватная тумба с ящиком
Спальня в однокомнатной квартире
Ванная комната в современном стиле

Вход в ванную мы перенесли из коридора в спальню, так образовалась небольшая мастер-спальня. Для стены прямо перед входом мы выбрали светлый керамогранит и наклеили его на мебельные фасады. За фасадами мы сделали полочки и розетки. 

Раковина из камня

Здесь, как и в гостевом санузле, мы поставили круглое зеркало. Для этой ванной мы специально изготовили раковину из кварцевого камня.

Ванна в керамограните

Благодаря отделке керамогранитом ванна стала похожа на монолитный каменный блок. Смеситель этой ванны встроен прямо в ее борт.

?autoplay=1" title="YouTube video player" frameborder="0" allow="accelerometer; autoplay; clipboard-write; encrypted-media; gyroscope; picture-in-picture" allowfullscreen>

Мы сняли видеообзор этого интерьера, где подробно рассказали про все наши планировочные и интерьерные решения. Это видео мы опубликовали и на YouTube.

Кухня-гостиная для молодого человека
Гостиная с кабинетом
Современная угловая кухня
Кухня-гостиная в современном стиле
Домашний кабинет
Кабинет со стеклянными перегородками
Подвесной стол в кабинете
Прихожая с большими шкафами
Зеркала с подсветкой в прихожей
Круглое зеркало в душевой
ээ12
Санузел с теплой стеной
Светлый керамогранит в санузле
Спальня с подсветкой
Большой шкаф для одежды в спальне
Мастер-спальня с ванной
Спальня с большой кроватью
Ванна с подсветкой
Раковина из камня
Керамогранит на мебельных фасадах
Теплая стена в ванной комнате

Таким мы презентовали интерьер на этапе проектирования: все предметы и материалы были выбраны. Тщательная проработка деталей позволила нам реализовать интерьер, полностью соответствующий эскизам.

Смета
Смета актуальна на июнь 2022 года. Не является публичной офертой.
Дизайн
828 470 ₽
Дизайн-проект интерьера
7 995 ₽
x
68 м2
=
543 660 ₽
Дизайн-проект мебели
7 495 ₽
x
38 п. м
=
284 810 ₽
Отделочные материалы
4 736 308 ₽
Инженерная доска Coswick
7 687 ₽
x
61 м2
=
468 907 ₽
Керамогранит в ванной Ariostea
10 417 ₽
x
32 м2
=
333 344 ₽
Керамогранит на фасадах мебели в ванной Ariostea
10 194 ₽
x
6 м2
=
61 164 ₽
Керамогранит в ванной Ariostea
10 194 ₽
x
12 м2
=
122 328 ₽
Керамогранит в прихожей и ванной Ariostea
8 963 ₽
x
16 м2
=
143 408 ₽
Керамогранит на кухонном фартуке Mirage
13 426 ₽
x
17 м2
=
228 242 ₽
Керамическая плитка в гостевом санузле Porcelanosa
10 470 ₽
x
40 м2
=
418 800 ₽
Керамогранит в гостевой санузел Porcelanosa
9 420 ₽
x
10 м2
=
94 200 ₽
Керамическая плитка-мозаика в гостевом санузле Porcelanosa
11 040 ₽
x
8 м2
=
88 320 ₽
Краска для стен белая Derufa
5 700 ₽
x
3 шт.
=
17 100 ₽
Краска для стен черная Derufa
6 950 ₽
x
2 шт.
=
13 900 ₽
Краска бежевая Derufa
6 350 ₽
x
3 шт.
=
19 050 ₽
Краска для потолка белая Derufa
15 000 ₽
x
2 шт.
=
30 000 ₽
Роспись кабинета художником
55 000 ₽
x
1 шт.
=
55 000 ₽
Теневой профиль на стенах
1 725 ₽
x
12 шт.
=
20 700 ₽
Теневой профиль на потолке
2 225 ₽
x
19 шт.
=
42 275 ₽
Пробковый компенсатор
300 ₽
x
54 шт.
=
16 200 ₽
Масло для пробки
8 100 ₽
x
1 шт.
=
8 100 ₽
Черновые материалы
2 555 270 ₽
x
1 к-т.
=
2 555 270 ₽
Двери
702 549 ₽
Дверь скрытого монтажа Union
55 200 ₽
x
3 шт.
=
165 600 ₽
Стеклянная перегородка с дверью в кабинете Union
487 949 ₽
x
1 шт.
=
487 949 ₽
Ручка дверная Colombo
5 500 ₽
x
4 шт.
=
22 000 ₽
Фиксатор дверной Colombo
7 000 ₽
x
3 шт.
=
21 000 ₽
Стопор дверной Colombo
1 200 ₽
x
5 шт.
=
6 000 ₽
Мебель
7 682 657 ₽
Кухня со столешницей Alexander Tischler
1 558 473 ₽
x
1 шт.
=
1 558 473 ₽
Стол обеденный The Ply
166 800 ₽
x
1 шт.
=
166 800 ₽
Стул MDF Italia
149 500 ₽
x
3 шт.
=
448 500 ₽
Консоль навесная с зеркалом и панелью в прихожей Alexander Tischler
175 960 ₽
x
1 шт.
=
175 960 ₽
Зеркало в прихожей Alexander Tischler
88 651 ₽
x
1 шт.
=
88 651 ₽
Шкафы для одежды в прихожей Alexander Tischler
637 170 ₽
x
1 шт.
=
637 170 ₽
Пуф в прихожей Loft-Concept
40 700 ₽
x
1 шт.
=
40 700 ₽
ТВ-тумба с полкой в гостиной Alexander Tischler
131 678 ₽
x
1 шт.
=
131 678 ₽
Стеновые панели с зеркалом в гостиной Alexander Tischler
123 475 ₽
x
1 к-т.
=
123 475 ₽
Диван Mononova
234 682 ₽
x
1 шт.
=
234 682 ₽
Стол в кабинете Alexander Tischler
108 289 ₽
x
1 шт.
=
108 289 ₽
Модули навесные и тумба в кабинете Alexander Tischler
439 567 ₽
x
1 к-т.
=
439 567 ₽
Рабочее кресло Vitra
74 500 ₽
x
1 шт.
=
74 500 ₽
Перегородка с дверью в гостевом санузле Alexander Tischler
153 286 ₽
x
1 шт.
=
153 286 ₽
Тумба со столешницей и зеркало в гостевом санузле Alexander Tischler
226 801 ₽
x
1 шт.
=
226 801 ₽
Шкаф хозяйственный в гостевом санузле Alexander Tischler
278 154 ₽
x
1 шт.
=
278 154 ₽
Шкаф навесной в гостевом санузле Alexander Tischler
50 824 ₽
x
1 шт.
=
50 824 ₽
Шкаф для одежды в спальне Alexander Tischler
1 236 585 ₽
x
1 шт.
=
1 236 585 ₽
Прикроватная тумба Alexander Tischler
102 272 ₽
x
1 шт.
=
102 272 ₽
Зеркало в спальне Alexander Tischler
82 050 ₽
x
1 шт.
=
82 050 ₽
Шкаф в нише в спальне Alexander Tischler
288 882 ₽
x
1 шт.
=
288 882 ₽
Кровать Boca
350 259 ₽
x
1 шт.
=
350 259 ₽
Тумба с зеркалом в ванной Alexander Tischler
258 412 ₽
x
1 шт.
=
258 412 ₽
Раковина в ванной Alexander Tischler
219 186 ₽
x
1 шт.
=
219 186 ₽
Шкаф навесной в ванной Alexander Tischler
48 616 ₽
x
1 шт.
=
48 616 ₽
Панель на входную дверь Alexander Tischler
61 285 ₽
x
1 шт.
=
61 285 ₽
Подоконник Alexander Tischler
19 520 ₽
x
5 шт.
=
97 600 ₽
Электротовары
1 068 186 ₽
Светильник гипсовый Тип 1 Stellanova
13 100 ₽
x
4 шт.
=
52 400 ₽
Светильник гипсовый Тип 2 Stellanova
7 400 ₽
x
3 шт.
=
22 200 ₽
Светильник в спальне Flexalighting
38 070 ₽
x
2 шт.
=
76 140 ₽
Профиль для светодиодной ленты
1 181 ₽
x
13 шт.
=
15 353 ₽
Рассеиватель для профиля
476 ₽
x
13 шт.
=
6 188 ₽
Светодиодная RGB-лента Arlight
1 492 ₽
x
50 шт.
=
74 600 ₽
Пульт управления RGB-лентой Arlight
3 819 ₽
x
1 шт.
=
3 819 ₽
Панель управления RGB-лентой Arlight
4 819 ₽
x
1 шт.
=
4 819 ₽
Контроллер RGB-ленты Arlight
4 401 ₽
x
6 шт.
=
26 406 ₽
Лента светодиодная Arlight
710 ₽
x
35 шт.
=
24 850 ₽
Светильник профильный Stellanova
10 000 ₽
x
17 шт.
=
170 000 ₽
Соединительный элемент для профильного светильника Stellanova
5 000 ₽
x
4 шт.
=
20 000 ₽
Светильник гипсовый Stellanova
2 200 ₽
x
16 шт.
=
35 200 ₽
Светильник-столик Vibia
128 520 ₽
x
1 шт.
=
128 520 ₽
Светильник подвесной Vibia
173 250 ₽
x
2 шт.
=
346 500 ₽
Бра в кабинете Leds C4
16 410 ₽
x
1 шт.
=
16 410 ₽
Розетки и выключатели Schneider Electric
44 781 ₽
x
1 к-т.
=
44 781 ₽
Вентиляция и кондиционирование
402 479 ₽
Наружный блок кондиционера Midea
78 174 ₽
x
1 шт.
=
78 174 ₽
Канальный кондиционер Midea
28 520 ₽
x
1 шт.
=
28 520 ₽
Канальный кондиционер Midea
24 798 ₽
x
1 шт.
=
24 798 ₽
Крепежные и расходные материалы
270 987 ₽
x
1 к-т.
=
270 987 ₽
Сантехника
1 046 743 ₽
Дозатор на кухне Omoikiri
7 388 ₽
x
1 шт.
=
7 388 ₽
Смеситель на кухне Omoikiri
38 688 ₽
x
1 шт.
=
38 688 ₽
Мойка на кухне Omoikiri
31 188 ₽
x
1 шт.
=
31 188 ₽
Кнопка измельчителя Omoikiri
5 188 ₽
x
1 шт.
=
5 188 ₽
Ванна Riho
89 470 ₽
x
1 шт.
=
89 470 ₽
Душевая система в ванной Timo
104 500 ₽
x
1 шт.
=
104 500 ₽
Смеситель в ванной Timo
27 000 ₽
x
1 шт.
=
27 000 ₽
Сифон для раковины Allen Brau
9 080 ₽
x
2 шт.
=
18 160 ₽
Держатель ерша Decor Walther
23 925 ₽
x
2 шт.
=
47 850 ₽
Полотенцедержатель прямой в ванной MyOry
6 890 ₽
x
2 шт.
=
13 780 ₽
Унитаз в ванной Roca
157 900 ₽
x
1 шт.
=
157 900 ₽
Инсталляция Roca
35 833 ₽
x
1 шт.
=
35 833 ₽
Трап напольный Aco
24 013 ₽
x
1 шт.
=
24 013 ₽
Унитаз в гостевом санузле Allen Brau
34 770 ₽
x
1 шт.
=
34 770 ₽
Инсталляция в гостевом санузле Tece
38 160 ₽
x
1 шт.
=
38 160 ₽
Раковина в гостевом санузле Allen Brau
41 410 ₽
x
1 шт.
=
41 410 ₽
Смеситель для раковины в гостевом санузле Allen Brau
26 470 ₽
x
1 шт.
=
26 470 ₽
Душевой комплект в гостевом санузле Allen Brau
82 070 ₽
x
1 шт.
=
82 070 ₽
Гигиенический душ в гостевом санузле Allen Brau
16 530 ₽
x
1 шт.
=
16 530 ₽
Полотенцедержатель прямой в гостевом санузле MyOry
7 150 ₽
x
2 шт.
=
14 300 ₽
Полка в гостевом санузле MyOry
4 550 ₽
x
3 шт.
=
13 650 ₽
Радиатор Тип 1 Quadrum
34 505 ₽
x
1 шт.
=
34 505 ₽
Радиатор Тип 2 Quadrum
35 980 ₽
x
4 шт.
=
143 920 ₽
Работы
4 563 747 ₽
Управление строительно-монтажными работами
4 995 ₽
x
68 м2
=
339 660 ₽
Строительно-монтажные работы
3 346 117 ₽
x
1 шт.
=
3 346 117 ₽
Логистические расходы
195 000 ₽
x
1 шт.
=
195 000 ₽
Монтаж мебели
682 970 ₽
x
1 шт.
=
682 970 ₽
Итого
21 031 139 ₽
Команда
Карен Карапетян
Главный дизайнер
Анна Прохорова
Дизайнер
Константин Прохоров
Инженер
Олег Мокрушников
Инженер
Екатерина Демкина
Руководитель по закупкам
Карен Никоян
Руководитель по отделке
Евгений Бридня
Шеф-монтажник
Евгений Кулибаба
Фотограф
Настасья Корбут
Стилист
Вера Минченкова
Автор текста
Возьмем ваш интерьер на себя
Мы разработаем дизайн интерьера вашей квартиры или дома, а потом сделаем ремонт со своей проверенной командой. Ремонт с нами не оторвёт вас от семьи, дел и отдыха, мы обо всем позаботимся. Оставьте заявку, мы рассчитаем предварительную стоимость производства вашего интерьера.

Производство интерьера от договора до въезда
занимает от 12 месяцев

Разработка дизайн-проекта интерьера
1-й квартал
Разработка дизайн-проекта мебели
Фиксация сметы
2-й квартал
Монтаж перегородок
Монтаж инженерных систем
3-й квартал
Монтаж потолков
Отделочные работы
Монтаж дверей
4-й квартал
Монтаж мебели
и техники
Клининг
Производство интерьера от договора до въезда
занимает от 12 месяцев
Проектные работы
1-й квартал
2-й квартал
3-й квартал
4-й квартал
Обмеры квартиры
Разработка планировочного решения
Разработка эскизного проекта интерьера
Разработка рабочего проекта интерьера
Разработка эскизного проекта мебели
Разработка рабочего проекта мебели
Проектирование вентиляции
Проектирование отопления
Проектирование водоснабжения
Проектирование канализации
Проектирование электроснабжения
Составление сметы
Авторский надзор
Отделочные работы
Демонтаж перегородок
Монтаж перегородок
Грунтование стен
Штукатурка стен
Звукоизоляция стен
Шпаклевание стен
Приклеивание стеклохолста на стены
Покраска стен
Приклеивание керамогранита на стены
Монтаж звуко-гидроизоляции на пол
Выравнивание полов стяжкой
Монтаж тёплых полов
Укладка керамогранита на пол
Грунтование пола
Укладка фанеры на пол
Укладка паркетной доски на пол
Монтаж пробкового компенсатора
Звукоизоляция потолка
Монтаж потолка из гипсокартона
Грунтование потолка
Шпаклевание потолка
Приклеивание стеклохолста на потолок
Покраска потолка
Клининг
Инженерные системы
Монтаж водоснабжения и канализации
Монтаж отопления
Монтаж электроснабжения
Монтаж приточной вентиляции
Монтаж кондиционеров
Окна и двери
Монтаж окон
Установка дверей
Мебель и техника
Производство мебели
Монтаж мебели
Установка техники
Состоим в профессиональных сообществах США и России
Лёгкий ремонт
Вы покупаете интерьер как готовый продукт. Ремонт не оторвёт вас от семьи, дел и отдыха. Товары, логистику и работы контролируем мы.
Один ответственный
Мы отвечаем за весь интерьер материально и решение возможных проблем берём на себя.
Неизменная цена
В конце дизайн-проекта фиксируем смету всего интерьера. В процессе реализации цена не поднимется.

Другие интерьеры

Все интерьеры