Белая двухкомнатная квартира 77 м2 с кабинетом в Москве: фотографии, видео и смета готового интерьера

Белая двухкомнатная квартира 77 м<sup>2</sup> с кабинетом: фотографии, видео и смета готового интерьера

Хозяева этой квартиры хотели сделать кухню-гостиную и кабинет, который в будущем трансформировался бы в детскую, а также организовать много мест для хранения.

Мы полностью отвечали за этот интерьер: разработали дизайн-проект, проконтролировали поставки и работы, спроектировали и произвели корпусную мебель.

Площадь 77 м2
Тип Двухкомнатная квартира
Годы 2019–2020
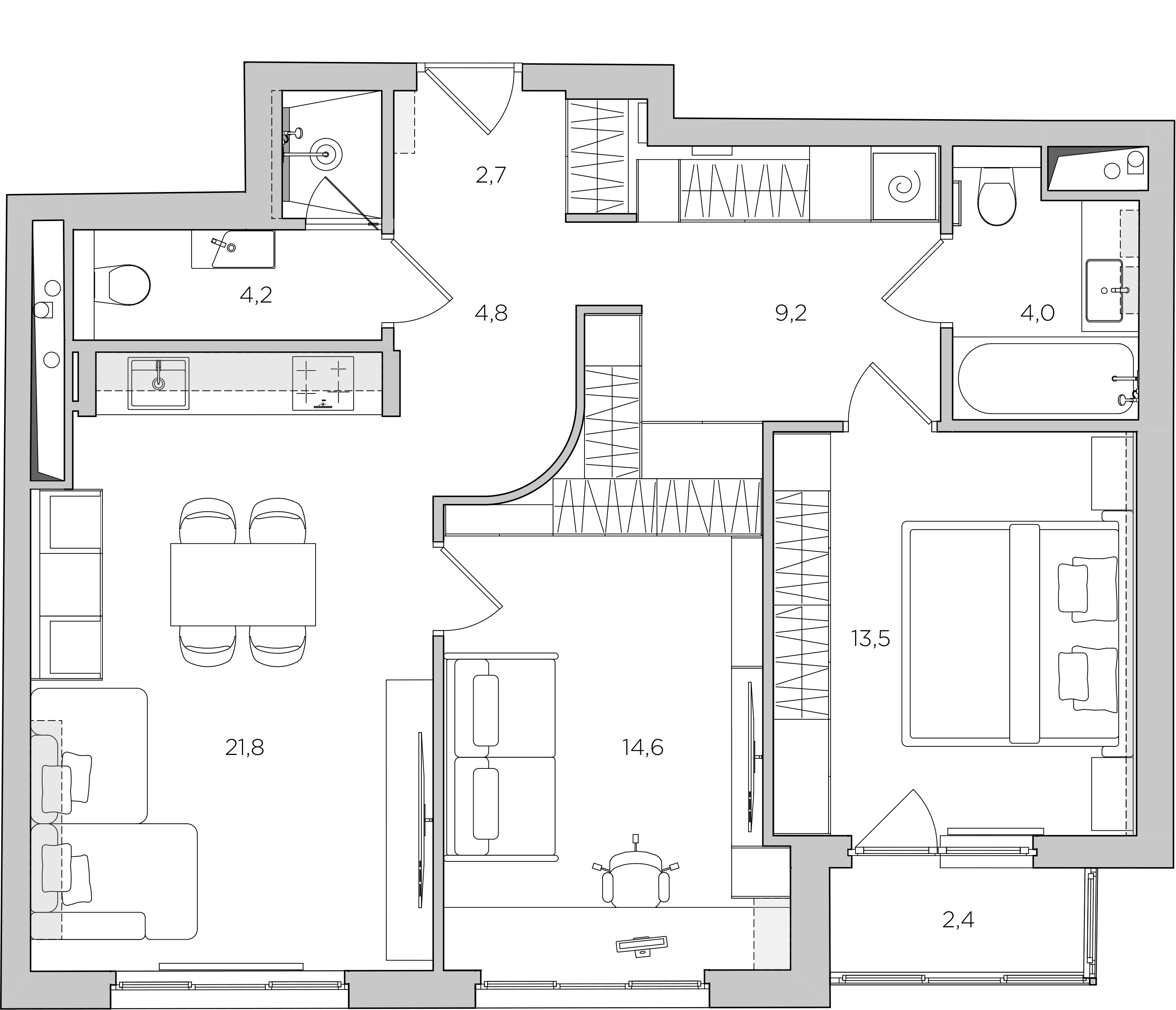
Особенности Небольшой гостевой санузел, нефункциональный коридор, большие окна на солнечной стороне, нет несущих стен
Было
Стало
Небольшой санузел
Нефункциональный коридор
Просторная кухня
Коридор расширили и переделали в проходную гардеробную с хозблоком
Увеличили санузел за счет прихожей и разместили душ
Перенесли вход в кабинет из коридора в кухню-гостиную, чтобы сохранить место для шкафов
Передвинули перегородку, чтобы в спальне поместился шкаф
Белая кухня с подсветкой

Кухня разделена на два блока, в пеналах от пола до потолка — полки, встроенный холодильник и контрастная техника. Второй блок — минималистичный кухонный гарнитур с мойкой и варочной панелью, который обрамлен пилонами из керамогранита с текстурой белого оникса. Для подсветки обеденного стола мы сделали люстру из профильных светильников, закрепленных на разной высоте.

Кухня-гостиная с диваном и телевизором
Прямой диван в кухне-гостиной
Кухня-гостиная с белой кухней

Чтобы разбавить монохром и строгие линии кухни-гостиной, мы добавили мягкие диван и стулья ярких оттенков.

Шкаф для одежды из МДФ

В кабинете нет четвертой стены, вместо нее стоит шкаф. С обратной стороны — в проходной гардеробной — второй шкаф. Чтобы увеличить место для хранения, мы перенесли вход в кабинет на смежную с гостиной стену.

Белый шкаф для одежды из МДФ
Стеллаж в кабинет в шпоне ореха
Стеллаж для книг в шпоне ореха с подсветкой

В дальнейшем кабинет станет детской, и на место дивана встанет кроватка. Стеллаж и шкафы в комнате позволят хранить все нужное для ребенка. Стеллаж и подвесной рабочий стол сделаны из МДФ в шпоне американского ореха.

Дизайн интерьера спальни в современном стиле
Шкаф для одежды с подсветкой

В спальне вдоль стены напротив кровати сделали большой шкаф. Белые фасады стали импровизированным экраном для проектора.

Стеновые панели и прикроватная тумба

Мы сделали дополнительную подсветку вдоль потолка и на мебели. Панели в шпоне американского ореха работают контрастным фоном для светлого изголовья кровати, а подсветка выделяет текстуру дерева.

Проходная белая гардеробная
Проходная гардеробная с белыми шкафами

Коридор мы переделали в проходную гардеробную, здесь мы также разместили стиральную и сушильную машины и водонагреватель над ними. Увеличили площадь гардеробной за счет кабинета, из-за чего места для хранения стало больше.

Шкаф для одежды в прихожей

В прихожей стоит шкаф, в котором хранится обувь и сезонная одежда. Напротив шкафа — зеркало от пола до потолка с фронтальной подсветкой и подвесной полкой.

Круглая перегородка в прихожей

На месте радиусной перегородки могла быть прямая стена, но мы решили добавить динамику интерьеру, немного пожертвовав полезной площадью.

Белый шкаф в душевой
Душевая с подсветкой

Увеличили гостевой санузел за счет прихожей, благодаря чему в нем поместилась душевая. Ниши над унитазом и в душе оформили контрастной плиткой и подсветкой.

Шкаф с зеркалами в ванной
Тумба под раковину в ванной

В ванной комнате унитаз перенесли дальше от ванны, рядом с ней расположили раковину и подвесную тумбу в графитовой эмали со столешницей из искусственного камня.

?autoplay=1" title="YouTube video player" frameborder="0" allow="accelerometer; autoplay; clipboard-write; encrypted-media; gyroscope; picture-in-picture" allowfullscreen>

Мы записали видео про этот интерьер спустя год после заселения хозяев и узнали, какие решения нам удались, а какие оказались неудачными.

ГС-1-min
ГС-2-min
ГС-3-min
ГС-4-min
ГС-5-min
коридор-min
КБ-1-min
КБ-2-min
КБ-3-min
СП-1-min
СП-2-min
СП-3-min
КР-1-min
гардеробная-min
гардеробная2-min
КР-4-min
КР-5-min
КР-6-min
душевая-min
душевая2-min
ванная-min
ванная2-min

Таким мы презентовали интерьер на этапе проектирования: все предметы и материалы были выбраны. Тщательная проработка деталей позволила нам реализовать интерьер таким, каким мы его представили хозяевам.

Смета
Смета актуальна на март 2020 года. Не является публичной офертой.
Дизайн
960 385 ₽
Дизайн-проект интерьера
7 995 ₽
x
77 м2
=
615 615 ₽
Дизайн-проект мебели
7 495 ₽
x
46 п. м
=
344 770 ₽
Отделочные материалы
2 661 156 ₽
Паркетная доска Haro
8 250 ₽
x
32 м2
=
264 000 ₽
Кераморанит Colorker
6 731 ₽
x
57 м2
=
383 667 ₽
Керамогранит в душевой Rex
6 275 ₽
x
43 м2
=
269 825 ₽
Керамогранит глянцевый Porcelanosa
16 693 ₽
x
23 м2
=
383 939 ₽
Керамогранит матовый Porcelanosa
5 792 ₽
x
10 м2
=
57 920 ₽
Керамогранит в душевой Colorker
7 128 ₽
x
2 м2
=
14 256 ₽
Краска для стен белая Derufa
8 500 ₽
x
7 шт.
=
59 500 ₽
Краска для потолка белая Derufa
7 500 ₽
x
4 шт.
=
30 000 ₽
Пробковый компенсатор
200 ₽
x
26 шт.
=
5 200 ₽
Масло для пробки
4 750 ₽
x
1 шт.
=
4 750 ₽
Черновые материалы
1 188 099 ₽
x
1 к-т.
=
1 188 099 ₽
Двери
357 191 ₽
Входная дверь Portalle
142 439 ₽
x
1 шт.
=
142 439 ₽
Дверь скрытого монтажа
47 918 ₽
x
4 шт.
=
191 672 ₽
Ручка Giro
3 103 ₽
x
4 шт.
=
12 412 ₽
Завертка Linea Cali
1 834 ₽
x
4 шт.
=
7 336 ₽
Стопор Colombo
833 ₽
x
4 шт.
=
3 332 ₽
Мебель
4 604 734 ₽
Зеркало с подвесной полкой в прихожей Alexander Tischler
28 113 ₽
x
1 шт.
=
28 113 ₽
Шкаф в прихожей Alexander Tischler
129 454 ₽
x
1 шт.
=
129 454 ₽
Шкаф со стеклянными полками в гардеробной Alexander Tischler
174 594 ₽
x
1 шт.
=
174 594 ₽
Шкаф в гардеробной Alexander Tischler
149 785 ₽
x
1 шт.
=
149 785 ₽
Стул Pedrali
47 104 ₽
x
4 шт.
=
188 416 ₽
Стол Pedrali
59 904 ₽
x
1 шт.
=
59 904 ₽
ТВ-тумба Alexander Tischler
125 639 ₽
x
1 шт.
=
125 639 ₽
Полка с подсветкой в гостиной Alexander Tischler
55 812 ₽
x
1 шт.
=
55 812 ₽
Диван в кухне-гостиной One Mebel
129 115 ₽
x
1 шт.
=
129 115 ₽
Оконные откосы в гостиной Alexander Tischler
31 792 ₽
x
1 к-т
=
31 792 ₽
Диван в кабинете One Mebel
120 728 ₽
x
1 шт.
=
120 728 ₽
Рабочий стол с полками Alexander Tischler
124 271 ₽
x
1 шт.
=
124 271 ₽
Шкаф в спальне Alexander Tischler
638 214 ₽
x
1 шт.
=
638 214 ₽
195 914 ₽
x
1 шт.
=
195 914 ₽
Подвесная тумба в спальне Alexander Tischler
95 862 ₽
x
2 шт.
=
191 724 ₽
Кровать One Mebel
115 100 ₽
x
1 шт.
=
115 100 ₽
Оконные откосы в спальне Alexander Tischler
15 052 ₽
x
1 шт.
=
15 052 ₽
Шкаф над инсталляцией в ванной Alexander Tischler
22 795 ₽
x
1 шт.
=
22 795 ₽
Тумба под раковину со столешницей в ванной Alexander Tischler
171 193 ₽
x
1 шт.
=
171 193 ₽
Навесные шкафы с зеркалами в ванной Alexander Tischler
84 300 ₽
x
2 шт.
=
168 600 ₽
Шкаф над инсталляцией в душевой Alexander Tischler
29 424 ₽
x
1 шт.
=
29 424 ₽
Стеклянная дверь в душевой Alexander Tischler
90 432 ₽
x
1 шт.
=
90 432 ₽
Зеркало с подсветкой в душевой Alexander Tischler
9 364 ₽
x
1 шт.
=
9 364 ₽
Электротовары
544 042 ₽
Нагревательный мат Ensto
2 782 ₽
x
32 м2
=
89 024 ₽
Подвесной светильник в спальне Leds C4
14 801 ₽
x
2 шт.
=
29 602 ₽
Встраиваемый трек 3 м Faldi
5 880 ₽
x
6 шт.
=
35 280 ₽
Встраиваемый трек 2 м Faldi
3 920 ₽
x
2 шт.
=
7 840 ₽
Линейный трековый светильник Faldi
4 000 ₽
x
8 шт.
=
32 000 ₽
Цилиндрический трековый светильник Faldi
2 830 ₽
x
12 шт.
=
33 960 ₽
Линейный трековый светильник с поворотным механизмом Faldi
7 960 ₽
x
6 шт.
=
47 760 ₽
Точечный гипсовый светильник Stellanova
2 067 ₽
x
38 шт.
=
78 546 ₽
Настольный светильник в кабинете Leds C4
25 173 ₽
x
1 шт.
=
25 173 ₽
Подвесной профильный светильник Аrlight
2 086 ₽
x
3 шт.
=
6 258 ₽
Встраиваемый гипсокартонный модуль в душевой Arlight
7 815 ₽
x
1 шт.
=
7 815 ₽
Светодиодная лента Magna
605 ₽
x
100 м
=
60 500 ₽
Профиль для светодиодной ленты
836 ₽
x
16 шт.
=
13 376 ₽
Гибкий профиль для светодиодной ленты
1 210 ₽
x
7 шт.
=
8 470 ₽
Профиль для подсветки ниш
1 210 ₽
x
9 шт.
=
10 890 ₽
Профиль для подсветки мебели
660 ₽
x
17 шт.
=
11 220 ₽
Влагозащищенный профиль для светодиодной ленты
2 354 ₽
x
1 шт.
=
2 354 ₽
Розетки и выключатели Schnider Electric
43 974 ₽
x
1 к-т.
=
43 974 ₽
Вентиляция и кондиционирование
466 480 ₽
Вентилятор Helios
3 410 ₽
x
3 шт.
=
10 230 ₽
Приточно-вентиляционная установка Ventmachine
145 200 ₽
x
1 шт.
=
145 200 ₽
Наружный блок Mitsubishi Electric
154 616 ₽
x
1 шт.
=
154 616 ₽
Внутренний блок тип 1 Mitsubishi Electric
30 427 ₽
x
1 шт.
=
30 427 ₽
Внутренний блок тип 2 Mitsubishi Electric
23 916 ₽
x
2 шт.
=
47 832 ₽
Крепежные и расходные материалы
78 175 ₽
x
1 к-т.
=
78 175 ₽
Сантехника
864 256 ₽
Мойка на кухне Blanco
21 100 ₽
x
1 шт.
=
21 100 ₽
Смеситель на кухне Blanco
21 900 ₽
x
1 шт.
=
21 900 ₽
Фильтр для воды Аквафор
7 599 ₽
x
1 шт.
=
7 599 ₽
Ванна Villeroy & Boch
70 611 ₽
x
1 шт.
=
70 611 ₽
Полотенцесушитель Terma
35 374 ₽
x
1 шт.
=
35 374 ₽
Раковина в ванной Villeroy & Boch
44 379 ₽
x
1 шт.
=
44 379 ₽
Смеситель для раковины в ванной Noken
30 379 ₽
x
1 шт.
=
30 379 ₽
Полка в ванной Jacob Delafon
4 830 ₽
x
3 шт.
=
14 490 ₽
Унитаз в ванной Villeroy & Boch
40 530 ₽
x
1 шт.
=
40 530 ₽
Панель смыва в душевой Tece
6 229 ₽
x
1 шт.
=
6 229 ₽
Панель смыва в ванной Tece
26 795 ₽
x
1 шт.
=
26 795 ₽
Инсталляция Tece
18 884 ₽
x
2 шт.
=
37 768 ₽
Встроенный смеситель в ванной и душевой Noken
39 509 ₽
x
2 шт.
=
79 018 ₽
Излив для ванны Noken
5 205 ₽
x
1 шт.
=
5 205 ₽
Ручной душ Noken
13 824 ₽
x
2 шт.
=
27 648 ₽
Держатель туалетной бумаги в ванной Noken
13 739 ₽
x
1 шт.
=
13 739 ₽
Гигиенический душ в ванной Noken
21 248 ₽
x
1 шт.
=
21 248 ₽
Полотенцедержатель Noken
19 200 ₽
x
1 шт.
=
19 200 ₽
Держатель для бумаги в душевой Noken
11 691 ₽
x
1 шт.
=
11 691 ₽
Крючок для полотенец в душевой Noken
4 011 ₽
x
3 шт.
=
12 033 ₽
Унитаз в душевой Jacob Delafon
22 410 ₽
x
1 шт.
=
22 410 ₽
Раковина в душевой Jacob Delafon
21 780 ₽
x
1 шт.
=
21 780 ₽
Смеситель для раковины в душевой Noken
19 115 ₽
x
1 шт.
=
19 115 ₽
Верхний душ в душевой Noken
43 179 ₽
x
1 шт.
=
43 179 ₽
Трап для душа Тесе
38 315 ₽
x
1 шт.
=
38 315 ₽
Гигиенический душ в душевой Noken
14 165 ₽
x
1 шт.
=
14 165 ₽
Полка в душевой Hansgrohe
31 792 ₽
x
1 шт.
=
31 792 ₽
Датчики контроля протечки Neptun
20 316 ₽
x
1 к-т.
=
20 316 ₽
Люки доступа
13 420 ₽
x
1 к-т.
=
13 420 ₽
Радиатор в гостиной Zehnder
37 586 ₽
x
1 шт.
=
37 586 ₽
Радиатор в кабинете Zehnder
28 794 ₽
x
1 шт.
=
28 794 ₽
Радиатор в спальне Zehnder
26 448 ₽
x
1 шт.
=
26 448 ₽
Работы
2 836 838 ₽
Управление строительно-монтажным работами
4 995 ₽
x
77 м2
=
384 615 ₽
Строительно-монтажные работы
2 006 259 ₽
x
1 шт.
=
2 006 259 ₽
Логистические расходы
120 000 ₽
x
1 шт.
=
120 000 ₽
Монтаж мебели
325 964 ₽
x
1 шт.
=
325 964 ₽
Итого
13 295 082 ₽
Команда
Карен Карапетян
Главный дизайнер
Юлия Убоженко
Дизайнер
Олег Мокрушников
Инженер
Константин Прохоров
Инженер
Екатерина Демкина
Руководитель по закупкам
Павел Прохоров
Руководитель по отделке
Евгений Бридня
Шеф-монтажник
Яна Яхина
Стилист
Ярослав Лукьянченко
Фотограф
Вера Минченкова
Автор текста
Дизайн-проект и ремонт по фиксированной цене
Мы тщательно разрабатываем дизайн-проект интерьера, поэтому еще до начала ремонта составляем точную смету и фиксируем стоимость реализации. В процессе ремонта она не изменится. Если вы хотите воплотить интерьер мечты без переплат, давайте работать!

Производство интерьера от договора до въезда
занимает от 12 месяцев

Разработка дизайн-проекта интерьера
1-й квартал
Разработка дизайн-проекта мебели
Фиксация сметы
2-й квартал
Монтаж перегородок
Монтаж инженерных систем
3-й квартал
Монтаж потолков
Отделочные работы
Монтаж дверей
4-й квартал
Монтаж мебели
и техники
Клининг
Производство интерьера от договора до въезда
занимает от 12 месяцев
Проектные работы
1-й квартал
2-й квартал
3-й квартал
4-й квартал
Обмеры квартиры
Разработка планировочного решения
Разработка эскизного проекта интерьера
Разработка рабочего проекта интерьера
Разработка эскизного проекта мебели
Разработка рабочего проекта мебели
Проектирование вентиляции
Проектирование отопления
Проектирование водоснабжения
Проектирование канализации
Проектирование электроснабжения
Составление сметы
Авторский надзор
Отделочные работы
Демонтаж перегородок
Монтаж перегородок
Грунтование стен
Штукатурка стен
Звукоизоляция стен
Шпаклевание стен
Приклеивание стеклохолста на стены
Покраска стен
Приклеивание керамогранита на стены
Монтаж звуко-гидроизоляции на пол
Выравнивание полов стяжкой
Монтаж тёплых полов
Укладка керамогранита на пол
Грунтование пола
Укладка фанеры на пол
Укладка паркетной доски на пол
Монтаж пробкового компенсатора
Звукоизоляция потолка
Монтаж потолка из гипсокартона
Грунтование потолка
Шпаклевание потолка
Приклеивание стеклохолста на потолок
Покраска потолка
Клининг
Инженерные системы
Монтаж водоснабжения и канализации
Монтаж отопления
Монтаж электроснабжения
Монтаж приточной вентиляции
Монтаж кондиционеров
Окна и двери
Монтаж окон
Установка дверей
Мебель и техника
Производство мебели
Монтаж мебели
Установка техники
Состоим в профессиональных сообществах США и России
Лёгкий ремонт
Вы покупаете интерьер как готовый продукт. Ремонт не оторвёт вас от семьи, дел и отдыха. Товары, логистику и работы контролируем мы.
Один ответственный
Мы отвечаем за весь интерьер материально и решение возможных проблем берём на себя.
Неизменная цена
В конце дизайн-проекта фиксируем смету всего интерьера. В процессе реализации цена не поднимется.

Другие интерьеры

Все интерьеры