Квартира 80 м2 в стиле лофт с двумя рабочими местами в Москве: фотографии, видео и смета готового интерьера

Квартира 80 м<sup>2</sup> в стиле лофт с двумя рабочими местами: фотографии, видео и смета готового интерьера

Этот интерьер мы спроектировали для молодой пары, они хотели, чтобы квартира была наполнена «индустриальными» элементами и материалами. Для них также было важно организовать два рабочих места и красивые витрины для памятных вещей и коллекций.

Мы сделали дизайн-проект и реализовали этот интерьер. Мы подготовили смету и зафиксировали стоимость реализации еще на этапе проектирования, и в процессе ремонта сумма не изменилась. Корпусную мебель мы спроектировали и изготовили специально для этой квартиры.

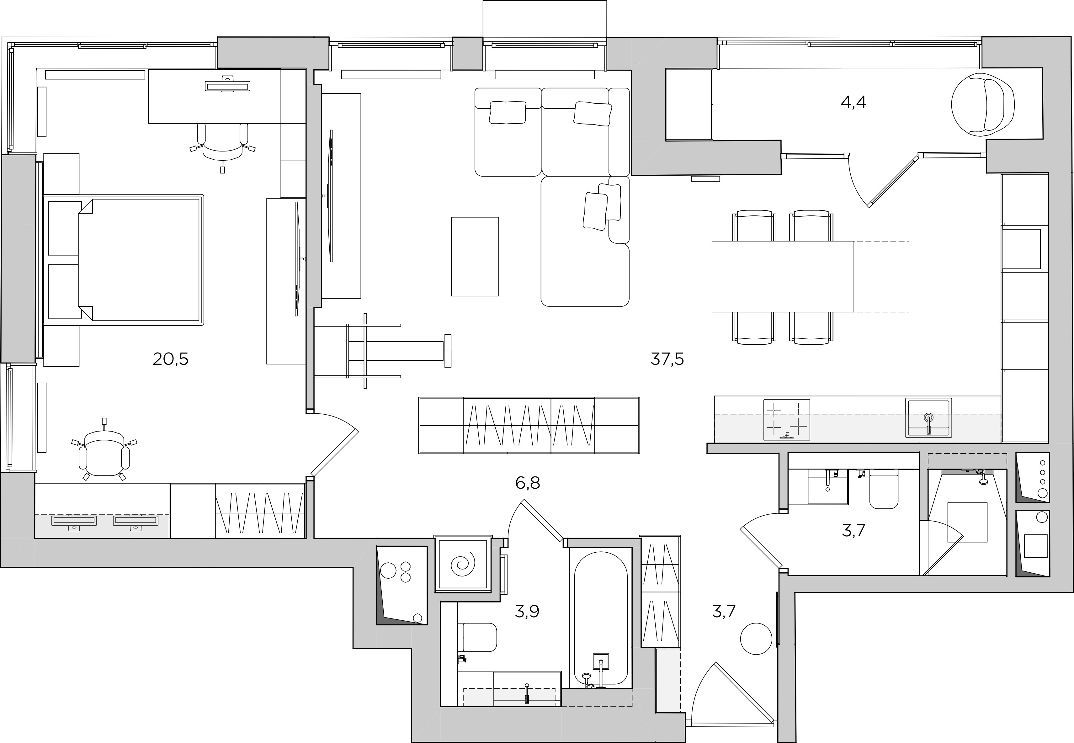
Площадь 80 м2
Тип Двухкомнатная квартира
Годы 2022–2023
Особенности Угловая квартира без несущих стен с двумя санузлами и узкой прихожей
Было
Стало
Спальня с двумя окнами
Перегородка, которая образует коридор
Небольшой гостевой санузел без душа
Узкая прихожая, в которой не поместится глубокий шкаф для одежды
Вместо перегородки поставили двусторонний шкаф
В спальне поставили два рабочих стола
Удлинили стену, теперь на кухне есть большая рабочая поверхность
Увеличили гостевой санузел и добавили душ
Поставили неглубокий шкаф с поперечной развеской
Дизайн интерьера кухни в стиле лофт

Мы сделали современный интерьер с «лофтовыми» деталями, и даже кухонный гарнитур выглядит, как промышленный объект. Хозяева любят принимать гостей, поэтому мы смело оставили объединенными кухню и гостиную. 

Кухонные пеналы
Обеденный стол

Чтобы кухня не выделялась на фоне брутального интерьера, мы сделали ее с небанальной отделкой. Фасады пеналов и нижних модулей мы сделали из МДФ с металлизированной матовой эмалью. А верхние модули оформили шпоном американского ореха, у него активная текстура, которая контрастно сочетается с металлом. Верхние модули мы не стали доводить до потолка, чтобы визуально облегчить кухню, они образуют неширокую полосу.

О том, какие элементы мы использовали для создания лофтового интерьера, рассказали на видео.

Угловая кухня из МДФ
Прямая столешница на кухне

После перепланировки стена, вдоль которой расположена столешница, стала длиннее, но благодаря компоновке из гостиной виден только монолитный блок пеналов, а большая рабочая поверхность не бросается в глаза.

Верхние пеналы

Подробнее об устройстве вытяжки мы рассказали на видео.

Кресло на лоджии
Шкаф для хранения в лоджии

На лоджии мы поставили шкаф для редко используемых вещей и кресло с кофейным столиком, чтобы хозяева могли отдыхать и наблюдать за городом.

Кухня-гостиная в стиле лофт

Сильнее всего к дизайну промышленных помещений отсылает потолок: по пожеланию заказчиков, мы оставили открытой плиту перекрытия, никак не меняли ее антропогенную текстуру.

Шкаф со стеклянными витринами

Из-за этого воздуховоды приточной вентиляции остались видны, мы выбрали черные жестяные трубы. Такой потолок значительно ухудшает шумоизоляцию, но эта квартира расположена на последнем этаже, и шума от соседей не будет. Также мы направили на потолок некоторые светильники, они выделяют его текстуру и освещают интерьер отраженным светом.

Подробнее о том, как мы поработали с потолком, рассказали на видео.

Книжные полки в гостиной

Еще один элемент в «заводской» эстетике — это латунные ретро-вентили на чугунных радиаторах.

Диван в гостиной
Кирпичная стена
Интерьер кухни-гостиной

Для отделки стен в гостиной мы выбрали темный керамогранит и декоративный кирпич, цвет которого поддержали обивкой дивана и декором.

Витрина шкафа

На месте перегородки, которой застройщик разделял гостиную и коридор, мы поставили двусторонний шкаф. Так как в этой квартире нет места для отдельной гардеробной, мы спроектировали несколько больших шкафов.

Мебель для гостиной на заказ в Москве
Шкаф для одежды в гостиной на заказ

Чтобы шкаф со стороны гостиной не выглядел, как глухая стена, его центральные модули мы оформили ребристыми панелями, а слева и справа сделали витрины с рифленым стеклом и подсветкой. 

Шкаф со стороны коридора
Обратная сторона шкафа

За шкафом в гостиной скрывается хозяйственный пенал, в котором стоят стиральная и сушильная машины. Левее — дверь в ванную комнату с проходом для кота.

На видео мы подробнее рассказали про интерьерные решения для комфортной жизни кота хозяев.

Открытые потолки в интерьере
Шкаф с рабочим столом

Из гостиной можно попасть в спальню. Дверь, которая ведет сюда, с одной стороны окрашена в цвет стен, а с другой стороны полностью зеркальная.

Рабочий стол для хозяина
Рабочее место в спальне

В спальне мы организовали два рабочих места, первое расположено при входе. Это подвесной стол с ящиками и шкафами для хранения документов и одежды. Стол мы поставили здесь, чтобы рядом с ним было много места для движений в VR-шлеме.

Тумба в спальне
Спальня с рабочей зоной

Второе рабочее место расположили у углового окна с видом на город. Рядом со столом сделали открытые полки и витрину для памятных вещей хозяйки.

Рабочая зона у окна
Стеллаж у окна

Подробнее про два рабочих места в этой спальне мы рассказали на видео.

Стеновая панель за кроватью

Мы спроектировали и изготовили кровать, которую поставили в центре комнаты, ее каркас — это единое изделие с тумбами и стеновыми панелями. Основание кровати мы сделали черным и углубили его за борта в шпоне американского ореха, так кровать кажется парящей. Стеновые панели над изголовьем мы дополнили рейками и поддержали их светильниками, которые ритмично свисают с потолка.

Подвесная тумба у кровати
Кровать в шпоне американского ореха

Подробнее о кровати мы рассказали в видео. 

Ванная комната

В ванной комнате мы установили зеркальный шкаф с розетками и подвесную тумбу с раковиной, под ней будет стоять лоток для кота. Для отделки ванной выбрали необычный керамогранит: он имитирует текстуры металлических листов и ржавчину.

Керамогранит с металлизированным эффектом
Дизайн небольшой прихожей

В небольшой прихожей не было место для глубокого платяного шкафа, поэтому мы установили высокий и узкий шкаф с поперечной развеской для одежды. Чтобы визуально расширить пространство прихожей, в ней мы установили два высоких зеркала.

Подвесная тумба в прихожей
Прихожая в стиле лофт
Душевая комната

Из прихожей можно попасть в гостевой санузел, который мы увеличили за счет коридора. Душ, который мы смогли добавить после перепланировки, отделили рифленой перегородкой, которая необычно преломляет подсветку ниши для гелей и шампуней.

Раковина
Стеклянный ящик с подсветкой
Мебель для ванной
?autoplay=1" title="YouTube video player" frameborder="0" allow="accelerometer; autoplay; clipboard-write; encrypted-media; gyroscope; picture-in-picture" allowfullscreen>

Мы сняли видеообзор этого интерьера, где подробно рассказали про все наши планировочные и интерьерные решения. Это видео мы опубликовали и на YouTube.

Дизайн-проект кухни-гостиной
Кухня в современном стиле
Современная кухня-гостиная
Дизайн кухни-гостиной в стиле лофт
Дизайн гостиной в стиле лофт
Гостиная в стиле лофт
Дизайн интерьера в стиле лофт
Мебель для гостиной в современном стиле
Современный кухонный гарнитур
Угловая кухня в стиле лофт
Мебель для кухни-гостиной
Интерьер кухни-гостиной в стиле лофт
Шкаф для одежды с подсветкой
Дизайн прихожей с зеркалом
Шкаф для одежды в прихожей
Гостевой санузел в двухкомнатной квартире
Стеклянная перегородка в душевой
Спальня в стиле лофт
Рабочий стол в спальне
Мебель для спальни на заказ в Москве
Дизайн ванной в стиле лофт
Современная мебель для ванной комнаты

Таким мы презентовали интерьер на этапе проектирования: все предметы и материалы были выбраны. Тщательная проработка деталей позволила нам реализовать интерьер, полностью соответствующий эскизам.

Смета
Смета актуальна на август 2022 года. Не является публичной офертой.
Дизайн
864 450 ₽
Дизайн-проект интерьера
7 995 ₽
x
80 м2
=
639 600 ₽
Дизайн-проект мебели
7 495 ₽
x
30 п. м.
=
224 850 ₽
Отделочные материалы
3 611 341 ₽
Керамогранит светлый Italon
3 520 ₽
x
101 м2
=
355 520 ₽
Керамогранит темный Italon
3 520 ₽
x
13 м2
=
45 760 ₽
Декоративный кирпич Baueco
1 082 ₽
x
24 м2
=
25 968 ₽
Расшивка для камня Kamshov
1 200 ₽
x
2 шт.
=
2 400 ₽
Керамогранит темно-серый Italon
3 420 ₽
x
35 м2
=
119 700 ₽
Керамогранит под бетон в душевой Ariostea
12 360 ₽
x
23 м2
=
284 280 ₽
Керамогранит в ванной Serenissima Cir, тип 1
3 360 ₽
x
15 м2
=
50 400 ₽
Керамогранит в ванной Serenissima Cir, тип 2
3 990 ₽
x
3 м2
=
11 970 ₽
Керамогранит в ванной Serenissima Cir, тип 3
3 564 ₽
x
7 м2
=
24 948 ₽
Керамогранит в ванной Serenissima Cir, тип 4
3 629 ₽
x
13 м2
=
47 177 ₽
Керамическая плитка в ванной Grespania
6 450 ₽
x
3 м2
=
19 350 ₽
Краска для стен светлая Derufa
17 100 ₽
x
3 шт.
=
51 300 ₽
Краска для откосов темно-серая Derufa
17 100 ₽
x
1 шт.
=
17 100 ₽
Краска для потолка Derufa
15 000 ₽
x
1 шт.
=
15 000 ₽
Черновые материалы
2 540 468 ₽
x
1 к-т.
=
2 540 468 ₽
Двери и окна
1 046 347 ₽
Покраска окон
182 420 ₽
x
1 к-т.
=
182 420 ₽
Входная дверь Portalle
222 000 ₽
x
1 шт.
=
222 000 ₽
Панель на входную дверь Alexander Tischler
18 853 ₽
x
1 шт.
=
18 853 ₽
Дверь скрытого монтажа в гостевом санузле Union
68 400 ₽
x
1 шт.
=
68 400 ₽
Дверь скрытого монтажа в ванной Union
73 400 ₽
x
1 шт.
=
73 400 ₽
Дверь для кошки в ванной Staywell
11 750 ₽
x
1 шт.
=
11 750 ₽
Дверь скрытого монтажа с зеркалом в спальне Union
91 820 ₽
x
1 шт.
=
91 820 ₽
Дверная ручка Union
10 400 ₽
x
3 шт.
=
31 200 ₽
Дверной фиксатор Union
3 900 ₽
x
3 шт.
=
11 700 ₽
Упор дверной Colombo
1 200 ₽
x
4 шт.
=
4 800 ₽
Перегородка с дверью на балкон
330 004 ₽
x
1 шт.
=
330 004 ₽
Мебель
8 805 913 ₽
Консоль, зеркало и шкаф для одежды в прихожей Alexander Tischler
239 594 ₽
x
1 шт.
=
239 594 ₽
Зеркало в прихожей Alexander Tischler
43 600 ₽
x
1 шт.
=
43 600 ₽
Пуф в прихожей Normann Copenhagen
71 663 ₽
x
1 шт.
=
71 663 ₽
Двусторонний шкаф для одежды в гостиной Alexander Tischler
1 374 734 ₽
x
1 шт.
=
1 374 734 ₽
Кухня со столешницей Alexander Tischler
2 166 752 ₽
x
1 шт.
=
2 166 752 ₽
Обеденный стол Arper
488 239 ₽
x
1 шт.
=
488 239 ₽
Обеденные стулья Bo Concept
116 928 ₽
x
4 шт.
=
467 712 ₽
ТВ-тумба в гостиной Alexander Tischler
123 310 ₽
x
1 шт.
=
123 310 ₽
Диван Mononova
384 385 ₽
x
1 шт.
=
384 385 ₽
Шкаф над инсталляцией в душевой Alexander Tischler
212 128 ₽
x
1 шт.
=
212 128 ₽
Тумба под раковину в душевой Alexander Tischler
77 719 ₽
x
1 шт.
=
77 719 ₽
Столешница с интегрированной раковиной в душевой Alexander Tischler
44 415 ₽
x
1 шт.
=
44 415 ₽
Дверь в душевую Alexander Tischler
145 371 ₽
x
1 шт.
=
145 371 ₽
Зеркальный шкаф в ванной Alexander Tischler
97 397 ₽
x
1 шт.
=
97 397 ₽
Тумба под раковину в ванной Alexander Tischler
104 707 ₽
x
1 шт.
=
104 707 ₽
Столешница с интегрированной раковиной в ванной Alexander Tischler
54 338 ₽
x
1 шт.
=
54 338 ₽
Шкаф над инсталляцией в ванной Alexander Tischler
116 953 ₽
x
1 шт.
=
116 953 ₽
Шкаф для стиральной и сушильной машин в ванной Alexander Tischler
71 759 ₽
x
1 шт.
=
71 759 ₽
Шкаф для одежды с письменным столом в спальне Alexander Tischler
633 921 ₽
x
1 шт.
=
633 921 ₽
Кресла Bo Concept
155 565 ₽
x
2 шт.
=
311 130 ₽
Кровать с подъемным механизмом Alexander Tischler
105 232 ₽
x
1 шт.
=
105 232 ₽
Стеновые панели с изголовьем Alexander Tischler
256 421 ₽
x
1 шт.
=
256 421 ₽
Прикроватная тумба Alexander Tischler
28 917 ₽
x
2 шт.
=
57 834 ₽
Письменный стол со шкафом и комодом в спальне Alexander Tischler
786 508 ₽
x
1 шт.
=
786 508 ₽
Шкаф на балконе Alexander Tischler
146 870 ₽
x
1 шт.
=
146 870 ₽
Откосы на окнах в зоне гостиной Alexander Tischler
59 494 ₽
x
1 к-т.
=
59 494 ₽
Откосы на окнах в зоне кухни Alexander Tischler
42 162 ₽
x
1 к-т.
=
42 162 ₽
Откосы на окнах на балконе Alexander Tischler
43 773 ₽
x
1 к-т.
=
43 773 ₽
Откосы на окнах в спальне Alexander Tischler
77 792 ₽
x
1 к-т.
=
77 792 ₽
Электротовары
726 375 ₽
Полотенцесушитель Сунержа
40 200 ₽
x
1 шт.
=
40 200 ₽
Накладной светильник Maytoni
2 600 ₽
x
10 шт.
=
26 000 ₽
Встраиваемый светильник Maytoni
2 050 ₽
x
6 шт.
=
12 300 ₽
Магнитный шинопровод накладной, 3 м, Arlight
12 570 ₽
x
4 шт.
=
50 280 ₽
Магнитный шинопровод накладной, 1 м, Arlight
4 750 ₽
x
1 шт.
=
4 750 ₽
Крепления для магнитного шинопровода Arlight
1 336 ₽
x
1 к-т.
=
1 336 ₽
Cветильник линейный для магнитного шинопровода Arlight
4 340 ₽
x
6 шт.
=
26 040 ₽
Поворотный спот для магнитного шинопровода Arlight
4 007 ₽
x
12 шт.
=
48 084 ₽
Люстра в гостиной Ideal Lux
84 645 ₽
x
1 шт.
=
84 645 ₽
Настенный светильник в гостиной Ideal Lux
16 224 ₽
x
1 шт.
=
16 224 ₽
Светодиодная лента Arlight
539 ₽
x
10 шт.
=
5 390 ₽
Профиль для подсветки угловой
853 ₽
x
2 шт.
=
1 706 ₽
Профиль для подсвеки врезной
893 ₽
x
4 шт.
=
3 572 ₽
Рассеиватель для профиля
278 ₽
x
16 шт.
=
4 448 ₽
Подвесной светильник в спальне тип 1 Leds C4
18 509 ₽
x
5 шт.
=
92 545 ₽
Подвесной светильник в спальне тип 2 Leds C4
20 815 ₽
x
5 шт.
=
104 075 ₽
Бра в спальне Leds C4
11 074 ₽
x
2 шт.
=
22 148 ₽
Бра в спальне у стола Ideal Lux
7 759 ₽
x
1 шт.
=
7 759 ₽
Терморегулятор Devi
18 900 ₽
x
6 шт.
=
113 400 ₽
Розетки и выключатели Schneider Electric
61 473 ₽
x
1 к-т.
=
61 473 ₽
Вентиляция и кондиционирование
800 755 ₽
Вентиляция Royal Clima
272 394 ₽
x
1 к-т.
=
272 394 ₽
Увлажнение Royal Clima
277 297 ₽
x
1 к-т.
=
277 297 ₽
Кондиционирование Haier
251 064 ₽
x
1 к-т.
=
251 064 ₽
Сантехника
1 136 517 ₽
Радиатор чугунный в гостиной и спальне Retro Style
70 000 ₽
x
3 шт.
=
210 000 ₽
Радиатор чугунный в спальне Retro Style, тип 1
49 000 ₽
x
1 шт.
=
49 000 ₽
Радиатор чугунный в спальне Retro Style, тип 2
35 000 ₽
x
1 шт.
=
35 000 ₽
Радиатор вертикальный Arbonia
40 128 ₽
x
1 шт.
=
40 128 ₽
Комплект угловых вентилей на чугунные радиаторы SR Rubinetterie
21 940 ₽
x
6 шт.
=
131 640 ₽
Комплект крепежных материалов на радиаторы
10 655 ₽
x
1 шт.
=
10 655 ₽
Мойка на кухне Omoikiri
20 688 ₽
x
1 шт.
=
20 688 ₽
Смеситель на кухне Omoikiri
38 688 ₽
x
1 шт.
=
38 688 ₽
Кнопка измельчителя на кухне Omoikiri
5 188 ₽
x
1 шт.
=
5 188 ₽
Дозатор моющего средства на кухне Omoikiri
7 388 ₽
x
1 шт.
=
7 388 ₽
Инсталляция для унитаза, крепеж и клавиша Sanit
22 450 ₽
x
2 шт.
=
44 900 ₽
Унитаз Toto
28 350 ₽
x
2 шт.
=
56 700 ₽
Сифон для раковины Timo
7 720 ₽
x
2 шт.
=
15 440 ₽
Донный клапан Allen Brau
3 630 ₽
x
2 шт.
=
7 260 ₽
Смеситель для раковины в гостевом санузле Timo
24 791 ₽
x
1 шт.
=
24 791 ₽
Душевая система в душевом санузле Timo
115 311 ₽
x
1 шт.
=
115 311 ₽
Полотенцедержатель в гостевом санузле Timo
10 660 ₽
x
1 шт.
=
10 660 ₽
Мыльница Timo
5 457 ₽
x
2 шт.
=
10 914 ₽
Мыльница в ванной Wasserkraft
3 170 ₽
x
1 шт.
=
3 170 ₽
Карниз для шторки в ванной
17 220 ₽
x
1 шт.
=
17 220 ₽
Туалетный ершик Timo
8 085 ₽
x
2 шт.
=
16 170 ₽
Стаканчик для щeток Timo
4 446 ₽
x
2 шт.
=
8 892 ₽
Крючок в гостевом санузле Timo
3 031 ₽
x
3 шт.
=
9 093 ₽
Держатель бумаги Timo
5 880 ₽
x
2 шт.
=
11 760 ₽
Держатель полотенца в гостевом санузле Timo
5 659 ₽
x
1 шт.
=
5 659 ₽
Гигиенический душ Timo
21 053 ₽
x
2 шт.
=
42 106 ₽
Чугунная ванна Wotte
66 443 ₽
x
1 шт.
=
66 443 ₽
Душевая система в ванной Timo
67 831 ₽
x
1 шт.
=
67 831 ₽
Смеситель для раковины в ванной Timo
17 774 ₽
x
1 шт.
=
17 774 ₽
Душевой трап Tece
36 048 ₽
x
1 шт.
=
36 048 ₽
Работы
4 963 303 ₽
Управление строительно-монтажным работами
4 995 ₽
x
80 м2
=
399 600 ₽
Строительно-монтажные работы
3 431 385 ₽
x
1 шт.
=
3 431 385 ₽
Логистические расходы
190 000 ₽
x
1 шт.
=
190 000 ₽
Монтаж мебели
942 318 ₽
x
1 шт.
=
942 318 ₽
Итого
21 955 001 ₽
Команда
Карен Карапетян
Главный дизайнер
Юлия Убоженко
Дизайнер
Константин Прохоров
Инженер
Олег Мокрушников
Инженер
Екатерина Демкина
Руководитель по закупкам
Карен Никоян
Руководитель по отделке
Евгений Бридня
Шеф-монтажник
Ник Руденко
Фотограф
Настасья Корбут
Стилист
Вера Минченкова
Автор текста
Возьмем ваш интерьер на себя
Эту квартиру мы сделали в стиле лофт в соответствии с пожеланиями заказчиков, но мы умеем работать в разных направлениях. Разработаем дизайн интерьера вашей квартиры или дома, а потом сделаем ремонт со своей проверенной командой. Ремонт с нами не оторвёт вас от семьи, дел и отдыха, мы обо всем позаботимся. Оставьте заявку, мы рассчитаем предварительную стоимость производства вашего интерьера.

Производство интерьера от договора до въезда
занимает от 12 месяцев

Разработка дизайн-проекта интерьера
1-й квартал
Разработка дизайн-проекта мебели
Фиксация сметы
2-й квартал
Монтаж перегородок
Монтаж инженерных систем
3-й квартал
Монтаж потолков
Отделочные работы
Монтаж дверей
4-й квартал
Монтаж мебели
и техники
Клининг
Производство интерьера от договора до въезда
занимает от 12 месяцев
Проектные работы
1-й квартал
2-й квартал
3-й квартал
4-й квартал
Обмеры квартиры
Разработка планировочного решения
Разработка эскизного проекта интерьера
Разработка рабочего проекта интерьера
Разработка эскизного проекта мебели
Разработка рабочего проекта мебели
Проектирование вентиляции
Проектирование отопления
Проектирование водоснабжения
Проектирование канализации
Проектирование электроснабжения
Составление сметы
Авторский надзор
Отделочные работы
Демонтаж перегородок
Монтаж перегородок
Грунтование стен
Штукатурка стен
Звукоизоляция стен
Шпаклевание стен
Приклеивание стеклохолста на стены
Покраска стен
Приклеивание керамогранита на стены
Монтаж звуко-гидроизоляции на пол
Выравнивание полов стяжкой
Монтаж тёплых полов
Укладка керамогранита на пол
Грунтование пола
Укладка фанеры на пол
Укладка паркетной доски на пол
Монтаж пробкового компенсатора
Звукоизоляция потолка
Монтаж потолка из гипсокартона
Грунтование потолка
Шпаклевание потолка
Приклеивание стеклохолста на потолок
Покраска потолка
Клининг
Инженерные системы
Монтаж водоснабжения и канализации
Монтаж отопления
Монтаж электроснабжения
Монтаж приточной вентиляции
Монтаж кондиционеров
Окна и двери
Монтаж окон
Установка дверей
Мебель и техника
Производство мебели
Монтаж мебели
Установка техники
Состоим в профессиональных сообществах США и России
Лёгкий ремонт
Вы покупаете интерьер как готовый продукт. Ремонт не оторвёт вас от семьи, дел и отдыха. Товары, логистику и работы контролируем мы.
Один ответственный
Мы отвечаем за весь интерьер материально и решение возможных проблем берём на себя.
Неизменная цена
В конце дизайн-проекта фиксируем смету всего интерьера. В процессе реализации цена не поднимется.

Другие интерьеры

Все интерьеры