Квартира 81 м2 с рабочим местом и гардеробной в Москве: фотографии, видео и смета готового интерьера

Квартира 81 м<sup>2</sup> с рабочим местом и гардеробной: фотографии, видео и смета готового интерьера

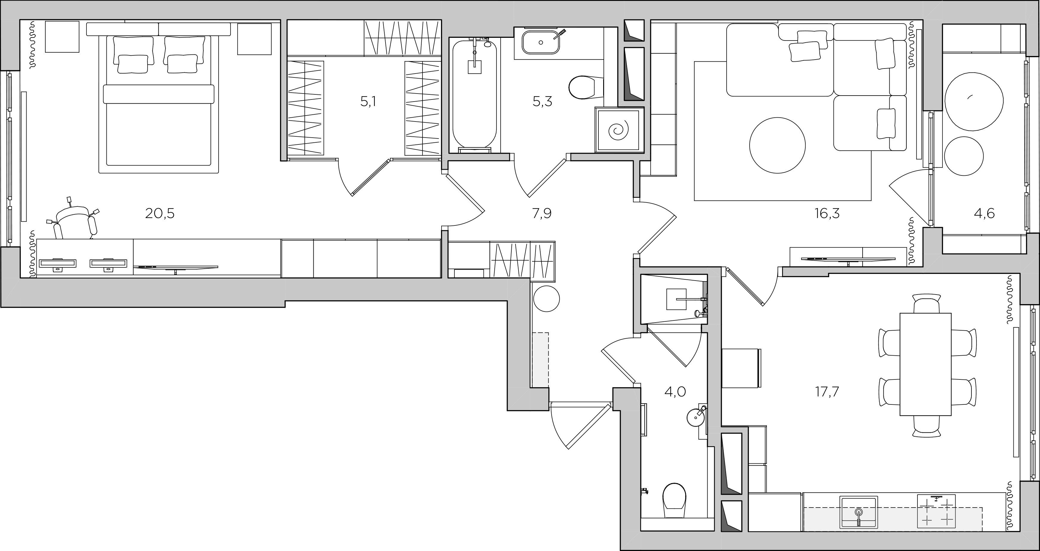
Этот брутальный интерьер с яркими деталями мы спроектировали и реализовали для программиста. Основными пожеланиями заказчика было оставить обособленными кухню и гостиную, на кухне предусмотреть место для отдельно стоящего холодильника, сделать второй санузел с душем и поставить большой рабочий стол.

Мы полностью отвечали за этот интерьер: разработали дизайн-проект, проконтролировали поставки и работы, спроектировали и произвели корпусную мебель.

Площадь 81 м2
Тип Двухкомнатная квартира
Годы 2020–2021
Особенности В прихожей нет места для хранения одежды и обуви, небольшой гостевой санузел без душевой, большая ванная комната
Было
Стало
Просторная спальня, в которой можно организовать и рабочее место, и гардеробную
В прихожей нет места для хранения одежды и обуви
Поставили рабочий стол длиной три с половиной метра
Выделили место для хозяйственного шкафа и гардеробной
Уменьшили ванную, благодаря чему в коридоре поместился шкаф для одежды
Вход на кухню перенесли в гостиную. Чтобы визуально объединить эти комнаты поставили дверь из тонированного стекла
Увеличили санузел и поставили душ за счет переноса входа на кухню
Тумба под телевизор и МДФ в шпоне ясеня

Интерьер выполнен в двух цветах: серо-бежевый и темно-серый. В проекте мы использовали несколько повторяющихся деталей: перегородки, двери и фасады из тонированного стекла, яично-желтые предметы мебели, ребристые элементы.

Шкаф в гостиной из МДФ

Кухня из гостиной просматривается через дверное полотно из тонированного стекла. Гостиная благодаря цветам разделена на две эмоциональные зоны: строгая темная с графичным шкафом и светлая с расслабленным диваном.

Стеновые панели из МДФ в гостиной
Тумба под телевизор из МДФ в шпоне ясеня

Гостиную по пожеланию хозяина мы оставили обособленной, это полноценная комната для отдыха с проходом на кухню. Этот вход мы перенесли сюда, чтобы добавить в гостевой санузел душевую.

Кухня из МДФ со шпоном ясеня
Кухонный стол со стеклянной столешницей
Обеденный стол со стеклянной столешницей

В обеденной зоне поставили сразу несколько необычных интерьерных предметов: стол на металлических опорах со стеклянной столешницей и яркие стулья, обтянутые эко-кожей, от Bontempi, над ними повесили круглые светильники Vibia.

Угловая кухня из МДФ со шпоном ясеня

Не делать встроенный холодильник — еще одно пожелание заказчика. Мы отодвинули его от остальной мебели, чтобы он стал равноправным элементом кухни, как самостоятельный объект. Дополнили холодильник вертикальным светильником Vibia.

Рабочий стол с ящиками в шпоне ясеня

Рабочий стол мы разместили в спальне, его длина три с половиной метра. Он сделан без единой опоры и смонтирован на металлическом каркасе. Стену над ним мы хотели сделать более фактурной и поставили рельефную панель.

Спальня с рабочим столом
Стеновые панели из МДФ со шпоном ясеня
Рабочий стол в спальне
Гардеробная система с подсветкой
Гардеробная из МДФ в спальне

Гардеробную мы сделали при спальне и отделили перегородками из тонированного стекла. В ней мы сочетаем несколько типов хранения: красивая одежда может висеть на виду, аксессуары лежать в широких ящиках, а несезонную одежду можно убрать в шкаф.

Тумба под раковину из МДФ

В ванной тумба под раковину с акцентным модулем по цвету перекликается со стульями на кухне и пуфом в прихожей.

Пенал для стиральной машины в ванной

Справа от входа — пенал со стиральной и сушильной машинами. В нем мы предусмотрели вытяжку.

Подробнее о нашем решении поставить стиральную и сушильную машины в пенал рассказали на видео.

Маленькая душевая
Маленькая душевая со стеклянной дверью

На этом месте на плане застройщика был небольшой коридор, ведущий на кухню, мы перенесли вход в гостиную и добавили в санузел душевую.

Зеркало и подвесная полка в прихожей

Непосредственно в грязной зоне прихожей нет места для полноценного шкафа, мы сделали крючки для одежды и небольшой шкаф с поперечной развеской вещей.

Шкаф для одежды в прихожей

Остальное хранение — в шкафу дальше по коридору, где мы также расположили слаботочный, электрический щиты и коллектор отопления.

?autoplay=1" title="YouTube video player" frameborder="0" allow="accelerometer; autoplay; clipboard-write; encrypted-media; gyroscope; picture-in-picture" allowfullscreen>

Мы сняли видеообзор этого интерьера, где подробно рассказали про все наши планировочные и интерьерные решения. Это видео мы опубликовали и на YouTube.

Спальня с рабочим столом
Спальня с рабочим столом в шпоне ясеня
Спальня с гардеробной
Гардеробная система с подсветкой
Гардеробная система из МДФ
Современная гостиная с диваном и телевизором
Современная гостиная со шкафом
Шкаф для книг в гостиной
Современная темная гостиная с мебелью
Шкафы на балконе
Современная угловая кухня
Современная кухня со столешницей из кварца
Ванная комната с мебелью
Тумба под раковину в ванной
Пенал для стиральной машины в ванной
Шкаф для одежды и зеркало в прихожей
Шкаф для одежды в прихожей
Дизайн-проект ванной комнаты с душевой
Маленький санузел с мебелью

Таким мы презентовали интерьер хозяину в финале дизайн-проекта. На этапе проектирования все предметы и материалы были выбраны. Тщательная проработка деталей позволила нам реализовать интерьер таким, каким мы его представили заказчику.

Смета
Смета актуальна на апрель 2021 года. Не является публичной офертой.
Дизайн
947 395 ₽
Дизайн-проект интерьера
7 995 ₽
x
81 м2
=
647 595 ₽
Дизайн-проект мебели
7 495 ₽
x
40 п. м
=
299 800 ₽
Отделочные материалы
2 872 973 ₽
Инженерная доска Lab Arte
3 956 ₽
x
55 м2
=
217 580 ₽
Краска для потолков белая Derufa
8 100 ₽
x
3 шт.
=
24 300 ₽
Краска для потолков темно-серая Derufa
3 750 ₽
x
1 шт.
=
3 750 ₽
Краска для стен серо-бежевая Derufa
9 550 ₽
x
4 шт.
=
38 200 ₽
Краска для стен темно-серая Derufa
10 100 ₽
x
2 шт.
=
20 200 ₽
Керамогранит на полу Porcelanosa
7 617 ₽
x
43 м2
=
327 531 ₽
Керамогранит на фартуке Porcelanosa
6 715 ₽
x
6 м2
=
40 290 ₽
Керамогранит на стенах в душевой тип 1 Porcelanosa
6 371 ₽
x
29 м2
=
184 759 ₽
Керамогранит на стенах в душевой тип 2 Porcelanosa
6 718 ₽
x
5 м2
=
33 590 ₽
Керамогранит в ванной на экране Grespania
5 478 ₽
x
3 м2
=
16 434 ₽
Керамогранит на полу в ванной Venis
5 738 ₽
x
8 м2
=
45 904 ₽
Керамогранит на стенах в ванной Venis
5 933 ₽
x
20 м2
=
118 660 ₽
Керамогранит «волна» в ванной Venis
6 007 ₽
x
5 м2
=
30 035 ₽
Пробковый компенсатор
200 ₽
x
65 шт.
=
13 000 ₽
Масло для пробки
5 220 ₽
x
1 шт.
=
5 220 ₽
Черновые материалы
1 753 520 ₽
x
1 к-т
=
1 753 520 ₽
Окна и двери
928 333 ₽
Окно в спальне
258 230 ₽
x
1 шт.
=
258 230 ₽
Москитная сетка
7 920 ₽
x
2 шт.
=
15 840 ₽
Скрытая дверь Union
49 335 ₽
x
4 шт.
=
197 340 ₽
Стеклянная дверь на кухне Union
118 345 ₽
x
1 шт.
=
118 345 ₽
Стеклянные перегородки и дверь в гардеробной Union
293 385 ₽
x
1 к-т.
=
293 385 ₽
Стопор магнитный Fantom
2 535 ₽
x
5 шт.
=
12 675 ₽
Ручка Linea Cali
4 007 ₽
x
6 шт.
=
24 042 ₽
Завертка Linea Cali
2 119 ₽
x
4 шт.
=
8 476 ₽
Мебель
6 031 526 ₽
1 087 296 ₽
x
1 шт.
=
1 087 296 ₽
Обеденный стол Bontempi
281 734 ₽
x
1 шт.
=
281 734 ₽
Стул Bontempi
47 552 ₽
x
6 шт.
=
285 312 ₽
Тумба прикроватная Cattelan Italia
136 323 ₽
x
2 шт.
=
272 646 ₽
Кровать One Mebel
181 250 ₽
x
1 шт.
=
181 250 ₽
Рабочий стол в спальне Alexander Tischler
276 861 ₽
x
1 шт.
=
276 861 ₽
Шкаф в спальне Alexander Tischler
426 024 ₽
x
1 шт.
=
426 024 ₽
831 184 ₽
x
1 шт.
=
831 184 ₽
Диван One Mebel
286 161 ₽
x
1 шт.
=
286 161 ₽
444 620 ₽
x
1 шт.
=
444 620 ₽
ТВ-тумба Alexander Tischler
67 238 ₽
x
1 шт.
=
67 238 ₽
136 142 ₽
x
2 шт.
=
272 284 ₽
Пуф One Mebel
17 243 ₽
x
1 шт.
=
17 243 ₽
Шкаф, стеновые панели, зеркало в прихожей Alexander Tischler
405 115 ₽
x
1 шт.
=
405 115 ₽
Шкаф хозяйственный в ванной Alexander Tischler
228 311 ₽
x
1 шт.
=
228 311 ₽
Тумба со столешницей в ванной Alexander Tischler
175 198 ₽
x
1 шт.
=
175 198 ₽
Зеркало в душевой Alexander Tischler
27 931 ₽
x
1 шт.
=
27 931 ₽
Стеклянная дверь в душевой Alexander Tischler
62 556 ₽
x
1 шт.
=
62 556 ₽
Электротовары
793 236 ₽
Встраиваемый поворотный светильник Arlight
2 121 ₽
x
50 шт.
=
106 050 ₽
Накладной откидной поворотный светильник Arlight
4 128 ₽
x
2 шт.
=
8 256 ₽
Встраиваемый магнитный шинопровод Faldi
6 900 ₽
x
1 шт.
=
6 900 ₽
Светильник для магнитного шинопровода Faldi
4 680 ₽
x
1 шт.
=
4 680 ₽
Трековый светильник Faldi
3 150 ₽
x
3 шт.
=
9 450 ₽
Гипсокартонный модуль Arl-Line
10 096 ₽
x
4 шт.
=
40 384 ₽
Подвесной светильник в ванной Maytoni
8 700 ₽
x
1 шт.
=
8 700 ₽
Подвесной светильник на кухне Vibia
144 126 ₽
x
2 шт.
=
288 252 ₽
Подвесной светильник у холодильника Vibia
65 545 ₽
x
1 шт.
=
65 545 ₽
Бра в спальне Stylus
10 835 ₽
x
1 шт.
=
10 835 ₽
Встраиваемый подвесной светильник в спальне Stylus
21 287 ₽
x
1 шт.
=
21 287 ₽
Профиль для подсветки ниш
1 490 ₽
x
10 шт.
=
14 900 ₽
Профиль влагозащищенный
2 480 ₽
x
2 шт.
=
4 960 ₽
Накладной профиль для светодиодной ленты
840 ₽
x
6 шт.
=
5 040 ₽
Светодиодная лента Arlight
605 ₽
x
30 шт.
=
18 150 ₽
Врезной профиль для светодиодной ленты
660 ₽
x
5 шт.
=
3 300 ₽
Нагревательный мат Ensto
14 450 ₽
x
5 шт.
=
72 250 ₽
Розетки и выключатели Schnider Electric
104 297 ₽
x
1 к-т.
=
104 297 ₽
Вентиляция и кондиционирование
319 410 ₽
Внутренний блок кондиционера LG
35 489 ₽
x
3 шт.
=
106 467 ₽
Анемостат Helios
3 989 ₽
x
3 шт.
=
11 967 ₽
Наружный блок кондиционера LG
125 531 ₽
x
1 шт.
=
125 531 ₽
Крепежные и расходные материалы
75 445 ₽
x
1 к-т.
=
75 445 ₽
Сантехника
1 063 135 ₽
Раковина в душевой Laufen
36 507 ₽
x
1 шт.
=
36 507 ₽
Подвесной унитаз в душевой Laufen
54 095 ₽
x
1 шт.
=
54 095 ₽
Смеситель для раковины в душевой Paffoni
13 260 ₽
x
1 шт.
=
13 260 ₽
Смеситель для душа Paffoni
20 740 ₽
x
1 шт.
=
20 740 ₽
Душевой гарнитур Paffoni
12 980 ₽
x
1 шт.
=
12 980 ₽
Верхний душ с держателем Paffoni
49 780 ₽
x
1 шт.
=
49 780 ₽
Душевой трап с решеткой Aсо
26 989 ₽
x
1 шт.
=
26 989 ₽
Гигиенический душ со смесителем Paffoni
13 990 ₽
x
1 шт.
=
13 990 ₽
Держатель для полотенец в душевой Noken
11 346 ₽
x
1 шт.
=
11 346 ₽
Ванна Villeroy & Boch
105 185 ₽
x
1 шт.
=
105 185 ₽
Раковина в ванной Villeroy & Boch
31 538 ₽
x
1 шт.
=
31 538 ₽
Смеситель для раковины в ванной Paffoni
23 020 ₽
x
1 шт.
=
23 020 ₽
Душевой комплект в ванной Paffoni
102 030 ₽
x
1 шт.
=
102 030 ₽
Унитаз в ванной Villeroy & Boch
49 768 ₽
x
1 шт.
=
49 768 ₽
Инсталляция Тесе
18 920 ₽
x
2 шт.
=
37 840 ₽
Полка в ванной Noken
13 950 ₽
x
2 шт.
=
27 900 ₽
Держатель полотенец в ванной Noken
24 459 ₽
x
1 шт.
=
24 459 ₽
Крючок-вешалка Noken
6 231 ₽
x
4 шт.
=
24 924 ₽
Полотенцесушитель электрический Terma
43 038 ₽
x
2 шт.
=
86 076 ₽
Мойка на кухне Blanco
36 500 ₽
x
1 шт.
=
36 500 ₽
Кухонный смеситель Omoikiri
31 388 ₽
x
1 шт.
=
31 388 ₽
Трубчатый радиатор в гостиной и на кухне Loten
44 220 ₽
x
2 шт.
=
88 440 ₽
Трубчатый радиатор в спальне Loten
49 710 ₽
x
1 шт.
=
49 710 ₽
Система контроля протечки Neptun
34 890 ₽
x
3 к-т.
=
104 670 ₽
Работы
3 935 907 ₽
Управление строительно-монтажными работами
4 995 ₽
x
81 м2
=
404 595 ₽
Строительно-монтажные работы
2 759 727 ₽
x
1 шт.
=
2 759 727 ₽
Логистические расходы
140 000 ₽
x
1 шт.
=
140 000 ₽
Монтаж мебели
631 585 ₽
x
1 шт.
=
631 585 ₽
Итого
16 891 915 ₽
Команда
Карен Карапетян
Главный дизайнер
Диана Беседина
Главный дизайнер проекта
Олег Мокрушников
Инженер
Константин Прохоров
Инженер
Екатерина Демкина
Руководитель по закупкам
Павел Прохоров
Руководитель по отделке
Алексей Степанов
Шеф-монтажник
Настасья Корбут
Стилист
Ярослав Лукьянченко
Фотограф
Вера Минченкова
Автор текста

Производство интерьера от договора до въезда
занимает от 12 месяцев

Разработка дизайн-проекта интерьера
1-й квартал
Разработка дизайн-проекта мебели
Фиксация сметы
2-й квартал
Монтаж перегородок
Монтаж инженерных систем
3-й квартал
Монтаж потолков
Отделочные работы
Монтаж дверей
4-й квартал
Монтаж мебели
и техники
Клининг
Производство интерьера от договора до въезда
занимает от 12 месяцев
Проектные работы
1-й квартал
2-й квартал
3-й квартал
4-й квартал
Обмеры квартиры
Разработка планировочного решения
Разработка эскизного проекта интерьера
Разработка рабочего проекта интерьера
Разработка эскизного проекта мебели
Разработка рабочего проекта мебели
Проектирование вентиляции
Проектирование отопления
Проектирование водоснабжения
Проектирование канализации
Проектирование электроснабжения
Составление сметы
Авторский надзор
Отделочные работы
Демонтаж перегородок
Монтаж перегородок
Грунтование стен
Штукатурка стен
Звукоизоляция стен
Шпаклевание стен
Приклеивание стеклохолста на стены
Покраска стен
Приклеивание керамогранита на стены
Монтаж звуко-гидроизоляции на пол
Выравнивание полов стяжкой
Монтаж тёплых полов
Укладка керамогранита на пол
Грунтование пола
Укладка фанеры на пол
Укладка паркетной доски на пол
Монтаж пробкового компенсатора
Звукоизоляция потолка
Монтаж потолка из гипсокартона
Грунтование потолка
Шпаклевание потолка
Приклеивание стеклохолста на потолок
Покраска потолка
Клининг
Инженерные системы
Монтаж водоснабжения и канализации
Монтаж отопления
Монтаж электроснабжения
Монтаж приточной вентиляции
Монтаж кондиционеров
Окна и двери
Монтаж окон
Установка дверей
Мебель и техника
Производство мебели
Монтаж мебели
Установка техники
Состоим в профессиональных сообществах США и России
Лёгкий ремонт
Вы покупаете интерьер как готовый продукт. Ремонт не оторвёт вас от семьи, дел и отдыха. Товары, логистику и работы контролируем мы.
Один ответственный
Мы отвечаем за весь интерьер материально и решение возможных проблем берём на себя.
Неизменная цена
В конце дизайн-проекта фиксируем смету всего интерьера. В процессе реализации цена не поднимется.

Другие интерьеры

Все интерьеры