Квартира 170 м2 с кухонным островом и спальней для дорогих гостей в Москве: фотографии, видео и смета готового интерьера

Квартира 170 м<sup>2</sup> с кухонным островом и спальней для дорогих гостей: фотографии, видео и смета готового интерьера

Этот интерьер мы спроектировали для взрослой пары, их дети и внуки живут в другой стране и любят приезжать в гости. Заказчики хотели создать теплый интерьер с деревянными текстурами и оттенками зеленого.

Мы сделали дизайн-проект и реализовали этот интерьер. Мы подготовили смету и зафиксировали стоимость реализации еще на этапе проектирования, и в процессе ремонта сумма не изменилась. Корпусную мебель спроектировали и изготовили специально для этой квартиры.

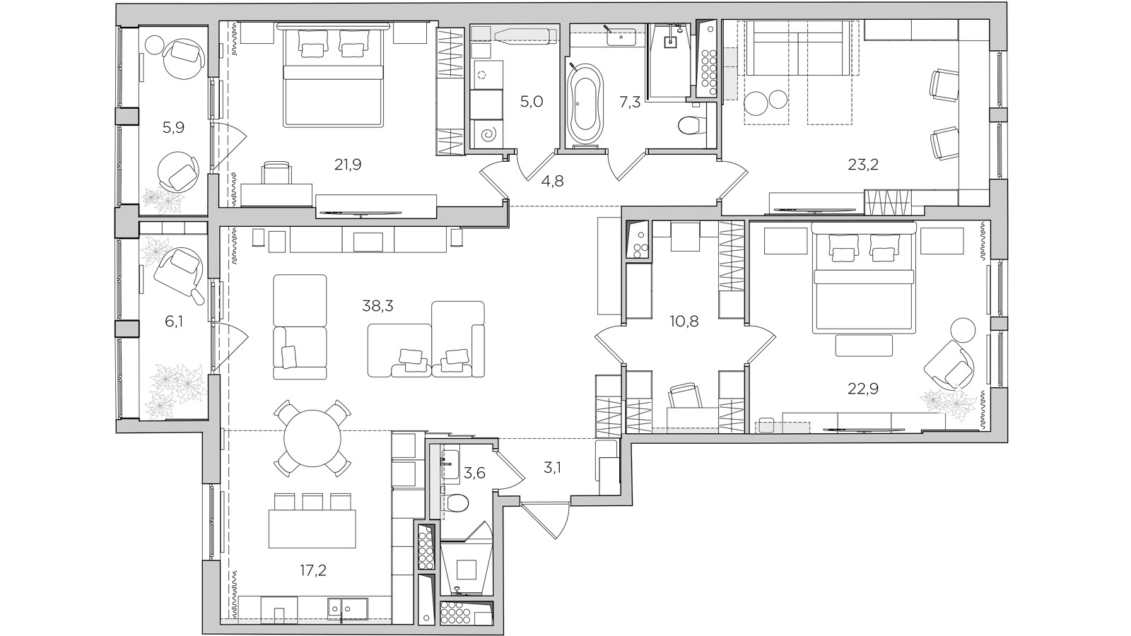
Площадь 170 м2
Тип Трехкомнатная квартира
Годы 2022-2023
Особенности Проходная прихожая, крохотный гостевой санузел, обособленные кухня и гостиная, большой коридор, несущие пилоны, формирующие спальни
Было
Стало
Несущие пилоны, формирующие комнаты
Большой темный коридор
Просторная ванная
Проходная прихожая
Узкий гостевой санузел без душа
Большую ванную разделили на две части и сделали прачечную
На части спальни организовали проходную гардеробную
Объединили кухню и гостиную
Присоединили коридор к просторной кухне-гостиной
Отделили зону прихожей с санузлом, в который добавили душ
Интерьер гостиной в современном стиле

Перед нами стояла важная задача: сделать в квартире место, в котором было бы комфортно проводить время заказчикам и их семье. Застройщик предполагал обособленные кухню и гостиную, мы объединили их с коридором, который вел из прихожей в спальни. После объединения получилось большое светлое пространство площадью 55,5 м2.

Шкаф для одежды в прихожей

В зоне прихожей мы разместили консоль с ящиком для мелочей, зеркало от пола до потолка с подсветкой и небольшой пуф. Далее по коридору мы поставили шкаф для верхней одежды. Прихожую мы визуально выделили с помощью керамогранита на полу и стенах. 

Санузел с душевой

В гостевой санузел можно войти из прихожей, мы увеличили его за счет маленького коридора, который вел на кухню, благодаря этому мы смогли добавить душевую. В этом санузле сочетаются керамогранит под дерево и темный керамогранит под камень Italon. В нише над инсталляцией мы разместили накопительный водонагреватель и коллекторный узел.

Душевая со стеклянной перегородкой
Стеновые панели в шпоне дуба

Между прихожей и кухней мы смонтировали ступенчатые стеновые панели, которые переходят в кухонные пеналы. Свет от окна днем и вертикальная подсветка вечером дополнительно выделяют текстуру шпона дуба.

Кухня-гостиная в современном стиле

В объединенной кухне-гостиной мы поставили кухонный остров, обеденный стол и два глубоких дивана. Заказчики большие меломаны, поэтому особое внимание в этой квартире мы уделили устройству акустики. В гостиной установлен девятиканальный музыкальный центр со встроенными потолочными колонками. Также вместо телевизора по просьбе хозяев мы разместили лазерный проектор с экраном.

Мебель для гостиной
Современная гостиная
Современная угловая кухня

Большую угловую кухню мы сделали в темном шпоне — еще одно пожелание хозяев. В пеналах мы спроектировали специальную нишу с подсветкой для легкого доступа к бытовым приборам, которые нужны несколько раз в день. Под микроволновой печью мы установили необычный бытовой прибор — это встраиваемый подогреватель для посуды, с ним блюда будут дольше оставаться теплыми.

Кухонные шкафы в шпоне дуба

У этой кухни нет верхних шкафов, стену над нижними модулями мы оформили керамогранитом, который разбили на разноразмерные фрагменты. Чтобы эта стена оставалась чистым панно, мы установили варочную панель со встроенной вытяжкой. Для подсветки обеденного стола и острова мы выбрали круглый светильник от Vibia и минималистичный от CVL.

Подробнее об устройстве кухни мы рассказали на видео.

Угловой кухонный гарнитур

В кухонном острове мы предусмотрели углубление для ног со стороны стола. А со стороны модулей мы сделали ящики и установили винный шкаф. Столешницу и боковины острова мы изготовили из кварцевого камня. Розетки мы предусмотрели в самой столешнице и на торце острова.

Кухонный гарнитур с техникой

О том, как устроен остров и почему мы считаем его отличным решением для просторной кухни, рассказали в этом видео.

Мебель для гостиной в современном стиле

Стена в гостиной переходит в панели и скрытую дверь в шпоне дуба. Дверь ведет в спальню, которую заказчики предусмотрели на случай приезда детей. 

Дизайн интерьера спальни

Для отделки стены в спальне мы выбрали глубокий оттенок зеленого. В светлом оттенке подобрали обивку для кресла у косметического столика.

Шкаф для одежды с подсветкой
Шкаф для одежды в спальню

Для этой спальни мы спроектировали и сделали большой шкаф с фасадами из тонированного стекла, он заменяет гардеробную не только благодаря вместительности, но и благодаря подсветке полок, которая делает шкаф эффектным элементом интерьера, он теперь не просто утилитарный предмет.

Современная спальня

За изголовьем мы установили стеновые панели, сверху у них есть подсветка. К панелям крепятся подвесные прикроватные тумбы со встроенными беспроводными зарядками.

Мебель для спальни

В зоне ТВ в этой спальне мы сделали подвесную полку-консоль и напольную тумбу для хранения постельного белья. Ближе к балкону мы расположили рабочее место и по совместительству столик для макияжа.

Ремонт и отделка балкона

Для отделки стен и оконных откосов на балконе мы использовали такие же панели в шпоне дуба, как в остальной квартире. Эту зону гости будут использовать только для отдыха: здесь мы поставили два кресла Mononova и металлический журнальный столик Bonaldo.

Дизайн интерьера ванной комнаты

Правее от гостевой спальни застройщик предполагал большую ванную комнату площадью 10 м2, заказчикам такая просторная ванная была не нужна, и мы разделили ее на прачечную и санузел. 

Отдельно стоящая ванна в ванной комнате

После перепланировки площадь ванной уменьшилась до 7,3 м2, и здесь свободно разместились отдельно стоящая ванна и душевая. В душевой нишу для гелей и шампуней мы отделали черным искусственным камнем. 

Ванная комната с душевой
Хозяйственный шкаф в квартире

В прачечной, которую мы сделали на части бывшей ванной, мы разместили стиральную, сушильную машины и сушильный шкаф. Для гладильной доски мы предусмотрели место под подвесным шкафом, у него снизу есть подсветка и штанга для развески одежды, слева от доски остается место для бельевых корзин. В пенале и модулях можно хранить пылесосы и бытовую химию.

Дизайн интерьера спальни в современном стиле

Для своей спальни хозяева выбрали комнату с двумя окнами справа от входа в квартиру. Вся спальня выполнена в спокойных оттенках, но с активными текстурами. Так, стену за изголовьем мы оформили стеновыми панелями в шпоне ясеня. А для отделки стены за телевизором выбрали керамогранит с каменной текстурой. Случайная разбивка плит и панелей добавляет интерьеру небрежности, облегчая брутальные материалы.

Мебель для спальни
Тумба под телевизор в спальне

Про наши интерьерные решения в этой спальне рассказали на видео.

Интерьер спальни в современном стиле

Напоминанием о любви хозяев к оттенкам зеленого служит кресло в ярко-салатовой обивке. К нему в пару мы добавили кофейный столик от Kartell. 

Журнальный столик и кресло в спальне
Гардеробная система в современном стиле
Проходная гардеробная комната

Идея сделать гардеробную — то, с чего началось наше знакомство с заказчиками. Они увидели гардеробную в одном из наших прошлых проектов и уверенно сказали, что хотят такую же. Эта гардеробная отделяет спальню хозяев от остальной квартиры. Здесь есть открытые модули с полками и штангами, шкафы со стеклянными фасадами и подсветкой. Также в этой гардеробной мы разместили стайлер и подвесной косметический столик у большого зеркала.

Большое зеркало в гардеробной
Зеркало с подсветкой в гардеробной

Мы смонтировали подсветку практически на каждой полке: с таким освещением она становится похожей на гримерную прима-балерины. За зеркалом над столиком скрывается шкаф с неглубокими полками для коллекции парфюмов хозяйки. За нижним зеркалом мы сделали коллекторный узел отопления.

Шкаф для одежды в гардеробной
Шкаф для обуви в гардеробной

Подробно об устройстве гардеробной мы рассказали на видео.

Раскладной диван в кабинете

Эта комната с двойным назначением: кабинет для хозяев и спальня для внуков, когда они приезжают погостить. Для решения задачи со спальными местами мы выбрали диван-трансформер от итальянской фабрики Clei, он раскладывается в две отдельные кровати.

На видео мы показали, как раскладывается диван.

Кабинет в квартире

Вдоль окна мы разместили длинный подвесной стол с ящиками. Слева и справа от него мы установили шкафы для документов хозяев и одежды внуков на время их приезда.

Распашной шкаф для книг
Шкаф для книг со стеклянными фасадами
Книжный шкаф с подсветкой
Распашной шкаф для одежды
Стеллаж для книг

Таким получился интерьер квартиры, в которой будет собираться большая семья. Несмотря на готовность в любой момент принять дорогих гостей, этот дом остается удобным для своих главных жильцов — наших заказчиков.

?autoplay=1" title="YouTube video player" frameborder="0" allow="accelerometer; autoplay; clipboard-write; encrypted-media; gyroscope; picture-in-picture" allowfullscreen>

Мы сняли видеообзор этого интерьера, где подробно рассказали про все наши планировочные и интерьерные решения. Это видео мы опубликовали и на YouTube.

Кухня-гостиная с двумя диванами
Прихожая в современном интерьере
Прихожая с зеркалом и шкафом
Современная кухня-гостиная
Кухня-гостиная в современном стиле
Кухня в современном стиле
Кухня-гостиная с проектором
Кухонный остров дизайн и производство в Москве
Кухонный остров с ящиками
Большая кухня-гостиная в современном стиле
Гостевой санузел с душем
Спальня с большой кроватью
Шкаф с подсветкой в спальне
Косметический столик в спальне
Гардеробная с подсветкой
Гардеробная с зеркалом
Спальня с большой кроватью
Спальня в современном стиле дизайн-проект в Москве
Ванная комната в современном стиле
Кабинет с большим рабочим столом
Раскладной диван в кабинете
Прачечная в квартире

Это эскизы, с помощью которых мы презентовали интерьер на этапе проектирования: все предметы и материалы были выбраны. Тщательная проработка деталей позволила нам реализовать интерьер, полностью соответствующий проекту.

Смета
Смета актуальна на июнь 2022 года. Не является публичной офертой.
Дизайн
2 018 710 ₽
Дизайн-проект интерьера
7 995 ₽
x
170 м2
=
1 359 150 ₽
Дизайн-проект мебели
7 495 ₽
x
88 п. м
=
659 560 ₽
Отделочные материалы
8 427 927 ₽
Инженерная доска Lab Arte
6 902 ₽
x
142 м2
=
980 084 ₽
Керамогранит светлый Italon
3 505 ₽
x
92 м2
=
322 460 ₽
Керамогранит на полу в гостевом санузле Italon
3 735 ₽
x
6 м2
=
22 410 ₽
Керамическая плитка на стенах Italon
3 805 ₽
x
13 м2
=
49 465 ₽
Керамогранит с текстурой дерева Italon
1 600 ₽
x
130 м2
=
208 000 ₽
Керамогранит в прачечной Italon
4 395 ₽
x
33 м2
=
145 035 ₽
Керамогранит на полу в ванной Venis
9 420 ₽
x
11 м2
=
103 620 ₽
Керамическая плитка в ванной Venis
9 740 ₽
x
23 м2
=
224 020 ₽
Керамическая плитка «волна» в ванной Venis
9 740 ₽
x
15 м2
=
146 100 ₽
Краска для потолка белая Derufa
17 700 ₽
x
3 шт.
=
53 100 ₽
Краска для потолка серо-бежевая Derufa
6 600 ₽
x
1 шт.
=
6 600 ₽
Краска для стен серо-бежевая Derufa
19 610 ₽
x
4 шт.
=
78 440 ₽
Краска для стен зеленая Derufa
6 950 ₽
x
1 шт.
=
6 950 ₽
Краска для стен коричневая Derufa
6 950 ₽
x
1 шт.
=
6 950 ₽
Пробковый компенсатор
325 ₽
x
112 шт.
=
36 400 ₽
Масло для пробки
6 800 ₽
x
1 шт.
=
6 800 ₽
Черновые материалы
6 031 493 ₽
x
1 к-т
=
6 031 493 ₽
Двери
937 834 ₽
Входная дверь Portalle
296 500 ₽
x
1 шт.
=
296 500 ₽
Стеклянная дверь в гостевом санузле Union
161 694 ₽
x
1 шт.
=
161 694 ₽
Дверь в гардеробной Union
91 640 ₽
x
1 шт.
=
91 640 ₽
Дверь скрытого монтажа Union
71 000 ₽
x
4 шт.
=
284 000 ₽
Дверь в детской Union
37 300 ₽
x
1 шт.
=
37 300 ₽
Ручка дверная Frosio Bortolo
6 100 ₽
x
7 шт.
=
42 700 ₽
Завертка дверная Forme
2 600 ₽
x
6 шт.
=
15 600 ₽
Стопор дверной Colombo
1 200 ₽
x
7 шт.
=
8 400 ₽
Мебель
15 358 383 ₽
Подвесная консоль и зеркало с подсветкой в прихожей Alexander Tischler
136 427 ₽
x
1 к-т
=
136 427 ₽
Шкаф для одежды в прихожей Alexander Tischler
415 513 ₽
x
1 шт.
=
415 513 ₽
Пуф в прихожей Alexander Tischler
30 219 ₽
x
1 шт.
=
30 219 ₽
Комод в коридоре Alexander Tischler
309 393 ₽
x
1 шт.
=
309 393 ₽
Cтеновые панели в прихожей Alexander Tischler
318 605 ₽
x
1 к-т
=
318 605 ₽
ТВ-тумба в гостиной Alexander Tischler
286 108 ₽
x
1 шт.
=
286 108 ₽
Диван Mononova
164 000 ₽
x
1 шт.
=
164 000 ₽
Диван Mononova
212 061 ₽
x
1 шт.
=
212 061 ₽
Стеновые панели с подсветкой в гостиной Alexander Tischler
304 004 ₽
x
1 к-т
=
304 004 ₽
Кухня с островом и столешницей Alexander Tischler
2 078 501 ₽
x
1 шт.
=
2 078 501 ₽
Полубарный стул Unika Moblar
37 200 ₽
x
3 шт.
=
111 600 ₽
Обеденный стол Unika Moblar
146 600 ₽
x
1 шт.
=
146 600 ₽
Стул Unika Moblar
48 900 ₽
x
4 шт.
=
195 600 ₽
Оконные откосы Alexander Tischler
64 247 ₽
x
1 к-т
=
64 247 ₽
Обрамление окoнно-дверного блока в гостиной Alexander Tischler
59 297 ₽
x
1 к-т
=
59 297 ₽
Стеновые панели с подсветкой на балконе Alexander Tischler
114 131 ₽
x
1 к-т
=
114 131 ₽
Обрамление окна на балконе Alexander Tischler
223 876 ₽
x
1 к-т
=
223 876 ₽
Шкаф с подсветкой на балконе Alexander Tischler
348 834 ₽
x
1 шт.
=
348 834 ₽
Кресло на балконе Mononova
99 231 ₽
x
1 шт.
=
99 231 ₽
Кофейный стол на балконе Cattelan Italia
28 067 ₽
x
1 шт.
=
28 067 ₽
Шкаф для одежды в гостевой спальне Alexander Tischler
707 523 ₽
x
1 шт.
=
707 523 ₽
Консоль и ТВ-тумба в гостевой спальне Alexander Tischler
206 595 ₽
x
1 к-т
=
206 595 ₽
Подвесной стол, зеркало и стеновая панель в гостевой спальне Alexander Tischler
126 602 ₽
x
1 к-т
=
126 602 ₽
Стеновые панели и прикроватные тумбы в гостевой спальне Alexander Tischler
157 710 ₽
x
1 к-т
=
157 710 ₽
Кровать в гостевой спальне Mononova
189 231 ₽
x
1 шт.
=
189 231 ₽
Стул в гостевой спальне Unika Moblar
56 000 ₽
x
1 шт.
=
56 000 ₽
Стеновые панели на балконе в гостевой спальне Alexander Tischler
642 733 ₽
x
1 к-т
=
642 733 ₽
Оконные откосы на балконе в гостевой спальне Alexander Tischler
220 017 ₽
x
1 к-т
=
220 017 ₽
Кресло на балконе в гостевой спальне Mononova
81 538 ₽
x
2 шт.
=
163 076 ₽
Журнальный стол на балконе в гостевой спальне Bonaldo
22 733 ₽
x
1 шт.
=
22 733 ₽
Мебель в прачечной Alexander Tischler
237 198 ₽
x
1 к-т
=
237 198 ₽
Корзина для белья в прачечной Umbra
6 160 ₽
x
2 шт.
=
12 320 ₽
Ниша из акрилового камня в ванной Alexander Tischler
69 300 ₽
x
1 шт.
=
69 300 ₽
Тумба под раковину в ванной Alexander Tischler
171 621 ₽
x
1 шт.
=
171 621 ₽
Столешница на тумбу в ванной Alexander Tischler
52 056 ₽
x
1 шт.
=
52 056 ₽
Шкаф с зеркалом в ванной Alexander Tischler
130 432 ₽
x
1 шт.
=
130 432 ₽
Шкаф над инсталляцией в ванной Alexander Tischler
119 058 ₽
x
1 шт.
=
119 058 ₽
Стеклянная перегородка в ванной Alexander Tischler
162 542 ₽
x
1 шт.
=
162 542 ₽
Стеновые панели у дивана в кабинете Alexander Tischler
167 308 ₽
x
1 к-т
=
167 308 ₽
Kнижные полки в кабинете Alexander Tischler
85 969 ₽
x
1 к-т
=
85 969 ₽
Диван-трансформер в кабинете Clei
881 681 ₽
x
1 шт.
=
881 681 ₽
Шкаф для документов, шкаф для одежды, подвесной стол в кабинете Alexander Tischler
1 339 775 ₽
x
1 к-т
=
1 339 775 ₽
Стул в кабинете и гардеробной Unika Moblar
61 800 ₽
x
3 шт.
=
185 400 ₽
Подвесная ТВ-тумба и стеновые панели в кабинете Alexander Tischler
263 051 ₽
x
1 шт.
=
263 051 ₽
Журнальный стол в кабинете черный Bontempi
18 480 ₽
x
1 шт.
=
18 480 ₽
Журнальный столик в кабинете бронзовый Bontempi
22 330 ₽
x
1 шт.
=
22 330 ₽
Гардеробная система Alexander Tischler
1 072 211 ₽
x
1 шт.
=
1 072 211 ₽
Туалетный стол и зеркальный шкаф Alexander Tischler
282 550 ₽
x
1 к-т
=
282 550 ₽
Стеновые панели с подсветкой в спальне Alexander Tischler
261 054 ₽
x
1 к-т
=
261 054 ₽
Прикроватна тумба в спальне Alexander Tischler
206 662 ₽
x
2 шт.
=
413 324 ₽
Кровать в спальне Mononova
194 615 ₽
x
1 шт.
=
194 615 ₽
Банкетка в спальне Alexander Tischler
33 108 ₽
x
1 шт.
=
33 108 ₽
Кресло в спальне Mononova
106 154 ₽
x
1 шт.
=
106 154 ₽
Журнальный столик в спальне Kartell
47 003 ₽
x
1 шт.
=
47 003 ₽
ТВ-тумба, полки и стеновые панели в спальне Alexander Tischler
415 130 ₽
x
1 к-т
=
415 130 ₽
Подвесная тумба под раковину со столешницей в гостевом санузле Alexander Tischler
116 667 ₽
x
1 к-т
=
116 667 ₽
Шкаф над инсталляцией в гостевом санузле Alexander Tischler
185 473 ₽
x
1 шт.
=
185 473 ₽
Стеклянная перегородка с дверью в гостевом санузле Alexander Tischler
174 039 ₽
x
1 к-т
=
174 039 ₽
Электротовары
1 673 651 ₽
Цилиндрический светильник белый Maytoni
2 650 ₽
x
46 шт.
=
121 900 ₽
Цилиндрический светильник черный Maytoni
2 650 ₽
x
15 шт.
=
39 750 ₽
Светильник над обеденным столом Vibia
115 346 ₽
x
1 шт.
=
115 346 ₽
Светильник над кухонным островом CVL
185 354 ₽
x
1 шт.
=
185 354 ₽
Торшер в кабинете Vibia
71 148 ₽
x
1 шт.
=
71 148 ₽
Подвесной светильник у кровати в спальне Vibia
67 914 ₽
x
2 шт.
=
135 828 ₽
Бра на балконе в гостиной Leds C4
12 499 ₽
x
2 шт.
=
24 998 ₽
Подвесной светильник в детской Leds C4
15 335 ₽
x
2 шт.
=
30 670 ₽
Бра в детской Leds C4
9 121 ₽
x
1 шт.
=
9 121 ₽
Бра на балконе в спальне Arlight
8 185 ₽
x
1 шт.
=
8 185 ₽
Светодиодная лента Arlight
655 ₽
x
40 шт.
=
26 200 ₽
Угловой профиль для подсветки ниш
1 199 ₽
x
11 шт.
=
13 189 ₽
Рассеиватель для углового профиля
341 ₽
x
33 шт.
=
11 253 ₽
Профиль для подсветки фартука
837 ₽
x
3 шт.
=
2 511 ₽
Выключатели и розетки Bitcino
725 058 ₽
x
1 к-т
=
725 058 ₽
Карнизы для раздвижных штор Xiaomi
153 140 ₽
x
1 шт.
=
153 140 ₽
Вентиляция и кондиционирование
1 752 801 ₽
Вентиляция DEC
110 096 ₽
x
1 к-т
=
110 096 ₽
Кондиционирование Daikin
1 367 385 ₽
x
1 к-т
=
1 367 385 ₽
Система увлажнения Carel
275 320 ₽
x
1 к-т
=
275 320 ₽
Сантехника
2 909 334 ₽
Радиатор в детской Гармония
36 523 ₽
x
1 шт.
=
36 523 ₽
Радиатор в детской Гармония
30 958 ₽
x
1 шт.
=
30 958 ₽
Радиатор в кухне-гостиной Гармония
50 426 ₽
x
1 шт.
=
50 426 ₽
Радиатор в кухне-гостиной Гармония
30 958 ₽
x
1 шт.
=
30 958 ₽
Радиатор в кухне-гостиной Гармония
38 614 ₽
x
1 шт.
=
38 614 ₽
Радиатор в кабинете и спальне Гармония
34 910 ₽
x
4 шт.
=
139 640 ₽
Кронштейны для радиаторов
240 ₽
x
36 шт.
=
8 640 ₽
Комплект подключения радиатора
8 048 ₽
x
9 шт.
=
72 432 ₽
Полка в прачечной MyOry
3 990 ₽
x
1 шт.
=
3 990 ₽
Мойка на кухне Omoikiri
36 988 ₽
x
1 шт.
=
36 988 ₽
Смеситель на кухне Omoikiri
38 688 ₽
x
1 шт.
=
38 688 ₽
Дозатор Omoikiri
7 388 ₽
x
1 шт.
=
7 388 ₽
Унитаз-биде Grohe
427 457 ₽
x
2 шт.
=
854 914 ₽
Инсталляция с кнопкой смыва Grohe
182 593 ₽
x
2 шт.
=
365 186 ₽
Раковина в гостевом санузле Villeroy & Boch
113 350 ₽
x
1 шт.
=
113 350 ₽
Сифон для раковины Timo
11 580 ₽
x
1 шт.
=
11 580 ₽
Смеситель для раковины в гостевом санузле Timo
37 187 ₽
x
1 шт.
=
37 187 ₽
Дозатор жидкого мыла Timo
6 432 ₽
x
2 шт.
=
12 864 ₽
Стакан для щеток Timo
4 889 ₽
x
2 шт.
=
9 778 ₽
Держатель туалетной бумаги Timo
13 965 ₽
x
2 шт.
=
27 930 ₽
Ерш Timo
10 811 ₽
x
2 шт.
=
21 622 ₽
Держатель полотенца Timo
15 990 ₽
x
2 шт.
=
31 980 ₽
Кручок для полотенца Timo
3 308 ₽
x
5 шт.
=
16 540 ₽
Полка в гостевом санузле MyOry
4 600 ₽
x
2 шт.
=
9 200 ₽
Душевая система в гостевом санузле Timo
105 254 ₽
x
1 шт.
=
105 254 ₽
Трап напольный Tece
44 910 ₽
x
2 шт.
=
89 820 ₽
Ванна Riho
336 930 ₽
x
1 шт.
=
336 930 ₽
Напольный смеситель для ванны Timo
150 864 ₽
x
1 шт.
=
150 864 ₽
Душевая система в ванной Timo
64 206 ₽
x
1 шт.
=
64 206 ₽
Полка в ванной MyOry
8 850 ₽
x
1 шт.
=
8 850 ₽
Раковина в ванной Villeroy & Boch
105 336 ₽
x
1 шт.
=
105 336 ₽
Смеситель для раковины Timo
40 698 ₽
x
1 шт.
=
40 698 ₽
Работы
9 030 416 ₽
Управление строительно-монтажным работами
4 995 ₽
x
170 шт.
=
849 150 ₽
Строительно-монтажные работы
6 748 006 ₽
x
1 шт.
=
6 748 006 ₽
Логистические расходы
180 000 ₽
x
1 шт.
=
180 000 ₽
Монтаж мебели
1 253 260 ₽
x
1 шт.
=
1 253 260 ₽
Итого
42 109 056 ₽
Команда
Карен Карапетян
Главный дизайнер
Юлия Убоженко
Дизайнер
Константин Прохоров
Инженер
Олег Мокрушников
Инженер
Любовь Венерцева
Инженер
Екатерина Демкина
Руководитель по закупкам
Карен Никоян
Руководитель по отделке
Евгений Бридня
Шеф-монтажник
Евгений Кулибаба
Фотограф
Кира Прохорова
Стилист
Вера Минченкова
Автор текста
Интерьер по фиксированной смете
Мы тщательно разрабатываем дизайн-проект интерьера, поэтому еще до начала ремонта составляем точную смету и фиксируем стоимость реализации. В процессе ремонта она не изменится. Если вы хотите воплотить интерьер мечты без переплат, давайте работать!

Производство интерьера от договора до въезда
занимает от 12 месяцев

Разработка дизайн-проекта интерьера
1-й квартал
Разработка дизайн-проекта мебели
Фиксация сметы
2-й квартал
Монтаж перегородок
Монтаж инженерных систем
3-й квартал
Монтаж потолков
Отделочные работы
Монтаж дверей
4-й квартал
Монтаж мебели
и техники
Клининг
Производство интерьера от договора до въезда
занимает от 12 месяцев
Проектные работы
1-й квартал
2-й квартал
3-й квартал
4-й квартал
Обмеры квартиры
Разработка планировочного решения
Разработка эскизного проекта интерьера
Разработка рабочего проекта интерьера
Разработка эскизного проекта мебели
Разработка рабочего проекта мебели
Проектирование вентиляции
Проектирование отопления
Проектирование водоснабжения
Проектирование канализации
Проектирование электроснабжения
Составление сметы
Авторский надзор
Отделочные работы
Демонтаж перегородок
Монтаж перегородок
Грунтование стен
Штукатурка стен
Звукоизоляция стен
Шпаклевание стен
Приклеивание стеклохолста на стены
Покраска стен
Приклеивание керамогранита на стены
Монтаж звуко-гидроизоляции на пол
Выравнивание полов стяжкой
Монтаж тёплых полов
Укладка керамогранита на пол
Грунтование пола
Укладка фанеры на пол
Укладка паркетной доски на пол
Монтаж пробкового компенсатора
Звукоизоляция потолка
Монтаж потолка из гипсокартона
Грунтование потолка
Шпаклевание потолка
Приклеивание стеклохолста на потолок
Покраска потолка
Клининг
Инженерные системы
Монтаж водоснабжения и канализации
Монтаж отопления
Монтаж электроснабжения
Монтаж приточной вентиляции
Монтаж кондиционеров
Окна и двери
Монтаж окон
Установка дверей
Мебель и техника
Производство мебели
Монтаж мебели
Установка техники
Состоим в профессиональных сообществах США и России
Лёгкий ремонт
Вы покупаете интерьер как готовый продукт. Ремонт не оторвёт вас от семьи, дел и отдыха. Товары, логистику и работы контролируем мы.
Один ответственный
Мы отвечаем за весь интерьер материально и решение возможных проблем берём на себя.
Неизменная цена
В конце дизайн-проекта фиксируем смету всего интерьера. В процессе реализации цена не поднимется.

Другие интерьеры

Все интерьеры