170 m2 Apartment With a Kitchen Island and Guest Bedroom in Moscow: Photos, Videos, and Estimate of the Completed Interior

170 m<sup>2</sup> Apartment With a Kitchen Island and Guest Bedroom: Photos, Videos, and Interior Estimate

We designed this interior for a couple whose children and grandchildren live in another country and love to come to visit. The clients desired to have a cozy interior with wooden textures and green shades.

We made a design project and completed the interior. We prepared the estimate and fixed the price for the completion in the stage of designing, therefore the price hadn’t changed during the repair process. We designed the cabinet furniture specially for this apartment.

Size 170 m2
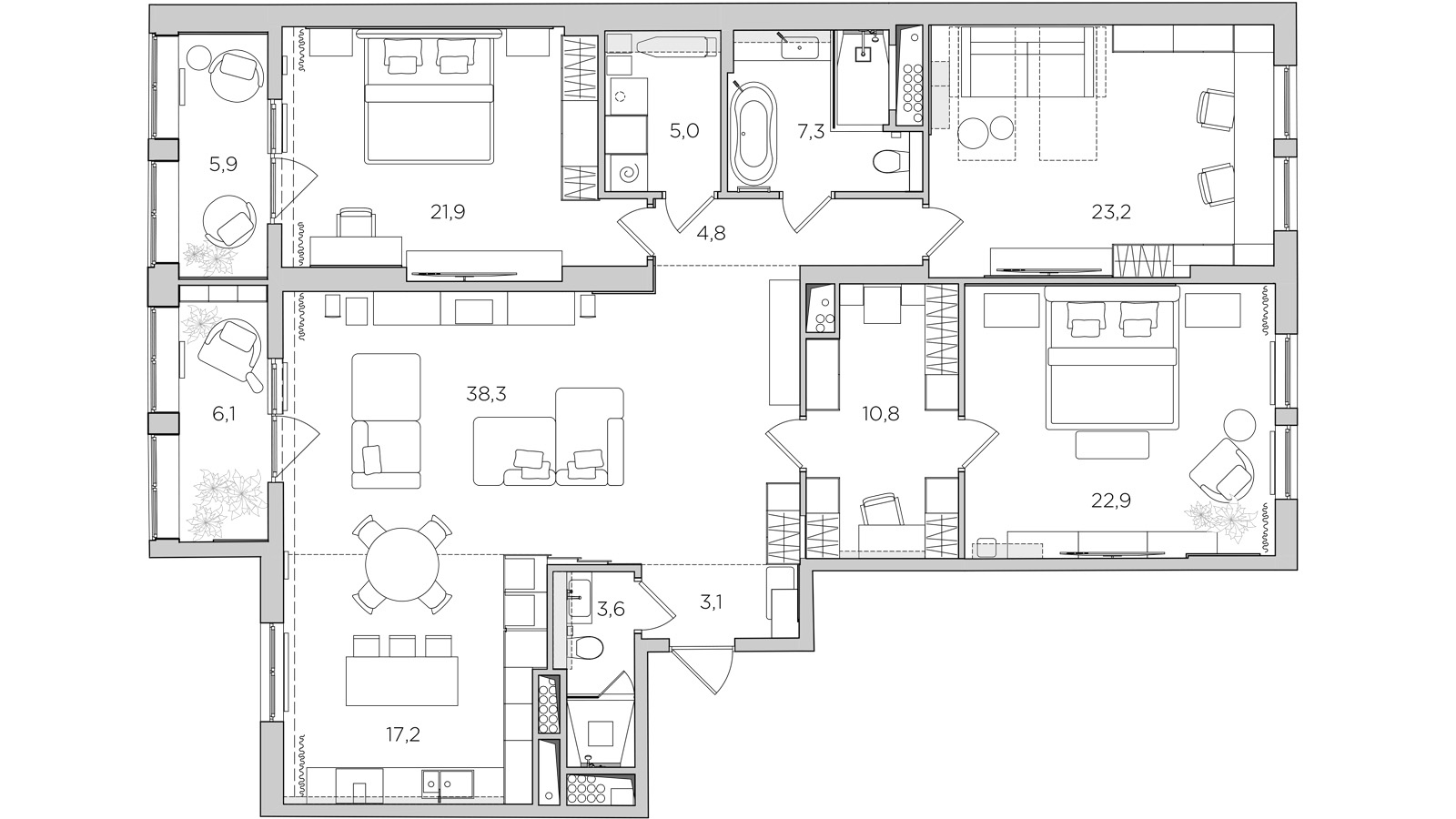
Type A three-bedroom apartment
Years 2022-2023
Features Passing thought hallway, small guest bathroom, separate kitchen and living room, large corridor, load-bearing pylons forming bedrooms
Before
After
Load-bearing pylons forming bedrooms
Large dark corridor
Spacious bathroom
Passing thought hallway
Narrow guest bathroom without a shower
We divided a spacious bathroom into 2 parts and made a laundry room
A part of the bedroom was converted into a passing-through walk-in closet
We joined a kitchen and a living room
We joined the corridor to the spacious open kitchen-living room
We separated a part of the hallway with a bathroom and added a shower
Интерьер гостиной в современном стиле

We had an important task to design a place where the clients’ family would comfortably spend quality time together. In the initial developer’s project, there were a separate kitchen and a living room. We united these two spaces with a corridor leading from the hallway to a bedroom. It resulted in a large bright 55,5 sq. m space.

Шкаф для одежды в прихожей

We placed a console with a drawer for little things, a floor-to-ceiling mirror with backlit, and a small pouf in the hallway. We made a wardrobe in the corridor. The hallway is visually highlighted by the porcelain tiles on the floor and walls.

Санузел с душевой

One can come in a guest bathroom from the hallway. We enlarged the bathroom at the expense of a small corridor that lead to the kitchen. This allowed us to add a shower in a guest bathroom. In this space, there is a match of porcelain tiles with a wooden texture and dark stone-like Italon porcelain tiles. We placed a tank water heater and a collector unit in the niche, under the wall-hung toilet system.

Душевая со стеклянной перегородкой
Стеновые панели в шпоне дуба

We assembled the graded wall panels continuing in the column cabinets in the space between the hallway and kitchen. Natural light and vertical backlit reveal the texture of oak veneer.

Кухня-гостиная в современном стиле

In the united kitchen and living room, there are a kitchen island, dining table, and two comfortable sofas. The clients are big music lovers; that’s why we paid much attention to the acoustics in this apartment. In the living room, there is an R9 audio system with built-in ceiling speakers. As the clients asked, we placed a laser-beam projector with a screen instead of a TV.

Мебель для гостиной
Современная гостиная
Современная угловая кухня

One more desire of the clients is to have a big corner kitchen made of dark veneer. We designed a special niche with backlit in the column cabinets – it will ease access to the home appliances that are regularly used. We built-in a dish warmer under the microwave. This will keep food warmer for longer.

Кухонные шкафы в шпоне дуба

This kitchen does not have upper cabinets. We lined the wall above the bottom units with porcelain tiles that we broke into different-sized fragments. We set the hob with a built-in extractor to keep the wall as a clean panel picture. We opted for Vibia round pendant lamp and a minimalist CVL lamp for lighting the dining area and the kitchen island.

In more detail, we showed the design of this kitchen in the video.

Угловой кухонный гарнитур

On the kitchen island, there is a top-notch design solution – a niche for feet from the side of the dining table. From the side of the kitchen units, there are drawers and a wine cabinet. We made the kitchen island’s top and sidewalls of quartz stone. We also thought through the placement of electrical outlets – there are in the kitchen island’s top and a sidewall.

Кухонный гарнитур с техникой

We talked about how the kitchen island works and why we consider it an excellent solution for a spacious kitchen in this video.

Мебель для гостиной в современном стиле

The wall is continuing in the panels and a hidden oak-veneered door is in the living room. The door leads to a bedroom that the clients made for children when they visit.

Дизайн интерьера спальни

We selected a deep green shade for the wall finish in the bedroom. We also picked a bright shade for the armchair upholstery beside the vanity table.

Шкаф для одежды с подсветкой
Шкаф для одежды в спальню

We designed and made a big wardrobe with shaded glass facades for this bedroom. It replaces a walk-in closet not only thanks to its size but because of the backlighting of the shelves. This solution makes a wardrobe a standout interior piece.

Современная спальня

We assembled the wall panels with backlit behind the headboard. The hanging bedside cabinets with built-in wireless chargers are attached to these panels.

Мебель для спальни

The TV zone in this bedroom is characterized by a hanging console shelf and a floor-standing cabinet for bed sheets. We organized a working area closer to the balcony. The working area also serves as a vanity table. 

Ремонт и отделка балкона

On the balcony, we used the same oak-veneered wall panels for the wall finish and window jambs as in the rest of the interior. The guests will use this zone only for leisure time. We placed two Mononova armchairs and a Bonaldo metal coffee table here.

Дизайн интерьера ванной комнаты

In a developer’s planning layout, there was a 10 sq. m bathroom on the right to the guest bedroom. The clients didn’t need such a big bathroom therefore we divided it into a laundry room and a bathroom.

Отдельно стоящая ванна в ванной комнате

The bathroom’s size reached 7.3 sq. m after the replanning. This was enough to place a free-standing bathtub and a shower cabin. We lined the niche for shampoo bottles and showering accessories with black artificial stone.

Ванная комната с душевой
Хозяйственный шкаф в квартире

The laundry room was made out of a part of a former bathroom. We placed a washing machine, a dryer, and a drying cabinet here. Under the hanging cabinet, there is a place for an ironing board. The hanging cabinet has a backlit under and a clothing bar. On the left, there is a place for a clothes basket. A vacuum cleaner and household detergents can be stored in the column cabinet and module units.

Дизайн интерьера спальни в современном стиле

The clients chose a room with two windows to the right of the entrance to the apartment for their bedroom. The bedroom is designed with a calm color palette but with strong textures. We decorated the wall behind the headboard with ash-veneered wall panels.

We chose porcelain stoneware with a stone texture to finish the wall behind the TV. Random breakdown of slabs and panels adds casualness to the interior, visually lightening brutal materials.

Мебель для спальни
Тумба под телевизор в спальне

In more detail, we discussed the design solutions in this bedroom in the video.

Интерьер спальни в современном стиле

The armchair with vivid green upholstery reminds of how much the clients like the green color. The armchair is accompanied by a Kartell coffee table.

Журнальный столик и кресло в спальне
Гардеробная система в современном стиле
Проходная гардеробная комната

Our communication with the clients started with the idea of making a walk-in closet. They saw a walk-in closet in one of our projects and assured us they want the same. This walk-in closet separates the master bedroom from the rest of the apartment. Here are the open modules with bars and shelves, and units with glass facades and backlit. We also placed a styler and a hanging vanity table beside a big mirror in the walk-in closet.

Большое зеркало в гардеробной
Зеркало с подсветкой в гардеробной

Each shelf has a backlit – this lighting makes the walk-in closet like a dressing room of a prima ballerina. The wardrobe with shelves for a perfume collection is hidden behind the mirror above the table. A heating collector unit is behind a bottom mirror.

Шкаф для одежды в гардеробной
Шкаф для обуви в гардеробной

In more detail, we showed the design of this dressing room in the video.

Раскладной диван в кабинете

This room has two functions: it’s a home office for the clients and a bedroom for their grandchildren when they come. The Clei transformable sofa becomes two separate beds.

We showed how the sofa unfolds in this video.

Кабинет в квартире

We placed a long hanging table with drawers along the window. To the left and right of this, we installed cabinets for the documents and the grandchildren’s clothes when they visit.

Распашной шкаф для книг
Шкаф для книг со стеклянными фасадами
Книжный шкаф с подсветкой
Распашной шкаф для одежды
Стеллаж для книг

This is the interior where a big family will gather. This home is always ready to welcome beloved guests yet comfortable for its main inhabitants – our clients. 

?autoplay=1" title="YouTube video player" frameborder="0" allow="accelerometer; autoplay; clipboard-write; encrypted-media; gyroscope; picture-in-picture" allowfullscreen>

We also shot a video review of this interior, where we talked in detail about all the planning and interior solutions. We published this video on YouTube as well.


Кухня-гостиная с двумя диванами
Прихожая в современном интерьере
Прихожая с зеркалом и шкафом
Современная кухня-гостиная
Кухня-гостиная в современном стиле
Кухня в современном стиле
Кухня-гостиная с проектором
Кухонный остров дизайн и производство в Москве
Кухонный остров с ящиками
Большая кухня-гостиная в современном стиле
Гостевой санузел с душем
Спальня с большой кроватью
Шкаф с подсветкой в спальне
Косметический столик в спальне
Гардеробная с подсветкой
Гардеробная с зеркалом
Спальня с большой кроватью
Спальня в современном стиле дизайн-проект в Москве
Ванная комната в современном стиле
Кабинет с большим рабочим столом
Раскладной диван в кабинете
Прачечная в квартире

This is how we presented the interior in the design stage: the furniture pieces and materials were chosen. Careful elaboration of details allowed us to realize an interior that fully complies with the project.

Estimate
The estimate is valid as of June 2022. It does not constitute a public offer.
Design
$33,282
The interior design project
$129
x
170 m2
=
$21,930
The furniture design project
$129
x
88 l. m
=
$11,352
Finishing materials
$147,247
Lab Arte engineered wood
$121
x
142 m2
=
$17,182
Italon porcelain stoneware
$61
x
92 m2
=
$5,612
Italon porcelain stoneware on the floor in the guest bathroom
$65
x
6 m2
=
$390
Italon porcelain tile on the walls
$66
x
13 m2
=
$858
Italon porcelain stoneware with the wooden texture
$28
x
130 m2
=
$3,640
Italon porcelain stoneware in the laundry room
$77
x
33 m2
=
$2,541
Venis porcelain stoneware on the floor in the bathroom
$164
x
11 m2
=
$1,804
Venis porcelain stoneware in the bathroom
$170
x
23 m2
=
$3,910
Venis porcelain tile in the bathroom
$170
x
15 m2
=
$2,550
Derufa white ceiling paint
$309
x
3 pcs
=
$927
Derufa grey-beige ceiling paint
$115
x
1 pc
=
$115
Derufa grey-beige wall paint
$342
x
4 pcs
=
$1,368
Derufa green wall paint
$121
x
1 pc
=
$121
Derufa brown wall paint
$121
x
1 pc
=
$121
A cork compensator
$6
x
112 pcs
=
$672
A cork oil
$119
x
1 pc
=
$119
Shell construction materials
$105,317
x
1 kit
=
$105,317
Doors
$16,377
Portalle front door
$5,177
x
1 pc
=
$5,177
Union glass door in the guest bathroom
$2,823
x
1 pc
=
$2,823
Union interior door in the dressing room
$1,600
x
1 pc
=
$1,600
Union flush mounting interior door
$1,240
x
4 pcs
=
$4,960
Union door in the kids' room
$651
x
1 pc
=
$651
Frosio Bortolo doorknob
$107
x
7 pcs
=
$749
Forme door latch
$45
x
6 pcs
=
$270
Colombo doorstop
$21
x
7 pcs
=
$147
Furniture
$252,449
Alexander Tischler hanging cabinet and mirror in the hallway
$2,382
x
1 kit
=
$2,382
Alexander Tischler wardrobe in the hallway
$7,255
x
1 pc
=
$7,255
Alexander Tischler pouf in the hallway
$528
x
1 pc
=
$528
Alexander Tischler cabinet in the hallway
$5,402
x
1 pc
=
$5,402
Alexander Tischler panels in the hallway
$5,563
x
1 kit
=
$5,563
Alexander Tischler TV cabinet in the living room
$4,996
x
1 pc
=
$4,996
Mononova sofa
$2,871
x
1 pc
=
$2,871
Mononova sofa
$3,703
x
1 pc
=
$3,703
Alexander Tischler panels in the living room
$5,308
x
1 kit
=
$5,308
Alexander Tischler kitchen with the island and countertop
$36,293
x
1 pc
=
$36,293
Unika Moblar barstool
$650
x
3 pcs
=
$1,950
Unika Moblar dinning table
$2,560
x
1 pc
=
$2,560
Unika Moblar chair
$854
x
4 pcs
=
$3,416
Alexander Tischler wandowsill
$1,122
x
1 kit
=
$1,122
Alexander Tischler door frame in the living room
$1,035
x
1 kit
=
$1,035
Alexander Tischler panels in the balcony
$1,993
x
1 kit
=
$1,993
Alexander Tischler windowsill in the balcony
$3,909
x
1 kit
=
$3,909
Alexander Tischler cabinet in the balcony
$6,091
x
1 pc
=
$6,091
Mononova armchair in the balcony
$1,733
x
1 pc
=
$1,733
Cattelan Italia coffee table in the balcony
$490
x
1 pc
=
$490
Alexander Tischler wardrobe in the guest bedroom
$12,354
x
1 pc
=
$12,354
Alexander Tischler TV cabinet and shelf in the guest bedroom
$3,607
x
1 kit
=
$3,607
Alexander Tischler hanging desktop, mirror, and panels in the guest bedroom
$2,211
x
1 kit
=
$2,211
Alexander Tischler panels and bedside tables in the guest bedroom
$2,754
x
1 kit
=
$2,754
Mononova bed in the guest bedroom
$3,304
x
1 pc
=
$3,304
Unika Moblar chair in the guest bedroom
$978
x
1 pc
=
$978
Alexander Tischler panels in the balcony in the guest bedroom
$11,223
x
1 kit
=
$11,223
Alexander Tischler windowsill in the balcony in the guest bedroom
$3,842
x
1 kit
=
$3,842
Mononova armchair in the balcony in the guest bedroom
$1,424
x
2 pcs
=
$2,848
Bonaldo coffee table in the balcony in the guest bedroom
$397
x
1 pc
=
$397
Alexander Tischler furniture in the laundry room
$4,142
x
1 kit
=
$4,142
Umbra laundry basket
$108
x
2 pcs
=
$216
Alexander Tischler niche in the bathroom
$1,210
x
1 pc
=
$1,210
Alexander Tischler cabinet in the bathroom
$2,997
x
1 pc
=
$2,997
Alexander Tischler countertop in the bathroom
$909
x
1 pc
=
$909
Alexander Tischler mirror cabinet in the bathroom
$2,277
x
1 pc
=
$2,277
Alexander Tischler cabinet above the toilet in the bathroom
$2,079
x
1 pc
=
$2,079
Alexander Tischler glass partition in the bathroom
$2,838
x
1 pc
=
$2,838
Alexander Tischler panels in the home office
$2,921
x
1 kit
=
$2,921
Alexander Tischler shelves in the home office
$1,501
x
1 kit
=
$1,501
Clei sofa in the home office
$15,395
x
1 pc
=
$15,395
Alexander Tischler wardrobe, cabinet, and desktop in the home office
$23,394
x
1 kit
=
$23,394
Unika Moblar chair in the home office and dressing room
$1,079
x
3 pcs
=
$3,237
Alexander Tischler TV cabinet and panels in the home office
$4,593
x
1 pc
=
$4,593
Bontempi black coffee table in the home office
$323
x
1 pc
=
$323
Bontempi bronze coffee table in the home office
$390
x
1 pc
=
$390
Alexander Tischler furniture in the dressing room
$3,007
x
1 pc
=
$3,007
Alexander Tischler dressing table and mirror cabinet in the dressing room
$4,934
x
1 kit
=
$4,934
Alexander Tischler panels in the bedroom
$4,558
x
1 kit
=
$4,558
Alexander Tischler bedside table in the bedroom
$3,609
x
2 pcs
=
$7,218
Mononova bed in the bedroom
$3,398
x
1 pc
=
$3,398
Alexander Tischler bench in the bedroom
$578
x
1 pc
=
$578
Mononova armchair in the bedroom
$1,854
x
1 pc
=
$1,854
Kartell coffee table in the bedroom
$821
x
1 pc
=
$821
Alexander Tischler TV cabinet, shelves, and panels in the bedroom
$7,249
x
1 kit
=
$7,249
Alexander Tischler cabinet with the countertop in the guest bathroom
$2,037
x
1 kit
=
$2,037
Alexander Tischler cabinet above the toilet in the guest bathroom
$3,239
x
1 pc
=
$3,239
Alexander Tischler glass partition in the guest bathroom
$3,016
x
1 pc
=
$3,016
Electrical items
$29,192
Maytoni cylindrical white lamp
$46
x
46 pcs
=
$2,116
Maytoni cylindrical black lamp
$46
x
15 pcs
=
$690
Vibia lamp above the dinning table
$2,014
x
1 pc
=
$2,014
CVL lamp above the kitchen island
$3,236
x
1 pc
=
$3,236
Vibia floor lamp in the home office
$1,242
x
1 pc
=
$1,242
Vibia lamp near the bed in the bedroom
$1,186
x
2 pcs
=
$2,372
Leds C4 sconce in the balcony in the living room
$218
x
2 pcs
=
$436
Leds C4 lamp in the kids' room
$268
x
2 pcs
=
$536
Leds C4 sconce in the kids' room
$159
x
1 pc
=
$159
Arlight sconce in the balcony in the bedroom
$143
x
1 pc
=
$143
Arlight LED strip
$11
x
40 pcs
=
$440
LED strip corner profile
$21
x
11 pcs
=
$231
Diffuser for corner LED strip profile
$6
x
33 pcs
=
$198
LED strip profile
$15
x
3 pcs
=
$45
Bitcino sockets and switches
$12,660
x
1 kit
=
$12,660
Xiaomi sliding curtain rod
$2,674
x
1 pc
=
$2,674
Ventilation and air-conditioning system
$30,605
DEC ventilation system
$1,922
x
1 kit
=
$1,922
Air-conditioning system Daikin
$23,876
x
1 kit
=
$23,876
Carel humidification system
$4,807
x
1 kit
=
$4,807
Sanitary ware
$50,799
Garmonia radiator in the kids' room
$638
x
1 pc
=
$638
Garmonia radiator in the kids' room
$541
x
1 pc
=
$541
Garmonia radiator in the kitchen-living room
$880
x
1 pc
=
$880
Garmonia radiator in the kitchen-living room
$541
x
1 pc
=
$541
Garmonia radiator in the kitchen-living room
$674
x
1 pc
=
$674
Garmonia radiator in the home office and bedroom
$610
x
4 pcs
=
$2,440
Radiator bracket
$4
x
36 pcs
=
$144
Radiator kit
$141
x
9 pcs
=
$1,269
MyOry shelf in the laundry room
$70
x
1 pc
=
$70
Omoikiri sink in the kitchen
$646
x
1 pc
=
$646
Omoikiri sink faucet in the kitchen
$676
x
1 pc
=
$676
Omoikiri dispenser in the kitchen
$129
x
1 pc
=
$129
Grohe bidet-toilet
$7,464
x
2 pcs
=
$14,928
Grohe wall-hung toilet system
$3,188
x
2 pcs
=
$6,376
Villeroy & Boch sink in the guest bathroom
$1,979
x
1 pc
=
$1,979
Timo sink siphon
$202
x
1 pc
=
$202
Timo sink faucet in the guest bathroom
$649
x
1 pc
=
$649
Timo dispenser in the bathrooms
$112
x
2 pcs
=
$224
Timo toothbrush holder in the bathrooms
$85
x
2 pcs
=
$170
Timo toilet roll holder in the bathrooms
$244
x
2 pcs
=
$488
Timo toilet brush in the bathrooms
$189
x
2 pcs
=
$378
Timo towel holder in the bathrooms
$279
x
2 pcs
=
$558
Timo towel hook in the bathrooms
$58
x
5 pcs
=
$290
MyOry shelf in the guest bathroom
$80
x
2 pcs
=
$160
Timo shower unit in the guest bathroom
$1,838
x
1 pc
=
$1,838
Tece floor drain in the bathrooms
$784
x
2 pcs
=
$1,568
Riho bathtub
$5,883
x
1 pc
=
$5,883
Timo freestanding faucet in the bathroom
$2,634
x
1 pc
=
$2,634
Timo shower unit in the bathroom
$1,121
x
1 pc
=
$1,121
MyOry shelf in the bathroom
$155
x
1 pc
=
$155
Villeroy & Boch sink in the bathroom
$1,839
x
1 pc
=
$1,839
Timo sink faucet in the bathroom
$711
x
1 pc
=
$711
Works
$154,584
Building and installation management
$69
x
170 m2
=
$11,730
Building and installation works
$117,828
x
1 pc
=
$117,828
Logistics costs
$3,143
x
1 pc
=
$3,143
Furniture installation
$21,883
x
1 pc
=
$21,883
Total
$714,535
Team
Karen Karapetian
Chief Designer
Iuliia Ubozhenko
Designer
Кonstantin Prokhorov
Engineer
Oleg Mokrushnikov
Engineer
Liubov Venertseva
Engineer
Ekaterina Demkina
Head of Purchasing
Karen Nikoian
Finishing Manager
Evgenii Bridnya
Installation Manager
Evgenii Kulibaba
Photographer
Kira Prokhorova
Stylist
Vera Minchenkova
Copywriting
Interior design and renovation have never been easier
We meticulously develop your interior design project, which means we can provide a detailed estimate before the renovation begins. The cost we present is guaranteed and won’t change during the renovation process. If you want to create your ideal interior without overspending, let’s work together!

Interior Production, From an Executed Contract to Moving In,
Takes From 12 Months

Creating the interior design project
Quarter 1
Creating furniture design project
Fixing the value
Quarter 2
Erection of partition walls
Installing the utility systems
Quarter 3
Ceilings installation
Decoration
Doors installation
Quarter 4
Furniture and appliances installation
Cleaning
Interior Production, From an Executed Contract to Moving In,
Takes From 12 Months
Design works
Quarter 1
Quarter 2
Quarter 3
Quarter 4
Measurements
Making a layout
Making a sketch plan
Making the final design concept
Making a sketch plan for furniture
Making the final design concept for furniture
Designing the air ventilation system
Designing the heating system
Designing the water delivery system
Designing the wastewater disposal system
Designing the power supply system
Developing the budget
Construction supervision
Finishing facilities
Dismantling of partition walls
Erection of partition walls
Priming
Plastering
Soundproofing
Calking
Glass-fiber mat sizing
Coloring
Attaching porcelain stoneware
Floor soundproofing and waterproofing
Floor levelling
Installing underfloor heating
Placing porcelain stoneware onto the floor
Floor priming
Placing veneer wood onto the floor
Placing wood block flooring
Placing cork compensators
Ceiling soundproofing
Installing plasterboard ceiling
Ceiling priming
Ceiling calking
Putting glass-fiber mats onto the ceiling
Ceiling coloring
Cleaning
Utility systems
Installing the water delivery system and the wastewater disposal system
Installing the heating system
Installing the electricity supply system
Installing the vacuum ventilation system
Installing air conditioners
Doors and windows
Windows installation
Doors installation
Furniture and appliances
Furniture production
Furniture installation
Appliances installation
We Are the Members of the Professional Communities of the USA and Russia
Problem-Free Renovation
You buy an interior as a ready product. The renovating process will not take you away from your family, business, or vacation. We are the ones who control the working process, deliveries, and quality of products.
Full Responsibility
We are in charge of the whole interior and solve all possible mistakes.
Fixed Price
We fix the price of the whole interior at the stage of the design project so it will not rise during realization.

Other interiors

All interiors