Interior Design Project

Karen Karapetian, the company’s CEO, speaks more about how we design interiors.

Why is the Project Important?

An interior design project helps you visualize the final look of your interior, calculate costs, and renovate without mistakes and overpayment. We can create a design project for an apartment or a house in any city and country.

What the Design Project Consists of?

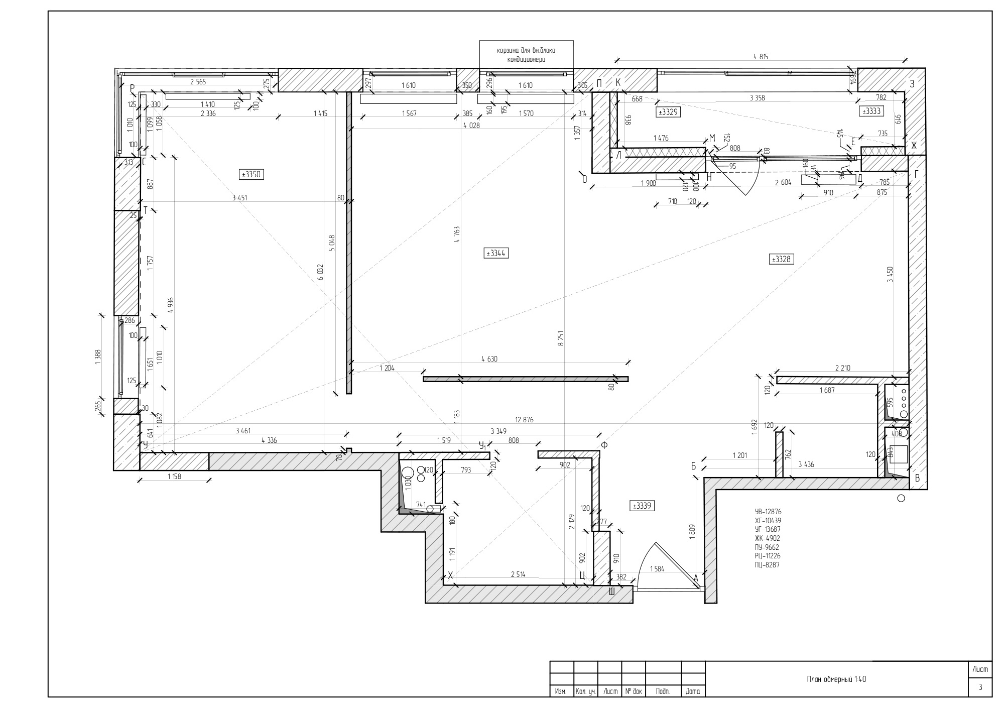
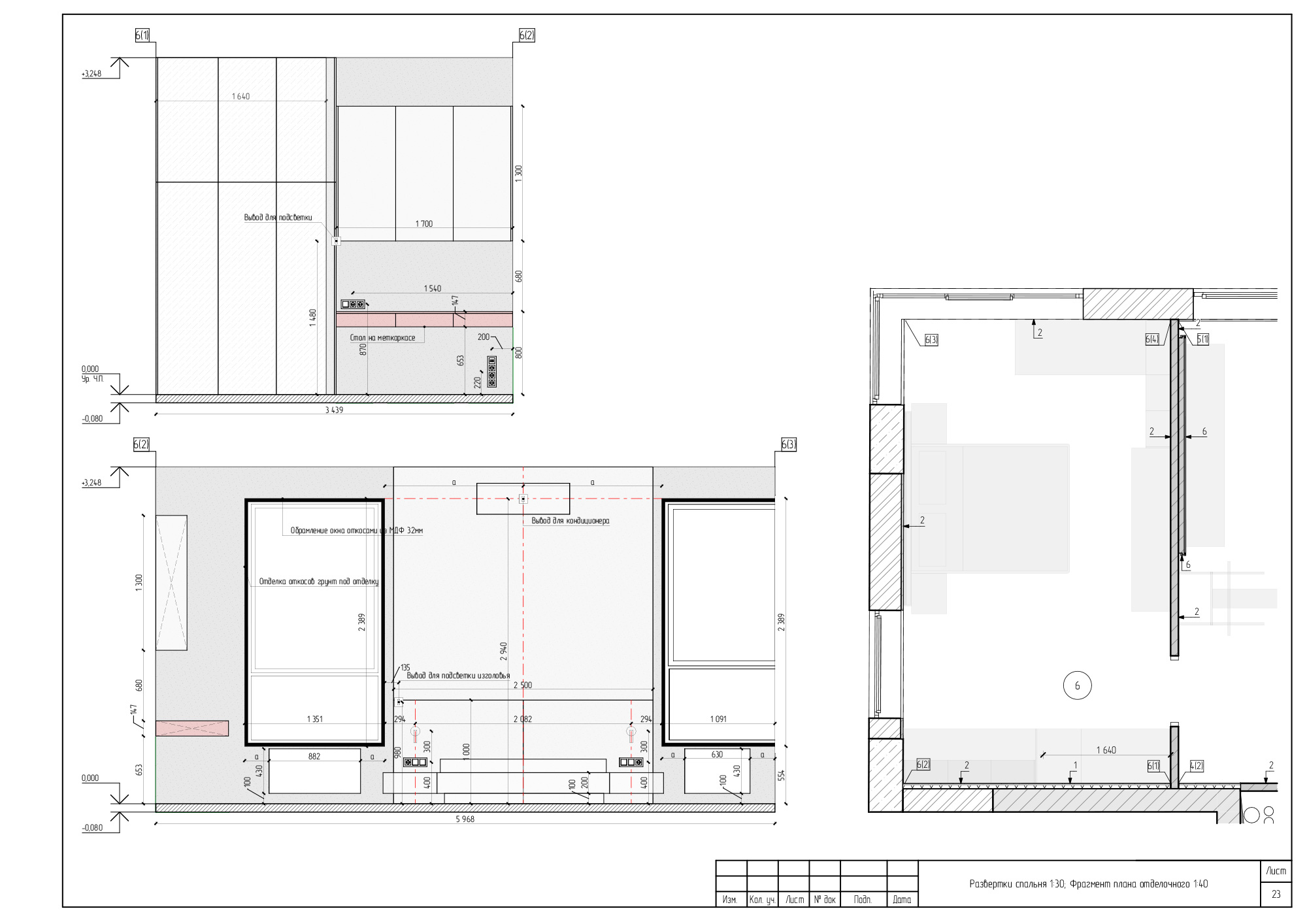
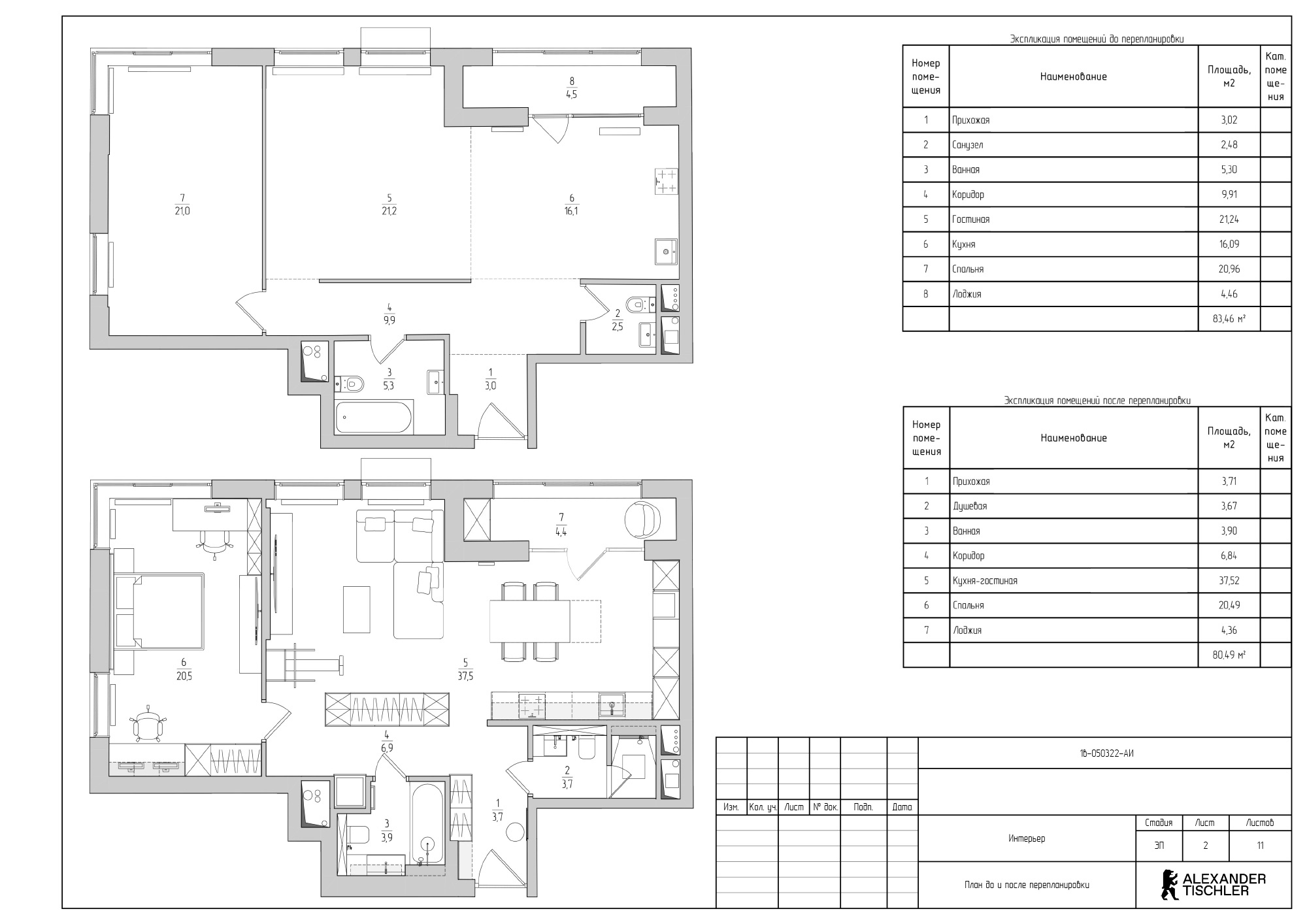
1. Layout and sketches. We start with the layout and make a schematic visualization that accurately represents real objects and materials.

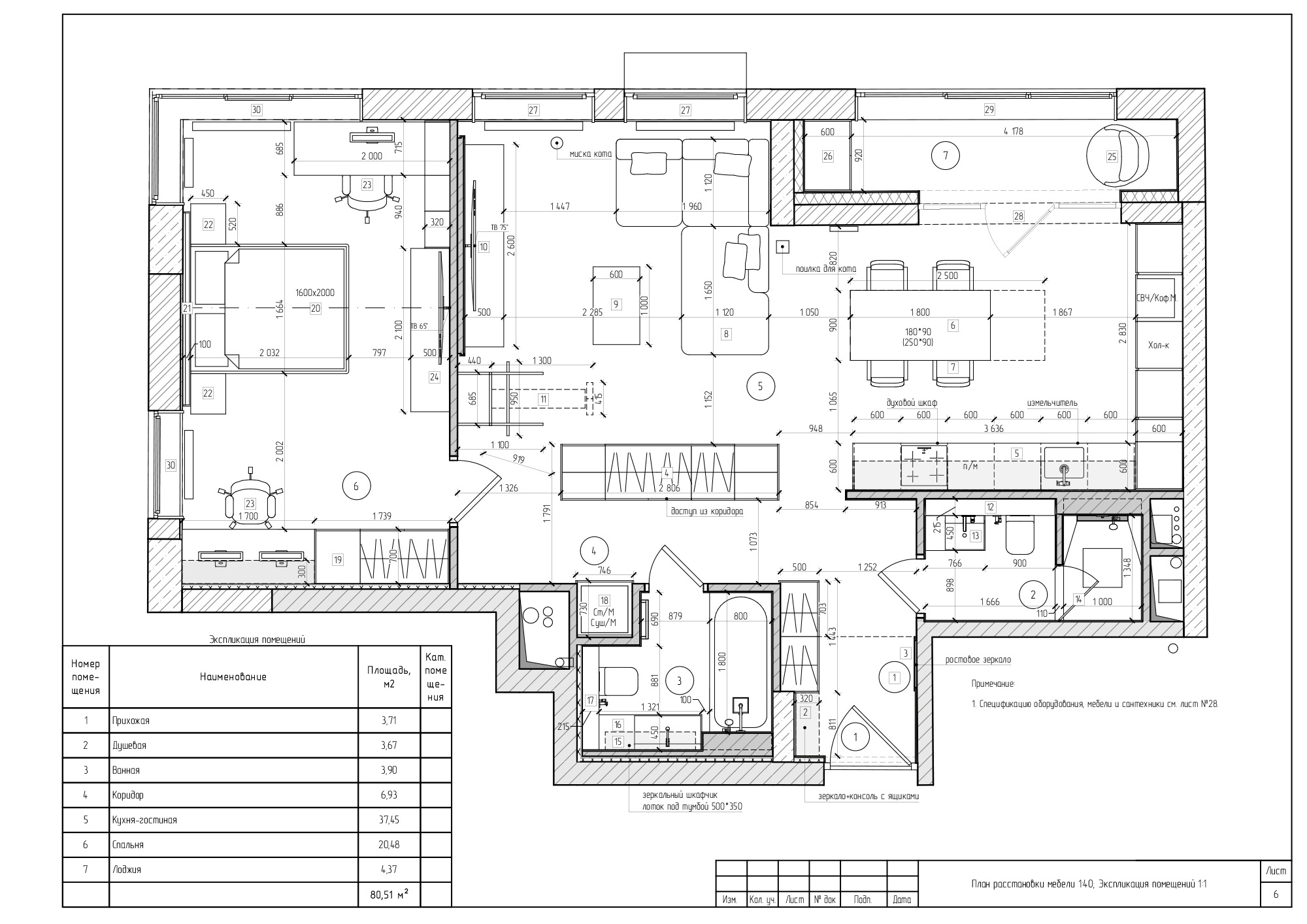
2. Detail project. This document includes all the technical details for the future interior, such as the arrangement of objects, finishing materials, lighting scenarios, and more.

3. Estimate. We prepare the estimate in two stages. The first is a preliminary estimate based on aggregated data. The second is the final estimate, which includes all approved products.

4. Realistic visualization. At the end of the project, once all materials have been selected and solutions agreed upon, we create a realistic visualization of the interior.

Дизайн-проект интерьера с планировкой
Дизайн-проект интерьера спальни в стиле лофт
Дизайн интерьера спальни в стиле лофт
Планировка двухкомнатной квартиры 80 квадратных метров
Перепланировка двухкомнатной квартиры в стиле лофт
Схема освещения в интерьере в стиле лофт
Схема электрики, дизайн-проект
Дизайн-проект интерьера в стиле лофт
Дизайн-проект двухкомнатной квартиры в стиле лофт
Дизайн-проект интерьера со сметой
Дизайн-проект двухкомнатной квартиры со сметой
Дизайн-проект в стиле лофт
Дизайн-проект спальни в стиле лофт

Designer Supervision

Designer supervision is control of the project compliance by the performers. We address contentious situations at the construction site, update design documentation, and, if necessary, find replacement materials.

Авторский надзор дизайн-проекта, Карен Карапетян, Alexander Tischler

Value Bundles

We offer three formats of interior design projects so that you can choose the one that suits you. We charge for the designer supervision by the hour to ensure you don't overpay.

Value Bundle A1
  • Layout Solution
  • Interior Design Sketch
  • Interior Detail Project
  • $79 hour
$99 m2
Discount 5-15%
  • 100–199 м2 −5%
  • 200–299 м2 −10%
  • >300 м2 −15%
Minimum order: $5,999
Value Bundle A2
  • Layout Solution
  • Interior Design Sketch
  • Interior Detail Project
  • Selection of Products and Materials
  • Cost Estimation
  • $79 hour
$129 m2
Discount 5-15%
  • 100–199 м2 −5%
  • 200–299 м2 −10%
  • >300 м2 −15%
Minimum order: $7,999
Value Bundle A3
  • Layout Solution
  • Interior Design Sketch
  • Interior Detail Project
  • Selection of Products and Materials
  • Cost Estimation
  • Realistic Visualization
  • $79 hour
$159 m2
Discount 5-15%
  • 100–199 м2 −5%
  • 200–299 м2 −10%
  • >300 м2 −15%
Minimum order: $9,999

Not Sure Which Value Bundle to Choose?

Leave a request or contact us via messengers. We’ll provide details about each option to help you make an informed decision. If you prefer, we can also schedule an in-person or video meeting to discuss the details further.

Completed Interiors that We Have Designed

All interiors

Customer Reviews

Elena

We completed the renovation in our new apartment in a new building. We started with a design project, and I can’t imagine how we would have managed without it — it would have been total chaos. After comparing several companies, we decided to work with Alexander Tishler. We didn’t request any unnecessary features; instead, we wanted a simple, clear, and functional interior. The designer handled the redevelopment, which included a complete replacement of the electrical system, the installation of a smart home setup, a new electrical panel, and updated plumbing. We also ensured everything was legitimate, and we encountered no issues with this process. We are...

We completed the renovation in our new apartment in a new building. We started with a design project, and I can’t imagine how we would have managed without it — it would have been total chaos. After comparing several companies, we decided to work with Alexander Tishler. We didn’t request any unnecessary features; instead, we wanted a simple, clear, and functional...

Read the review on Yandex
Kirill Borovkov

They created an excellent design project, which was completed on time and deserves the highest rating. In my opinion, it's better to pay more and hire professionals for a project rather than hiring a recently graduated student, as I've had that experience before. The quality difference is significant. The contractors working on the site couldn't help but notice how well everything was planned out. I worked with the designer Diana.

They created an excellent design project, which was completed on time and deserves the highest rating. In my opinion, it's better to pay more and hire professionals for a project rather than hiring a recently graduated student, as I've had that experience before. The quality difference is significant. The contractors working on the site couldn't help but notice how well everything was planned out...

Read the review on 2GIS
Daria D.

Designer Diana Besedina took a tremendous scope of work off my plate. She is the best. She meticulously created detailed drawings and sketches with precise dimensions and product codes, covering everything from engineering to bedside tables and lamps. The foreman mentioned that our project is “completely fleshed-out” from a technical standpoint. In four renovations, this is the first time I’ve received such positive feedback. This is also the first renovation where I needed to invest minimal time and effort. I am truly grateful to Diana and the entire Alexander Tishler company for their remarkable work.

Designer Diana Besedina took a tremendous scope of work off my plate. She is the best. She meticulously created detailed drawings and sketches with precise dimensions and product codes, covering everything from engineering to bedside tables and lamps. The foreman mentioned that our project is “completely fleshed-out” from a technical standpoint. In four renovations, this is the first time...

Read the review on Yandex

Professional Accolades

Global Future Design Awards
Медаль Global Future Design Awards
Медаль Global Future Design Awards
View the award page
Architecture MasterPrize
Медаль Architecture MasterPrize
Медаль Architecture MasterPrize
View the award page

Press Publications

Interior+Design
Публикация Alexander Tischler в Interior+Design
Публикация Alexander Tischler в Interior+Design
Read the article
Nuevo Estilo
Публикация Alexander Tischler в Nuevo Estilo
Публикация Alexander Tischler в Nuevo Estilo
Read the article

FAQ

How Is the Development of an Interior Design Project Going?

We will sign a contract for design work and create a Telegram chat where you, the designer, and the company's chief designer, Diana Besedina, will be present. After measuring the apartment, the designer will start creating the interior design based on your preferences for decoration, content, and budget. First, a layout will be developed, followed by sketches of the future interior, a detailed working project, and finally, an estimate including all goods and work. The designer will share the intermediate stages of work in the chat, and you will be able to make any number of adjustments.
Design is a crucial part of creating an interior, so it's essential for the customer to be involved in the process. However, after this, you don't need to worry about the renovation, as it will proceed strictly according to the plan.

Is It Possible to Create an Interior Design Project Remotely?

Yes, we design all of our interiors remotely, the discussions will take place in a Telegram chat. There may be several in-person meetings with the designer during the project, which are necessary for selecting furniture and finishing materials. The selection process will take between 1 to 4 days in Moscow or Yekaterinburg.

How Long Does it Take to Design a Project?

Interior design typically takes at least 4 months. We do not only interior sketches; we also provide a detailed estimate with product codes. This is a crucial and challenging task: transforming visual concepts into actual costs to ensure the interior remains beautiful while staying within budget. This meticulous work allows you to understand the total implementation cost before the renovation begins, which is very helpful. Renovation can be a long and complex process, and going into it without a clear understanding of the expenses can be daunting. All costs will be documented in our project. If you opt for a design project without an estimate, it can take around 3 months.

Do You Design Individual Rooms of an Apartment?

Yes, we can design a specific area of the interior. The minimum price remains the same: $99 per square meter, but not less than $5,599.

Is It Possible to Order Only an Interior Design Project and Designer Supervision from You?

Sure, we can take on a project and provide designer supervision. The cost for designer supervision is $79 per hour, which includes monitoring the project's compliance by the performers. During supervision, we handle any disputes, update the design documentation, and, if needed, find replacement materials. Transportation costs for designer supervision are to be paid separately.

What If I Don't Like the Design Project?

We develop the project step by step, incorporating your feedback at each stage, so the final version will not come as a surprise to you. It is our goal to create a design that you love, which is why there are no limits on the number of corrections you can request. If you choose not to proceed with the interior design project with us, we will finalize everything and complete the necessary paperwork.

Is It Possible to Incorporate Already Purchased Furniture into a New Interior Design?

Yes, it is possible if it fits in terms of size and design. A more precise answer to this question will be possible during the development of the interior design. We always welcome customers' desires to incorporate important memorabilia into the interior. We will include your furniture in sketches, and the final decision will be up to you.

Will the Completed Interior Strongly Differ from the Project?

The finished interior will closely align with the design project, as we carefully plan all interior solutions and select materials during the design phase, rather than waiting until implementation. While minor changes during the renovation may occur, these will have minimal impact on the overall appearance of the interior.

Is It Possible to Start Renovations at the Same Time as the Design Project Is Being Developed?

No, starting renovations prematurely can lead to mistakes and expenses for their correction. It is important to start renovations only after the design project is finished, and the cost estimate and all interior solutions are approved.

How Many Edits Can I Make to a Project?

We consider a project complete when you are fully satisfied with it. We have no limits on the number of edits.