Planning Layout Project

Karen Karapetian, the company’s CEO, speaks more about how we prepare planning layout projects.

What is a Planning Layout Project for?

A planning layout project consists of a set of drawings of your apartment or house that includes furniture arrangements and all necessary dimensions. This project can serve as a starting point for your future renovation. With this layout, you can provide clear instructions to builders and efficiently select and order furniture, as the dimensions are clearly indicated in the plan. We can develop a project for an apartment or house in any city or country.

What Drawings are Included in the Planning Layout Project?

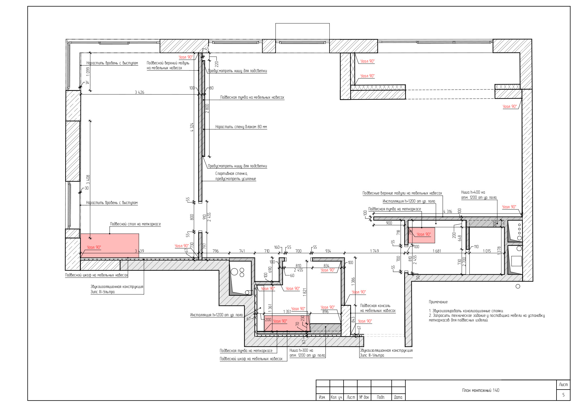
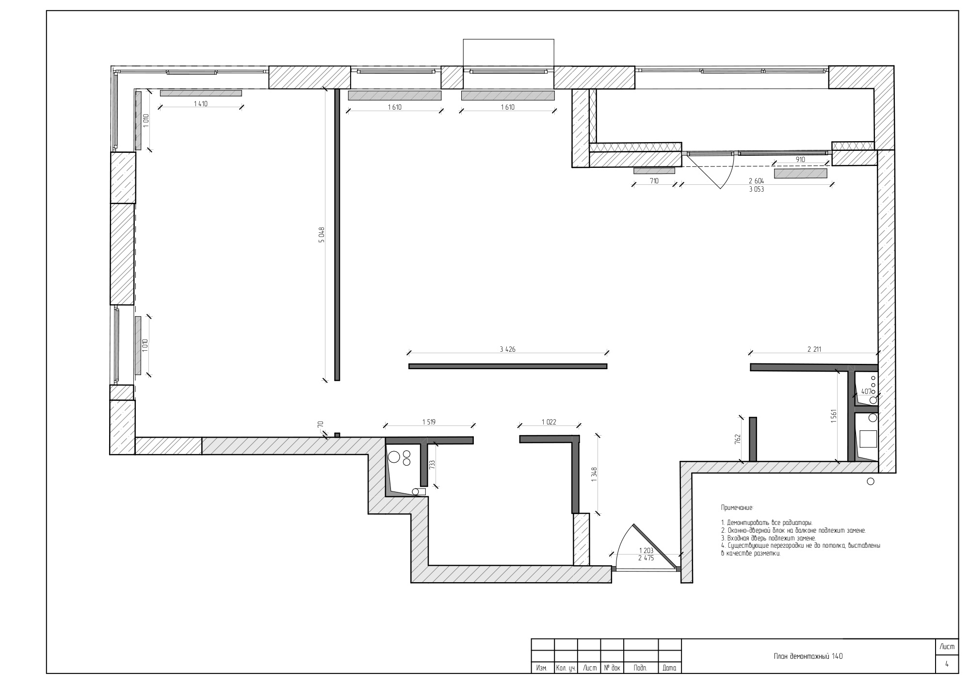
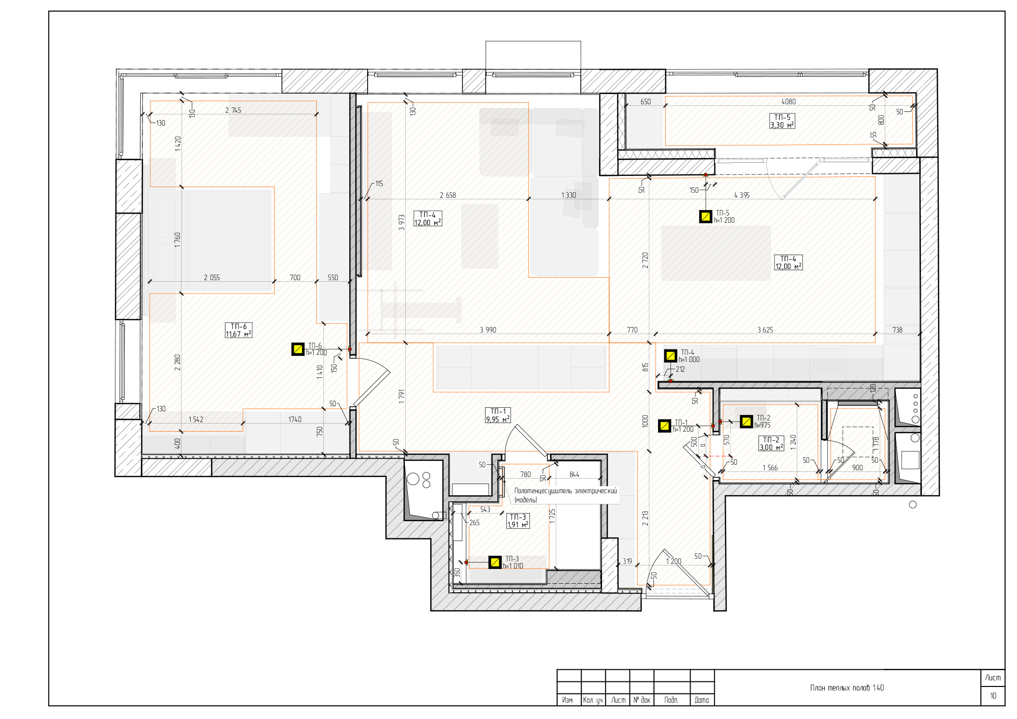
The project planning layout must encompass a measurement plan, a dismantling plan, an installation plan, and a furniture arrangement plan. Furthermore, plans for heated floors, lighting, sockets, sewage systems, and water supply may also be included.

Проект планировки, Alexander Tischler
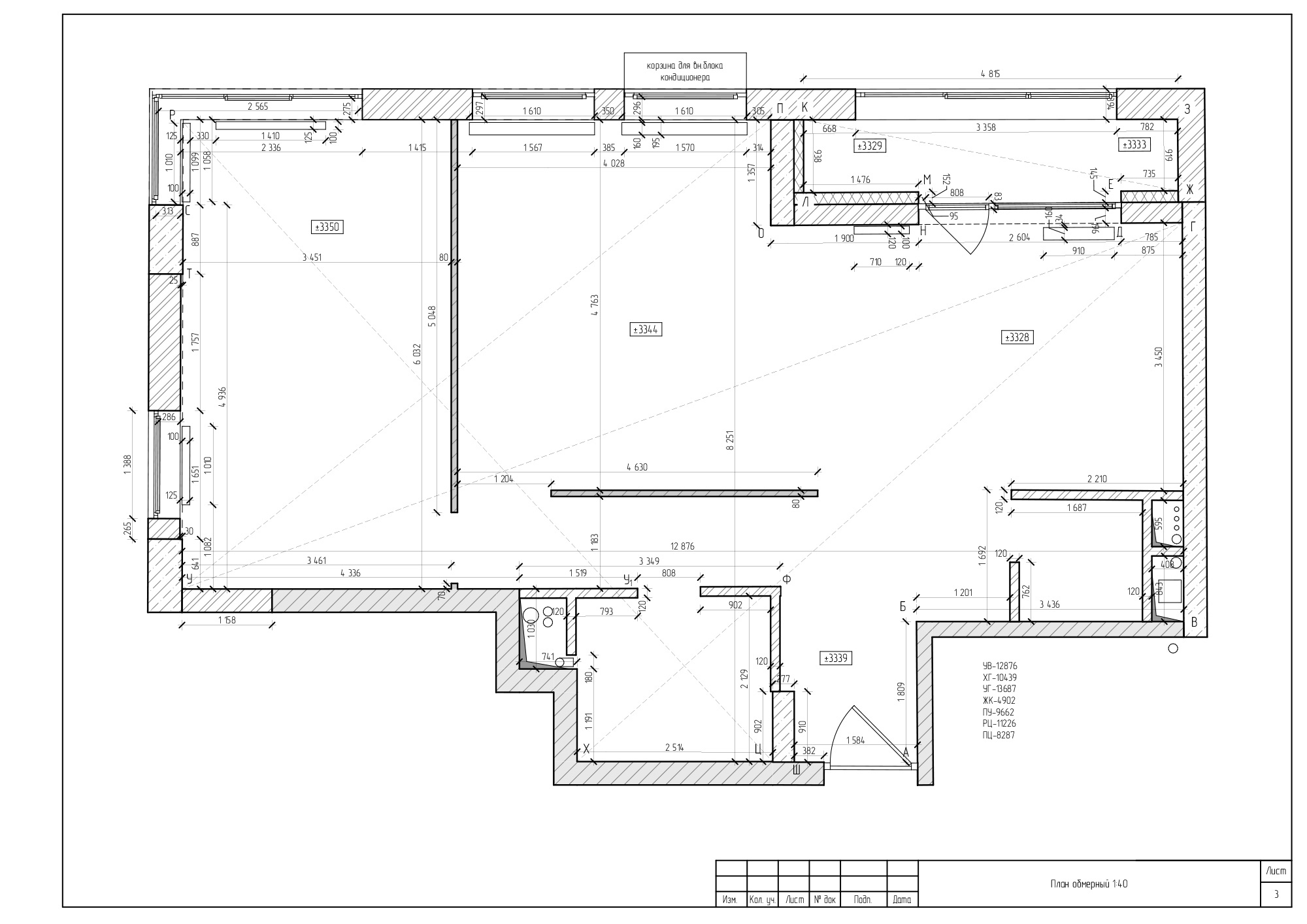
Планировка двухкомнатной квартиры, Alexander Tischler
План стен в двухкомнатной квартире, Alexander Tischler
Проект планировки с расстановкой мебели, Alexander Tischler
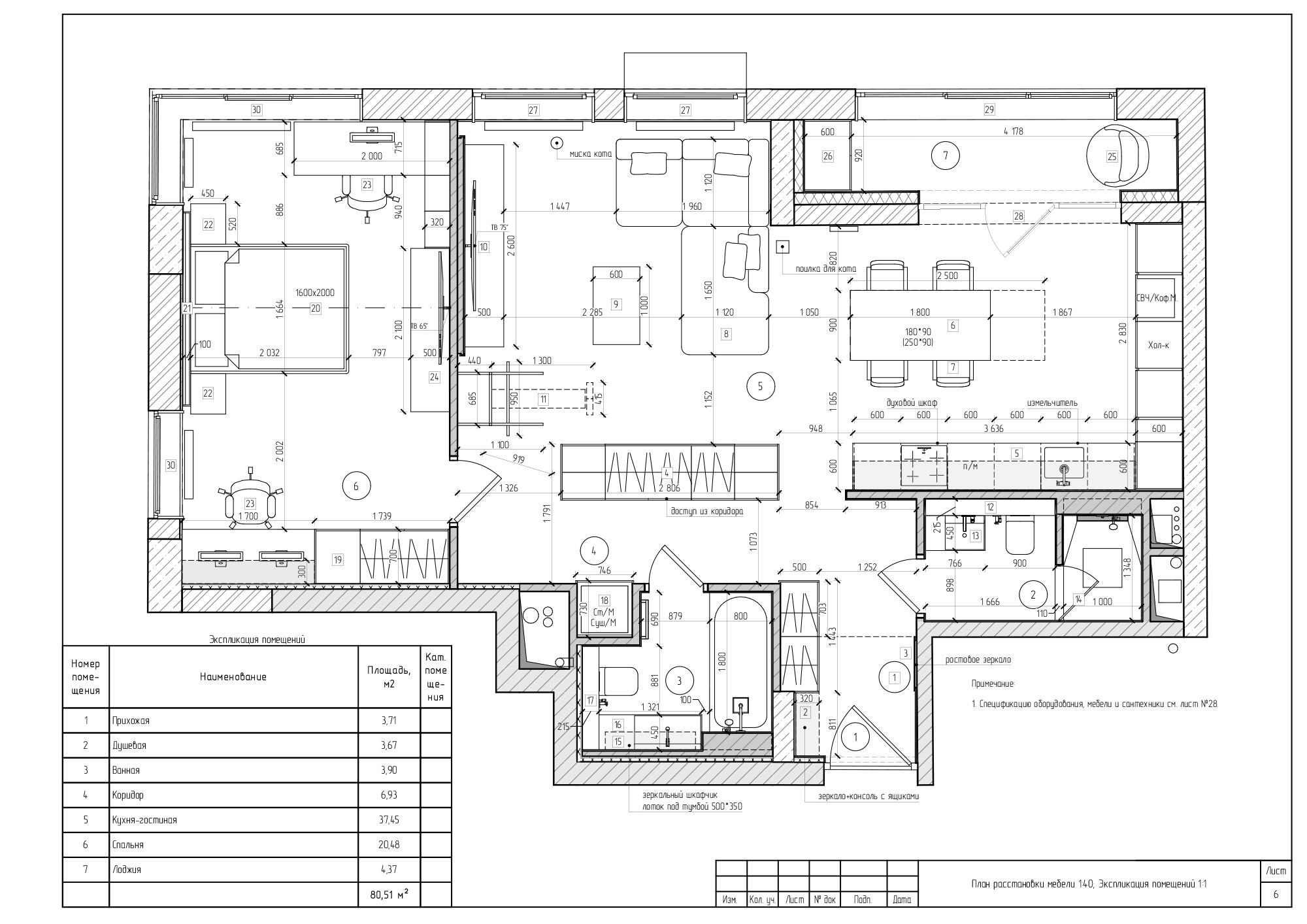
Расстановка мебели в двухкомнатной квартире, Alexander Tischler
План освещения в двухкомнатной квартире, Alexander Tischler
План электрики в двухкомнатной квартире, Alexander Tischler
План розеток в двухкомнатной квартире, Alexander Tischler
Проект планировки с расстановкой мебели, Alexander Tischler

Value Bundles

We offer three planning layout project formats for you to choose from, allowing you to select the one that best fits your needs. To create an accurate project, we require measurements of the premises. We can take these measurements in Moscow (within the Moscow Ring Road) and Yekaterinburg (within the Yekaterinburg Ring Road). If you are located in other cities, we can discuss measurements on a case-by-case basis. Also, you can order measurements from a specialized company or take them yourself, following our provided instructions.

Value Bundle B1
  • Measured plan
  • Dismantling plan
  • Installation plan
  • Furniture arrangement plan
  • from $4 m2
Value Bundle B2
  • Dimensioned plan
  • Dismantling plan
  • Installation plan
  • Furniture arrangement plan
  • Heated floor plan
  • Lighting plan
  • Switch connection plan
  • Socket and electrical outlet connection plan
  • from $4 m2
$20 m2
Minimum order: $1,199
Value Bundle B3
  • Dimensioned plan
  • Dismantling plan
  • Installation plan
  • Furniture arrangement plan
  • Heated floor plan
  • Lighting plan
  • Switch connection plan
  • Socket and electrical outlet connection plan
  • Sewerage and water supply plan
  • from $4 m2
$23 m2
Minimum order: $1,399

Having Trouble Choosing?

Feel free to leave a request or contact us via messengers. We’re here to provide details about each option and assist you in making the best choice. If you prefer, we can also schedule a video meeting to discuss everything in detail.

Customer Reviews

Mark

I ordered a planning layout project for a box-shaped apartment that has no internal partitions and a central column. Some might consider this an extra cost, but in the context of overall renovations with a black frame, it's a minor expense. Planning the space and creating detailed drawings with dimensions and thicknesses is something I definitely wouldn’t have been able to do on my own. Additionally, explaining my vision to the builders without clear plans would have been extremely difficult. Fortunately, the Alexander Tishler team completed this task for me, and I am very satisfied with their work.

I ordered a planning layout project for a box-shaped apartment that has no internal partitions and a central column. Some might consider this an extra cost, but in the context of overall renovations with a black frame, it's a minor expense. Planning the space and creating detailed drawings with dimensions and thicknesses is something I definitely wouldn’t have been able to do...

Read the review on 2GIS
Vladimir Petrov

We ordered planning solutions because we were unsure about the planning layout we had created ourselves. We achieved a more competent, balanced, and convenient layout with the help of professional designers. We liked it! 

We ordered planning solutions because we were unsure about the planning layout we had created ourselves. We achieved a more competent, balanced, and convenient layout with the help of professional designers. We liked it! 

Read the review on Yandex
M.

I really appreciate the approach to planning at this bureau. After reviewing numerous companies and watching various videos on YouTube, I found that their methodology resonates with me the most. While a complete renovation isn't within my budget, I did order their planning layout project and have received it. Everything is super!

I really appreciate the approach to planning at this bureau. After reviewing numerous companies and watching various videos on YouTube, I found that their methodology resonates with me the most. While a complete renovation isn't within my budget, I did order their planning layout project and have received it. Everything is super!

Read the review on 2GIS

Professional Accolades

Architecture MasterPrize
Медаль Architecture MasterPrize
Медаль Architecture MasterPrize
View the award page
Global Future Design Awards
Медаль Global Future Design Awards
Медаль Global Future Design Awards
View the award page

Press Publications

Nuevo Estilo
Публикация Alexander Tischler в Nuevo Estilo
Публикация Alexander Tischler в Nuevo Estilo
Read the article
Interior+Design
Публикация Alexander Tischler в Interior+Design
Публикация Alexander Tischler в Interior+Design
Read the article

FAQ

How Does the Development of a Planning Layout Project Work?

We will provide you with a quote for the design services and create a Telegram chat for communication. The designer will start working on the design based on your preferences and legal requirements after measuring your apartment. The designer will share updates in the chat throughout the process, allowing you to request any number of edits.

Is it Possible to Make a Planning Layout Project Remotely?

We offer remote planning layout projects for apartments and houses in any city or country. We can take the necessary measurements ourselves for the projects in Moscow and Yekaterinburg. If you need a project in another city, you can either hire local specialists for the measurements or follow our instructions to take them yourself.

How Long Does it Take to Develop a Project?

We prepare a planning layout project within 25 working days. We consider the project complete when you are fully satisfied with it.

Is it Possible to Make Changes to the Planning Layout Project?

Yes, of course. The designer will show intermediate results during the design process, and you will be able to make any number of edits. We will complete the project when you are fully satisfied with it.

What if I Don't Like the Project?

We can make any number of changes to the project layout and will consider it complete when you are satisfied. If we still can't reach a final decision, we will make a refund.

How Many Edits Can I Make to a Project?

We consider a project complete when you are fully satisfied with it. We have no limits on the number of edits.

How to Measure an Apartment?

We can conduct measurements in Moscow (within the Moscow Ring Road) and Yekaterinburg (within the Yekaterinburg Ring Road). If you need measurements in other cities, we can discuss those separately. Additionally, you have the option to hire a specialized company for measurements or perform them yourself by following our instructions.