53 m2 Turquoise Apartment With an Open Plan Living Room: Photos, Video, and Estimate of the Completed Interior

53 m<sup>2</sup> Turquoise Apartment With an Open Plan Living Room: Photos, Video, and Interior Estimate

The client requested an interior design for her mother, with a particular emphasis on incorporating a favorite color – turquoise. We designed a light and airy interior that embodies a spring-like mood within a standard two-room apartment in Moscow. Although the apartment has load-bearing pylons, we were able to achieve a convenient redesign.

We developed a comprehensive design project and handled the renovation of this interior. We prepared an estimate and fixed the implementation cost during the design stage, ensuring that the price remained unchanged throughout the renovation process.

Size 53 m2
Type A two-bedroom apartment
Years 2023–2024
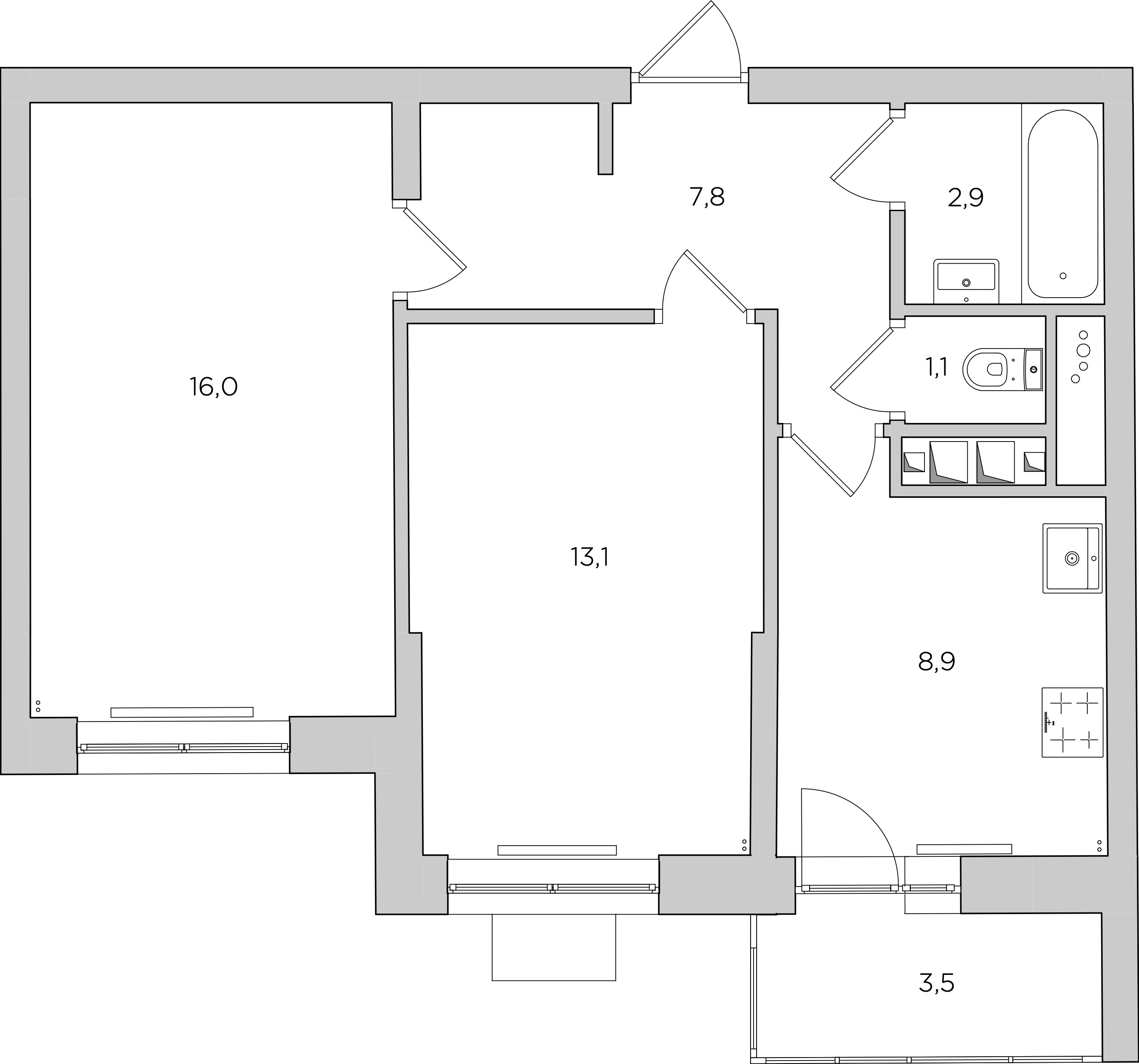
Features Load-bearing pylons between rooms, small kitchen, and large walk-through hallway
Before
After
Narrow non-clean hallway area
Load-bearing pylon between bedroom and hallway
Small kitchen
Load-bearing pylon between kitchen and living room
Load-bearing pylon between bedroom and living room
We merged the bathrooms
We relocated the bedroom entrance, eliminating the corridor
We combined the kitchen with the living room
We installed a French window in place of the standard exit to the loggia
Дизайн и ремонт двухкомнатной квартиры

The client wished to have a spacious and welcoming environment for her mother, so we combined the kitchen and living room. In the center of this open plan living room, we designed a block with an oak texture to conceal the supporting pylon.

Параллельная кухня на заказ
Современная кухня дизайн

We divided the kitchen set into two sections. On one side, we positioned tall cabinets that include a refrigerator, two freezers, an oven, and a microwave, all situated next to the supporting pylon. Opposite this setup, we installed a straight worktop along with wall cabinets featuring turquoise facades.

Французское окно в квартире
Французское окно на кухне

We removed the standard window sill block at the loggia's exit and installed an in-floor convector in place of the radiator. We also replaced the loggia's glazing to make it warm and comfortable; this space has been transformed into an ideal breakfast area. We installed a French window, adding a Mediterranean vacation vibe to the kitchen.

Дизайн и ремонт лоджии
Квартира с утепленной лоджией
Дизайн и ремонт современной кухни
Кухня на заказ в Москве и Екатеринбурге
Дизайн маленькой кухни

We selected porcelain stoneware featuring a marble texture with burgundy veins to frame the entire kitchen. The burgundy color was chosen as it pairs beautifully with turquoise.

Подвесной комод на заказ

We incorporated a marble texture in the living room to create a cohesive visual flow in the space. This complements the turquoise wall-mounted chest of drawers and accentuates the supporting pylon behind the sofa. We hung Anastasia Dzhan's painting "Dreams" from the "Space of Silence" series, which is part of ART&BRUT GALLERY, above the chest of drawers. 

Мебель для гостиной на заказ
Дизайн и ремонт кухни-гостиной
Светлая кухня гостиная, дизайн

We designed the kitchen cabinets as a single unit, incorporating the panels where the TV is mounted. To accommodate guests, we placed a foldable dark turquoise sofa opposite the TV.

Небольшая кухня-гостиная
Раскладной диван в кухне-гостиной

When the sofa is unfolded, there is no space for a TV stand, so all the TV consoles are stored behind it, on one of the shelves in the kitchen cabinet.

Обеденный стол в гостиной
Зона столовой в интерьере
Дизайн и ремонт гостиной
Дизайн столовой зоны в интерьере

To the right of the sofa, there is a dining table that has a larger tabletop compared to the one on the loggia. We placed the dark table against a light wooden-textured cabinet. The leftmost section of the cabinet is designated for storing glasses and other dishware that is used for special occasions.

Дизайн современной прихожей

We decorated the hallway in a rich burgundy color, painting the panel and frame of the front door to match the walls. A translucent chandelier made of thin wire complements the burgundy wall.

Шкаф в гостиную на заказ
Дизайн и ремонт прихожей

We painted the walls and ceiling in a uniform color: light gray-beige, making the interior feel more enveloping and cozy.

Шкафы для одежды в прихожей
Шкаф для сумок и аксессуаров в прихожей

To the left of the front door, there are playful coat hooks. Next to them, there is a large wardrobe with mirrored doors. The hallway was dark before our renovation. Now, light from the kitchen and living room reaches this area.

Хозяйственный шкаф и зеркало в ванной
Мебель для ванной комнаты на заказ

We combined two bathrooms and attached part of the hallway to them, now it is a comfortable bathroom with a shower and a utility closet. Here we made a large mirrored closet, and placed the sink with a cabinet and a wall-mounted toilet against the background of porcelain stoneware with an active texture.

Рабочий стол в спальне

We relocated the bedroom door to the living room; that allowed us to design an interior without corridors so that all rooms can be accessed directly from the open-plan living room. As the client wanted, we created a workspace by the window featuring a hanging desk with drawers.

Дизайн интерьера светлой спальни
Мебель для спальни на заказ
Стеновые панели для спальни
Дизайн интерьера небольшой спальни
Подвесной рабочий стол в спальне

We decorated the wall behind the headboard with panels that extended to the fronts of the wardrobe. A ribbon in the future homeowner's favorite turquoise color is running along the ceiling above the bed and continuing down the fronts of the wardrobe, which now appeared to blend into the surroundings. 

Шкаф для одежды в спальне
Дизайн мебели для спальни

We concealed the air conditioner in the upper right corner of the cabinet. The facades can be opened when needed; when it is out of use, there is no reminder of it.

?autoplay=" title="YouTube video player" frameborder="0" allow="accelerometer; autoplay; clipboard-write; encrypted-media; gyroscope; picture-in-picture" allowfullscreen>

The standard Moscow two-room apartment of 53 m2 has been transformed beyond recognition. In the video, we explained how we managed to increase the area of this apartment by 8 m2. This video was posted on YouTube.

Дизайн-проект двухкомнатной квартиры
Кухонный гарнитур на заказ
Кухня в маленькой квартире, дизайн
Дизайн интерьера двухкомнатной квартиры
Дизайн-проект кухни-гостиной в панельном доме
Дизайн-проект ванной комнаты
Дизайн-проект спальни в современном стиле

This is how we showcased the interior during the design stage: we carefully selected all objects and materials. Our meticulous attention to detail allowed us to create an interior that closely aligns with the original sketches.

Estimate
The estimate is valid as of February 2024. It does not constitute a public offer.
Design
$10,449
Interior design project
$129
x
53 м2
=
$6,837
Furniture design project
$129
x
28 l.m
=
$3,612
Finishing materials
$30,013
Coswick engineered board in the bedroom
$71
x
18 m2
=
$1,278
Ariostea porcelain stoneware in the kitchen-living room
$223
x
22 m2
=
$4,906
Estima porcelain stoneware
$46
x
54 m2
=
$2,484
Italon porcelain stoneware in the bathroom
$44
x
15 m2
=
$660
San Marco light gray-beige paint
$200
x
1 pc
=
$200
San Marco burgundy paint
$37
x
1 pc
=
$37
San Marco turquoise paint
$80
x
1 pc
=
$80
San Marco gray-beige wall paint
$37
x
1 pc
=
$37
Shell construction materials
$20,331
x
1 kit
=
$20,331
Doors and windows
$11,856
Portalle front door
$2,149
x
1 pc
=
$2,149
Alexander Tischler front door panel
$457
x
1 pc
=
$457
Union flush mounting interior door
$895
x
2 pcs
=
$1,790
Balcony glazing
$5,059
x
1 kit
=
$5,059
Balcony door
$2,030
x
1 pc
=
$2,030
Verum doorstop
$35
x
2 pcs
=
$70
Colombo doorknob
$120
x
2 pcs
=
$240
Colombo door lock
$61
x
1 pc
=
$61
Furniture
$53,824
Alexander Tischler wardrobe in the hallway
$6,890
x
1 pc
=
$6,890
Mononova pouf in the hallway
$319
x
1 pc
=
$319
Nofer Verona black hanger in the hallway
$208
x
6 pcs
=
$1,248
Schonbuch hanger in the hallway
$76
x
4 pcs
=
$304
Alexander Tischler dresser in the kitchen-living room
$1,352
x
1 pc
=
$1,352
Alexander Tischler wall panels in the kitchen-living room
$1,013
x
1 kit
=
$1,013
Mononova sofa
$2,733
x
1 pc
=
$2,733
Anni Haus dining table in the kitchen-living room
$354
x
1 pc
=
$354
Anni Haus chair in the kitchen-living room
$152
x
4 pcs
=
$608
Alexander Tischler kitchen with the countertop
$15,093
x
1 kit
=
$15,093
Anni Haus armchair in the balcony
$141
x
2 pcs
=
$282
Anni Haus dining table in the balcony
$303
x
1 pc
=
$303
Alexander Tischler wardrobe in the bedroom
$5,807
x
1 pc
=
$5,807
Alexander Tischler wall panels, desktop, and bedside tables
$3,201
x
1 kit
=
$3,201
Alexander Tischler countertop on the desktop
$1,240
x
1 pc
=
$1,240
Alexander Tischler countertop on bedside table
$310
x
2 pcs
=
$620
Mononova bed
$2,204
x
1 pc
=
$2,204
BoConcept chair in the bedroom
$1,361
x
1 pc
=
$1,361
Alexander Tischler cabinet under the sink and mirror cabinet in the bathroom
$4,127
x
1 kit
=
$4,127
Alexander Tischler countertop in the bathroom
$721
x
1 pc
=
$721
Alexander Tischler utility closet in the bathroom
$2,846
x
1 pc
=
$2,846
Alexander Tischler glass door in the bathroom
$1,198
x
1 pc
=
$1,198
Electrical items
$3,652
Arlight built-in lamp
$21
x
36 pcs
=
$756
Arlight built-in lamp in the bathroom
$26
x
2 pcs
=
$52
Maytoni lamp in the kitchen-living room
$41
x
2 pcs
=
$82
Arlight sconce on the balcony
$96
x
1 pc
=
$96
Maytoni table lamp in the bedroom
$116
x
1 pc
=
$116
La Redoute bedside lamp
$89
x
2 pcs
=
$178
Bezhko chandelier in the kitchen-living room
$1,530
x
1 pc
=
$1,530
Elektrostandard sconce in the kitchen-living room
$130
x
1 pc
=
$130
Devi thermostat
$60
x
4 pcs
=
$240
Schneider Electric sockets and switches
$472
x
1 kit
=
$472
Heating, ventilation, and air conditioning
$5,439
Hisense air-conditioning system
$3,232
x
1 kit
=
$3,232
Vitron convector in the kitchen
$417
x
1 kit
=
$417
Guardo radiator in the kitchen-living room
$527
x
1 pc
=
$527
Guardo radiator in the bedroom
$437
x
1 pc
=
$437
Guardo radiator on the balcony
$357
x
1 pc
=
$357
Sunerzha towel warmer in the bathroom
$469
x
1 pc
=
$469
Plumbing and accessories
$5,240
Vitra sink in the bathroom
$114
x
1 pc
=
$114
Stworki sink bottom valve
$33
x
1 pc
=
$33
Villeroy & Boch toilet
$454
x
1 pc
=
$454
Tece wall-hung toilet system
$493
x
1 kit
=
$493
Noken hygienic shower
$273
x
1 pc
=
$273
Noken sink faucet
$668
x
1 pc
=
$668
Noken shower unit
$943
x
1 kit
=
$943
Viega floor drain
$827
x
1 pc
=
$827
Omoikiri sink in the kitchen
$682
x
1 pc
=
$682
Omoikiri sink faucet in the kitchen
$387
x
1 pc
=
$387
Omoikiri dispenser in the kitchen
$55
x
1 pc
=
$55
Swog shelf in the bathroom
$269
x
1 pc
=
$269
AM.PM hanger in the bathroom
$18
x
1 pc
=
$18
AM.PM toilet roll holder
$24
x
1 pc
=
$24
Works
$38,840
Building and installation management
$50
x
53 m2
=
$2,650
Preparatory and rough finishing
$2,357
x
1 kit
=
$2,357
Installation of water supply, sewerage, heating, and power supply systems
$7,203
x
1 kit
=
$7,203
Pre-finishing
$11,069
x
1 kit
=
$11,069
Fine finishing
$5,220
x
1 kit
=
$5,220
Fine installation of water supply, sewerage, heating, and power supply systems
$2,300
x
1 kit
=
$2,300
Logistics costs
$2,527
x
1 kit
=
$2,527
Furniture installation
$5,514
x
1 kit
=
$5,514
Total
$159,313
Team
Karen Karapetian
Chief Designer
Margarita Samoilova
Designer
Кonstantin Prokhorov
Engineer
Oleg Mokrushnikov
Engineer
Liubov Venertseva
Engineer
Ekaterina Demkina
Head of Purchasing
Karen Nikoian
Head of Finishing
Evgenii Bridnya
Installation Manager
Olga Karapetian
Photographer
Nastasya Korbut
Stylist
Vera Minchenkova
Copywriting
We take care of the most difficult part!
Our client wanted to renew her mother's apartment to design a warm and inviting interior. We embodied all her wishes into the design project and completed the renovation. If you're looking to effortlessly bring your dream interior to life, let's work on it! Submit a request, and we'll provide you with an estimate for your interior project.

Interior Production, From an Executed Contract to Moving In,
Takes From 12 Months

Creating the interior design project
Quarter 1
Creating furniture design project
Fixing the value
Quarter 2
Erection of partition walls
Installing the utility systems
Quarter 3
Ceilings installation
Decoration
Doors installation
Quarter 4
Furniture and appliances installation
Cleaning
Interior Production, From an Executed Contract to Moving In,
Takes From 12 Months
Design works
Quarter 1
Quarter 2
Quarter 3
Quarter 4
Measurements
Making a layout
Making a sketch plan
Making the final design concept
Making a sketch plan for furniture
Making the final design concept for furniture
Designing the air ventilation system
Designing the heating system
Designing the water delivery system
Designing the wastewater disposal system
Designing the power supply system
Developing the budget
Construction supervision
Finishing facilities
Dismantling of partition walls
Erection of partition walls
Priming
Plastering
Soundproofing
Calking
Glass-fiber mat sizing
Coloring
Attaching porcelain stoneware
Floor soundproofing and waterproofing
Floor levelling
Installing underfloor heating
Placing porcelain stoneware onto the floor
Floor priming
Placing veneer wood onto the floor
Placing wood block flooring
Placing cork compensators
Ceiling soundproofing
Installing plasterboard ceiling
Ceiling priming
Ceiling calking
Putting glass-fiber mats onto the ceiling
Ceiling coloring
Cleaning
Utility systems
Installing the water delivery system and the wastewater disposal system
Installing the heating system
Installing the electricity supply system
Installing the vacuum ventilation system
Installing air conditioners
Doors and windows
Windows installation
Doors installation
Furniture and appliances
Furniture production
Furniture installation
Appliances installation
We Are the Members of the Professional Communities of the USA and Russia
Problem-Free Renovation
You buy an interior as a ready product. The renovating process will not take you away from your family, business, or vacation. We are the ones who control the working process, deliveries, and quality of products.
Full Responsibility
We are in charge of the whole interior and solve all possible mistakes.
Fixed Price
We fix the price of the whole interior at the stage of the design project so it will not rise during realization.

Other interiors

All interiors