71 m2 Tough Character Apartment With a Master Bedroom and Kitchen Island: Photos, Video, and Cost Estimate of the Completed Interior

71 m<sup>2</sup> Tough Character Apartment With a Master Bedroom and Kitchen Island: Photos, Video, and Interior Estimate

Pop culture décor, top brands, and artwork, a bathroom with a window, and many more design and technical solutions – all within just 71 m2. This is the interior of the apartment for a financier’s family in Moscow.

We completed a design project and implemented the interior. An estimate was prepared, and the implementation cost was fixed during the design stage, which remained unchanged throughout the renovation.

Size 71 m2
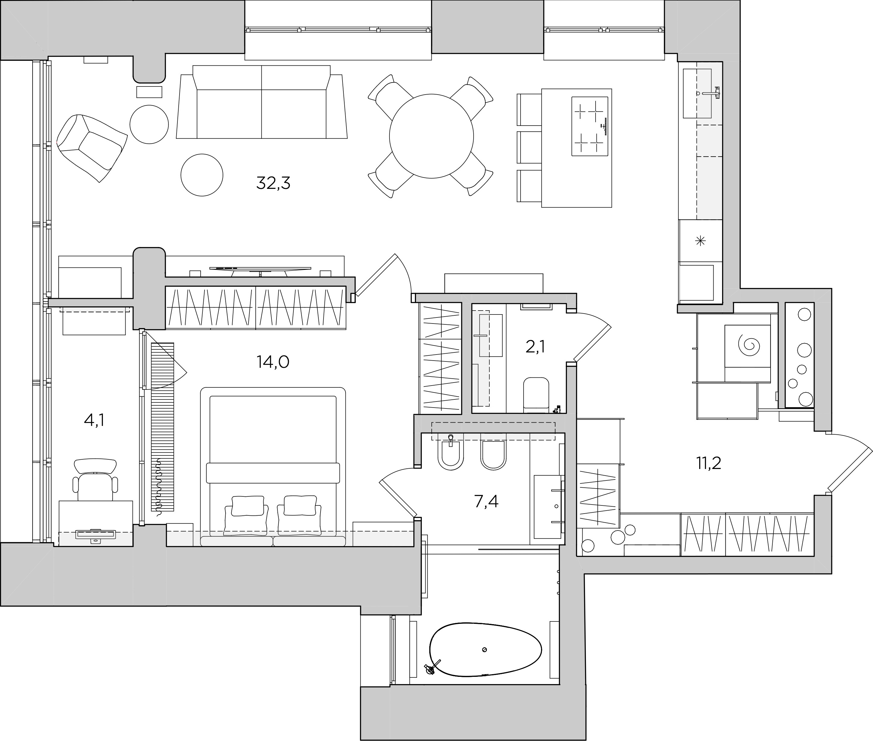
Type A two-bedroom apartment
Years 2023–2024
Features A corner apartment featuring one bathroom, a spacious hallway, and a small bedroom
Before
After
Wide long corridor
Bathroom with a window
Small bedroom
Joined the kitchen and living room
Insulated the loggia and converted it into an office
Enlarged a guest bathroom
Enlarged the bathroom at the expense of the corridor, moved its entrance to the bedroom

Our clients, an active couple, had several key requests for their interior design: they wanted an isolated office, a comfortable kitchen with an island, and designated spaces for their collections and travel magnets. We successfully fulfilled all their wishes and discovered creative solutions for some of the challenges we faced.

Кухня-гостиная с островом в двухкомнатной квартире

We designed a kitchen-living room that spans 32.3 m2, featuring three large windows and multiple functional zones. The kitchen includes a custom island by the Italian brand Cesar. We enclosed the kitchen in a porcelain stoneware frame, smartly hiding the hood grill in the upper section. Additionally, we finished the countertops, backsplash, and window sills with quartzite that showcases an active stone texture.

Кухонный гарнитур с островом
Кухонный остров с варочной панелью

We installed a cooktop with a built-in hood, a wine cabinet, and several deep drawers in the island. The backlighting inside the kitchen and island drawers activates when the drawer fronts are opened.

Современный кухонный гарнитур с островом на заказ

The island will serve as a comfortable breakfast area, as we added three semi-bar stools on the living room side. Sockets were discreetly mounted on the side of the island to maintain its appearance as a monolithic stone block.

Подвесные полки в гостиной

Illuminated glass shelves were installed on the wall next to the island for customers to display travel memorabilia and contemporary art pieces.

Дизайн и ремонт кухни-гостиной в современном стиле

We selected a dining table with a neutral finish to ensure it wouldn’t detract from the Midj chairs upholstered in bright blue. We chose the color and material for the table base separately; the slim ring connecting the two cones matches the color of the chair legs. Above the table, we hung lamps designed by British designer Tom Dixon. Nearby, on the wall, there's a poster of Marvel characters displayed in a special lightbox from the customer’s collection.

Гостиная в современном стиле

We selected a fold-out Milano Bedding sofa to accommodate potential guests. Opposite the sofa, there is a metal-finished hanging cabinet. In the living room area, we installed a surround-sound audio system, complete with speakers positioned near the TV and above the sofa.

Карен Карапетян отзывы
By the way,

If you're looking for a stunning design and top-quality renovation without getting into the details, please submit a request

Дизайн и ремонт гостиной
Шкаф-бар на заказ

In this kitchen-living room, there is a small lounge area by the window featuring a MisuraEmme armchair, a stand for a vinyl player, and, above it, an Alexander Tischler wall-mounted bar with ribbed glass fronts.

Гостиная с декоративной штукатуркой на стенах и потолке
Граффити в интерьере гостиной

We also created a small arch with rounded corners and invited the artist Vasiliy Matafonov from Yekaterinburg to paint it. Vasiliy incorporated meaningful words for the customers into the winding graphics. Above the sofa, we displayed LEGO car models on specially designed backlit displays.

Декор для гостиной на заказ
Дизайн и оформление гостиной
Хозяйственный шкаф для стиральной машины
Шкафы для обуви и одежды в прихожей

The interior design has minimized the use of corridors, making the small space between the hallway and the kitchen-living room highly functional. Behind the sleek black facades, there is a washing machine and a dryer, along with room for a laundry basket and other household items. To the right of the utility cabinet, we've installed a tall cabinet that can accommodate two vacuum cleaners. The cabinet's facades do not extend to the floor, allowing space for a robot vacuum below. Inside, there are also mounts and an electrical socket for a handheld vacuum cleaner.

Дизайн и ремонт маленького санузла
Освещение в маленьком санузле

The guest bathroom is across from the utility closet. We installed a large countertop with an integrated sink and a kitchen faucet, making it versatile for laundry tasks. This bathroom can serve as an extension of the laundry room, allowing one to wash out stains or clean shoes easily. By opening the doors to both the closet and the bathroom, a convenient space for doing laundry is created.

Зеркальный шкаф для ванной на заказ
Шкаф и тумба для ванной на заказ

We decorated the wall and door panel in the guest bathroom with stainless steel panels, providing a perfect spot for customers' travel magnets. Additionally, we installed RGB lighting around the mirror cabinet to allow the clients to surprise their guests with an inviting ambiance.

Дизайн и ремонт прихожей
Мебель для прихожей на заказ

We enhanced the small hallway by installing a floor-to-ceiling mirror, which helped create the illusion of more space. We designed a hanging console made of mirrors for storing small items, making it visually blend into the surroundings. On the opposite wall, we placed a large closet with facades covered in decorative plaster. To add a unique touch, we commissioned an artist to paint the closet. In the corner of this closet, we installed a water supply and heating manifold unit, ensuring easy access to it. We also left space for storing suitcases.

Стеклянный шкаф для одежды в спальню
Шкаф с подсветкой в спальне

One of the customer's wishes was to create a voluminous and aesthetically pleasing storage system, so we prepared a project and commissioned the Italian factory MisuraEmme to produce the wardrobes for the bedroom.

Шкаф со стеклянными фасадами для спальни
Шкаф с подсветкой для одежды в спальне

The cabinet features fronts made of tinted glass, with vertical lighting installed along its entire height. The accessory drawers are adorned with grained eco-leather. Additionally, we installed the mirror in the bedroom directly on the door leaf.

Дизайн и ремонт мастер-спальни
Мебель для спальни на заказ
Дизайн подсветки для спальни
Дизайн интерьера серой спальни
Зеркало на двери для спальни

We created a curved panel above the headboard, which was painted by an artist and accented with carefully mounted lighting. This lighting highlights the texture of the surfaces, as we applied decorative plaster to the walls, ceilings, and doors throughout the space. The curved panel also extends into the loggia, creating a cohesive design.

Дизайн интерьера кабинета на лоджии

We installed a second layer of glazing on the loggia, which made it warmer. We also organized a separate office space of 4.1 m2. On one side, we placed a table with a concrete finish, and we set up a cabinet for documents on the other side.

Дизайн интерьера ванной комнаты с ванной и душем
Дизайн и ремонт ванной комнаты
Дизайн и ремонт санузла с ванной и душем

The developer initially placed the bathroom entrance in the hallway. We connected the bathroom to the bedroom, increasing the area of the first to 7.4 m2. We decorated the wall by the window with tiles from the Italian brand 41zero42, featuring palm leaves that lean against misted glass.

Встроенная душевая лейка в ванной
Подсветка для ванной дизайн

The freestanding bathtub and shower are not separated. We mounted the Antonio Lupi shower head directly into the ceiling and covered it with decorative plaster.

Тумба и раковина на заказ для ванной

In this bathroom, we designed and created a large wall-mounted cabinet featuring an integrated sink. Above this installation, we added a shallow cabinet with glass fronts and lighting, specifically for the customer's cosmetics. In the bedroom and bathroom, we installed parquet flooring designed to resemble deck boards, featuring a distinctive division of planks for added accent.

?autoplay=" title="YouTube video player" frameborder="0" allow="accelerometer; autoplay; clipboard-write; encrypted-media; gyroscope; picture-in-picture" allowfullscreen>

Before reaching out to us, the customers had started working with another design bureau. We posted a video on YouTube in which we discussed how we improved their layout and presented additional interior solutions.

Дизайн-проект кухни-гостиной
Дизайн-проект кухни с островом
Кухонный гарнитур с островом
Дизайн-проект гостиной с диваном
Дизайн-проект прихожей
Дизайн-проект прихожей в современном стиле
Мебель и зеркало для прихожей
Дизайн-проект маленького санузла
Дизайн-проект спальни в мужском стиле
Шкаф для одежды в спальне стеклянные фасады
Дизайн-проект маленького кабинета
Дизайн-проект ванной комнаты
Мебель для ванной в современном стиле

This is how we showcased the interior during the design stage: we carefully selected all objects and materials. Our meticulous attention to detail allowed us to create an interior that closely aligns with the original sketches.

Estimate
The estimate is valid as of November 2023. It does not constitute a public offer.
Design
$13,932
Interior design project
$129
x
71 m2
=
$9,159
Furniture design project
$129
x
37 l.m
=
$4,773
Finishing materials
$77,251
The work of the artist Vasiliy Matafonov
$1,784
x
1 kit
=
$1,784
Esta parquet in the kitchen-living romm
$115
x
40 m2
=
$4,600
Italon porcelain stoneware in the kitchen-living room
$53
x
20 m2
=
$1,060
Derufa decorative ceiling plaster
$60
x
63 m2
=
$3,780
Derufa decorative wall plaster
$51
x
130 m2
=
$6,630
41zero42 porcelain stoneware in the bathroom
$442
x
13 m2
=
$5,746
Metal panels in the guest bathroom
$1,782
x
1 kit
=
$1,782
Atlas Concorde porcelain stoneware in the guest bathroom
$41
x
18 m2
=
$738
Solid Oak Select board with oil and sealant in the master bedroom
$68
x
25 m2
=
$1,700
Porcelanosa ceramic tiles in the bathroom
$101
x
11 m2
=
$1,111
Porcelanosa porcelain stoneware in the bathroom
$118
x
24 m2
=
$2,832
Derufa paint
$61
x
2 pcs
=
$122
The windowsill made of Galapagos quartzite
$5,424
x
1 kit
=
$5,424
Shell construction materials
$39,942
x
1 kit
=
$39,942
Doors, windows, and partitions
$16,954
Windows in the kitchen-living room
$4,132
x
1 kit
=
$4,132
Windows in the home office
$4,132
x
1 kit
=
$4,132
Esta front door
$3,226
x
1 pc
=
$3,226
Union flush mounting interior door in the guest bathroom
$1,238
x
1 pc
=
$1,238
Union flush mounting interior door in the bedroom
$1,433
x
1 pc
=
$1,433
Union flush mounting interior door in the bathroom
$907
x
1 pc
=
$907
Colombo doorknob
$65
x
3 pcs
=
$195
Colombo door lock
$66
x
2 pcs
=
$132
Colombo doorstop
$16
x
2 pcs
=
$32
Verum doorstop in the bedroom
$39
x
1 pc
=
$39
Alexander Tischler glass partition in the bathroom
$1,488
x
1 pc
=
$1,488
Furniture
$131,560
Alexander Tischler wardrobe in the hallway
$7,283
x
1 pc
=
$7,283
Alexander Tischler mirror and console in the hallway
$1,963
x
1 pc
=
$1,963
Alexander Tischler shoe cabinet in the hallway
$2,935
x
1 pc
=
$2,935
Alexander Tischler utility cabinet in the hallway
$4,474
x
1 pc
=
$4,474
Alexander Tischler bar cabinet in the living room
$3,112
x
1 pc
=
$3,112
Alexander Tischler TV cabinet in the living room
$5,307
x
1 pc
=
$5,307
Milano Bedding sofa
$10,814
x
1 pc
=
$10,814
MisuraEmme armchair in the living room
$8,030
x
1 pc
=
$8,030
Cesar kitchen with the island
$16,187
x
1 kit
=
$16,187
The kitchen countertop and apron made of Galapagos quartzite
$4,023
x
1 kit
=
$4,023
The kitchen island countertop made of Galapagos quartzite
$5,478
x
1 kit
=
$5,478
MisuraEmme small wardrobe in the bedroom
$8,762
x
1 pc
=
$8,762
MisuraEmme large wardrobe in the bedroom
$10,710
x
1 pc
=
$10,710
Poliform bed
$7,600
x
1 pc
=
$7,600
Union shelf in the living room
$358
x
3 pcs
=
$1,074
Midj dining table
$2,989
x
1 pc
=
$2,989
Midj chair
$781
x
2 pcs
=
$1,562
Midj armchair
$845
x
2 pcs
=
$1,690
Calligaris bar stool in the kitchen
$448
x
3 pcs
=
$1,344
I4 Mariani desk chair in the home office
$3,165
x
1 pc
=
$3,165
The Ply desktop in the home office
$1,210
x
1 pc
=
$1,210
MyOry shelf in the home office
$140
x
1 pc
=
$140
Alexander Tischler stand in the guest bathroom
$1,285
x
1 pc
=
$1,285
Grandex countertop made of acrylic stone with the sink in the guest bathroom
$1,701
x
1 kit
=
$1,701
Alexander Tischler cabinet in the guest bathroom
$2,507
x
1 pc
=
$2,507
Alexander Tischler cabinet in the bathroom
$4,959
x
1 pc
=
$4,959
Alexander Tischler stand in the bathroom
$3,031
x
1 pc
=
$3,031
Grandex countertop made of acrylic stone with the sink in the bathroom
$2,267
x
1 kit
=
$2,267
Alexander Tischler mirror in the bathroom
$1,252
x
1 pc
=
$1,252
Alexander Tischler bedside table large
$1,906
x
1 pc
=
$1,906
Alexander Tischler bedside table small
$780
x
1 pc
=
$780
Alexander Tischler cabinet in the home office
$2,020
x
1 pc
=
$2,020
Electrical items
$7,051
Tom Dixon large lamp in the kitchen
$827
x
1 pc
=
$827
Tom Dixon small lamp in the kitchen
$502
x
1 pc
=
$502
The led strip corner profile
$8
x
14 pcs
=
$112
The led strip diffuser
$4
x
40 pcs
=
$160
Arlight led strip
$8
x
40 pcs
=
$320
Arlight RGBW led strip
$17
x
15 pcs
=
$255
Arlight led strip control panel
$53
x
1 pc
=
$53
Stellanova double plaster lamp
$41
x
20 pcs
=
$820
Stellanova plaster lamp
$26
x
13 pcs
=
$338
Osram led bulb
$3
x
13 pcs
=
$39
Centersvet track
$374
x
1 pc
=
$374
Centersvet track lamp
$170
x
3 pcs
=
$510
Leds C4 sconce in the bedroom
$290
x
2 pcs
=
$580
Devi thermostat
$84
x
4 pcs
=
$336
Bticino sockets and switches
$1,564
x
1 kit
=
$1,564
Schneider Electric sockets
$261
x
1 kit
=
$261
Heating, ventilation, and air conditioning
$21,521
LG air-conditioning system
$10,274
x
1 kit
=
$10,274
VentMachine supply ventilation system
$6,333
x
1 kit
=
$6,333
Antonio Lupi towel warmer in the bathroom
$1,913
x
1 pc
=
$1,913
Caldo radiator in the home office
$912
x
1 pc
=
$912
Caldo radiator in the kitchen-living room
$746
x
1 pc
=
$746
KZTO large radiator in the kitchen-living room
$483
x
1 pc
=
$483
KZTO small radiator in the kitchen-living room
$435
x
1 pc
=
$435
KZTO radiator in the bathroom
$425
x
1 pc
=
$425
Plumbing and accessories
$20,795
Omoikiri faucet in the kitchen
$357
x
1 pc
=
$357
Omoikiri sink in the kitchen
$456
x
1 pc
=
$456
Omoikiri dispenser in the kitchen
$59
x
1 pc
=
$59
Omoikiri disposal button in the kitchen
$46
x
1 pc
=
$46
Omoikiri faucet in the guest bathroom
$189
x
1 pc
=
$189
Allen Brau toilet in the guest bathroom
$280
x
1 pc
=
$280
Allen Brau hygienic shower in the guest bathroom
$148
x
1 pc
=
$148
Allen Brau toilet brush in the guest bathroom
$162
x
1 pc
=
$162
Tece wall-hung toilet system in the guest bathroom
$1,008
x
1 pc
=
$1,008
MyOry towel holder in the guest bathroom
$73
x
2 pcs
=
$146
MyOry shelf in the guest bathroom
$51
x
1 pc
=
$51
Allen Brau bottom valve in the guest bathroom
$27
x
1 pc
=
$27
SantiLine sink siphon in the bathroom
$44
x
1 pc
=
$44
Cielo toilet in the bathroom
$1,450
x
1 pc
=
$1,450
Cielo bidet in the bathroom
$1,219
x
1 pc
=
$1,219
Tece wall-hung toilet system in the bathroom
$880
x
1 pc
=
$880
QD bidet mixer
$544
x
1 pc
=
$544
QD hand-shower
$343
x
1 pc
=
$343
QD built-in shower mixer for the hand-shower
$335
x
2 pc
=
$670
Antonio Lupi built-in showerhead
$335
x
1 pc
=
$335
QD built-in shower mixer
$403
x
1 pc
=
$403
QD built-in washbasin mixer
$485
x
2 pc
=
$970
Decor Walther make-up mirror in the bathroom
$489
x
1 pc
=
$489
Antonio Lupi green shelf
$1,947
x
1 pc
=
$1,947
Salini bathtub
$2,961
x
1 pc
=
$2,961
QD freestanding bath mixer
$2,658
x
1 pc
=
$2,658
Viega floor drain
$904
x
1 pc
=
$904
Antonio Lupi small shelf in the bathroom
$560
x
1 pc
=
$560
Antonio Lupi shelf in the bathroom
$610
x
1 pc
=
$610
Antonio Lupi shelf with hole for cup or dispenser
$185
x
1 pc
=
$185
Antonio Lupi dispenser
$474
x
1 pc
=
$474
Antonio Lupi toilet roll holder
$220
x
1 pc
=
$220
Works
$52,953
Building and installation management
$55
x
71 m2
=
$3,905
Preparatory and rough finishing
$7,637
x
1 kit
=
$7,637
Installation of water supply, sewerage, heating, and power supply systems
$9,081
x
1 kit
=
$9,081
Pre-finishing
$13,202
x
1 kit
=
$13,202
Fine finishing
$6,594
x
1 kit
=
$6,594
Fine installation of water supply, sewerage, heating, and power supply systems
$4,643
x
1 kit
=
$4,643
Logistics costs
$3,813
x
1 kit
=
$3,813
Furniture installation
$4,078
x
1 kit
=
$4,078
Total
$342,017
Team
Karen Karapetian
Chief Designer
Anna Prokhorova
Designer
Кonstantin Prokhorov
Engineer
Oleg Mokrushnikov
Engineer
Liubov Venertseva
Engineer
Ekaterina Demkina
Head of Purchasing
Karen Nikoian
Head of Finishing
Evgenii Bridnya
Installation Manager
Vasiliy Matafonov
Artist
Olga Karapetian
Photographer
Kira Prokhorova
Stylist
Vera Minchenkova
Copywriting
We take complete care of your interior
The clients of this project had a clear vision — they wanted a bold and unconventional design. We took their ideas and translated them into a cohesive design project that we successfully implemented. If you're looking to easily create your dream interior, let’s work together! Send a request, and we'll provide you with an estimate for the production costs of your interior.

Interior Production, From an Executed Contract to Moving In,
Takes From 12 Months

Creating the interior design project
Quarter 1
Creating furniture design project
Fixing the value
Quarter 2
Erection of partition walls
Installing the utility systems
Quarter 3
Ceilings installation
Decoration
Doors installation
Quarter 4
Furniture and appliances installation
Cleaning
Interior Production, From an Executed Contract to Moving In,
Takes From 12 Months
Design works
Quarter 1
Quarter 2
Quarter 3
Quarter 4
Measurements
Making a layout
Making a sketch plan
Making the final design concept
Making a sketch plan for furniture
Making the final design concept for furniture
Designing the air ventilation system
Designing the heating system
Designing the water delivery system
Designing the wastewater disposal system
Designing the power supply system
Developing the budget
Construction supervision
Finishing facilities
Dismantling of partition walls
Erection of partition walls
Priming
Plastering
Soundproofing
Calking
Glass-fiber mat sizing
Coloring
Attaching porcelain stoneware
Floor soundproofing and waterproofing
Floor levelling
Installing underfloor heating
Placing porcelain stoneware onto the floor
Floor priming
Placing veneer wood onto the floor
Placing wood block flooring
Placing cork compensators
Ceiling soundproofing
Installing plasterboard ceiling
Ceiling priming
Ceiling calking
Putting glass-fiber mats onto the ceiling
Ceiling coloring
Cleaning
Utility systems
Installing the water delivery system and the wastewater disposal system
Installing the heating system
Installing the electricity supply system
Installing the vacuum ventilation system
Installing air conditioners
Doors and windows
Windows installation
Doors installation
Furniture and appliances
Furniture production
Furniture installation
Appliances installation
We Are the Members of the Professional Communities of the USA and Russia
Problem-Free Renovation
You buy an interior as a ready product. The renovating process will not take you away from your family, business, or vacation. We are the ones who control the working process, deliveries, and quality of products.
Full Responsibility
We are in charge of the whole interior and solve all possible mistakes.
Fixed Price
We fix the price of the whole interior at the stage of the design project so it will not rise during realization.

Other interiors

All interiors