A luminous 108 m2 Moscow Apartment With a Fireplace and a Sauna: Photos, Videos, and Estimate of the Completed Interior

A luminous 108 m<sup>2</sup> Apartment With a Fireplace and a Sauna: Photos, Videos, and Interior Estimate

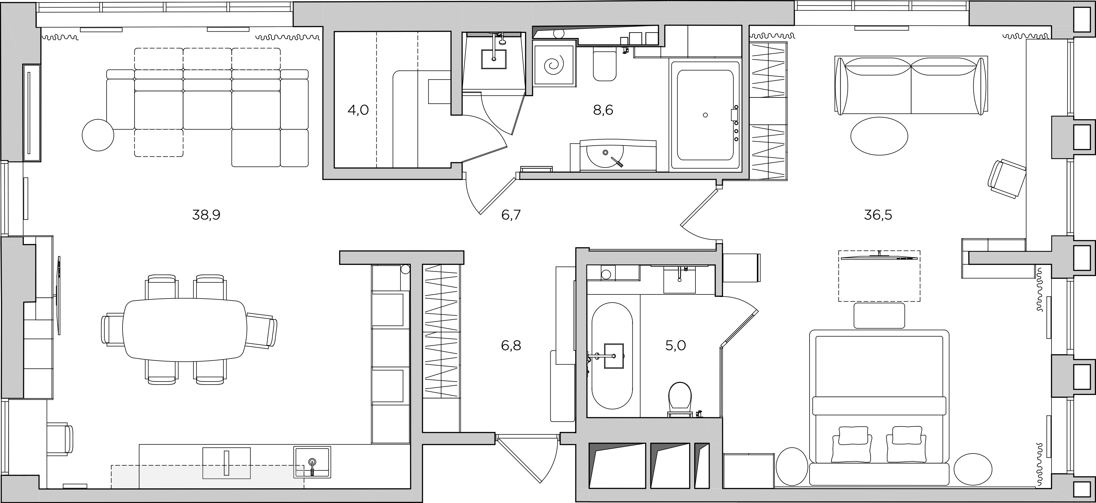
We designed and delivered this fancy interior for a successful businesswoman. We had done a similar project for her before, but we added more details and accents this time. Our team combined two rooms on the right side of the apartment into one large bedroom with a bathroom and a workspace by the window.

We made a design project and completed the interior. We prepared the estimate and fixed the price for the completion in the stage of designing, therefore the price hadn’t changed during the repair process. We designed the cabinet furniture specially for this apartment.

Size 108 m2
Type One-bedroom apartment
Years 2020–2022
Features Supporting pylons; a beam in the living room “cuts” the windows
Before
After
A supporting pylon
A beam in the living room “cuts” the windows
Transferred the bathroom entrance into the bedroom
Combined two rooms into a spacious bedroom with a workspace and lounge zone
The bathroom and the dressing zones were united to form a large SPA area
Прихожая с тумбой и пуфом

The interior is mostly white, but it is personalized with some exquisite details. Our most interesting interior asset is the brass inserts between the Atlas Concorde porcelain stoneware tiles. We cut the tiles purposely to make the floor pattern have a more fragmented look.


The fragmentary nature of the interior is echoed by the "random" layout of cabinet fronts, wall panels as well as mirrors. The client also wanted her furniture to look glossy, so we covered these surfaces with refined glass.

Кухня-гостиная с камином

The large living room is divided into several functional areas: a kitchen set with a dining table, a workplace by the window, a sofa near the electric fireplace.

Кухонный гарнитур со стеклянными фасадами

The corner kitchen set is white with glass fronts. The upper modules are a little bit more decorative: the accent lighting makes the silhouettes of dishes and glasses visible through the frosted bronze glass. The style of these modules is also supported by the hob with a built-in hood.

Кухня со стеклянными фасадами
Подсветка белой кухни

Underneath the natural quartz countertop, there are lights providing an additional interior accent.

Кухонный гарнитур со стеклянными фасадами

We hung a Brand van Egmond shaped chandelier in a gold finish above the dining table with a marble top.

Угловая белая кухня
Мебель для кухни-гостиной на заказ

In more detail, we showed the design of this kitchen in the video.

Рабочий стол у окна в квартире

We placed the hanging desk near the window, from where one can see the actively developing Moscow.

Кухня со стеклянными фасадами
Дизайн интерьера кухни-гостиной в стиле неоклассики
Электрокамин в гостиной

The TV is equipped with a pan-and-tilt mounting bracket, so one can watch it from behind a table or from a sofa. The cabinet on which the TV is hung raises the ceilings visually, as it hides a horizontal beam "cutting" the windows.

Электрокамин в интерьере неоклассика
Электрокамин с подсветкой

We finished the wall around the electric fireplace with natural onyx. We also made slabs from floor to ceiling to hide the pylon and beam. The vertical lines of the cabinet and onyx make the windows visually taller. Some parts of the stone pattern are translucent, so we installed matrix lighting to create an impressive interior element. The vertical onyx pattern aligns with the flames of the fireplace. The fireplace runs on water: it heats it up and illuminates the steam, which imitates the flames. This way there is no foreign smell in the room and the air is additionally humidified.

We explained in detail why we chose an electric fireplace in the video.

Белая кухня-гостиная
Оформление камина в кухне-гостиной

We chose a transforming sofa in light leather finish. Its back and armrests can be regulated at different angles, and one can make another ottoman from the left module just with one movement.

Check out how this sofa can be transformed in the video.

Белая кухня-гостиная с большим столом

We designed a concealed supply-exhaust ventilation and air conditioning system. It is only the narrow grilles that are noticeable in the apartment. Lighting has also been added in the niches under the ceiling, so it's a great option for cozy evenings.

Дизайн интерьера белой квартиры

We installed glossy hidden doors in this interior, but we chose a bronze color for the ends of the door panels and the frames finish. This is how the doors delicately dilute the white walls.

Спальня с рабочим местом и ванной

Since this is a high-floor apartment with the bedroom windows facing west, we wanted this area to be filled with sunset rays. For the bedroom, we designed and made three mirrored closets and a shelving unit. The cabinet next to the bed has fronts of bronze mirror echoing the bed's upholstering. Behind the headboard of the bed there are soft wall panels trimmed with the bouclé fabric. These panels are fragmented with the same brass inserts as on the floor.

Мягкое изголовье кровати в спальне

Above the bed, we hang as same Brand van Egmond chandelier as in the living room; and we chose brass finish for the lamps and sockets. Instead of bedside tables, we placed Glass Italia glass tables.

Спальня со своей ванной
Спальня с ванной за стеклянной перегородкой

The bathroom is separated from the bedroom by a transparent partition wall with a bronze frame. The backlit onyx panel that covers the entire bathroom wall is also visible from the bedroom.

Оформление ванной натуральным камнем
Слэб из оникса с подсветкой в ванной
Ванная с круглым зеркалом с подсветкой

We made a white artificial stone countertop and built a sink into it. On the left, there is a ceiling-high cabinet hiding a sewer pipe. The space between the countertop and the bathtub is decorated with a mirror to make this narrow niche "disappear".

More about our solutions in this bathroom is in the video.

Спальня с рабочим местом у окна
Спальня с выдвижным телевизором

One of the supporting pylons is hidden by a mirrored cabinet by the desk and a shelving unit with a mirrored wall. The hanging desk has several drawers. The TV is placed on a remote control mounting bracket. It is lowered from the ceiling hatch and can be turned towards the bed or the sofa.

We showed how the TV elevator works in this video.

DSCF4164
DSCF4156
Ванная комната с сауной и душевой

Opposite the apartment entrance, there is the spa area with a shower, a whirlpool tub and a sauna. There is also a cabinet for the washer and dryer with an extractor hood built into it.

In this video, we discussed our solution to make porcelain stoneware baseboards for the hot tub.

Белая ванная комната
Ванная комната с большим зеркалом

We found a very special Jacob Delafon countertop sink for the bathroom. It is paired with a mirror with built-in perimeter lighting.

?autoplay=1" title="YouTube video player" frameborder="0" allow="accelerometer; autoplay; clipboard-write; encrypted-media; gyroscope; picture-in-picture" allowfullscreen>

We also shot a video review of this interior, where we talked in detail about all the planning and interior solutions. We published this video on YouTube as well.

Дизайн-проект кухни-гостиной в стиле современная классика
Дизайн-проект белой кухни неоклассика
Белая кухня-гостиная
Белая угловая кухня неоклассика
Белая гостиная в современном стиле
Дизайн-проект белой гостиной современная классика
Кухня-гостиная с камином неоклассика
Белая кухня-гостиная в стиле современная классика
Дизайн гостиной с камином в стиле современная классика
Большой белый шкаф в прихожей
Мебель и зеркало в прихожей
Дизайн-проект спальни в стиле неоклассика
Бежевая спальня неоклассика
Мастер-спальня с ванной в стиле неоклассика
Современная мебель для спальни
Дизайн-проект светлой спальни неоклассика
Спальня с зоной отдыха
Поворотный телевизор в спальне
Отделка ванной комнаты натуральным камнем
Зона спа в квартире с джакузи
Дизайн-проект ванной и сауны

We presented the interior this way in the design stage. All the items and materials were chosen. The detailed work allowed us to complete the interior as it was on the sketch.

Estimate
The estimate is valid as of February 2021. It does not constitute a public offer.
Design
$18,834
The interior design project
$129
x
108 m2
=
$13,932
The furniture design project
$129
x
38 l. m
=
$4,902
Finishing materials
$99,574
Atlas Concorde porcelain stoneware
$80
x
214 m2
=
$17,120
A brass insert
$102
x
168 pcs
=
$17,136
Dune mosaic
$411
x
14 m2
=
$5,754
A slab of Fire onyx in the bathroom
$700
x
6 m2
=
$4,200
A slab of Romantic Brown onyx in the living room
$517
x
8 m2
=
$4,136
Derufa white wall paint
$122
x
3 pcs
=
$366
Derufa white ceiling paint
$109
x
2 pcs
=
$218
Derufa black wall paint
$15
x
3 pcs
=
$45
A finishing surface of sauna
$22,810
x
1 kit
=
$22,810
Shell construction materials
$27,789
x
1 kit
=
$27,789
Doors
$25,924
Bluinterni glass door in the bedroom and spa area
$4,864
x
2 pcs
=
$9,728
Bluinterni glass partition in the bedroom
$10,565
x
1 pc
=
$10,565
Olivari doorknob
$371
x
2 pcs
=
$742
Olivari door latch
$110
x
2 pcs
=
$220
Jaguar front door
$4,669
x
1 pc
=
$4,669
Furniture
$203,227
Alexander Tischler wardrobe in the hallway
$6,517
x
1 pc
=
$6,517
Cattelan mirror in the hallway
$2,224
x
1 pc
=
$2,224
Minotti pouf in the hallway
$3,758
x
1 pc
=
$3,758
Alexander Tischler cabinet in the hallway
$3,484
x
1 pc
=
$3,484
Alexander Tischler kitchen with the quartz countertop
$39,352
x
1 pc
=
$39,352
Alexander Tischler wardrobe with desktop in the living room
$7,836
x
1 pc
=
$7,836
Pedrali chair
$959
x
6 pcs
=
$5,754
Rimadesio dining table
$7,819
x
1 pc
=
$7,819
Kler sofa in the living room
$8,638
x
1 pc
=
$8,638
Rimadesio coffee table in the living room
$1,392
x
1 pc
=
$1,392
Pedrali barstool in the living room
$833
x
1 pc
=
$833
Alexander Tischler cabinet in the spa area
$3,162
x
1 pc
=
$3,162
Alexander Tischler mirror with built-in lighting in the spa area
$1,389
x
1 pc
=
$1,389
Alexander Tischler sink cabinet in the spa area
$2,375
x
1 pc
=
$2,375
Alexander Tischler cabinet above the toilet in the spa area
$3,815
x
1 pc
=
$3,815
Alexander Tischler mirror in the hallway
$1,881
x
1 pc
=
$1,881
Alexander Tischler wardrobe in the bedroom
$13,414
x
1 pc
=
$13,414
Arketipo sofa in the bedroom
$18,961
x
1 pc
=
$18,961
Arper Aston desk chair in the bedroom
$3,504
x
1 pc
=
$3,504
Alexander Tischler desktop in the bedroom
$5,741
x
1 pc
=
$5,741
Glas Italia coffee table in the bedroom
$2,965
x
1 pc
=
$2,965
Alexander Tischler mirror cabinet in the bedroom
$9,277
x
1 pc
=
$9,277
Prianera bed
$20,904
x
1 pc
=
$20,904
Alexander Tischler wall panels
$6,946
x
1 pc
=
$6,946
Alexander Tischler cabinet in the bedroom
$5,865
x
1 pc
=
$5,865
Prianera bench in the bedroom
$2,694
x
1 pc
=
$2,694
Alexander Tischler sink cabinet with the countertop in the bathroom
$1,747
x
1 pc
=
$1,747
Alexander Tischler cabinet above the bath
$3,626
x
1 pc
=
$3,626
Alexander Tischler mirror with built-in lighting in the bathroom
$463
x
1 pc
=
$463
Glas Italia bedside table
$2,557
x
2 pcs
=
$5,114
Alexander Tischler windowsill in the bedroom
$1,124
x
1 kit
=
$1,124
Alexander Tischler windowsill in the living room
$653
x
1 kit
=
$653
Electrical items
$77,391
FinnMat heating mat in the spa area
$81
x
1 pc
=
$81
FinnMat heating mat in the hallway
$98
x
1 pc
=
$98
FinnMat heating mat in the living room, bathroom, and bedroom
$128
x
3 pcs
=
$384
FinnMat heating mat in the spa area
$138
x
1 pc
=
$138
FinnMat heating mat in the kitchen-living room
$171
x
1 pc
=
$171
FinnMat heating mat in the hallway and spa area
$195
x
3 pcs
=
$585
FinnMat heating mat in the kitchen-living room Type 1
$219
x
1 pc
=
$219
FinnMat heating mat in the kitchen-living room Type 2
$285
x
1 pc
=
$285
FinnMat heating mat in the kitchen-living room Type 3
$331
x
1 pc
=
$331
FinnMat heating mat in the living room and bedroom
$336
x
2 pcs
=
$672
Faldi white magnetic integrated track
$70
x
12 pcs
=
$840
Faldi track connector
$11
x
8 pcs
=
$88
Faldi corner track connector
$42
x
8 pcs
=
$336
Faldi linear track lamp
$70
x
15 pcs
=
$1,050
Faldi cylindric track lamp
$58
x
16 pcs
=
$928
Arlight LED strip profile
$20
x
10 pcs
=
$200
A LED strip profile
$74
x
16 pcs
=
$1,184
Arlight LED strip
$8
x
55 pcs
=
$440
Arlight LED strip for the slabs
$14
x
70 pcs
=
$980
Arlight LED strip profile for the slabs
$14
x
70 pcs
=
$980
Arlight integrated LED strip profile
$136
x
3 pcs
=
$408
Stellanova lamp Type 1
$27
x
3 pcs
=
$81
Stellanova lamp Type 2
$47
x
30 pcs
=
$1,410
Osram lamp
$4
x
63 pcs
=
$252
Brand Van Egmond chandelier in the kitchen-living room
$9,644
x
1 pc
=
$9,644
Bomma floor lamp
$8,977
x
1 pc
=
$8,977
Brand Van Egmond chandelier in the bedroom
$13,383
x
1 pc
=
$13,383
Led C4 sconce in the bedroom
$247
x
2 pcs
=
$494
Grok lamp in the bedroom
$320
x
2 pcs
=
$640
Jung sockets and switches
$7,839
x
1 kit
=
$7,839
A light grid in the living room
$4,570
x
1 pc
=
$4,570
A light grid under the kitchen countertop
$2,012
x
1 pc
=
$2,012
A light grid in the bathroom
$2,827
x
1 pc
=
$2,827
Tylo sauna heater
$2,919
x
1 pc
=
$2,919
RealFlame fireplace
$2,433
x
1 pc
=
$2,433
TV lift in the bedroom
$9,512
x
1 pc
=
$9,512
Ventilation and air-conditioning system
$12,406
Salda tidal installation
$740
x
1 pc
=
$740
Airone diffuser
$25
x
1 pc
=
$25
Mitsubishi Electric outdoor air conditioning unit
$3,996
x
1 pc
=
$3,996
Mitsubishi Electric indoor ducted air conditioning unit
$738
x
2 pcs
=
$1,476
Consumable materials
$6,169
x
1 kit
=
$6,169
Sanitary ware
$38,801
Carisa golden colour radiator
$1,042
x
6 pcs
=
$6,252
Carisa white radiator
$1,258
x
2 pcs
=
$2,516
Consumable materials for radiators
$2,308
x
1 kit
=
$2,308
Franke dishwasher
$698
x
1 pc
=
$698
Omoikiri dispenser in the kitchen
$128
x
1 pc
=
$128
Omoikiri faucet in the kitchen
$620
x
1 pc
=
$620
Omoikiri disposal button
$90
x
1 pc
=
$90
Terma heated towel rail in the spa area
$1,630
x
1 pc
=
$1,630
Jacob Delafon sink in the spa area
$1,236
x
1 pc
=
$1,236
Jacob Delafon sink panel
$341
x
1 pc
=
$341
Jacob Delafon sink siphon
$218
x
1 pc
=
$218
Jacob Delafon sink faucet
$321
x
1 pc
=
$321
Jacob Delafon toilet roll holder in the spa area
$38
x
1 pc
=
$38
Jacob Delafon toilet brush holder in the spa area
$122
x
1 pc
=
$122
Jacob Delafon towel hook in the spa area
$35
x
1 pc
=
$35
Jacob Delafon soap holder in the spa area
$48
x
1 pc
=
$48
Jacob Delafon toothbrush holder in the spa area
$49
x
1 pc
=
$49
Hansgrohe shower unit in the spa area
$2,075
x
1 pc
=
$2,075
Tece floor drain in the spa area
$603
x
1 pc
=
$603
Riho bathtub in the spa area
$5,646
x
1 pc
=
$5,646
Ravak bathtub faucet in the spa area
$367
x
1 pc
=
$367
Bossoni hygienic shower
$482
x
2 pcs
=
$964
Neptun leakage control system
$372
x
4 kits
=
$1,488
Terma heated towel rail
$1,191
x
1 pc
=
$1,191
Villeroy & Boch bathtub in the bathroom
$1,691
x
1 pc
=
$1,691
Villeroy & Boch toilet
$799
x
2 pc
=
$1,598
Hansgrohe sink faucet in the bathroom
$1,154
x
1 pc
=
$1,154
Hansgrohe thermostat in the bathroom
$745
x
1 pc
=
$745
Hansgrohe shut-off / diverter valve
$792
x
1 pc
=
$792
Hansgrohe bath spout in the bathroom
$434
x
1 pc
=
$434
Hansgrohe hand shower in the bathroom
$310
x
1 pc
=
$310
Hansgrohe overhead shower in the bathroom
$1,836
x
1 pc
=
$1,836
Hansgrohe towel holder in the bathroom
$185
x
1 pc
=
$185
Hansgrohe toilet brush holder in the bathroom
$255
x
1 pc
=
$255
Hansgrohe toilet roll holder in the bathroom
$199
x
1 pc
=
$199
Hansgrohe dispenser in the bathroom
$215
x
1 pc
=
$215
Hansgrohe toothbrush holder in the bathroom
$159
x
1 pc
=
$159
Hansgrohe sink siphon in the bathroom
$99
x
1 pc
=
$99
Hansgrohe sink non-return valve in the bathroom
$58
x
1 pc
=
$58
Joseph Joseph laundry basket
$87
x
1 pc
=
$87
Works
$104,920
Building and installation management
$69
x
108 m2
=
$7,452
Building and installation works
$68,977
x
1 kit
=
$68,977
Logistics costs
$2,420
x
1 kit
=
$2,420
Furniture installation
$13,085
x
1 kit
=
$13,085
Fire onyx slab manufacture and installation
$6,303
x
1 pc
=
$6,303
Romantic Brown onyx slab manufacture and installation
$6,683
x
1 pc
=
$6,683
Total
$581,077
Team
Karen Karapetian
Chief Designer
Iuliia Ubozhenko
Designer
Oleg Mokrushnikov
Engineer
Кonstantin Prokhorov
Engineer
Ekaterina Demkina
Head of Purchasing
Pavel Prokhorov
Head of Finishing
Alexey Stepanov
Installation Manager
Evgenii Kulibaba
Photographer
Kira Prokhorova
Stylist
Vera Minchenkova
Copywriting
Experience a ready-made interior without disrupting your work or family life
Our design project is prepared remotely, and our renovation process doesn’t require constant oversight from you. This was especially valuable for our recent project, where we updated the client with photos and videos every two weeks, allowing her to focus on her job and family. If you also want to achieve your dream interior with ease, let’s get started!

Interior Production, From an Executed Contract to Moving In,
Takes From 12 Months

Creating the interior design project
Quarter 1
Creating furniture design project
Fixing the value
Quarter 2
Erection of partition walls
Installing the utility systems
Quarter 3
Ceilings installation
Decoration
Doors installation
Quarter 4
Furniture and appliances installation
Cleaning
Interior Production, From an Executed Contract to Moving In,
Takes From 12 Months
Design works
Quarter 1
Quarter 2
Quarter 3
Quarter 4
Measurements
Making a layout
Making a sketch plan
Making the final design concept
Making a sketch plan for furniture
Making the final design concept for furniture
Designing the air ventilation system
Designing the heating system
Designing the water delivery system
Designing the wastewater disposal system
Designing the power supply system
Developing the budget
Construction supervision
Finishing facilities
Dismantling of partition walls
Erection of partition walls
Priming
Plastering
Soundproofing
Calking
Glass-fiber mat sizing
Coloring
Attaching porcelain stoneware
Floor soundproofing and waterproofing
Floor levelling
Installing underfloor heating
Placing porcelain stoneware onto the floor
Floor priming
Placing veneer wood onto the floor
Placing wood block flooring
Placing cork compensators
Ceiling soundproofing
Installing plasterboard ceiling
Ceiling priming
Ceiling calking
Putting glass-fiber mats onto the ceiling
Ceiling coloring
Cleaning
Utility systems
Installing the water delivery system and the wastewater disposal system
Installing the heating system
Installing the electricity supply system
Installing the vacuum ventilation system
Installing air conditioners
Doors and windows
Windows installation
Doors installation
Furniture and appliances
Furniture production
Furniture installation
Appliances installation
We Are the Members of the Professional Communities of the USA and Russia
Problem-Free Renovation
You buy an interior as a ready product. The renovating process will not take you away from your family, business, or vacation. We are the ones who control the working process, deliveries, and quality of products.
Full Responsibility
We are in charge of the whole interior and solve all possible mistakes.
Fixed Price
We fix the price of the whole interior at the stage of the design project so it will not rise during realization.

Other interiors

All interiors