77 m2 White Two-Bedroom Moscow Apartment With a Home Office: Photos, Videos, and Estimate of the Completed Interior

77 m<sup>2</sup> White Two-Bedroom Apartment With a Home Office: Photos, Videos, and Interior Estimate

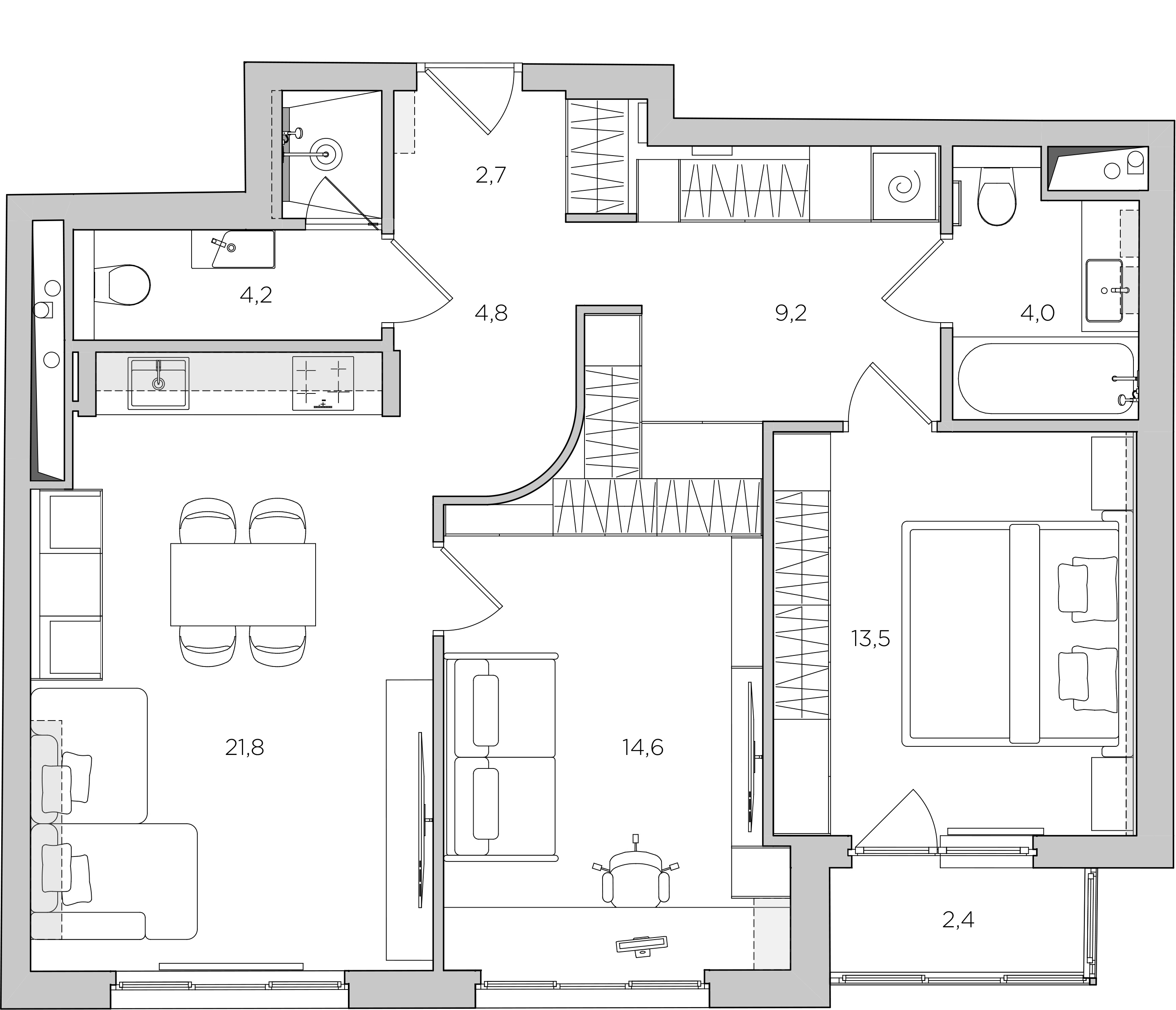
The owners of this apartment wanted to have a combined kitchen-living room and a home office, which would be transformed into a kids’ room in the future, as well as a lot of storage space.

Our team created a design project and worked with the interior exactly according to the plan and budget. We also designed and manufactured all the cabinet furniture specifically for this apartment.

Size 77 m2
Type A two-bedroom apartment
Years 2019–2020
Features Small guest bathroom, nonfunctional corridor, large windows on the sunny side, no load-bearing walls
Before
After
Small bathroom
Nonfunctional corridor
Spacious kitchen
The corridor was expanded and converted into a walk-in closet with a utility unit
The bathroom was enlarged at the expense of the hallway to accommodate a shower
We moved the office entrance from the hallway into the kitchen-living room to save space for cabinets
The partition was moved to place a closet in the bedroom
Белая кухня с подсветкой

The kitchen is divided into two parts. The floor-to-ceiling column cabinets have lots of shelves and contain a built-in refrigerator and a range of appliances. The second part is a minimalist kitchen set with a sink and a cooktop framed by stoneware pylons with the texture of white onyx. To illuminate the dining table, we made a chandelier of profile lamps mounted at different heights.

Кухня-гостиная с диваном и телевизором
Прямой диван в кухне-гостиной
Кухня-гостиная с белой кухней

To dilute the monochrome coloring and the strict lines of the kitchen-living room, we added a volumetric sofa and bright chairs.

Шкаф для одежды из МДФ

There is no fourth wall in the home office, but there is a closet instead. There is also another cabinet in the walk-through dressing zone. Aiming at increasing the storage space, we moved the entrance to the home office: it is now closer to the living room.

Белый шкаф для одежды из МДФ
Стеллаж в кабинет в шпоне ореха
Стеллаж для книг в шпоне ореха с подсветкой

The home office is supposed to become a child's room in the future; the sofa will be replaced with a crib. Things for the baby could be held in the shelving unit and cabinets. The shelving unit and hanging desk are made of American walnut veneer MDF.

Дизайн интерьера спальни в современном стиле
Шкаф для одежды с подсветкой

In the bedroom, a large closet was installed along the wall opposing the bed. The white fronts can be used as a background for a projector movie night.

Стеновые панели и прикроватная тумба

We put supporting light sources along the ceiling and on the furniture. The American walnut veneer panels contrast with the light-colored bed headboard, and the lighting brings out the wood texture.

Проходная белая гардеробная
Проходная гардеробная с белыми шкафами

Our team converted the hallway into a walk-in dressing area. We also managed to put there a washer and a dryer together with a water heater above them. The dressing room area has been expanded at the expense of the home office, so the storage space increased quite significantly.

Шкаф для одежды в прихожей

In the hallway, there is a closet that stores shoes and seasonal clothing. It is opposed by a full-wall mirror with frontal illumination and a hanging shelf.

Круглая перегородка в прихожей

We could have preserved a regular wall instead of setting a radius partition, but it adds dynamics to the room.

Белый шкаф в душевой
Душевая с подсветкой

The guest bathroom was also enlarged at the expense of the hallway, so that the shower room could fit in. Niches over the toilet and the shower are decorated with contrasting tiles and additional lighting.

Шкаф с зеркалами в ванной
Тумба под раковину в ванной

In the bathroom, we moved the toilet away from the bathtub. The sink remaining next to it is accompanied by a graphite-colored enamel hanging drawer unit with an artificial stone countertop.

?autoplay=" title="YouTube video player" frameborder="0" allow="accelerometer; autoplay; clipboard-write; encrypted-media; gyroscope; picture-in-picture" allowfullscreen>

We recorded a video about this interior a year after the clients moved in to find out which solutions turned out to be successful and what could have been improved later.

ГС-1-min
ГС-2-min
ГС-3-min
ГС-4-min
ГС-5-min
коридор-min
КБ-1-min
КБ-2-min
КБ-3-min
СП-1-min
СП-2-min
СП-3-min
КР-1-min
гардеробная-min
гардеробная2-min
КР-4-min
КР-5-min
КР-6-min
душевая-min
душевая2-min
ванная-min
ванная2-min

This is how we presented the interior upon completion of the design: all objects and materials were chosen by our team. Elaborating all the details at the early stage allowed us to do everything according to the plan we presented to the client.

Estimate
The estimate is valid as of March 2020. It does not constitute a public offer.
Design
$15,867
The interior design project
$129
x
77 m2
=
$9,933
The furniture design project
$129
x
46 l. m
=
$5,934
Finishing materials
$36,353
Haro flooring
$113
x
32 m2
=
$3,616
Colorker porcelain stoneware
$92
x
57 m2
=
$5,244
Rex porcelain stoneware in the guest bathroom
$86
x
43 m2
=
$3,698
Porcelanosa glossy porcelain stoneware
$228
x
23 m2
=
$5,244
Porcelanosa matte porcelain stoneware
$79
x
10 m2
=
$790
Colorker porcelain stoneware in the guest bathroom
$97
x
2 m2
=
$194
Derufa white wall paint
$116
x
7 pcs
=
$812
Derufa white ceiling paint
$102
x
4 pcs
=
$408
A cork compensator
$3
x
26 pcs
=
$78
A cork oil
$65
x
1 pc
=
$65
Shell construction materials
$16,204
x
1 kit
=
$16,204
Doors
$4,871
Portalle front door
$1,943
x
1 pc
=
$1,943
A flush mounting interior door
$654
x
4 pcs
=
$2,616
Giro doorknob
$42
x
4 pcs
=
$168
Linea Cali door latch
$25
x
4 pcs
=
$100
Colombo doorstop
$11
x
4 pcs
=
$44
Furniture
$55,775
Alexander Tischler mirror with shelf in the hallway
$383
x
1 pc
=
$383
Alexander Tischler cabinet in the hallway
$1,766
x
1 pc
=
$1,766
Alexander Tischler cabinet with the glass shelves
$2,381
x
1 pc
=
$2,381
Alexander Tischler cabinet
$2,043
x
1 pc
=
$2,043
Pedrali chair
$642
x
4 pcs
=
$2,568
Pedrali dinning table
$818
x
1 pc
=
$818
Alexander Tischler TV cabinet
$1,714
x
1 pc
=
$1,714
Alexander Tischler shelf with biult-in lightning in the living room
$761
x
1 pc
=
$761
One Mebel sofa in the living room
$1,761
x
1 pc
=
$1,761
Alexander Tischler window slopes in the living room
$434
x
1 kit
=
$434
One Mebel sofa in the home office
$1,647
x
1 pc
=
$1,647
Alexander Tischler desktop with the shelves in the study
$1,695
x
1 pc
=
$1,695
Alexander Tischler cabinet in the bedroom
$8,705
x
1 pc
=
$8,705
$2,672
x
1 pc
=
$2,672
Alexander Tischler bedside table
$1,307
x
2 pcs
=
$2,614
One Mebel bed
$1,570
x
1 pc
=
$1,570
Alexander Tischler window slopes in the bedroom
$205
x
1 pc
=
$205
Alexander Tischler cabinet above the toilet installation in the bathroom
$311
x
1 pc
=
$311
Alexander Tischler cabinet under the sink in the bathroom
$2,335
x
1 pc
=
$2,335
Alexander Tischler mirror cabinet in the bathroom
$1,150
x
2 pcs
=
$2,300
Alexander Tischler cabinet above the toilet installation in the guest bathroom
$401
x
1 pc
=
$401
Alexander Tischler glass door in the guest bathroom
$1,233
x
1 pc
=
$1,233
Alexander Tischler mirror with built-in lighting in the guest bathroom
$128
x
1 pc
=
$128
Electrical items
$7,399
Ensto heating mat
$38
x
32 m2
=
$1,216
Led C4 lamp in the bedroom
$202
x
2 pcs
=
$404
Faldi magnetic integrated track Type 1
$80
x
6 pcs
=
$480
Faldi magnetic integrated track Type 2
$53
x
2 pcs
=
$106
Faldi linear track lamp
$55
x
8 pcs
=
$440
Faldi cylindrical track lamp
$39
x
12 pcs
=
$468
Faldi mobile track lamp
$109
x
6 pcs
=
$654
Stellanova plaster lamp
$28
x
38 pcs
=
$1,064
Leds C4 table lamp in the study
$343
x
1 pc
=
$343
Аrlight lamp
$28
x
3 pcs
=
$84
Arlight lamp in the guest bathroom
$107
x
1 pc
=
$107
Magna LED strip
$8
x
100 m
=
$800
A LED strip profile Type 1
$11
x
16 pcs
=
$176
A LED strip profile Type 2
$17
x
7 pcs
=
$119
A LED strip profile Type 3
$17
x
9 pcs
=
$153
A LED strip profile Type 4
$9
x
17 pcs
=
$153
A waterproof LED strip profile
$32
x
1 pc
=
$32
Schneider Electric sockets and switches
$600
x
1 kit
=
$600
Ventilation and air-conditioning system
$6,363
Helios ventilator
$47
x
3 pcs
=
$141
Ventmachine air handling unit
$1,980
x
1 pc
=
$1,980
Mitsubishi Electric outdoor air conditioning unit
$2,109
x
1 pc
=
$2,109
Mitsubishi Electric indoor air conditioning unit Type 1
$415
x
1 pc
=
$415
Mitsubishi Electric indoor air conditioning unit Type 2
$326
x
2 pcs
=
$652
Consumable materials
$1,066
x
1 kit
=
$1,066
Sanitary ware
$11,792
Blanco dishwasher in the kitchen
$288
x
1 pc
=
$288
Blanco faucet in the kitchen
$299
x
1 pc
=
$299
Aquaphor water filter
$104
x
1 pc
=
$104
Villeroy & Boch bathtub
$963
x
1 pc
=
$963
Terma heated towel rail
$482
x
1 pc
=
$482
Villeroy & Boch sink in the bathroom
$605
x
1 pc
=
$605
Noken sink faucet in the bathroom
$414
x
1 pc
=
$414
Jacob Delafon shelf in the bathroom
$66
x
3 pcs
=
$198
Villeroy & Boch toilet in the bathroom
$553
x
1 pc
=
$553
Tece flush panel in the guest bathroom
$85
x
1 pc
=
$85
Tece flush panel in the bathroom
$365
x
1 pc
=
$365
Tece wall-hung toilet system
$258
x
2 pcs
=
$516
Noken built-in faucet in the bathrooms
$539
x
2 pcs
=
$1,078
Noken bath spout
$71
x
1 pc
=
$71
Noken hand shower
$189
x
2 pcs
=
$378
Noken toilet roll holder in the bathroom
$187
x
1 pc
=
$187
Noken hygienic shower in the bathroom
$290
x
1 pc
=
$290
Noken towel holder
$262
x
1 pc
=
$262
Noken toilet roll holder in the guest bathroom
$159
x
1 pc
=
$159
Noken towel hook in the guest bathroom
$55
x
3 pcs
=
$165
Jacob Delafon toilet in the guest bathroom
$306
x
1 pc
=
$306
Jacob Delafon sink in the guest bathroom
$297
x
1 pc
=
$297
Noken sink faucet in the guest bathroom
$261
x
1 pc
=
$261
Noken overhead shower in the guest bathroom
$589
x
1 pc
=
$589
Tece floor drain
$523
x
1 pc
=
$523
Noken hygienic shower in the guest bathroom
$193
x
1 pc
=
$193
Hansgrohe shelf in the guest bathroom
$434
x
1 pc
=
$434
Neptun leakage control system
$277
x
1 kit
=
$277
The access hatches
$183
x
1 kit
=
$183
Zehnder radiator in the living room
$513
x
1 pc
=
$513
Zehnder radiator in the study
$393
x
1 pc
=
$393
Zehnder radiator in the bedroom
$361
x
1 pc
=
$361
Works
$38,759
Building and installation management
$69
x
77 m2
=
$5,313
Building and installation works
$27,363
x
1 pc
=
$27,363
Logistics costs
$1,637
x
1 pc
=
$1,637
Furniture installation
$4,446
x
1 pc
=
$4,446
Total
$177,179
Team
Karen Karapetian
Chief Designer
Iuliia Ubozhenko
Designer
Oleg Mokrushnikov
Engineer
Кonstantin Prokhorov
Engineer
Ekaterina Demkina
Head of Purchasing
Pavel Prokhorov
Finishing Manager
Evgenii Bridnya
Installation Manager
Yana Yahina
Stylist
Yaroslav Lukiyanchenko
Photographer
Vera Minchenkova
Copywriting
Get your design project and renovation from one team
We meticulously develop your interior design project, which means we can provide a detailed estimate before the renovation begins. The cost we present is guaranteed and won’t change during the renovation process. If you want to create your ideal interior without overspending, let’s work together!

Interior Production, From an Executed Contract to Moving In,
Takes From 12 Months

Creating the interior design project
Quarter 1
Creating furniture design project
Fixing the value
Quarter 2
Erection of partition walls
Installing the utility systems
Quarter 3
Ceilings installation
Decoration
Doors installation
Quarter 4
Furniture and appliances installation
Cleaning
Interior Production, From an Executed Contract to Moving In,
Takes From 12 Months
Design works
Quarter 1
Quarter 2
Quarter 3
Quarter 4
Measurements
Making a layout
Making a sketch plan
Making the final design concept
Making a sketch plan for furniture
Making the final design concept for furniture
Designing the air ventilation system
Designing the heating system
Designing the water delivery system
Designing the wastewater disposal system
Designing the power supply system
Developing the budget
Construction supervision
Finishing facilities
Dismantling of partition walls
Erection of partition walls
Priming
Plastering
Soundproofing
Calking
Glass-fiber mat sizing
Coloring
Attaching porcelain stoneware
Floor soundproofing and waterproofing
Floor levelling
Installing underfloor heating
Placing porcelain stoneware onto the floor
Floor priming
Placing veneer wood onto the floor
Placing wood block flooring
Placing cork compensators
Ceiling soundproofing
Installing plasterboard ceiling
Ceiling priming
Ceiling calking
Putting glass-fiber mats onto the ceiling
Ceiling coloring
Cleaning
Utility systems
Installing the water delivery system and the wastewater disposal system
Installing the heating system
Installing the electricity supply system
Installing the vacuum ventilation system
Installing air conditioners
Doors and windows
Windows installation
Doors installation
Furniture and appliances
Furniture production
Furniture installation
Appliances installation
We Are the Members of the Professional Communities of the USA and Russia
Problem-Free Renovation
You buy an interior as a ready product. The renovating process will not take you away from your family, business, or vacation. We are the ones who control the working process, deliveries, and quality of products.
Full Responsibility
We are in charge of the whole interior and solve all possible mistakes.
Fixed Price
We fix the price of the whole interior at the stage of the design project so it will not rise during realization.

Other interiors

All interiors