80 m2 Loft-Style Apartment With Two Workplaces in Moscow: Photos, Videos, and Estimate of the Completed Interior

80 m<sup>2</sup> Loft-Style Apartment With Two Workplaces: Photos, Videos, and Interior Estimate

We designed this interior for a young couple. They wanted to have an apartment full of industrial elements and materials. It was also essential for them to have two workplaces and beautiful showcases for their memorabilia and collections.

We made a design project and completed the interior. We prepared the estimate and fixed the price for the completion in the stage of designing, therefore the price hadn’t changed during the repair process. We designed the cabinet furniture specially for this apartment.

Size 80 m2
Type One-bedroom apartment
Years 2022–2023
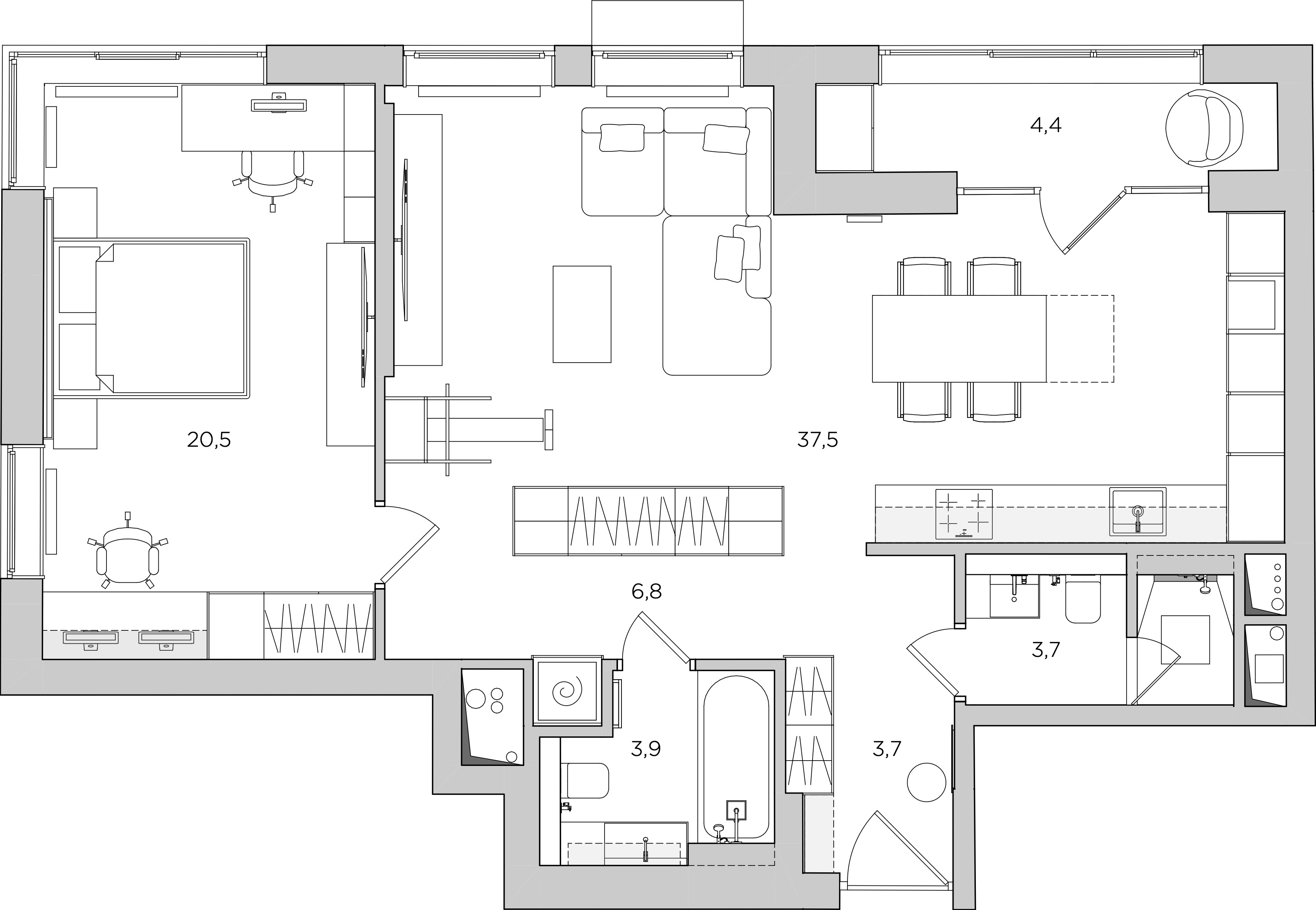
Features A corner apartment without load-bearing walls with two bathrooms and a narrow hallway
Before
After
Bedroom with two windows
Partition that forms a corridor
Small guest bathroom without a shower
Narrow hallway that does not fit a deep wardrobe
We placed a double-sided wardrobe instead of a partition
We organized two workplaces in the bedroom
We lengthened a wall so now there is a large countertop in the kitchen
We enlarged the guest bathroom and added a shower
We installed a shallow cabinet with cross hanging
Дизайн интерьера кухни в стиле лофт

We designed a contemporary interior with loft-style details so that even a kitchen set looks like an industrial object. The clients like to host the guests, so we left a kitchen and a living room united.

Кухонные пеналы
Обеденный стол

We applied not ordinary finish to the kitchen so it did not stand out from the brutalist interior. We made the facades of column cabinets and lower modules of MDF with metalized matte enamel. We finished the upper modules with American walnut veneer that has an active texture nicely contrasting with the metal. We did not extend the upper modules to the ceiling to visually lighten the kitchen; they form a narrow strip.

In the video, we discussed the elements we used to design the loft interior.

Угловая кухня из МДФ
Прямая столешница на кухне

The wall along which the tabletop is located became longer after the redevelopment. But thanks to the layout, only the monolithic wall of column cabinet is visible from the living room, and the large countertop is not noticeable.

Верхние пеналы

In more detail, we showed the design of this kitchen in the video.

Кресло на лоджии
Шкаф для хранения в лоджии

We placed a wardrobe for rarely used items and an armchair with a coffee table on the balcony so that the homeowners could relax and enjoy the city view.

Кухня-гостиная в стиле лофт

The ceiling most strongly references the industrial-like design: as the clients asked, we left the ceiling panel open and did not change its anthropogenic texture in any way.

Шкаф со стеклянными витринами

The supply ventilation air ducts remained visible because of this approach, and we chose black tin pipes. Such a ceiling significantly worsens sound insulation, but this apartment is located on the top floor, so there will be no noise from neighbors. We also pointed some lamps at the ceiling; they highlight its texture and illuminate the interior with reflected light.

More about how we worked with the ceiling is in the video.

Книжные полки в гостиной

Brass retro valves on cast iron radiators are one more element in the factory-like aesthetics.

Диван в гостиной
Кирпичная стена
Интерьер кухни-гостиной

We chose dark porcelain stoneware and decorative brick for the wall in the living room colored as the sofa upholstery and décor.

Витрина шкафа

We placed a double-sided wardrobe instead of a partition that divided a living room and a corridor left by a developer. Since this apartment doesn't have room for a separate walk-in closet, we designed several large closets.

Мебель для гостиной на заказ в Москве
Шкаф для одежды в гостиной на заказ

To prevent the closet from looking like a blank wall from the side of the living room, we decorated its central modules with ribbed panels, and we made showcases with ribbed glass and built-in lighting on the left and right sides.

Шкаф со стороны коридора
Обратная сторона шкафа

Behind the closet in the living room, there is a utility closet containing a washing machine and dryer. To the left, there is the door to the bathroom with a passage for the cat.

We talked about interior solutions for a comfortable life for the clients’ cat in more detail in the video. 

Открытые потолки в интерьере
Шкаф с рабочим столом

One can access the bedroom from the living room. The doors leading there are painted in the same color as the walls on one side, and completely mirrored on the other.

Рабочий стол для хозяина
Рабочее место в спальне

We organized two workplaces in the bedroom; the first is located at the entrance. There is a hanging table with drawers and cabinets for storing documents and clothes. We placed the table here so that there is plenty of room next to it for movement in the VR helmet.

Тумба в спальне
Спальня с рабочей зоной

The second workplace is located at the corner window overlooking the city. Next to the table, there are open shelves and a showcase for the client’s memorabilia.

Рабочая зона у окна
Стеллаж у окна

More about the two workplaces in this bedroom is in the video.

Стеновая панель за кроватью

We designed and manufactured a bed, which we placed in the center of the room; its frame is a single unit with cabinets and wall panels. We made the bed’s base in black and deepened it with the sides veneered with American walnut. This way, the bed seems floating. We supplemented the wall panels above the headboard with wood strips and complemented them with lamps that rhythmically hang from the ceiling.

Подвесная тумба у кровати
Кровать в шпоне американского ореха

In more detail, we showed the design of this bed in the video.

Ванная комната

We installed a mirrored cabinet with sockets and a hanging cabinet with a sink, under which there will be a litter tray for the cat in the bathroom. We chose an unusual porcelain tile decorating the bathroom that imitates the texture of metal sheets and rust.

Керамогранит с металлизированным эффектом
Дизайн небольшой прихожей

There was no room for a deep wardrobe in the small hallway, so we installed a tall and narrow wardrobe with a cross hanging for clothes. To visually expand the space of the hallway, we installed two high mirrors in it.

Подвесная тумба в прихожей
Прихожая в стиле лофт
Душевая комната

One can access the guest bathroom from the hallway. We enlarged the guest bathroom at the expense of the corridor. We were able to add a shower after the replanning; and now it’s separated by a ribbed partition, which unusually refracts the illumination of the niche for gels and shampoos.

Раковина
Стеклянный ящик с подсветкой
Мебель для ванной
?autoplay=" title="YouTube video player" frameborder="0" allow="accelerometer; autoplay; clipboard-write; encrypted-media; gyroscope; picture-in-picture" allowfullscreen>

We also shot a video review of this interior, where we talked in detail about all the planning and interior solutions. We published this video on YouTube as well.

Дизайн-проект кухни-гостиной
Кухня в современном стиле
Современная кухня-гостиная
Дизайн кухни-гостиной в стиле лофт
Дизайн гостиной в стиле лофт
Гостиная в стиле лофт
Дизайн интерьера в стиле лофт
Мебель для гостиной в современном стиле
Современный кухонный гарнитур
Угловая кухня в стиле лофт
Мебель для кухни-гостиной
Интерьер кухни-гостиной в стиле лофт
Шкаф для одежды с подсветкой
Дизайн прихожей с зеркалом
Шкаф для одежды в прихожей
Гостевой санузел в двухкомнатной квартире
Стеклянная перегородка в душевой
Спальня в стиле лофт
Рабочий стол в спальне
Мебель для спальни на заказ в Москве
Дизайн ванной в стиле лофт
Современная мебель для ванной комнаты

We presented the interior this way in the design stage. All the items and materials were chosen. The detailed work allowed us to complete the interior as it was on the sketch.

Estimate
The estimate is valid as of August 2022. It does not constitute a public offer.
Design
$14,190
The interior design project
$129
x
80 m2
=
$10,320
The furniture design project
$129
x
30 l. m
=
$3,870
Finishing materials
$59,823
Italon light porcelain stoneware
$58
x
101 m2
=
$5,858
Italon dark porcelain stoneware
$58
x
13 m2
=
$754
Baueco decorative brick
$18
x
24 m2
=
$432
Kamshov brick grout
$20
x
2 pcs
=
$40
Italon dark gray porcelain stoneware
$57
x
35 m2
=
$1,995
Ariostea porcelain stoneware in the guest bathroom
$205
x
23 m2
=
$4,715
Serenissima Cir porcelain stoneware in the bathroom, type 1
$56
x
15 m2
=
$840
Serenissima Cir porcelain stoneware in the bathroom, type 2
$66
x
3 m2
=
$198
Serenissima Cir porcelain stoneware in the bathroom, type 3
$59
x
7 m2
=
$413
Serenissima Cir porcelain stoneware in the bathroom, type 4
$60
x
13 m2
=
$780
Grespania porcelain stoneware in the bathroom
$107
x
3 m2
=
$321
Derufa beige wall paint
$283
x
3 pcs
=
$849
Derufa dark gray paint
$283
x
1 pc
=
$283
Derufa ceiling paint
$249
x
1 pc
=
$249
Shell construction materials
$42,096
x
1 kit
=
$42,096
Doors and windows
$17,338
Painting the windows
$3,023
x
1 kit
=
$3,023
Portalle front door
$3,679
x
1 pc
=
$3,679
Alexander Tischler front door panel
$312
x
1 pc
=
$312
Union flush mounting interior door in the guest bathroom
$1,133
x
1 pc
=
$1,133
Union flush mounting interior door in the bathroom
$1,216
x
1 pc
=
$1,216
Staywell cat door
$195
x
1 pc
=
$195
Union flush mounting interior door with the mirror in the bedroom
$1,521
x
1 pc
=
$1,521
Union doorknob
$172
x
3 pcs
=
$516
Union door latch
$65
x
3 pcs
=
$195
Colombo doorstop
$20
x
4 pcs
=
$80
The partition with the door in the balcony
$5,468
x
1 pc
=
$5,468
Furniture
$143,420
Alexander Tischler shelf, mirror, and wardrobe in the hallway
$3,970
x
1 pc
=
$3,970
Alexander Tischler mirror in the hallway
$722
x
1 pc
=
$722
Normann Copenhagen pouf
$1,187
x
1 pc
=
$1,187
Alexander Tischler wardrobe in the living room
$22,779
x
1 pc
=
$22,779
Alexander Tischler kitchen with the countertop
$35,903
x
1 pc
=
$35,903
Arper dining table
$4,874
x
1 pc
=
$4,874
Bo Concept dining chairs
$1,937
x
4 pcs
=
$7,748
Alexander Tischler TV cabinet
$2,043
x
1 pc
=
$2,043
Mononova sofa
$6,369
x
1 pc
=
$6,369
Alexander Tischler cabinet above the toilet in the guest bathroom
$3,515
x
1 pc
=
$3,515
Alexander Tischler cabinet under the sink in the guest bathroom
$1,288
x
1 pc
=
$1,288
Alexander Tischler built-in sink in the guest bathroom
$736
x
1 pc
=
$736
Alexander Tischler glass door in the guest bathroom
$2,409
x
1 pc
=
$2,409
Alexander Tischler mirror cabinet in the bathroom
$1,614
x
1 pc
=
$1,614
Alexander Tischler cabinet under the sink in the bathroom
$1,735
x
1 pc
=
$1,735
Alexander Tischler built-in sink in the bathroom
$900
x
1 pc
=
$900
Alexander Tischler cabinet above the toilet in the bathroom
$1,938
x
1 pc
=
$1,938
Alexander Tischler utility closet in the bathroom
$1,189
x
1 pc
=
$1,189
Alexander Tischler wardrobe and desktop in the bedroom
$10,504
x
1 pc
=
$10,504
Bo Concept chairs
$2,578
x
2 pcs
=
$5,156
Alexander Tischler bed with a lifting mechanism
$1,744
x
1 pc
=
$1,744
Alexander Tischler wall panel in the bedroom
$4,249
x
1 pc
=
$4,249
Alexander Tischler bedside table
$479
x
2 pcs
=
$958
Alexander Tischler desktop, wardrobe, and dresser in the bedroom
$13,032
x
1 pc
=
$13,032
Alexander Tischler cabinet in the balcony
$2,434
x
1 pc
=
$2,434
Alexander Tischler windowsill in the living room
$986
x
1 kit
=
$986
Alexander Tischler windowsill in the kitchen
$699
x
1 kit
=
$699
Alexander Tischler windowsill in the balcony
$725
x
1 kit
=
$725
Alexander Tischler windowsill in the bedroom
$2,014
x
1 kit
=
$2,014
Electrical items
$12,039
Sunerzha heated towel rail
$666
x
1 pc
=
$666
Maytoni lamp
$43
x
10 pcs
=
$430
Maytoni built-in lamp
$34
x
6 pcs
=
$204
Arlight magnetic track, 3 m
$208
x
4 pcs
=
$832
Arlight magnetic track, 1 m
$79
x
1 pc
=
$79
Arlight magnetic track connection kit
$22
x
1 kit
=
$22
Arlight magnetic linear lamp
$72
x
6 pcs
=
$432
Arlight cylindric magnetic track lamp
$66
x
12 pcs
=
$792
Ideal Lux chandelier in the kitchen-living room
$1,403
x
1 pc
=
$1,403
Ideal Lux sconce in the kitchen-living room
$269
x
1 pc
=
$269
Arlight led strip
$9
x
10 pcs
=
$90
The led strip corner profile
$14
x
2 pcs
=
$28
The led strip built-in profile
$15
x
4 pcs
=
$60
The led strip diffuser
$5
x
16 pcs
=
$80
Leds C4 lamp in the bedroom, type 1
$307
x
5 pcs
=
$1,535
Leds C4 lamp in the bedroom, type 2
$345
x
5 pcs
=
$1,725
Leds C4 sconce in the bedroom
$183
x
2 pcs
=
$366
Ideal Lux sconce in the bedroom
$129
x
1 pc
=
$129
Devi thermostat
$313
x
6 pcs
=
$1,878
Schneider Electric sockets and switches
$1,019
x
1 kit
=
$1,019
Ventilation and air-conditioning system
$13,269
Royal Clima supply ventilation system
$4,514
x
1 kit
=
$4,514
Royal Clima humidification system
$4,595
x
1 kit
=
$4,595
Haier wall-mounted air conditioners
$4,160
x
1 kit
=
$4,160
Sanitary ware
$18,836
Retro Style radiator in the living room and bedroom
$1,160
x
3 pcs
=
$3,480
Retro Style radiator in the bedroom, type 1
$812
x
1 pc
=
$812
Retro Style radiator in the bedroom, type 2
$580
x
1 pc
=
$580
Arbonia vertical radiator
$665
x
1 pc
=
$665
SR Rubinetterie radiator valve
$364
x
6 pcs
=
$2,184
Radiator mounting kit
$177
x
1 pc
=
$177
Omoikiri sink in the kitchen
$343
x
1 pc
=
$343
Omoikiri faucet in the kitchen
$641
x
1 pc
=
$641
Omoikiri disposal button in the kitchen
$86
x
1 pc
=
$86
Omoikiri dispenser in the kitchen
$122
x
1 pc
=
$122
Sanit wall-hung toilet system
$372
x
2 pcs
=
$744
Toto toilet
$470
x
2 pcs
=
$940
Timo sink siphon
$128
x
2 pcs
=
$256
Allen Brau foot valve in the bathroom
$60
x
2 pcs
=
$120
Timo faucet in the guest bathroom
$411
x
1 pc
=
$411
Timo shower unit in the guest bathroom
$1,911
x
1 pc
=
$1,911
Timo towel holder in the guest bathroom
$177
x
1 pc
=
$177
Timo soap dish
$90
x
2 pcs
=
$180
Wasserkraft soap dish
$53
x
1 pc
=
$53
The cornice in the bathroom
$285
x
1 pc
=
$285
Timo toilet brush
$134
x
2 pcs
=
$268
Timo toothbrush glass
$74
x
2 pcs
=
$148
Timo hook in the guest bathroom
$50
x
3 pcs
=
$150
Timo toilet roll holder
$97
x
2 pcs
=
$194
Timo towel holder in the guest bathroom
$94
x
1 pc
=
$94
Timo hygienic shower
$349
x
2 pcs
=
$698
Wotte bathtub
$1,101
x
1 pc
=
$1,101
Timo shower unit in the bathroom
$1,124
x
1 pc
=
$1,124
Timo sink faucet in the bathroom
$295
x
1 pc
=
$295
Tece floor drain
$597
x
1 pc
=
$597
Works
$81,140
Building and installation management
$69
x
80 m2
=
$5,520
Building and installation works
$56,858
x
1 pc
=
$56,858
Logistics costs
$3,148
x
1 pc
=
$3,148
Furniture installation
$15,614
x
1 pc
=
$15,614
Total
$360,055
Team
Karen Karapetian
Chief Designer
Iuliia Ubozhenko
Designer
Кonstantin Prokhorov
Engineer
Oleg Mokrushnikov
Engineer
Ekaterina Demkina
Head of Purchasing
Karen Nikoian
Head of Finishing
Evgenii Bridnya
Installation Manager
Nick Rudenko
Photographer
Nastasya Korbut
Stylist
Vera Minchenkova
Copywriting
We will take your interior upon
We created this apartment in a loft style according to the customers' preferences, but we can work in different styles. We specialize in developing interior designs for apartments and houses and have a reliable team to carry out the renovations. With us, you won't have to worry about being taken away from your family, work, or leisure time during the renovation process – we will take care of everything for you. Just submit a request, and we will estimate the cost of producing your interior design.

Interior Production, From an Executed Contract to Moving In,
Takes From 12 Months

Creating the interior design project
Quarter 1
Creating furniture design project
Fixing the value
Quarter 2
Erection of partition walls
Installing the utility systems
Quarter 3
Ceilings installation
Decoration
Doors installation
Quarter 4
Furniture and appliances installation
Cleaning
Interior Production, From an Executed Contract to Moving In,
Takes From 12 Months
Design works
Quarter 1
Quarter 2
Quarter 3
Quarter 4
Measurements
Making a layout
Making a sketch plan
Making the final design concept
Making a sketch plan for furniture
Making the final design concept for furniture
Designing the air ventilation system
Designing the heating system
Designing the water delivery system
Designing the wastewater disposal system
Designing the power supply system
Developing the budget
Construction supervision
Finishing facilities
Dismantling of partition walls
Erection of partition walls
Priming
Plastering
Soundproofing
Calking
Glass-fiber mat sizing
Coloring
Attaching porcelain stoneware
Floor soundproofing and waterproofing
Floor levelling
Installing underfloor heating
Placing porcelain stoneware onto the floor
Floor priming
Placing veneer wood onto the floor
Placing wood block flooring
Placing cork compensators
Ceiling soundproofing
Installing plasterboard ceiling
Ceiling priming
Ceiling calking
Putting glass-fiber mats onto the ceiling
Ceiling coloring
Cleaning
Utility systems
Installing the water delivery system and the wastewater disposal system
Installing the heating system
Installing the electricity supply system
Installing the vacuum ventilation system
Installing air conditioners
Doors and windows
Windows installation
Doors installation
Furniture and appliances
Furniture production
Furniture installation
Appliances installation
We Are the Members of the Professional Communities of the USA and Russia
Problem-Free Renovation
You buy an interior as a ready product. The renovating process will not take you away from your family, business, or vacation. We are the ones who control the working process, deliveries, and quality of products.
Full Responsibility
We are in charge of the whole interior and solve all possible mistakes.
Fixed Price
We fix the price of the whole interior at the stage of the design project so it will not rise during realization.

Other interiors

All interiors