81 m2 Moscow Apartment With a Home Office and a Dressing Room: Photos, Videos, and Estimate of the Completed Interior

81 m<sup>2</sup> Apartment With a Home Office and a Dressing Room: Photos, Videos, and Estimate of the Completed Interior

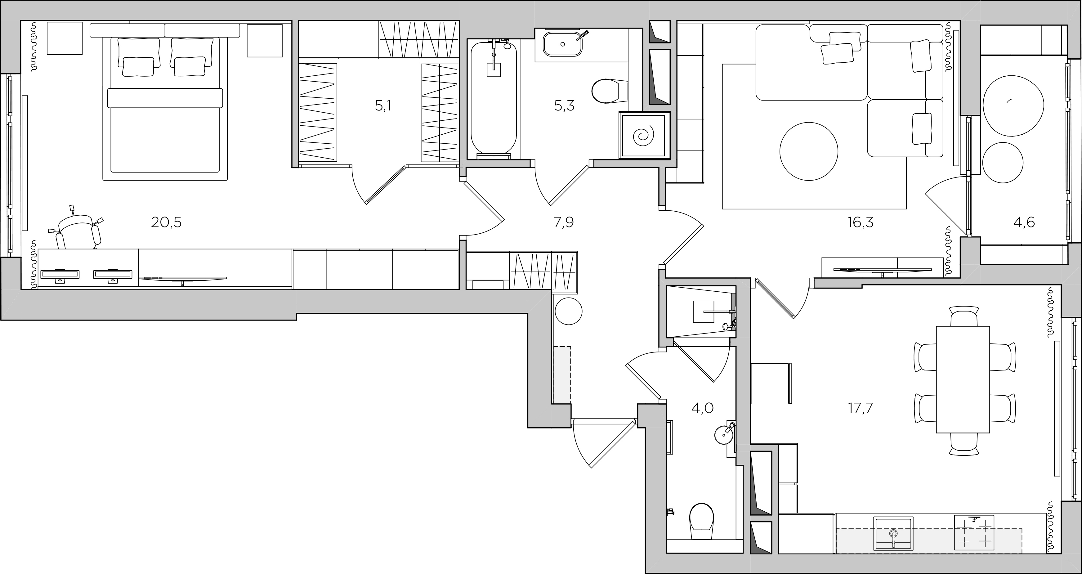
We designed and delivered this brutal interior with bright details for a programmer. The client wanted the kitchen and living room to remain separate (and the kitchen to have room for a freestanding refrigerator), a shower in one of the bathrooms, and a large desk.

Our team created a design project and worked with the interior exactly according to the plan and budget. We also designed and manufactured all the cabinet furniture specifically for this apartment.

Size 81 m2
Type A two-bedroom apartment
Years 2020–2021
Features There is no storage space for clothes and shoes in the hallway. The apartment has a small guest bathroom without shower and a large bathroom
Before
After
In the spacious bedroom, it is possible both to organize a workspace and to separate off a dressing area.
There is no storage space for clothes and shoes in the hallway
We chose a 3.5 m desk
There is room for a utility closet and a walk-in dressing area
Because we reduced the size of the bathroom, we managed to get a coat closet in the hallway
The entrance to the kitchen was moved into the living room. The rooms are visually united by a tinted glass door
We also enlarged the bathroom and were able to put there a shower after transferring its entrance
Тумба под телевизор и МДФ в шпоне ясеня

The whole interior is done in two primary colors, taupe beige and dark gray. We used several repeating details: tinted-glass partitions, doors and fronts, egg-yellow furniture pieces, and ribbed elements.

Шкаф в гостиной из МДФ

The kitchen and the living room can be viewed through a tinted glass doorway. The living room is visually divided into two emotional zones: the austere dark one with a graphic cabinet and the light one with a sofa.

Стеновые панели из МДФ в гостиной
Тумба под телевизор из МДФ в шпоне ясеня

The living room remained separated: it is a full-fledged lounge area with a passage to the kitchen.

Кухня из МДФ со шпоном ясеня
Кухонный стол со стеклянной столешницей
Обеденный стол со стеклянной столешницей

The dining area has a few distinctive interior pieces: a glass table on metal support legs, bright eco-leather Bontempi chairs, and round Vibia lamps.

Угловая кухня из МДФ со шпоном ясеня

The client also asked us not to get a built-in refrigerator. We moved it away from the rest of the furniture so it could be an independent element of the kitchen. Near to it, there is a vertical Vibia pendant lamp.

Рабочий стол с ящиками в шпоне ясеня

The 3.5 m long desk was placed in the bedroom. It is made without a single support leg and has a metal frame. We wanted to make the wall above the table more textured, so we put an embossed panel there.

Спальня с рабочим столом
Стеновые панели из МДФ со шпоном ясеня
Рабочий стол в спальне
Гардеробная система с подсветкой
Гардеробная из МДФ в спальне

The dressing room adjoins the bedroom, but they are separated by partitions made of tinted glass. There is a multifaceted storage system: it's possible to expose the nice clothes, put accessories into the wide drawers, and keep unseasonal clothes in the closet.

Тумба под раковину из МДФ

The sink in the bathroom stands on a base with an accent yellow module. It echoes the chairs in the kitchen and the hallway pouf.

Пенал для стиральной машины в ванной

Just rightward to the entrance, there is a column cabinet containing a washer, a dryer, and a built-in air extractor.

We discuss more our decision to place the washing machine and dryer in the column cabinet in the video.

Маленькая душевая
Маленькая душевая со стеклянной дверью

At this place, there was a small hallway leading to the kitchen on the builder's plan. We moved the entrance to the living room and it gave us a chance to equip the bathroom with a shower.

Зеркало и подвесная полка в прихожей

There is no room for a full closet at the entrance, so we installed several clothes hooks and a small cross-drawer closet instead.

Шкаф для одежды в прихожей

The rest of the stuff can be stored in the second closet further down the hall, where we also located the low-current and electrical panels as well as the heating manifold.

?autoplay=" title="YouTube video player" frameborder="0" allow="accelerometer; autoplay; clipboard-write; encrypted-media; gyroscope; picture-in-picture" allowfullscreen>

We also shot a video review of this interior, where we talked in detail about all the planning and interior solutions. We also published this video on YouTube.

Спальня с рабочим столом
Спальня с рабочим столом в шпоне ясеня
Спальня с гардеробной
Гардеробная система с подсветкой
Гардеробная система из МДФ
Современная гостиная с диваном и телевизором
Современная гостиная со шкафом
Шкаф для книг в гостиной
Современная темная гостиная с мебелью
Шкафы на балконе
Современная угловая кухня
Современная кухня со столешницей из кварца
Ванная комната с мебелью
Тумба под раковину в ванной
Пенал для стиральной машины в ванной
Шкаф для одежды и зеркало в прихожей
Шкаф для одежды в прихожей
Маленькая душевая
Маленькая дешевая
Маленький санузел с мебелью

This is how we presented the interior upon completion of the design: all objects and materials were chosen by our team. Elaborating all the details at the early stage allowed us to do everything according to the plan we presented to the client.

Estimate
The estimate is valid as of April 2021. It does not constitute a public offer.
Design
$15,609
The interior design project
$129
x
81 m2
=
$10,449
The furniture design project
$129
x
40 l. m
=
$5,160
Finishing materials
$37,774
Lab Arte engineering board
$52
x
55 m2
=
$2,860
Derufa white ceiling paint
$106
x
3 pcs
=
$318
Derufa dark grey ceiling paint
$49
x
1 pc
=
$49
Derufa grey-beige wall paint
$125
x
4 pcs
=
$500
Derufa dark grey wall paint
$133
x
2 pcs
=
$266
Porcelanosa porcelain stoneware on the floor
$100
x
43 m2
=
$4,300
Porcelanosa porcelain stoneware on the kitchen apron
$88
x
6 m2
=
$528
Porcelanosa porcelain stoneware in the guest bathroom type 1
$84
x
29 m2
=
$2,436
Porcelanosa porcelain stoneware in the guest bathroom type 2
$88
x
5 m2
=
$440
Grespania porcelain stoneware in the bathroom
$72
x
3 m2
=
$216
Venis porcelain stoneware on the bathroom floor
$75
x
8 m2
=
$600
Venis porcelain stoneware on the bathroom walls
$78
x
20 m2
=
$1,560
Venis 'wave' porcelain stoneware in the bathroom
$79
x
5 m2
=
$395
A cork compensator
$3
x
65 pcs
=
$195
A cork oil
$69
x
1 pc
=
$69
Shell construction materials
$23,042
x
1 kit
=
$23,042
Doors and windows
$12,198
The window in the bedroom
$3,393
x
1 pc
=
$3,393
A mosquito net
$104
x
2 pcs
=
$208
Union flush mounting interior door
$648
x
4 pcs
=
$2,592
Union glass interior door in the kitchen
$1,555
x
1 pc
=
$1,555
Union glass interior door in the dressing room
$3,855
x
1 kit
=
$3,855
Fantom magnetic doorstop
$33
x
5 pcs
=
$165
Linea Cali doorknob
$53
x
6 pcs
=
$318
Linea Cali door latch
$28
x
4 pcs
=
$112
Furniture
$79,258
Bontempi dining table
$3,702
x
1 pc
=
$3,702
Bontempi chair
$625
x
6 pcs
=
$3,750
Cattelan Italia bedside table
$1,791
x
2 pcs
=
$3,582
One Mebel bed
$2,382
x
1 pc
=
$2,382
Alexander Tischler desktop in the bedroom
$3,638
x
1 pc
=
$3,638
Alexander Tischler cabinet in the bedroom
$5,598
x
1 pc
=
$5,598
$10,922
x
1 pc
=
$10,922
One Mebel sofa
$3,760
x
1 pc
=
$3,760
Alexander Tischler TV cabinet
$884
x
1 pc
=
$884
One Mebel pouf
$227
x
1 pc
=
$227
Alexander Tischler cabinet and mirror in the hallway
$5,323
x
1 pc
=
$5,323
Alexander Tischler cabinet in the bathroom
$3,000
x
1 pc
=
$3,000
Alexander Tischler cabinet under the sink in the bathroom
$2,302
x
1 pc
=
$2,302
Alexander Tischler mirror in the guest bathroom
$367
x
1 pc
=
$367
Alexander Tischler glass door in the guest bathroom
$822
x
1 pc
=
$822
Electrical items
$10,438
Arlight built-in lamp
$28
x
50 pcs
=
$1,400
Arlight lamp
$54
x
2 pcs
=
$108
Faldi magnetic integrated track
$91
x
1 pc
=
$91
Faldi lamp
$61
x
1 pc
=
$61
Faldi track lamp
$41
x
3 pcs
=
$123
Arl-Line LED strip profile
$133
x
4 pcs
=
$532
Maytoni lamp in the bathroom
$114
x
1 pc
=
$114
Vibia lamp above the dinning table
$1,894
x
2 pcs
=
$3,788
Vibia lamp near the fridge
$861
x
1 pc
=
$861
Stylus sconce in the bedroom
$142
x
1 pc
=
$142
Stylus lamp in the bedroom
$280
x
1 pc
=
$280
A profile for the LED strip Type 1
$20
x
10 pcs
=
$200
A waterproof profile for the LED strip
$33
x
2 pcs
=
$66
A profile for the LED strip Type 2
$11
x
6 pcs
=
$66
Arlight LED strip
$8
x
30 pcs
=
$240
A built-in profile for the LED strip
$9
x
5 pcs
=
$45
Ensto heating mat
$190
x
5 pcs
=
$950
Schneider Electric sockets and switches
$1,371
x
1 kit
=
$1,371
Ventilation and air-conditioning system
$4,195
LG indoor indoor air conditioning unit
$466
x
3 pcs
=
$1,398
Helios valve
$52
x
3 pcs
=
$156
LG outdoor indoor air conditioning unit
$1,650
x
1 pc
=
$1,650
Consumable materials
$991
x
1 kit
=
$991
Sanitary ware
$13,970
Laufen sink in the guest bathroom
$480
x
1 pc
=
$480
Laufen toilet in the guest bathroom
$711
x
1 pc
=
$711
Paffoni faucet for the sink in the guest bathroom
$174
x
1 pc
=
$174
Paffoni shower faucet
$273
x
1 pc
=
$273
Paffoni shower system
$171
x
1 pc
=
$171
Paffoni overhead shower
$654
x
1 pc
=
$654
Aco floor drain
$355
x
1 pc
=
$355
Paffoni hygienic shower
$184
x
1 pc
=
$184
Noken towel holder in the guest bathroom
$149
x
1 pc
=
$149
Villeroy & Boch bathtub
$1,382
x
1 pc
=
$1,382
Villeroy & Boch sink in the bathroom
$414
x
1 pc
=
$414
Paffoni faucet for the sink in the bathroom
$302
x
1 pc
=
$302
Paffoni shower system in the bathroom
$1,341
x
1 pc
=
$1,341
Villeroy & Boch toilet in the bathroom
$654
x
1 pc
=
$654
Tece wall-hung toilet system
$249
x
2 pc
=
$498
Noken shelf in the bathroom
$183
x
2 pcs
=
$366
Noken towel holder in the bathroom
$321
x
1 pc
=
$321
Noken towel hook
$82
x
4 pcs
=
$328
Terma heated towel rail
$566
x
2 pcs
=
$1,132
Blanco dishwasher in the kitchen
$480
x
1 pc
=
$480
Omoikiri faucet in the kitchen
$412
x
1 pc
=
$412
Loten radiator in the living room and kitchen
$581
x
2 pcs
=
$1,162
Loten radiator in the bedroom
$653
x
1 pc
=
$653
Neptun leakage control system
$458
x
3 kits
=
$1,374
Works
$51,993
Building and installation management
$69
x
81 m2
=
$5,589
Building and installation works
$36,265
x
1 pc
=
$36,265
Logistics costs
$1,840
x
1 pc
=
$1,840
Furniture installation
$8,299
x
1 pc
=
$8,299
Total
$225,435
Team
Karen Karapetian
Chief Designer
Diana Besedina
Chief Project Designer
Oleg Mokrushnikov
Engineer
Кonstantin Prokhorov
Engineer
Ekaterina Demkina
Head of Purchasing
Pavel Prokhorov
Finishing Manager
Alexey Stepanov
Installation Manager
Nastasya Korbut
Stylist
Yaroslav Lukiyanchenko
Photographer
Vera Minchenkova
Copywriting

Interior Production, From an Executed Contract to Moving In,
Takes From 12 Months

Creating the interior design project
Quarter 1
Creating furniture design project
Fixing the value
Quarter 2
Erection of partition walls
Installing the utility systems
Quarter 3
Ceilings installation
Decoration
Doors installation
Quarter 4
Furniture and appliances installation
Cleaning

Interior Production, From an Executed Contract to Moving In,
Takes From 12 Months

Design works
Quarter 1
Quarter 2
Quarter 3
Quarter 4
Measurements
Making a layout
Making a sketch plan
Making the final design concept
Making a sketch plan for furniture
Making the final design concept for furniture
Designing the air ventilation system
Designing the heating system
Designing the water delivery system
Designing the wastewater disposal system
Designing the power supply system
Developing the budget
Construction supervision
Finishing facilities
Dismantling of partition walls
Erection of partition walls
Priming
Plastering
Soundproofing
Calking
Glass-fiber mat sizing
Coloring
Attaching porcelain stoneware
Floor soundproofing and waterproofing
Floor levelling
Installing underfloor heating
Placing porcelain stoneware onto the floor
Floor priming
Placing veneer wood onto the floor
Placing wood block flooring
Placing cork compensators
Ceiling soundproofing
Installing plasterboard ceiling
Ceiling priming
Ceiling calking
Putting glass-fiber mats onto the ceiling
Ceiling coloring
Cleaning
Utility systems
Installing the water delivery system and the wastewater disposal system
Installing the heating system
Installing the electricity supply system
Installing the vacuum ventilation system
Installing air conditioners
Doors and windows
Windows installation
Doors installation
Furniture and appliances
Furniture production
Furniture installation
Appliances installation
We Are the Members of the Professional Communities of the USA and Russia
Problem-Free Renovation
You buy an interior as a ready product. The renovating process will not take you away from your family, business, or vacation. We are the ones who control the working process, deliveries, and quality of products.
Full Responsibility
We are in charge of the whole interior and solve all possible mistakes.
Fixed Price
We fix the price of the whole interior at the stage of the design project so it will not rise during realization.

Other interiors

All interiors